Einfamilienhaus am Hang auf großem Grundstück

4,10 Stern(e) 7 Votes
Zuletzt aktualisiert 28.11.2025
Sie befinden sich auf der Seite 6 der Diskussion zum Thema: Einfamilienhaus am Hang auf großem Grundstück
>> Zum 1. Beitrag <<

D

derdietmar

Hallo nochmal,

vielen Dank! Ich konnte zwischenzeitlich den Grundriss sogar selbst finden Der ist sehr gut, da gibt es nix wofür Dich der Nachbar drankriegen kann

Ein paar Fragen dazu habe ich dennoch:
Im EG ist der Flur ohne Fenster, im UG erfolgt die Beleuchtung auch nur seitlich. Wie seid ihr mit der Helligkeit dort zufrieden?

Viele Grüße!
 
S

Solveigh


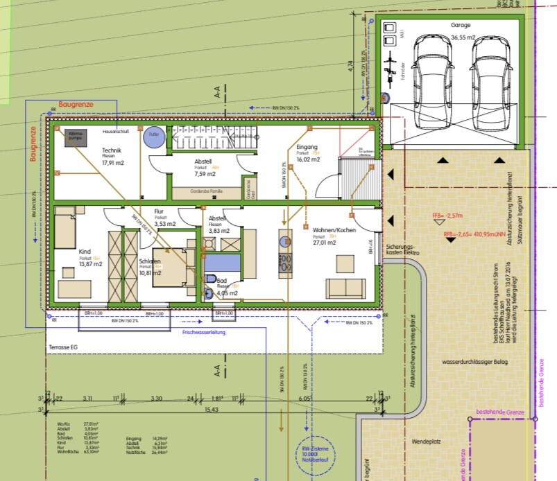
Grundriss eines Hauses mit Garage, Terrasse und mehreren Zimmern.

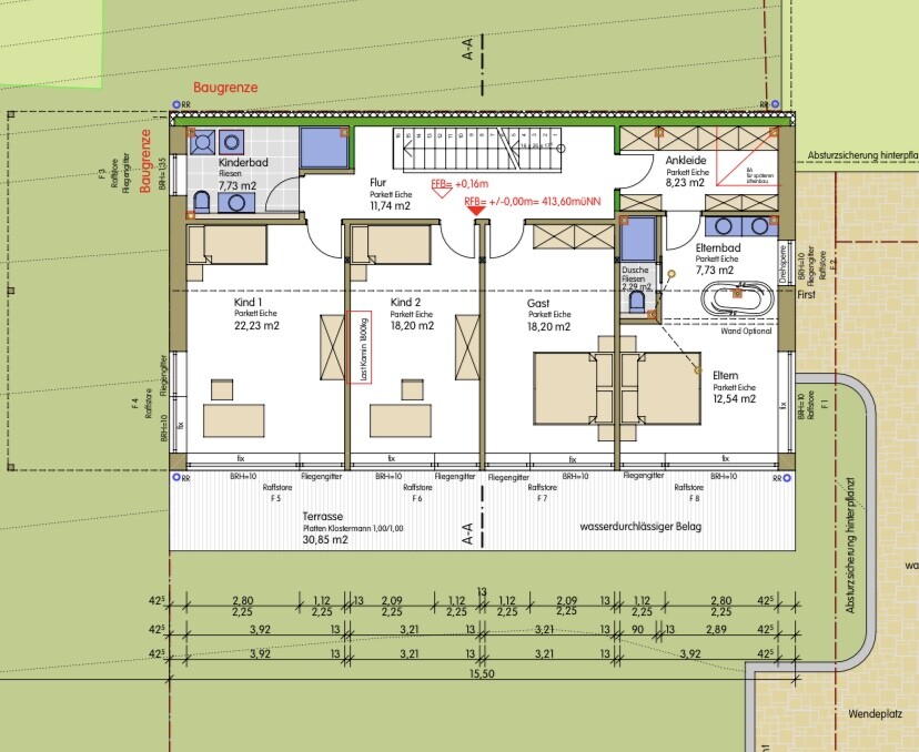
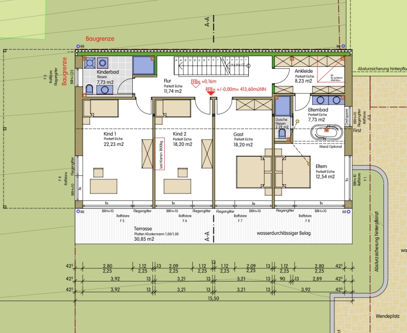
Grundriss eines Hauses mit Flur, Elternzimmer, Kinderzimmer, Gästezimmer sowie Terrasse.

Grundriss eines Wohnhauses mit Balkon, Wohnzimmer, Bibliothek, Essbereich, Küche und Flur

Schnitt durch ein mehrstöckiges Haus mit DG, EG, UG, Treppe und Fenstern

Moderne zweistöckige Hauszeichnung mit Terrasse, großen Fenstern, Maßlinien und Geländeprofil.


Ja der Flur im EG und UG ist dunkel. Einen Tod mussten wir sterben am Hang. Uns war es wichtiger, dass die Aufenthaltsräume genug natürliches Licht bekommen. Im Treppenbereich haben wir LED Streifen eingebaut, die den ganzen Tag leuchten.
 
Zuletzt aktualisiert 28.11.2025
Im Forum Bauplanung gibt es 5072 Themen mit insgesamt 100818 Beiträgen


Ähnliche Themen zu Einfamilienhaus am Hang auf großem Grundstück
Nr.ErgebnisBeiträge
1Treppe im Flur, Grundriss steht eigentlich schon :o( - Seite 320
2Hauseingang mit Flur oder ohne 15
3Welcher Bodenbelag im Eingang/Flur? Wer hat Erfahrungen? Bilder? 14
4Grundrissplanung Wohnzimmer und Flur zu schmal? - Seite 221
5Ausreichend Licht im Flur? Bitte um Meinung 12
6Grundrissplanung: Flur im EG breit genug? 57
7Lichtplanung mit LED Spots für Flur 13
8Fliesen oder Vinyl in Küche und Flur 19
9Anzahl Einbauspots im Flur DG 50
10Wie viele Lampen im 7m langen Flur? 13
11Kontrollierte-Wohnraumlüftung auch im Flur? Haben wir nicht - stickig 11
12Treppe "ragt" in Flur hinein: Problematisch? 12
13Probleme bei der Flur-Möblierung, wer hat Ideen? - Seite 443
14Fehlender Lüftungsanlagen-Deckenauslass im Flur dramatisch? 12
15Bewegungsmelder im Flur/Dielenbereich - Seite 427
16Planung Einbaustrahler Flur und Garderobe - Tipps 62
17Flur und Wohn-/Essbereich selben Bodenbelag? 50
18Lichtberatung: Leuchtenidee für hohen Flur gesucht 18
19Parkett von Flur in Zimmer durchlegen 17
20Einbaumöbel für Flur etc. vom Küchenstudio? 17

Oben