ᐅ Einfamilienhaus (2Etagen+Wohn-Keller+ausgebautes Dach) etwa 200qm -Änderungen
Erstellt am: 20.10.19 21:50
G
grerichtDein Wunsch nach Eigenleistung in allen Ehren, aber Du schreibst selbst, dass dafür eigentlich gar keine Zeit da ist. Wenn ich das mal aufzählen darf, was Du alles selbst machen willst:
- Fliesen legen (ungelernt wohl gemerkt - Hola!)
- Elektrik (wohl noch unsicher, aber würde man gern)
- Malern (schon mal ein ganzen Haus grundiert und gestrichen? In 5 Etagen wohlgemerkt! :eek
- Böden (Dielen, PVC und Fliesen - Hut ab!)
- gesamte Außenanlagen (Wege, Erdarbeiten, Treppen usw. - Tschakka!)
Nebenbei willst Du noch günstig Sanitärobjekte und die Dielen beschaffen. Das ganze mit 3 Kindern im Schlepptau. Wow!
Wie viele Urlaubstage hast Du denn im Jahr so?
Nur als Beispiel, mein Mann und ich haben keine Kinder und "nur" Elektrik und Malerarbeiten selbst gemacht. Damit war der gesamte Jahresurlaub weg. Da hatten wir noch Unterstützung von zusätzlich 6 Familienmitgliedern und zwar nicht nur sporadisch, sondern es waren bei beiden Handwerken alle dabei.
Ihr habt 5 Jahre verschwendet, sagst Du. Ich hoffe, Du verschwendest nicht noch mal 3, weil Du die Eigenleistung unbedingt erzwingen willst.
Insgesamt kam das vielleicht auch etwas falsch rüber: Ich finde Euer Budget für ein schönes Häuschen durchaus gut. Damit kann man was anfangen. Aber die Wünsche sind nach meinem Gefühl noch ca. 70 bis 80K darüber. Also bissl abspecken und alles ist Tuttipaletti - mal abgesehen vom Grundriss.
- Fliesen legen (ungelernt wohl gemerkt - Hola!)
- Elektrik (wohl noch unsicher, aber würde man gern)
- Malern (schon mal ein ganzen Haus grundiert und gestrichen? In 5 Etagen wohlgemerkt! :eek
- Böden (Dielen, PVC und Fliesen - Hut ab!)
- gesamte Außenanlagen (Wege, Erdarbeiten, Treppen usw. - Tschakka!)
Nebenbei willst Du noch günstig Sanitärobjekte und die Dielen beschaffen. Das ganze mit 3 Kindern im Schlepptau. Wow!
Wie viele Urlaubstage hast Du denn im Jahr so?
Nur als Beispiel, mein Mann und ich haben keine Kinder und "nur" Elektrik und Malerarbeiten selbst gemacht. Damit war der gesamte Jahresurlaub weg. Da hatten wir noch Unterstützung von zusätzlich 6 Familienmitgliedern und zwar nicht nur sporadisch, sondern es waren bei beiden Handwerken alle dabei.
Ihr habt 5 Jahre verschwendet, sagst Du. Ich hoffe, Du verschwendest nicht noch mal 3, weil Du die Eigenleistung unbedingt erzwingen willst.
Insgesamt kam das vielleicht auch etwas falsch rüber: Ich finde Euer Budget für ein schönes Häuschen durchaus gut. Damit kann man was anfangen. Aber die Wünsche sind nach meinem Gefühl noch ca. 70 bis 80K darüber. Also bissl abspecken und alles ist Tuttipaletti - mal abgesehen vom Grundriss.
grericht schrieb:
von kaho674 da die Richtung vorgegeben hat) zu einer Finanzdiskussion verkommen ist. Wenn ich die Finanzen hätte klären wollen, wäre ich in den Finanzbereich gegangen. Es gibt hier einfach sehr viele verschieden Möglichkeiten um Dinge zu beschreiben. Wenn ich von 60-70k für den Keller an Kosten rede, dann rede ich nicht vom Preis den der Keller kostet wnen ich ihn mir "nackig" hinstelle sondern vom Unterschied des Hausbaus mit und ohne Keller.Hier wird ungern ein Entwurf diskutiert, der mangels Liquidität gar nicht gebaut werden kann.grericht schrieb:
Würde nur der Süden bleiben und unseren Garten verkleienrn. Da wollen wir nicht und suchen nach einer möglichst kleinen Grundfläche.Leider hast Du uns den Lageplan nicht eingestellt. Wir wissen also nicht, wie Baufenster oder welche Maße das Grundstück hat.Und Du redest von Südgarten ops:
Im übrigen geht es um ein 710qm Grundstück, welches sehr wohl ein Haus normaler Größe oder etwas mehr aufnehmen kann. Da muss man nicht auf Sparflamme gehen und so tun, als ob man gerade mal 400qm hat.
Insofern machen 10qm auf der Grundfläche oder aber auch 50qm nichts aus. Bei 700 qm muss man den Wohnraum nicht unter der Erde suchen.
grericht schrieb:
Es gibt eine Tür zur Speisekammer vom Windfang aus. Ob das nur ein Rahmen oder eine Tür sein wird ist noch unklar.??? Eine Schleuse. Sehr ansehnlich...
grericht schrieb:
Wir sehen keine Alternative zur mittigen Treppe ohne die Flure zu vergrößern und wieder qm zu bauen die dann nicht bewohnbar sindAlso mal ehrlich: Du hast einen Knoten im Kopf. Das meine ich nicht böse.
Ihr plant Euer Wohnzimmer, was Rückzugsraum für einzelne Familienmitglieder oder alle zusammen sein soll, als Durchgangszimmer, sodass Rückzug, Chillen und Ruhe dort absolut untersagt ist, zur Krönung setzt ihr ins WZ das Treppenhaus, welches auch noch den Keller erschließt.
grericht schrieb:
Von den vielen Zimmern im Haus gibt es genau 2 Durchgangszimmer (finde ichDAS zum Thema Durchgangszimmer. Ein Durchgangszimmer ist ein Zimmer, welches einen eigenen Nutzen hat, jedoch auch noch dazu missbraucht wird, einen anderen Raum zu erreichen. Vorzugsweise im Bereich Küche/Speis, Schlafzimmer/Ankleide angewandt.,
grericht schrieb:
Wie oben geschildert kommen wir aber kaum auf mehr Grundfläche und vor allem würde das auch größere Flure bedeuten.Nein! Definitiv nicht! Man muss das nur planen und den Flur nicht in der Ecke lassen. Er hat ja den Nutzen, dass Zimmer von ihm abgehen. Und hier ist der Flur überhaupt nicht in seinem Nutzen berücksichtigt.Ich sag mal: da war ein Mensch dabei, der im Kopf einige Schranken hat und diese auch nicht mal annähernd aufmacht, um die Dinge mal anders zu sehen.
Du stehst Dir selbst im Weg!
grericht schrieb:
die 10qm mehr Grundfläche hingegen werden dann auf 3 Etagen anfallen, kosten also etwa 60k und bringen etwa 25qm WohnflächeJa, prima! Ernstgemeint* sie sind allerdings günstiger, weil dort keine große Technik verbraten wird. Man kommt sogar ohne Heizung aus.grericht schrieb:
Heißt wir würden 10k sparen, hätten keine Keller,Ja, prima. Nämlich reellen Wohnraum oberirdisch und nicht düse Maulwurfsgeschichte. Auch wenn Du den „Wohnraum“ durch „richtige Fenster“ für Dich positiv beschreibst. Es ist und bleibt Kellerraum, den man auch nicht gern bewohnt. Zumindest nicht auf Dauer.grericht schrieb:
Wir gehören tatsächlich zu den Menschen die die Schuhe ausziehen wAch... wer denn nicht? Du bist nicht anders als jeder andere hier. Du bist auch nicht klüger, nur weil Du Flure weglassen möchtest. Du bist nicht sauberer oder anders, weil Du die Schuhe ausziehst.
grericht schrieb:
Aber wir sind sehr offen für Ideen. Eigentlich hatte ich mit dem Beitrag hier auf derartige geDas glaube ich nicht. Ich hab sie jetzt nicht gezählt, Deine Begründungen, warum dies und das so ist.
Weißt Du: man muss sich ja erst mal beschnuppern, wo der Entwurf so hingehen soll. Was für Wege der Bauherr, also der TE, in diesem Fall Du, hat (zb finanziell) oder auch will.
Ich hab nicht das Gefühl, dass Du Änderungen haben möchtest.
Ich bin jetzt mal ehrlich: Dieser Entwurf ist einer der schlechteren hier im Forum: wegen 10/15qm als Grundfläche einen Keller bauen und damit mehr Fläche als nötig, die dann auch noch als Wohnung vermieten wollen*,
Dann das Treppenhaus mit Schall und Keller mitten im WZ, das jegliche Offenheit einschränkt... der Eintritt in die Küche durch eine Abstellschleuse, ... oben im EG ein Schlafzimmer mit ner Breite von 2,80 (das hatte ich im Reihenhaus) und so fort...
Offener (unordentlicher) Ankleidebereich als Durchgang zum Bad... das ist doch alles gar nicht durchdacht geplant. Das ist nicht halbes und nichts Ganzes. Da ist das Prinzip, mit wenig Flurfläche auszukommen (das Prinzip ist nicht neu und auch nicht schlecht), nicht erfolgreich durchgeführt worden.
Ich muss leider immer wieder den Kopf schütteln: auf engen Raum ein Treppenhaus mittig zu setzen, nimmt Die auf allen Seiten Offenheit und engt nur ein... überall nur Wände... WZ-Möbel als Stolperfallen... was ist das für eine Röhre zw Flur und WZ?
*würdest Du selbst sowas bewohnen wollen? Als Student in einem Neubaugebiet?
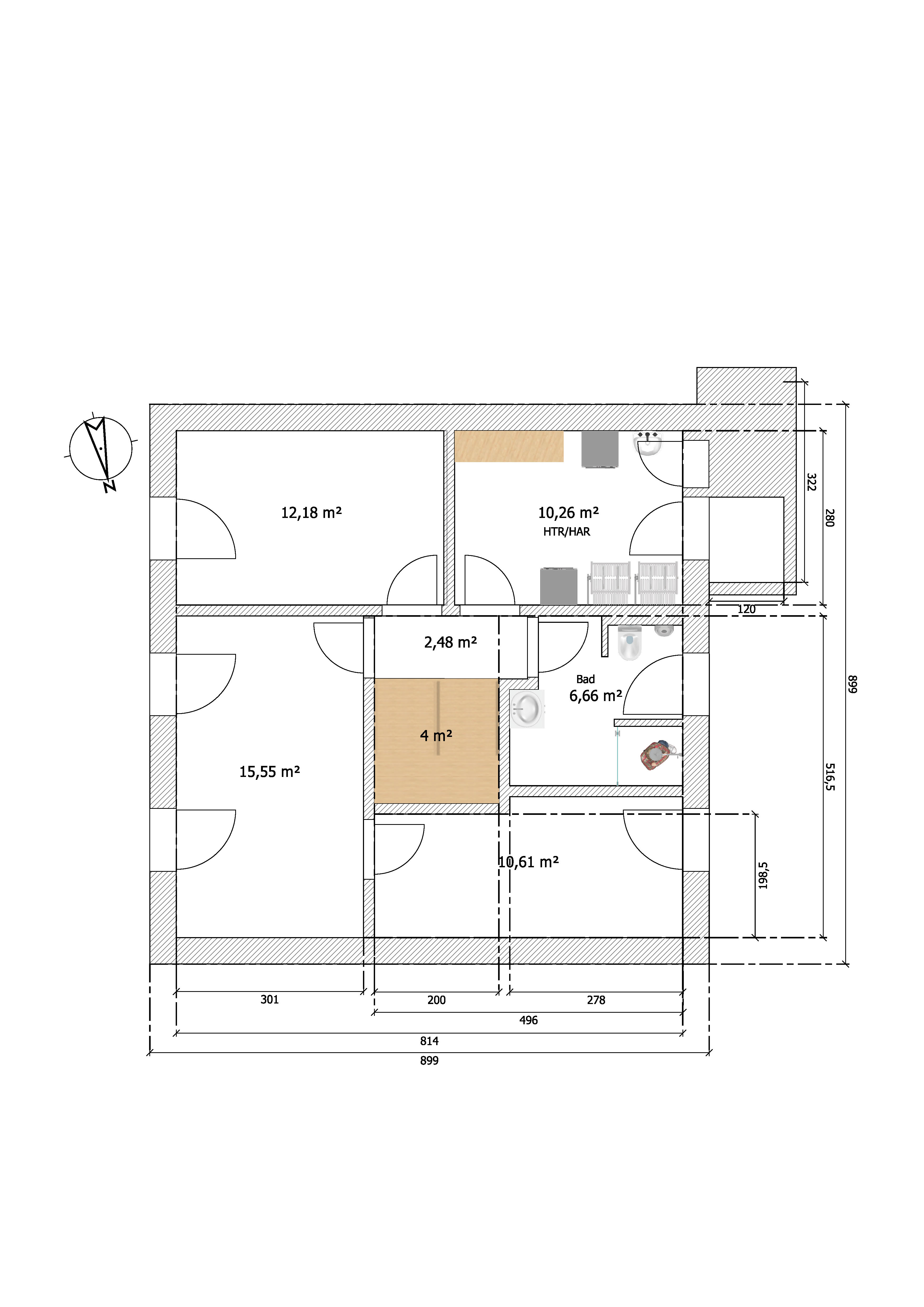
ich hab zum besseren Verständnis mal den katasterauszug angefügt und die Grundstücksplanung mit den Fluchten zur Straße und dem Abstandsmaß zum Nachbargrundstück.
Außerdem haben wir uns gerade noch mal eine Weile hingesetzt und noch mal am Grundriss des Kellers herumprobiert. Es sind nicht wirklich weniger Durchgangszimmer aber es taugt so deutlich mehr für die Planung einer Einliegerwohnung (meinen wir) der HAR/HTR ist jetzt als Garderobe nutzbar und für alle Parteien ist die Technik zu gängig. Dort könnte jede Partei eine eigene Waschmaschine stehen haben. Es hat quasi die Funktion eines Waschhauses wie ich es von früher kenne.
Das hintere Zimmer könnte irgendwann Schlafzimmer mit Schrank und davor je nach Interesse Wohn-Küche oder Küche/Esszimmer oder Wohnzimmer und das einzelne Zimmer ein kleines Arbeits- oder Wohnzimmer oder Küche/Esszimmer. Für die Planung wäre wohl ein weiterer Wasseranschluss in der Zwischenwand von Interesse.



Außerdem haben wir uns gerade noch mal eine Weile hingesetzt und noch mal am Grundriss des Kellers herumprobiert. Es sind nicht wirklich weniger Durchgangszimmer aber es taugt so deutlich mehr für die Planung einer Einliegerwohnung (meinen wir) der HAR/HTR ist jetzt als Garderobe nutzbar und für alle Parteien ist die Technik zu gängig. Dort könnte jede Partei eine eigene Waschmaschine stehen haben. Es hat quasi die Funktion eines Waschhauses wie ich es von früher kenne.
Das hintere Zimmer könnte irgendwann Schlafzimmer mit Schrank und davor je nach Interesse Wohn-Küche oder Küche/Esszimmer oder Wohnzimmer und das einzelne Zimmer ein kleines Arbeits- oder Wohnzimmer oder Küche/Esszimmer. Für die Planung wäre wohl ein weiterer Wasseranschluss in der Zwischenwand von Interesse.
ypg schrieb:
Dann das Treppenhaus mit Schall und Keller mitten im WZ, Ja. Richtig absurd wird die Vorstellung, wenn dann unten ein Mieter von Raum zu Raum rennt und jedes Wort von oben ungebremst nach unten dringt.kaho674 schrieb:
Dein Wunsch nach Eigenleistung in allen Ehren, aber Du schreibst selbst, dass dafür eigentlich gar keine Zeit da ist. Wenn ich das mal aufzählen darf, was Du alles selbst machen willst:
- Fliesen legen (ungelernt wohl gemerkt - Hola!)
- Elektrik (wohl noch unsicher, aber würde man gern)
- Malern (schon mal ein ganzen Haus grundiert und gestrichen? In 5 Etagen wohlgemerkt! :eek
- Böden (Dielen, PVC und Fliesen - Hut ab!)
- gesamte Außenanlagen (Wege, Erdarbeiten, Treppen usw. - Tschakka!)
Nebenbei willst Du noch günstig Sanitärobjekte und die Dielen beschaffen. Das ganze mit 3 Kindern im Schlepptau. Wow!
Wie viele Urlaubstage hast Du denn im Jahr so?Ich hab selber miterleben müssen wie sich eine Familie getrennt hat bei einer Sanierung. Das soll natürlich nicht passieren.Grundieren und malen ist kein Stress.
Fußböden wird hart aber muss aus Kostengründen sein. Fliesen werde ich unter fachmännischer Anleitung versuchen und wenn es nicht geht muss ein Profi ran.
Elektrik mache ich nichts selber! Mit Strom hab ich es nicht so. Was ich nur nicht groß bezahlen will ist ein LAN Kabel von Zimmer A in B und dann ändert sich der Standard, WLAN wird erfunden oder wir brauchen Internet in Raum C. Also Telefon, TV und Internet mache ich am liebsten selbst. Bisher in Mietwohnungen in Kanälen und Decken. Leerrohre wären mir hier Gold wert!
Außenanlagen muss nichts gemacht werden um erst mal einzuziehen. Es muss ein neuer Zaun/Hecke drum herum. Das geht mit verschiedensten Techniken und Leuten an einem Wochenende. so etwas liegt mir, da mach ich mir wenig sorgen.
Ich arbeite nur 34h an 4 Tagen und meine Frau kann sich, außer früh, um die Kinder kümmern. An 3 Tagen Wochenende, Urlaubstagen und nach Feierabend muss dann halt etwas werden.
Wie gesagt, Fliesen wird ein Test und Fußböden wird viel. Der Rest macht mir keine Sorgen. Dafür habe ich zu viel Garten gemacht und zu viel Umzüge mit Streichen hinter mir.
kaho674 schrieb:
Insgesamt kam das vielleicht auch etwas falsch rüber: Ich finde Euer Budget für ein schönes Häuschen durchaus gut. Damit kann man was anfangen. Aber die Wünsche sind nach meinem Gefühl noch ca. 70 bis 80K darüber. Also bissl abspecken und alles ist Tuttipaletti - mal abgesehen vom Grundriss. Danke dafür! Die kritischsten Anmerkungen sind/waren bisher die besten. Die kleine Treppe und Flure habe ich nur deines Kommentares wegen noch mal einer praktischen Beschau/Prüfung unterzogen. Die kleinen Flur sind für uns OK. Die kleine Treppe macht mir immer noch etwas Bauchschmerzen aber ich verlasse mich da auf den Architekten und das Beispiel bei meinen Eltern. Größer passt in den Plan nicht rein!ypg schrieb:
Hier wird ungern ein Entwurf diskutiert, der mangels Liquidität gar nicht gebaut werden kann.
Leider hast Du uns den Lageplan nicht eingestellt. Wir wissen also nicht, wie Baufenster oder welche Maße das Grundstück hat.
Und Du redest von Südgarten ops:
Im übrigen geht es um ein 710qm Grundstück, welches sehr wohl ein Haus normaler Größe oder etwas mehr aufnehmen kann. Da muss man nicht auf Sparflamme gehen und so tun, als ob man gerade mal 400qm hat.
Insofern machen 10qm auf der Grundfläche oder aber auch 50qm nichts aus. Bei 700 qm muss man den Wohnraum nicht unter der Erde suchen.Hab den Lageplan eingestellt. Wir sehen da wenig Möglichkeiten noch größer zu bauen außer die einzige sonnige Fläche weiter zu verbauen.ypg schrieb:
??? Eine Schleuse. Sehr ansehnlich...Die Idee ist eigentlich nicht, dass die viel begangen wird. Wahrscheinlich wird die Tür wie geplant gebaut und wohl auch im Normalfall eine der Türen sein die in der Regel zu ist. Die Versuchung dort lang zu gehen wäre ja ausschließlich beim ankommen und gehen. Das machen wir etwa 1-3 mal am Tag. Also 5-15mal alle zusammen. Mit der Treppe ist es was das Begängnis angeht also nicht vergleichbar.ypg schrieb:
Also mal ehrlich: Du hast einen Knoten im Kopf. Das meine ich nicht böse.
Ihr plant Euer Wohnzimmer, was Rückzugsraum für einzelne Familienmitglieder oder alle zusammen sein soll, als Durchgangszimmer, sodass Rückzug, Chillen und Ruhe dort absolut untersagt ist, zur Krönung setzt ihr ins WZ das Treppenhaus, welches auch noch den Keller erschließt.Derartige Knoten habe ja meist etwas mit Sozialisation zu tun. In dem Haus in dem ich von 14 bis 18 gelebt habe war und ist das genauso. Meine Eltern leben immer noch dort und ich sehe da keine Schwierigkeiten. Das Wohnzimmer soll auch nicht wirklich ein Chillraum sein. Dort wird wohl fast immer jemand an einem Laptop, vorm TV oder der Musikanlage sitzen. Oft gemischt. Das wird Lebensraum. Wenn jemand Ruhe braucht geht er in sein Zimmer.ypg schrieb:
Nein! Definitiv nicht! Man muss das nur planen und den Flur nicht in der Ecke lassen. Er hat ja den Nutzen, dass Zimmer von ihm abgehen. Und hier ist der Flur überhaupt nicht in seinem Nutzen berücksichtigt.
Ich sag mal: da war ein Mensch dabei, der im Kopf einige Schranken hat und diese auch nicht mal annähernd aufmacht, um die Dinge mal anders zu sehen.
Du stehst Dir selbst im Weg!Das verstehe ich nicht? Ich dachte der "Vorwurf" ist, dass zu viele Zimmer auf zu kleinem Raum abgehen? Kannst du mir das genauer erklären?ypg schrieb:
Ja, prima! Ernstgemeint* sie sind allerdings günstiger, weil dort keine große Technik verbraten wird. Man kommt sogar ohne Heizung aus.Und trotzdem wird der Preis fürs Haus steigen wenn die Grundfläche größer wird. Den Keller dann an Nutzfläche aufzuwiegen wird schwer.ypg schrieb:
Ja, prima. Nämlich reellen Wohnraum oberirdisch und nicht düse Maulwurfsgeschichte. Auch wenn Du den „Wohnraum“ durch „richtige Fenster“ für Dich positiv beschreibst. Es ist und bleibt Kellerraum, den man auch nicht gern bewohnt. Zumindest nicht auf Dauer.
... *würdest Du selbst sowas bewohnen wollen? Als Student in einem Neubaugebiet?Ich bin ehrlich: zu Jeder Zeit meines Lebens (Kind in Altbau mit schrecklichen alten schimpfenden Menschen/Kind/jugendlicher in Reihenhaussiedlung/Erwachsener bzw. Student mit und ohne Partnerin in Altbau mit Menschen die auch eher Schwierig waren) hätte ich lieber in diesem Keller gewohnt. Ich glaube der Keller ließe sich hier tatsächlich sehr vermieten. Er ist auch in der Nähe eines Uniteils. Ich glaube viele Studierende würden den einer WG oder dem Wohnheim vorziehen.ypg schrieb:
Ach... wer denn nicht? Du bist nicht anders als jeder andere hier. Du bist auch nicht klüger, nur weil Du Flure weglassen möchtest. Du bist nicht sauberer oder anders, weil Du die Schuhe ausziehst.Dann verstehe ich nicht wie man die Wohnungstür ins Wohnzimmer führen kann oder das Treppenhaus in den Eingangsbereich. Und es finden sich kaum alternative Grundrisse.ypg schrieb:
Das glaube ich nicht. Ich hab sie jetzt nicht gezählt, Deine Begründungen, warum dies und das so ist.
Weißt Du: man muss sich ja erst mal beschnuppern, wo der Entwurf so hingehen soll. Was für Wege der Bauherr, also der TE, in diesem Fall Du, hat (zb finanziell) oder auch will.
Ich hab nicht das Gefühl, dass Du Änderungen haben möchtest.Ich möchte natürlich keine Änderungen!Ich möchte Hinweise auf Schwierigkeiten die ich bisher noch nicht gesehen habe und sie dann abwiegen mit den Vorteilen die ich in der derzeitigen Planung gesehen habe. Wenn die Schwierigkeiten überwiegen muss es Änderungen geben. Bisher habe ich FÜR MICH begründet immer noch mehr Vorteile gesehen (außer beim Keller zB.) Es kann doch auch nichtdie Hoffnug des Kommentierens hier sein, dass der blinde spontan zum Licht geführt wird. Wie gesagt, ein wnig haben wir uns ja mit dem Grundriss auseinander gesetzt. ist ja kein plötzlicher Gedanke gewesen. Und ja, mein Leben zeigt mir, dass meine Ideen nicht gerade oft kompatibel zu den Ideen anderer sind. Aber hier ist ja ein großes Forum und ich hatte gehofft hier Menschen zu finden die Hinweise geben ohne zu erwarten, dass diese genau so umgesetzt werden müssen.
Wie oben beschrieben hab ich mir tatscählich noch mal ein kleines Treppenhaus und Flur angeschaut um mich zu vergewissern ob das so passt.
ypg schrieb:
Ich bin jetzt mal ehrlich: Dieser Entwurf ist einer der schlechteren hier im Forum: wegen 10/15qm als Grundfläche einen Keller bauen und damit mehr Fläche als nötig, die dann auch noch als Wohnung vermieten wollen*,
Dann das Treppenhaus mit Schall und Keller mitten im WZ, das jegliche Offenheit einschränkt... der Eintritt in die Küche durch eine Abstellschleuse, ... oben im EG ein Schlafzimmer mit ner Breite von 2,80 (das hatte ich im Reihenhaus) und so fort...
Offener (unordentlicher) Ankleidebereich als Durchgang zum Bad... das ist doch alles gar nicht durchdacht geplant. Das ist nicht halbes und nichts Ganzes. Da ist das Prinzip, mit wenig Flurfläche auszukommen (das Prinzip ist nicht neu und auch nicht schlecht), nicht erfolgreich durchgeführt worden.
Ich muss leider immer wieder den Kopf schütteln: auf engen Raum ein Treppenhaus mittig zu setzen, nimmt Die auf allen Seiten Offenheit und engt nur ein... überall nur Wände... WZ-Möbel als Stolperfallen... was ist das für eine Röhre zw Flur und WZ?- Ich habe nicht erwartet und auch nicht den Wunsch geäußert, dass MEIN Grundriss auch nur einem Menschen hier gefällt. Meine Frage war nach "unbeachtetem" und "übersehenem" - diese Liste von dir zum Beispiel hilft mir sehr!
- Abstellschleuse hab ich oben schon beschrieben - für uns passt das so
- Treppe ins WZ habe ich beschrieben. Für uns kein Ruheraum sondern der Raum wo alle ankommen und sind wenn sie keine Ruhe haben wollen.
- Schlafzimmer hat für mich die Funktion darin ein 1,40m Bett mit kleinen Abstellflächen, eine Steckdose und Schrank. Das könnte für mich sogar innenliegend ohne Fenster sein. Ich gehe im dunkeln rein und oft genug im dunkeln raus. Das ist für mich der unwichtigste Raum. Wenn ich nicht verheiratet wäre würde ich mir den als erstes einsparen und eine schnell aufhänbare Hängematte im Wohnzimmer installieren oder im Zelt im Garten Schlafen
- "Offener (unordentlicher) Ankleidebereich als Durchgang zum Bad" das verstehe ich nicht? Das wird der Raum wo die Kids ihre Klamotten hinbekommen und selber verräumen. Wenn sie früh ins Bad schlürfen holen sie frische Sachen und gut. Wenn das nicht genutzt wird kann dort ein Ruheraum entstehen. Stuhl, kleine Musikanlage, kleines Bücherregal. Oder notfalls ein kleines Lager. Klamotten kommen dann in die Zimmer
- "WZ-Möbel als Stolperfallen" wir haben absichtlich den größtmöglichen Tisch und Sofa eingemalt. Das Kann auch kleiner werden.
- "nimmt Die auf allen Seiten Offenheit und engt nur ein... überall nur Wände..." Das WZ selber soll offen sein. der Rest vom Haus muss das nicht. Welche Wände stören denn?
- "was ist das für eine Röhre zw Flur und WZ" was meinst du?
kaho674 schrieb:
Ja. Richtig absurd wird die Vorstellung, wenn dann unten ein Mieter von Raum zu Raum rennt und jedes Wort von oben ungebremst nach unten dringt.WENN unten ein Mieter einzieht der nicht zur Familie gehört wird es definitiv eine Schall/Raumtrennung zwischen WZ und Keller geben! Im EInfachsten Fall eine gedämmte "Zwischendeckenkonstruktion" entschiedensten Falle kann ja sicher die Kellertreppe ausgebaut werden und die Treppe per STahlträger oder STütze im EG aufgebaut werden?!Ähnliche Themen