Hausbau - Ratgeber
Bauherrenhilfe
- Bauherrenhilfe vor Vertragsabschluss
-- Warum einen unabhängigen Baubetreuer?
-- Vertragsgrundlagen
-- Bausumme
-- Zahlungsplan zur Kostenkontrolle
-- Pflichten des Bauherren vor Vertragsabschluss
-- Unterlagen beim Hausbau vor Vertragsabschluss
- Bauherrenhilfe nach Vertragsabschluss
-- Bauantrag bei Behörden
-- Bau-Genehmigungsverfahren bei Baubehörden
-- Bauspezifische Versicherungen
-- Bauzeitenplan
-- Baubeginn - die Letzten Pflichten der Bauherrschaft
- Bauherrenhilfe während der Bauzeit
- Gewährleistungsansprüche
- Bauabnahme
Baufinanzierung
- Baufinanzierung - Allgemeine Fragen
- Kreditarten
- Kredit-Konditionen
- Bausparen
- Staatliche Förderungen
- Verkehrswert
- Haushaltsrechnung und Bonität
Hausbau Planung
- Haustypen
- Hausbau Vorbereitungsarbeiten
- Das Baugrundstück
- Baugrund beim Hausbau
- Baurecht
- Gebäudeschutz
- Erdarbeiten und Wasserhaltung
- Stützmauern
- Einfriedung
- Untergeschoss
- Kanalisation
- Tragende Elemente
- Nichttragende Innenwände
- Fundation / Fundament
- Deckenkonstruktionen
- Dächer
- Kaminanlagen
- Treppen Rampen Leitern
- Dachbeläge und Spengler
- Fenster
- Sonnen und Wetterschutz
- Aussenputze
- Einbauten, Küchen, Türen
- Bodenbeläge und Unterlagsböden
- Parkett
- Gips, Wand, Decke
Haustechnik und Energie
- Heiztechnik
- Lüftung und Klimatechnik
- Sanitärtechnik
- Elektrotechnik
- Erneuerbare Energie
Whirlpools / Jacuzzi
Hausbau Magazin
- Baufinanzierung trotz Krise?
- Das Blockhaus
- Moderne Dämmstoffe im Vergleich
- Erker Vor- und Nachteile
- Glasflächen beim Hausbau
- Günstig ein Haus Bauen
- Mediterraner Hausbaustil
- Mehrgenerationenhaus
- Moderne Architektur
- Gartengestaltung leicht gemacht
- Traditioneller Ziegelbau
- Villa als höchster Traum
- Im Eigenheim Ruhestand geniessen
- Altbau sanieren
- Kauf einer Holzgarage
- Immobilienmakler
- Arbeitshandschuhe für den Winter
- Zuhause verschönern
- Outdoor-Plissees
- Schlafzimmer planen
- Terrassenüberdachung
- Wohngebäudeversicherung
- Zaunarten und Eigenschaften
- Hauseingang gestalten
- Der perfekte Grundriss
- Sparsamer heizen im Altbau
- Einfamilienhaus smart finanzieren
- Planung einer PV-Anlage
- Neues Haus
- Immobilienfinanzierung
- Installation einer Photovoltaikanlage
- Asbest erkennen und entfernen
- Gartenpflege im Frühling – worauf achten
- Sauna im Fokus - Wellness zuhause
- Erfolgreich vermieten
- Die perfekte Winterbekleidung
- Das Niedrigenergiehaus
- Der April und seine Stürme
- Architektonische Vielfalt
- Ökologisch und nachhaltig bauen
- Das perfekte Schlafzimmer
- Nachhaltige Energieversorgung
- Zukunftsorientiert bauen
- Nachhaltigkeit beim Hausbau
- Tiny Houses
- Wärmepumpen als nachhaltige Heizvariante
- Maßgeschneiderten Kleiderschrank
- Der richtige Baukredit
- Ratgeber für erfolgreichen Hausbau
- Haus als Altersvorsorge
Do-it-yourself Anleitungen
- Verlegeanleitung für Bodenbeläge und Parkett
- Bodenbeläge und Parkett reinigen und pflegen
- Malerarbeiten am Haus
- Garten Tipps
- Umzug und Reinigung

ᐅ Einfamilienhaus ~200qm mit Doppelgarage auf trapezförmigem Grundstück

Erstellt am: 05.05.23 15:45
M
Mucuc18
RomeoZwo06.05.23 01:02
Das Grundstück hat fast dieselbe Ausrichtung wie unseres, evtl. sogar ein paar Grad mehr "Ostdrall". Bei der Anordnung musst du dir bewußt sein, dass ab ca. 17 Uhr keine Sonne mehr auf der Terrasse ist. Wir haben zum Glück nach Nord Nord West genug Platz für eine zweite Terrasse gehabt, die gerade im Frühling und Herbst viel genutzt wird. Klar, das Grundstück ist klein (wobei für münchner Verhältnisse eher groß) und es wird schwieriger, aber ich würde mal schauen ob ihr mit dem Haus etwas weiter nach Süden kommt um die 3m Garten nördlich nutzbar zu machen.
K a t j a06.05.23 07:59
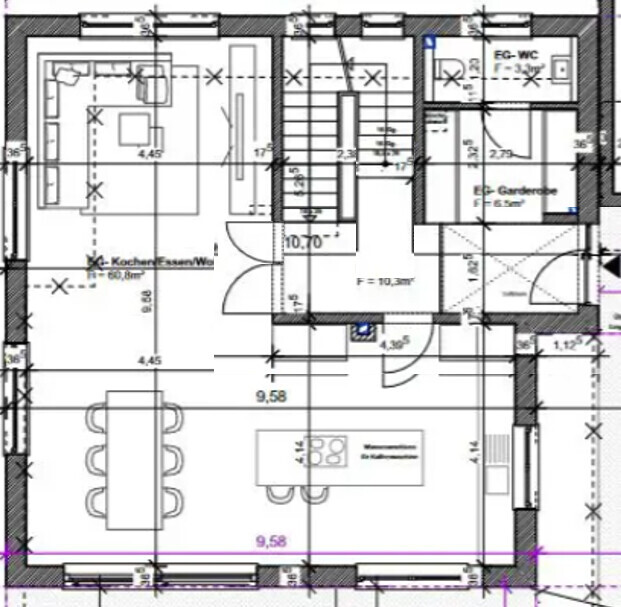
Ein schöner Entwurf. Auf den 2. Blick sind dann aber hier und da ein paar winzige Schönheitsfehler.
Am meisten würde mich die Anordnung der Küche stören. An der Insel steht man mit der Tür im Rücken und rennt dann jedes mal im Dreieck, wenn man was abspülen will. Da braucht es Rat vom Fachmann - auch ob der Schornstein inkl. Kamin dort sinnvoll ist.
Im OG würde mich wieder die Esse im Kinderzimmer stören. Neben Abwärme und mangelnder Stellfläche macht ein Schornstein auch immer ein bissl Geräusche. Deswegen würde ich ihn auf den Flur verbannen.
Bei dem anderen Kinderzimmer fehlen mir die Maße. Unter 3 m Tiefe würde ich nicht gehen, besser mehr. Eher tät ich dem Gast noch ein wenig Tiefe stehlen.
Die Tür im DG Schlafzimmer öffnet in die Schräge. Das mag ich nicht so. Andererseits sehe ich kaum attraktive Alternativen - da muss wohl ein Türstopper hin.
Im Außenbereich fehlen mir Abstellmöglichkeiten für Fahrräder und Co.
K a t j a06.05.23 08:04
Edit: einen Wäscheschacht würde ich bei 4 Etagen auf jeden Fall einplanen.
Y
ypg
06.05.23 11:06
Ich habe nochmal wegen der fehlenden Dachhöhe im Elternbereich geschaut:
Bad: man muss sich bewusst werden, dass man, auch wenn man nicht 1,90 groß ist, die Bodenfläche zwar optisch Fläche gibt, aber eben bei einer DN von 45 Grad nicht begehbar ist. Das Leben spielt sich in einem Streifen ab. Wenn man also zu zweit das Bad benutzt, dann gibt es Engstellen: der eine sitzt auf Toi, der andere erreicht dann nicht einfach so die Dusche. Da würde es Vorteile bringen, wenn man die Toi unter die Schräge bringt und abkoffert. Dachfenster mittig anpassen. Dann schiebt sich die Toi unter die Schräge, und die Fläche davor ist frei begehbar, ohne dass der Bewohner/Benutzer auf die Schräge achten muss.
Der Schacht, der vom Keller durch die Küche nach oben verläuft, im EG in die Garderobe verbannen, dann geht er durch die Bäder und ist im Dach irgendwo neben der Wanne zu finden. Ungefähr dort in meiner Skizze.
Die Gaube im Westen: die würde ich auch mittig anordnen.
Achtung: der geplante Kaminschlot nimmt Stellfläche weg.
Ich würde auch das Bett unter die Schräge setzen und auch hier abkoffern. Hier in die Raumdiagonale gehen.
schränke können offen und individuell in die Schräge gebaut werden.

Grundriss eines Innenraums mit Schrank, Schrankraum, Treppe, Zimmer 2 und 3 sowie Podest.
M
Mucuc18
06.05.23 22:33
RomeoZwo schrieb:

Das Grundstück hat fast dieselbe Ausrichtung wie unseres, evtl. sogar ein paar Grad mehr "Ostdrall". Bei der Anordnung musst du dir bewußt sein, dass ab ca. 17 Uhr keine Sonne mehr auf der Terrasse ist. Wir haben zum Glück nach Nord Nord West genug Platz für eine zweite Terrasse gehabt, die gerade im Frühling und Herbst viel genutzt wird. Klar, das Grundstück ist klein (wobei für münchner Verhältnisse eher groß) und es wird schwieriger, aber ich würde mal schauen ob ihr mit dem Haus etwas weiter nach Süden kommt um die 3m Garten nördlich nutzbar zu machen.
Danke für die Erfahrungswerte. Den Nord-West Teil bekommen wir leider nicht nutzbar, da ist ein recht hoch gemauerter Carport vom Nachbar Richtung Westen und Richtung Norden größerer Baumbestand...
Ggf. verbreitern wir die Terrasse noch einen halben Meter nach links, um noch 1-2 mehr Sonnenstrahlen am Abend abzufangen die es nicht um die Hausecke rum schaffen.
K a t j a schrieb:

Am meisten würde mich die Anordnung der Küche stören. An der Insel steht man mit der Tür im Rücken und rennt dann jedes mal im Dreieck, wenn man was abspülen will. Da braucht es Rat vom Fachmann - auch ob der Schornstein inkl. Kamin dort sinnvoll ist.
Im OG würde mich wieder die Esse im Kinderzimmer stören. Neben Abwärme und mangelnder Stellfläche macht ein Schornstein auch immer ein bissl Geräusche. Deswegen würde ich ihn auf den Flur verbannen.
Bei dem anderen Kinderzimmer fehlen mir die Maße. Unter 3 m Tiefe würde ich nicht gehen, besser mehr. Eher tät ich dem Gast noch ein wenig Tiefe stehlen.
Die Tür im DG Schlafzimmer öffnet in die Schräge. Das mag ich nicht so. Andererseits sehe ich kaum attraktive Alternativen - da muss wohl ein Türstopper hin.
Im Außenbereich fehlen mir Abstellmöglichkeiten für Fahrräder und Co.
Anordnung der Küche ist noch nicht wirklich entschieden, da müssen wir dann Mal in die Detailplanung gehen. Aber ja, sicherlich nicht ganz einfach, mit Kochen auf der Insel und Spüle am Fenster.
Ich glaube das was du als Kamin identifiziert hast, ist die Entwässerung aus dem DG-Bad. Der Kamin ist beim Eingang vom Wohnzimmer platziert und dementsprechend im Gästezimmer hinter der Türe im OG.
Kind 2 liegt die Tiefe grade so bei knappen 3m, könnte man durchaus überlegen ob man da noch ein paar cm vom Gast wegnimmt, gibts allerdings wieder eine Ecke in der bisher geraden Wand beim Gast. DG Schlafzimmertüre stört uns persönlich nicht. Fahrräder finden in der Doppelgarage Platz, zunächst steht da nur ein Auto drin.
K a t j a schrieb:

Edit: einen Wäscheschacht würde ich bei 4 Etagen auf jeden Fall einplanen.
Der ist wahrscheinlich auch der Bild-Auflösung oä. zum Opfer gefallen. Der befindet sich im EG bei der Garderobe und in OG/DG im Bad runter ins KG zum Hauswirtschaftsraum
ypg schrieb:

Bad: man muss sich bewusst werden, dass man, auch wenn man nicht 1,90 groß ist, die Bodenfläche zwar optisch Fläche gibt, aber eben bei einer DN von 45 Grad nicht begehbar ist. Das Leben spielt sich in einem Streifen ab. Wenn man also zu zweit das Bad benutzt, dann gibt es Engstellen: der eine sitzt auf Toi, der andere erreicht dann nicht einfach so die Dusche. Da würde es Vorteile bringen, wenn man die Toi unter die Schräge bringt und abkoffert. Dachfenster mittig anpassen. Dann schiebt sich die Toi unter die Schräge, und die Fläche davor ist frei begehbar, ohne dass der Bewohner/Benutzer auf die Schräge achten muss.
Danke erstmal fürs Aufzeichnen und die Ideen!
Das Bad benutzen wir ausschließlich alleine, außer vllt Mal zum Zähne putzen.
Nichtdestotrotz ist es vrmtl. etwas komfortabler wenn man geradeaus in die Dusche hechten kann ohne Kollisionen mit der Toilette zu befürchten.
Ich befürchte allerdings das geht sich mit dem Dachfenster nicht aus, der Rücksprung im Osten, und die dadurch entstehende Dachform, schränken die Fläche zu Replatzierung leider sehr deutlich ein. Wenn man es in der Höhe reduziert könnte es passen, dann wirds aber ggf. etwas dunkel im Bad...
Müssen wir uns Mal noch genauer anschauen, ob das vllt doch mit dem Fenster hinhaut - und abwägen, ob uns die fehlende Kopffreiheit bei der Toilette das Wert ist 🙂
ypg schrieb:

Die Gaube im Westen: die würde ich auch mittig anordnen.
Das nehmen wir in jedem Fall mit, ist mir gar nicht aufgefallen, dass diese nicht bündig mit der Wand abschließt. Dafür gibts ja eigentlich keinen Grund.
Der Gaube täte es gut etwas nach unten gerückt zu werden. Oder falls wir bei der Urprungs-variante bleiben, täte es der Wand (bzw. der brenzligen Situation im Schlafzimmer) auch gut etwas nach oben gerückt zu werden (wobei sie statisch dann nicht mehr direkt über der entsprechenden OG-Wand liegt)
ypg schrieb:

Ich würde auch das Bett unter die Schräge setzen und auch hier abkoffern. Hier in die Raumdiagonale gehen.
Das ist eine interessante Idee, werden wir Mal besprechen. Vorteil ist auf jeden Fall die Bewegungsfreiheit zum Bett. Nachteil wäre die Türe direkt vor dem Bett und der - durch die Abkofferung - etwas kleiner wirkende Raum.
H
hanghaus2023
07.05.23 11:52
Im EG würde ich gern der Küche etwas mehr Raum geben. Bei der Treppe im Keller und EG jeweils ein Stufe mehr im Osten und jeweils eine weniger im Westen. Somit kann die Wand um 26cm verschoben werden. Dann hat man in der Küche 4,4m und die Garderobe wird um 26 cm kleiner. Dann würde ich zum WZ eine Doppeltür aus Glas vorsehen. Der Flur bleibt gleich.


Grundriss eines Hauses mit Küche, Essbereich, Wohnzimmer, Treppe, WC und Garderobe.
küchedachfenstertüreterrassekamingarderobebettgrundstückschornsteinkinderzimmer