Einfamilienhaus, ~160m², Bauhausstil; Erster Entwurf nach unseren Wünschen

4,80 Stern(e) 43 Votes
Zuletzt aktualisiert 19.11.2025
Sie befinden sich auf der Seite 57 der Diskussion zum Thema: Einfamilienhaus, ~160m², Bauhausstil; Erster Entwurf nach unseren Wünschen
>> Zum 1. Beitrag <<

N

Notstrom

Die Insel ist blöd. Unter 2,50m Breite würde ich es sein lassen.

Streiche die Zeile mit den Unterschränken. Drehe die Insel und ziehe die Hochschränke bis ins Eck.

Im Endeffekt so wie du es sowieso auf einem deiner letzten Pläne hattest. Ganz simpel eine Hochschrankzeile an der Wand + Koch&Spülinsel
Danke für das konstruktive Feedback, damit können wir arbeiten ... warum min 2,50 wenn wir die Spüle doch gar nicht auf der Insel haben möchten?
 
I

ivenh0

Danke für das konstruktive Feedback, damit können wir arbeiten ... warum min 2,50 wenn wir die Spüle doch gar nicht auf der Insel haben möchten?
Das Kochfeld ist am Rand der Insel, da Feld die Abstellmöglichkeit daneben. Außerdem spritzt euch ständig Fett auf den Boden.

Dass ihr die Spüle nicht auf der Insel haben wollt wisst ihr jetzt noch nicht. Wir haben leider nur das Kochfeld auf der Insel, das ist nicht optimal. Konserven und Nudel abtropfen, Eier abschrecken etc. dabei wird jedes mal der Boden vertropft
 
N

ntsa86

Ich kann nur bestätigen beides auf der Insel zu haben ist sehr praktisch. Jedoch könnte ich mir es genauso praktisch vorstellen die Spüle direkt im Rücken zur Kochinsel zu haben.

Wir haben unser Kochfeld auch an den Rand gesetzt (18cm) und bisher kann ich damit sehr gut leben. Klar, wenn ich es gekonnt hätte, wären 25/30cm besser. Für uns funktioniert es dennoch.

Unsere Insel ist 2,82x1,2m.

Viel Glück
 
M

matte

Wir haben uns nach Rücksprache bewusst für eine Spül- und Arbeitsinsel entschieden. Das Kochfeld liegt im Rücken oder Spüle leicht versetzt am der Wand.

Nach nun 2 Jahren im Haus sind wir immer noch begeistert und würden das immer wieder einer reinen Kochinsel vorziehen.

Man verbringt so viel mehr Zeit beim Kochen für die Vorbereitung, als für den eigentlichen Akt am Kochfeld.
Werde daher nie die Fraktion verstehen, welche das als Argument für eine "gesellige" Kochinsel aufführen.


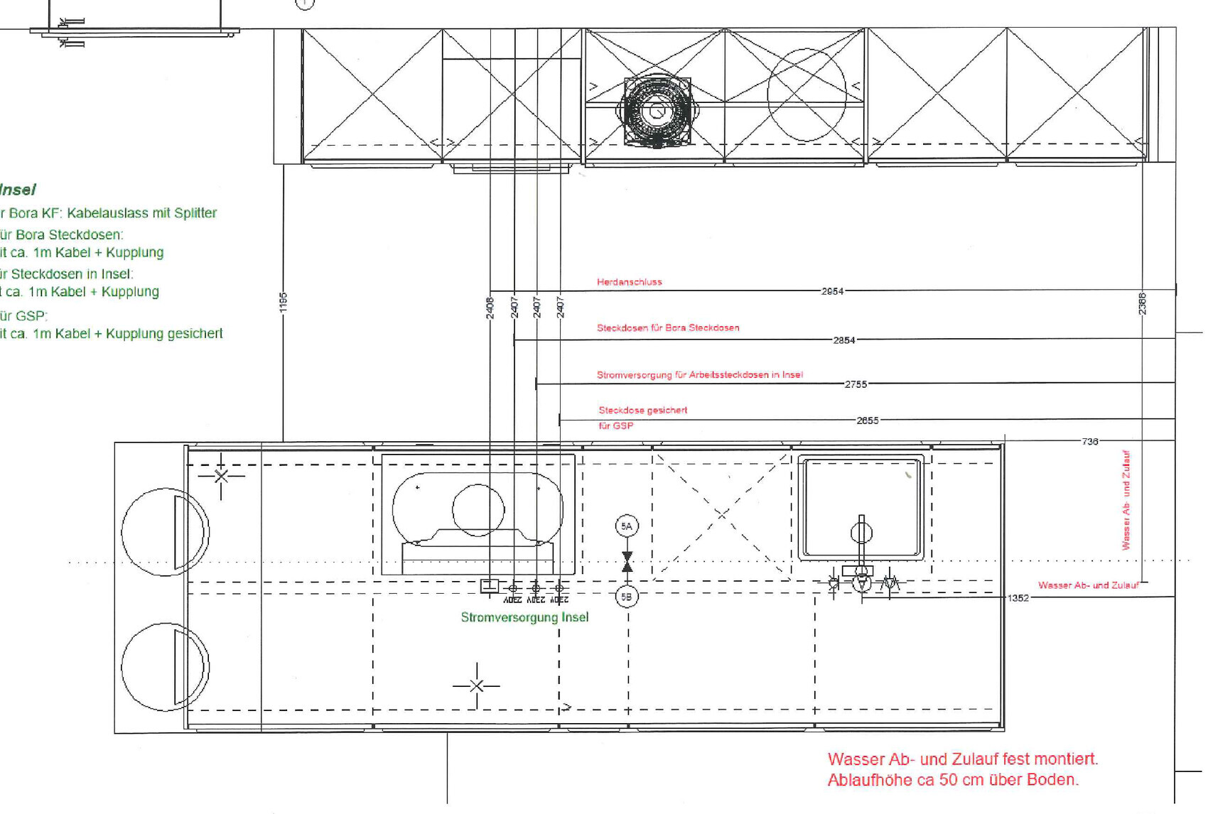
Grundriss einer Küche mit Maßen und Schränken.
 
Y

ypg

Man verbringt so viel mehr Zeit beim Kochen für die Vorbereitung, als für den eigentlichen Akt am Kochfeld.
aber genau beim Vorbereiten möchten viele eben nicht vor einer Wand oder Fenster, wo er eh nicht rausschaut, stehen, sondern in den Raum schauen. Bei einer Spüle an der Wand kann man sehr gut im ersten Schritt alles abwaschen, im nächsten (neben Herd) an der Insel in den Raum vorbereiten, um peu a peu den Kochtopf zu füllen.
Bei mir ist zb die Spüle der Ort, wo der Schmutz gesammelt wird. Wenn ich durch bin mit vorbereiten, dreh ich mich dem Schmutz zu und wähle zw Grundstück und Handspülen, zb Messer oder Bretter.
während des Vorbereitens ist also bei mir die Insel relativ aufgeräumt und übersichtlich mit dem zukünftigen Essen gefüllt, hinter mir das, was über ist.

Letztendlich kann nur der seine Küchenplsnung machen, der wirklich die Zeit dort effektiv verbringt.
 
Zuletzt aktualisiert 19.11.2025
Im Forum Grundrissplanung / Grundstücksplanung gibt es 2536 Themen mit insgesamt 87981 Beiträgen


Ähnliche Themen zu Einfamilienhaus, ~160m², Bauhausstil; Erster Entwurf nach unseren Wünschen
Nr.ErgebnisBeiträge
1Kochinsel in der Praxis 53
2Geschlossene Küche planen mit Durchgang zum Hauswirtschaftsraum 18
3Ikea Atlant-Siphon und Domsjö-Spüle 14
4Front für Spüle/Müll-Kombi 10
5Spüle und Herdplatten auf Kücheninsel oder konventionell verbauen? 19
6Flexibles Kochfeld / FlexIndusktion / Teppanyaki 16
7Höhe Kochfeld/Ofen + Länge Arbeitsplatten 16
8Kochfeld Elektro und Kohleherd in neuer Küche 32
9Bora Kochfeld defekt gewesen, weil falsch angeschlossen 14
10Bora Kochfeld zum 3. mal defekt, Erfahrungen? - Seite 248
11Induktionsherd vs. "normales" Kochfeld 31
12Kochfeld von Neff - eingelassen oder aufgesetzt? 10
13Kochinsel / Arbeitsinsel in der Küche - Welcher Dunstabzug? - Seite 349
14Schmutz- und Regenwasseranschluss - Angebot fair? - Seite 222
15Ovale Design-Badewanne aufgrund Schmutz dahinter leicht mobil machen? 71

Oben