S
Sparfuchs7722.07.19 09:29Hallo Hausbauforum
Ich bin neu hier und wir planen zu Zeit unser Haus mit einem Architekten. Wir sind aktuell 4 Köpfe, planen aber einen 5. zu bekommen. Daher auch 3 Kinderzimmer für das Haus.
Hier mal der Fragebogen:
Bebauungsplan/Einschränkungen
Größe des Grundstücks: 1250qm auf 25mx50m
Hang: nein
Grundflächenzahl: 0,4
Geschossflächenzahl: grad nicht im Kopf
Randbebauung: erlaubt aber möchte ich vermeiden
Anzahl Stellplatz: Doppel Carport + 2 Autos davor
Dachform: Satteldach
Stilrichtung: klassisch Einfamilienhaus
Ausrichtung: siehe Zeichnung
Anforderungen der Bauherren
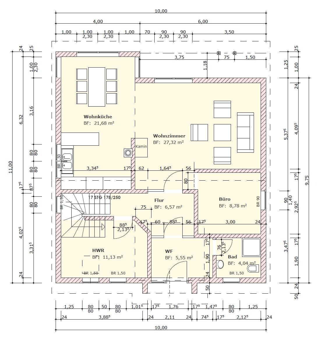
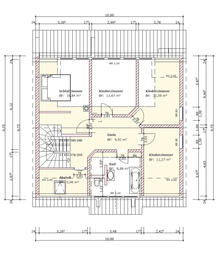
offenes Raumkonzept im EG, 4 Schlafzimmer im OG, Dachboden mit genügend Platz für Lager und Hobbyecke
Hausentwurf
Von wem stammt die Planung:
-Architekt
Was gefällt besonders? Warum?
EG: offene Küche und Wohnzimmer. Bürozugang vom Wohnzimmer aus. Direkter Zugang zur Terrasse.
OG: 3 Kinderzimmer unterbekommen, Schlafzimmer mit Ankleideecke. Die große Gaube. Die Treppe zum Dachboden. Da soll das Hobbyzimmer hin
Was gefällt nicht? Warum?
eigentlich nur der Aufgang zum OG. Mich stört noch etwas das ich so ,,gegen die Ecke,, laufe beim Hochkommen. Dafür suche ich Ideen um das etwas besser umzusetzen. Oder sind die Bedenken unbegründet?
Preisschätzung lt Architekt/Planer:
steht noch aus.
Persönliches Preislimit fürs Haus, inkl Ausstattung:
350T Euro
favorisierte Heiztechnik:
Gastherme, Solarthermie und Fußbodenheizung
Wenn Ihr verzichten müsst, auf welche Details/Ausbauten
-könnt Ihr verzichten:
wir haben bereits alles streichen lassen auf das wir verzichten können.
Warum ist der Entwurf so geworden, wie er jetzt ist? ZB
Wir sind mit unserem Wunschentwurf zum Architekten gegangen. Er hat sich unseren Grundriss als Vorlage genommen und einen Grundriss daraus gemacht, der uns noch besser gefällt. Einzig mit dem Treppenaufgang bin ich noch nicht 100% zufrieden.
Was ist die wichtigste/grundlegende Frage zum Grundriss in 130 Zeichen zusammengefasst?
Wie bereits geschrieben der Treppenaufgang zum OG brennt mir am meisten unter den Nägeln. Hier erhoffe ich mir vielleicht die eine oder andere Idee wie wir das besser umsetzen können und vielleicht auch Feedback zum Rest.


Süden ist ,,oben,, auf den Zeichnungen
Wenn noch Infos fehlen reiche ich die gern nach.
Viele Grüße
Ich bin neu hier und wir planen zu Zeit unser Haus mit einem Architekten. Wir sind aktuell 4 Köpfe, planen aber einen 5. zu bekommen. Daher auch 3 Kinderzimmer für das Haus.
Hier mal der Fragebogen:
Bebauungsplan/Einschränkungen
Größe des Grundstücks: 1250qm auf 25mx50m
Hang: nein
Grundflächenzahl: 0,4
Geschossflächenzahl: grad nicht im Kopf
Randbebauung: erlaubt aber möchte ich vermeiden
Anzahl Stellplatz: Doppel Carport + 2 Autos davor
Dachform: Satteldach
Stilrichtung: klassisch Einfamilienhaus
Ausrichtung: siehe Zeichnung
Anforderungen der Bauherren
offenes Raumkonzept im EG, 4 Schlafzimmer im OG, Dachboden mit genügend Platz für Lager und Hobbyecke
Hausentwurf
Von wem stammt die Planung:
-Architekt
Was gefällt besonders? Warum?
EG: offene Küche und Wohnzimmer. Bürozugang vom Wohnzimmer aus. Direkter Zugang zur Terrasse.
OG: 3 Kinderzimmer unterbekommen, Schlafzimmer mit Ankleideecke. Die große Gaube. Die Treppe zum Dachboden. Da soll das Hobbyzimmer hin
Was gefällt nicht? Warum?
eigentlich nur der Aufgang zum OG. Mich stört noch etwas das ich so ,,gegen die Ecke,, laufe beim Hochkommen. Dafür suche ich Ideen um das etwas besser umzusetzen. Oder sind die Bedenken unbegründet?
Preisschätzung lt Architekt/Planer:
steht noch aus.
Persönliches Preislimit fürs Haus, inkl Ausstattung:
350T Euro
favorisierte Heiztechnik:
Gastherme, Solarthermie und Fußbodenheizung
Wenn Ihr verzichten müsst, auf welche Details/Ausbauten
-könnt Ihr verzichten:
wir haben bereits alles streichen lassen auf das wir verzichten können.
Warum ist der Entwurf so geworden, wie er jetzt ist? ZB
Wir sind mit unserem Wunschentwurf zum Architekten gegangen. Er hat sich unseren Grundriss als Vorlage genommen und einen Grundriss daraus gemacht, der uns noch besser gefällt. Einzig mit dem Treppenaufgang bin ich noch nicht 100% zufrieden.
Was ist die wichtigste/grundlegende Frage zum Grundriss in 130 Zeichen zusammengefasst?
Wie bereits geschrieben der Treppenaufgang zum OG brennt mir am meisten unter den Nägeln. Hier erhoffe ich mir vielleicht die eine oder andere Idee wie wir das besser umsetzen können und vielleicht auch Feedback zum Rest.
Süden ist ,,oben,, auf den Zeichnungen
Wenn noch Infos fehlen reiche ich die gern nach.
Viele Grüße
Hallo
Was ist in dem Budget alles dabei?
OG
Ich würde WA/Trockner in den Abstellraum einplanen. Dort fällt eure Wäsche und es entspannt den Haustechnikraum
Schlafzimmer
Reicht euch die Schrankfläche? Ihr habt kaum Schrank der 2m hoch ist
EG stört mich der Zugang Büro und das Schräge Eck in der Diele. Eine Lösung fällt mir nicht ein.
Zeichnet eure vorhanden bzw. gewünschten möbel im Maßstab ein.
Was ist in dem Budget alles dabei?
OG
Ich würde WA/Trockner in den Abstellraum einplanen. Dort fällt eure Wäsche und es entspannt den Haustechnikraum
Schlafzimmer
Reicht euch die Schrankfläche? Ihr habt kaum Schrank der 2m hoch ist
EG stört mich der Zugang Büro und das Schräge Eck in der Diele. Eine Lösung fällt mir nicht ein.
Zeichnet eure vorhanden bzw. gewünschten möbel im Maßstab ein.
Mmh,
ich würde die Treppenposition auch überdenken. Vermutlich würde ich beide übereinander legen und dafür die Küche versetzen. Oder ganz anders planen.
Der Abstellraum im OG liegt ja nahezu komplett unter der 2m Linie - wie soll man den nutzen? Verschenkter Raum, den Du mitbezahlst. Wenn Du nen Schrank reinstellst, kannste nicht mehr laufen.
Der Zugang zur Küche durch die Chillecke ist auch nicht so der Hit. Da kann man schlecht auf dem Sofa lümmeln, wenn die Kinderfreunde sich nen Saft aus dem Kühlschrank holen wollen.
Grundstück und Himmelsrichtungen wären noch gut zu wissen.
ich würde die Treppenposition auch überdenken. Vermutlich würde ich beide übereinander legen und dafür die Küche versetzen. Oder ganz anders planen.
Der Abstellraum im OG liegt ja nahezu komplett unter der 2m Linie - wie soll man den nutzen? Verschenkter Raum, den Du mitbezahlst. Wenn Du nen Schrank reinstellst, kannste nicht mehr laufen.
Der Zugang zur Küche durch die Chillecke ist auch nicht so der Hit. Da kann man schlecht auf dem Sofa lümmeln, wenn die Kinderfreunde sich nen Saft aus dem Kühlschrank holen wollen.
Grundstück und Himmelsrichtungen wären noch gut zu wissen.
S
Sparfuchs7722.07.19 10:19Im Budget nur Haus.
EG: den Zugang Büro wollten wir so haben damit meine Frau wenn sie da mal Papier Kram macht oder bügelt, noch im Wohnbereich integriert ist. Im Og wäre sie so ab vom Schuss.
Die Schräge in der Diele haben wir rein gemacht damit die Diele etwas offener, entspannter wird.
OG: die Idee mit Waschmaschine und Trockner oben ist gut. Das nehm ich schon mal mit in meine Liste auf. Danke dir.
Schrankfläche: da war unsere letzte Idee den Abstellraum als begehbaren Kleiderschrank zu nutzen.
@kaho674 das Haus steht genau Nord- Süd. Auf den Zeichnungen ist ,,oben,, Süden. Die Strasse verläuft im Norden von Ost-West.
Die offene Wohnküche gefällt uns eigentlich grade gut und unterstützt unser ,,Familienkonzept,,.
Die Treppen finden wir eigentlich nich übel. Wenn wir die Treppe von EG nach OG spiegeln ragt die Schräge dann in die Küche. Das ist auch wieder nicht optimal.. Mhm schwierig.
EG: den Zugang Büro wollten wir so haben damit meine Frau wenn sie da mal Papier Kram macht oder bügelt, noch im Wohnbereich integriert ist. Im Og wäre sie so ab vom Schuss.
Die Schräge in der Diele haben wir rein gemacht damit die Diele etwas offener, entspannter wird.
OG: die Idee mit Waschmaschine und Trockner oben ist gut. Das nehm ich schon mal mit in meine Liste auf. Danke dir.
Schrankfläche: da war unsere letzte Idee den Abstellraum als begehbaren Kleiderschrank zu nutzen.
@kaho674 das Haus steht genau Nord- Süd. Auf den Zeichnungen ist ,,oben,, Süden. Die Strasse verläuft im Norden von Ost-West.
Die offene Wohnküche gefällt uns eigentlich grade gut und unterstützt unser ,,Familienkonzept,,.
Die Treppen finden wir eigentlich nich übel. Wenn wir die Treppe von EG nach OG spiegeln ragt die Schräge dann in die Küche. Das ist auch wieder nicht optimal.. Mhm schwierig.
Im OG könntet Ihr statt dieser Eckwand eine runde Wand setzen. Ist mit Holzständerwerk möglich und sollte nicht die Welt kosten. Löst aber den Ärger etwas, weil es stylischer ist. In der Dusche könntet ihr diesen Bereich mit Mosaikfliesen machen.
Oder/und ihr verzichtet auf das T, die Toi kann bestens neben die Wanne.
Achtet im Windfang darauf, dass Ihr einen vernünftigen Garderobenschrank stellen könnt. Ich würde deshalb auf das Seitenfenster verzichten.
Oder/und ihr verzichtet auf das T, die Toi kann bestens neben die Wanne.
Achtet im Windfang darauf, dass Ihr einen vernünftigen Garderobenschrank stellen könnt. Ich würde deshalb auf das Seitenfenster verzichten.
S
Sparfuchs7722.07.19 10:27Ach ja. Die Seitenfenster an den Türen haben wir komplett gestrichen gestern. Wir haben nur noch keine Neue Zeichnung. Sorry, das hätte ich dazu schreiben müssen!
Statt der Glaselemente haben wir jetzt massive Mauer und machen dafür die Türen mit Glaselementen. Im Windfang haben wir das Fenster aus genau diesem Grund entfernt
Statt der Glaselemente haben wir jetzt massive Mauer und machen dafür die Türen mit Glaselementen. Im Windfang haben wir das Fenster aus genau diesem Grund entfernt
Ähnliche Themen