Einfamilienhaus ~ 150qm für 5 Köpfe

4,80 Stern(e) 17 Votes
Zuletzt aktualisiert 20.11.2025
Sie befinden sich auf der Seite 28 der Diskussion zum Thema: Einfamilienhaus ~ 150qm für 5 Köpfe
>> Zum 1. Beitrag <<

S

Sparfuchs77

Hallo alle zusammen,

Ich bin euch ja noch einiges an Infos schuldig. Nach unserem letzten Architekten Termin ging es Schlag auf Schlag. Wir waren mit den Grundrissen sehr zufrieden, haben das Grundstück gekauft und dann ging es auch schon los. Da wir alle Gewerke selber organisieren, waren wir auch entsprechend beschäftigt. So beschäftigt, das ich das Forum schlicht vergessen habe .

Hierfür möchte ich mich bei allen die hier Feedback gepostet haben entschuldigen. Vor allem bei @kaho674 . ops:

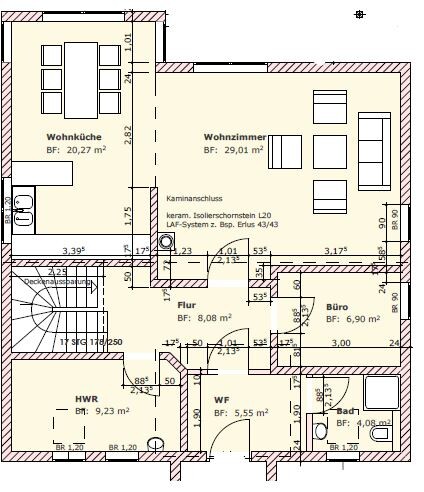
hier nun die geschuldeten Grundrisse.

2D-Grundriss eines Hauses mit Wohnzimmer, Küche, Flur, Büro, Bad und HWR


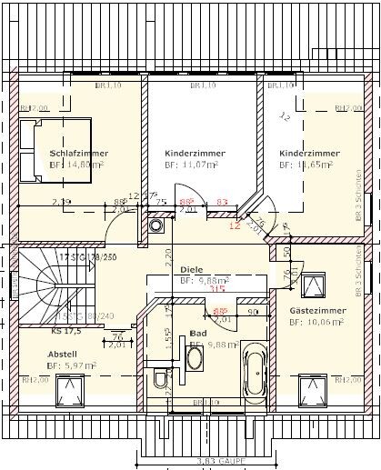
2D Grundriss eines Hauses mit Schlafzimmer, Kinderzimmer, Bad und Diele



Schnitt durch ein zweigeschossiges Haus mit Dachstuhl, Fenstern und Treppe.


Was ist seit dem passiert?:

Wir haben im Dezember angefangen zu bauen und aktuell ist der Rohbau fertig, das Dach ist dicht und die Fenster kommen Ende der Woche rein.

Dem einen oder anderen hat der Grundriss ja nicht so gefallen wie er war. Das ist auch völlig in Ordnung.

Wir haben sämtliches Feedback aus dem Thread im Familienrat besprochen und den Architekten dann darauf angesetzt. Wir sind mit dem Ergebnis sehr glücklich. Seit meine Frau das Ergebnis das erste mal live gesehen hat, kann sie den Einzug kaum noch erwarten.

- Der offene Wohn/Ess Bereich gefällt uns sehr gut und wird gut zu uns passen. Der Weg durch das Wohnzimmer um in die Küche zu kommen, ist für uns ok.

- Schornstein wurde etwas verschoben

- Die Treppen haben wir, wie hier vorgeschlagen, drehen lassen. Der Vorschlag war Gold wert und gefällt ausgesprochen gut! Damit kommt man oben grade in den Flur rein. Der Flur oben ist fast ein bisschen groß, wirkt aber klasse.

- Unter die Treppe kommt ein kleiner Abstellraum

- Die Abstellkammer oben ist jetzt etwas größer geworden und besser nutzbar

- Die Kinderzimmer sind klein, Ja, haben aber Südseite, schönste Aussicht keine Dachschrägen und werden ausreichen.

Die Gauben ermöglichen einen sehr großen Dachboden. Den bauen wir als kleinen Aufenthaltsraum aus (Sofa, TV). Soll dann dienen als:

-Hobbyzimmer für Papa (Zocker PC, VR spielen, Retro Spiele), mal mit Kumpels ein Bierchen trinken

- Rückzugsort für die Kids wenn die mal Freunde da haben und dann nicht das Wohnzimmer belagert werden muss. Das gleicht die kleineren Kinderzimmer etwas aus. Da oben kann man dann auch mal mit 5 oder 6 Freunden sitzen. Da wäre selbst ein größeres Kinderzimmer eng.

Im Hauptdachbereich (45°) kann man mit 1.80cm Größe auf 2,5m Breite stehen. Wo die Gauben sind auf über 4m Breite.


Holz-Dachstuhlrahmen über Steinfundament, mit zentralem Kaminrohr im Dachstuhl.


Mit dem Budget sind wir aktuell ca +-0 im Plan. Dach ist teurer als geplant geworden, Rohbau im Plan und Dachstuhl + Fenster etwas günstiger.

Wenn euch das interessiert, halte ich euch weiter auf dem Laufenden (wenn ich mal Zeit zum posten finde ^^) Aber zumindest die Grundrissfrage kann man damit als abgeschlossen betrachten, das war ich (moralisch) euch schuldig.

Liebe Grüße!
 
J

Joedreck

Wie ist denn die Treppe nach oben geplant? Und vll oben eine kleine Nische abtrennen und ein Mini WC einbauen? Kaltwasser und Abwasser hochziehen ist ja nun nicht so umständlich
 
S

Sparfuchs77

Die Treppen liegen übereinander vom EG bis ins DG. Ja WC wäre eine Option (hatte ich schon Mal überlegt), aber ist auf der Nordseite (Grundriss Planunten) nicht wirklich umsetzbar. Planoben müsste die Entwässerung durch die Schlafzimmer erfolgen, was auch sehr unattraktiv ist.

Ich sag mal: 3m zur Treppe, und 3m von Treppe bis ins OG WC ist mMn zumutbar. Aber danke dir für den Input!
 
S

Sparfuchs77

Eine Frage die zur Grundrissplanung passt hätte ich allerdings doch noch, das wir zeitnah mit der Elektrik anfangen. Steckdosen und Netzwerk / TV ist soweit geplant. Licht mache ich mir noch so meine Gedanken. Vor allem der Wohnzimmer / Essbereich macht mir noch zu Schaffen.

Habt ihr da vielleicht Ideen? Ich dachte an eine Lampe mittig im Wohnzimmer, eine an der Wand bei den Balkontüren (gegenüber Schornstein) und eine über dem Esstisch. Aber irgendwie will mir das noch nicht so final gefallen.
 
Zuletzt aktualisiert 20.11.2025
Im Forum Grundrissplanung / Grundstücksplanung gibt es 2535 Themen mit insgesamt 87977 Beiträgen


Ähnliche Themen zu Einfamilienhaus ~ 150qm für 5 Köpfe
Nr.ErgebnisBeiträge
1Gauben Abstand Außenwand oder Dach - Seite 216
2Wohnzimmer: Wie Sofa, TV und Schränke stellen? - Seite 432
3Große Gauben oder hoher Kniestock? 33
4Nicht-bodentiefe Fenster im Wohnzimmer unmodern? Welche Vorhänge? - Seite 217
5Grundriss "Haus für zwischendurch" mit 2-3,5 Personen 17
6Umbau Kinderzimmer - Fenster in zwei Fenster aufteilen? 20
7Neubau Rohbau Auswahl: Unternehmen oder Architekten nehmen? 52
8Einfamilienhaus (2Etagen+Wohn-Keller+ausgebautes Dach) etwa 200qm -Änderungen - Seite 13162
9Dunstabzug / Dach oder Wand 14
10 Küchenplanung mit tiefen Fenster - Seite 643
11Fenster / Türen / Garderobe 13
12Grundrissplanung Hanghaus mit 5 Kinderzimmer - Seite 11370
13Schallschutz Kinderzimmer 12
14OG Stadtville optimieren. Fenster Bodentief 104
15Entwurf Einfamilienhaus mit 3 Kinderzimmer, Keller und Grenzbebauung - Seite 232
16Wunschliste für den Architekten 32
17Haus von 1988 sanieren - Fenster und Haustüre? 15
18Grundriss Einfamilienhaus geplant, Fenster gefallen uns - Seite 343
19Kinderzimmer in Dachgeschoss zu klein geplant? - Seite 633
20Grundriss-Aufteilung OG - Elternbereich / 2 Kinderzimmer mit Bad 26

Oben