ᐅ Einfamilienhaus 146qm freistehend mit Walmdach
Erstellt am: 25.02.20 13:43
Guten Abend,
Wir würden uns sehr über ein wenig Input zu unserem geplanten Neubau freuen.
Geplant ist ein freistehendes Einfamilienhaus mit 146qm
Wir sind eine 4köpfige Familie mit kleinem Hund. Ein 3. Kind ist denkbar. Grundstück ist bereits gekauft (variabel finanziert)
Bebauungsplan/Einschränkungen. Baugesetzbuch 34 (Kein Paragraphzeichen auf'm Handy). Der Nachbar hat Grenz(über)bebaut. Auf der anderen Grenze steht eine Garage. Wir müssen laut Bauamt 5m Abstand zum Nachbarhaus und 3m zur Garage einhalten. Und an die Straße bauen (1-2m zurück ist OK) Sonst keine Vorgaben.
Größe des Grundstücks
Kataster:561qm, Vermesser: 558qm
Hang ja, es geht 80cm-1m direkt von der Straße runter, dann die ersten 5 Meter ziemlich steil und an dann etwas flacher. Ist auf der Vermessungskarte aber auch eingetragen
Grundflächenzahl -
Geschossflächenzahl -
Baufenster, Baulinie und -grenze 3m zum Ost-Nachbar, 5m zum Westnachbarn. Muss an die Straße gebaut werden. Dürfen 1-2m zurück um Abstützmaßnahmen zu verhindern
Randbebauung möglich an Nachbarhaus aber weder von uns noch vom Nachbar gewünscht (auch wenn er quasi keine Wahl hätte)
Anzahl Stellplatz wir wollen mind. Einen generieren. Aber alle parken an der Straße, das wäre kein Problem.
Geschossigkeit "2" an einer Wand eingebaut
Dachform Walmdach
Stilrichtung
Ausrichtung NW nach SO
Maximale Höhen/Begrenzungen
weitere Vorgaben
Anforderungen der Bauherren
Stilrichtung, Dachform, Gebäudetyp: 2 Vollgeschosse
Keller, Geschosse
Anzahl der Personen, Alter 4 Personen (33, 27, 3, 1,5)
Raumbedarf im EG, OG EG: Küche/Ess-/Wohnzimmer, Bad mit Dusche, Hauswirtschaftsraum, ggf. Speisekammer/Abstellkammer
Büro: Familiennutzung oder Homeoffice? -
Schlafgäste pro Jahr: 2-3
offene oder geschlossene Architektur: im EG offen
offene Küche, Kochinsel: beides ja
Anzahl Essplätze: 8 (Echtholztisch mit 1m x2m soll mitziehen)
Kamin nein
Musik/Stereowand nein
Balkon, Dachterrasse nein
Garage, Carport entweder Doppelstockgarage oder 2 Garagen gestapelt oder aufgeschütteter Stellplatz
Nutzgarten, Treibhaus das wäre ein Träumchen.
weitere Wünsche/Besonderheiten/Tagesablauf, gern auch Begründungen, warum dieses oder das nicht sein soll: wir benötigen im Elternschlafzimmer aktuell noch ein 3,2m auf 2m(1,4x2m + 1,8x2m) Bett. Am besten mit 2 Seiten an der Wand. Da das aber kein Zustand auf Dauer ist muss dafür kein großartig Platz drum herum sein. Wäre auch nicht schlimm wenn es komplett an den Wänden steht, Hauptsache es passt rein
Hausentwurf
Von wem stammt die Planung: Architekt von GU
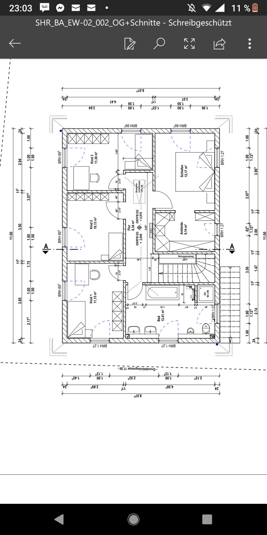
Was gefällt besonders? Warum? Dass 3Kinderzimmmer über 10qm machbar sind und tatsächlich noch eine Ankleide für das Elternzimmer generiert wurde. Hier werden auch Schuhe die gerade keine Saison haben gelagert. Eine Tür nach außen in den Flur wäre vllt ganz cool. Dafür müsste aber der Heizkreisverteiler weichen. Ich weiß nicht ob das geht.
?!
Was gefällt nicht? Warum?
Dass das Bad im 2. Größten Zimmer ist. Wir haben schon mal in den Entwürfen unsere eigenen Ideen reingekritzelt. Die poste ich Mal mit.
Dass im EG das Bad größee als der Hauswirtschaftsraum ist, dass das Bad insgesamt so groß ist. Und dass das Luft-Wasser-Wärmepumpe Gerät zur Straße steht. Der Hauswirtschaftsraum sollte auch etwas größer sein Denken wir.
Die Treppe zum Eingang, aber das ist der Kompromiss. Wir könnten die Etagen tauschen, aber die Küche MUSS für uns auf einer Ebene mit dem Garten sein. Das ist so das Wichtigste für uns. Für Eingang oben, da wird es dann zu eng und jeder würde erst mal in den "Privatbereich".
Preisschätzung lt Architekt/Planer: ca 240.000€ ohne Baunebenkosten. Diese belaufen sich lt. Kalkulation auf 75.000€.(ohne Ausstattung, inkl. Außengelände, wobei da erst mal nur für dass es nutzbar wird). Bodenproben wurden genommen und wir warten auf die Ergebnisse. Nachbarn konnten leider keine Auskunft geben. Für Mehrgründung wurden 25.000€ einkalkuliert meine ich. (TuC)
Persönliches Preislimit fürs Haus, inkl Ausstattung: 350T. Das wollen wir aber definitiv nichtschon von vornherein planen.
favorisierte Heiztechnik: Luft-Wasser-Wärmepumpe mit Fußbodenheizung. Leerrohr für Photovoltaik und Zählerplatz ist im Hauspreis bereits berücksichtigt.
Wenn Ihr verzichten müsst, auf welche Details/Ausbauten
-könnt Ihr verzichten: Ankleide
-könnt Ihr nicht verzichten: Küche mit Sicht in den Garten (Kleinkinder )
Warum ist der Entwurf so geworden, wie er jetzt ist?
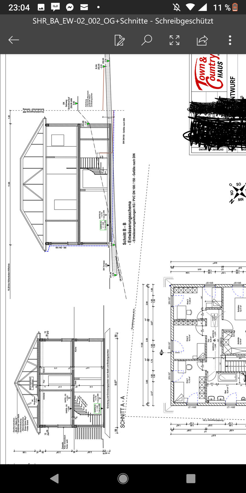
Durch die Begrenzung der Außenmaße, durch die Standardgrundrisse von TuC, meinen Vorentwurf und unseren Wünschen. Und durch das Grundstück. (80cm unter Straßenniveau)
Entsprechende/Welche Wünsche wurden vom Architekten umgesetzt?
Er hat alle im Termin geäußerten Wünsche berücksichtigt.
Was macht ihn in Euren Augen besonders gut oder schlecht?
Wir finden es schon sehr gut. Aber und fehlt etwas die Vorstellungskraft. Die Geschichte mit den Bädern wollen wir aber definitiv ändern.
Was ist die wichtigste/grundlegende Frage zum Grundriss in 130 Zeichen zusammengefasst?
Gibt es aus Sicht der erfahrenen Bauherren hier weitere grobe Dinge zu beachten?
Hat jmd eine Idee/Erfahrung bzgl Stellplatz? (Dachten an das grenzbebaute Haus des Nachbarn den Stellplat
Ich sag schon mal danke!







Wir würden uns sehr über ein wenig Input zu unserem geplanten Neubau freuen.
Geplant ist ein freistehendes Einfamilienhaus mit 146qm
Wir sind eine 4köpfige Familie mit kleinem Hund. Ein 3. Kind ist denkbar. Grundstück ist bereits gekauft (variabel finanziert)
Bebauungsplan/Einschränkungen. Baugesetzbuch 34 (Kein Paragraphzeichen auf'm Handy). Der Nachbar hat Grenz(über)bebaut. Auf der anderen Grenze steht eine Garage. Wir müssen laut Bauamt 5m Abstand zum Nachbarhaus und 3m zur Garage einhalten. Und an die Straße bauen (1-2m zurück ist OK) Sonst keine Vorgaben.
Größe des Grundstücks
Kataster:561qm, Vermesser: 558qm
Hang ja, es geht 80cm-1m direkt von der Straße runter, dann die ersten 5 Meter ziemlich steil und an dann etwas flacher. Ist auf der Vermessungskarte aber auch eingetragen
Grundflächenzahl -
Geschossflächenzahl -
Baufenster, Baulinie und -grenze 3m zum Ost-Nachbar, 5m zum Westnachbarn. Muss an die Straße gebaut werden. Dürfen 1-2m zurück um Abstützmaßnahmen zu verhindern
Randbebauung möglich an Nachbarhaus aber weder von uns noch vom Nachbar gewünscht (auch wenn er quasi keine Wahl hätte)
Anzahl Stellplatz wir wollen mind. Einen generieren. Aber alle parken an der Straße, das wäre kein Problem.
Geschossigkeit "2" an einer Wand eingebaut
Dachform Walmdach
Stilrichtung
Ausrichtung NW nach SO
Maximale Höhen/Begrenzungen
weitere Vorgaben
Anforderungen der Bauherren
Stilrichtung, Dachform, Gebäudetyp: 2 Vollgeschosse
Keller, Geschosse
Anzahl der Personen, Alter 4 Personen (33, 27, 3, 1,5)
Raumbedarf im EG, OG EG: Küche/Ess-/Wohnzimmer, Bad mit Dusche, Hauswirtschaftsraum, ggf. Speisekammer/Abstellkammer
Büro: Familiennutzung oder Homeoffice? -
Schlafgäste pro Jahr: 2-3
offene oder geschlossene Architektur: im EG offen
offene Küche, Kochinsel: beides ja
Anzahl Essplätze: 8 (Echtholztisch mit 1m x2m soll mitziehen)
Kamin nein
Musik/Stereowand nein
Balkon, Dachterrasse nein
Garage, Carport entweder Doppelstockgarage oder 2 Garagen gestapelt oder aufgeschütteter Stellplatz
Nutzgarten, Treibhaus das wäre ein Träumchen.
weitere Wünsche/Besonderheiten/Tagesablauf, gern auch Begründungen, warum dieses oder das nicht sein soll: wir benötigen im Elternschlafzimmer aktuell noch ein 3,2m auf 2m(1,4x2m + 1,8x2m) Bett. Am besten mit 2 Seiten an der Wand. Da das aber kein Zustand auf Dauer ist muss dafür kein großartig Platz drum herum sein. Wäre auch nicht schlimm wenn es komplett an den Wänden steht, Hauptsache es passt rein
Hausentwurf
Von wem stammt die Planung: Architekt von GU
Was gefällt besonders? Warum? Dass 3Kinderzimmmer über 10qm machbar sind und tatsächlich noch eine Ankleide für das Elternzimmer generiert wurde. Hier werden auch Schuhe die gerade keine Saison haben gelagert. Eine Tür nach außen in den Flur wäre vllt ganz cool. Dafür müsste aber der Heizkreisverteiler weichen. Ich weiß nicht ob das geht.
?!
Was gefällt nicht? Warum?
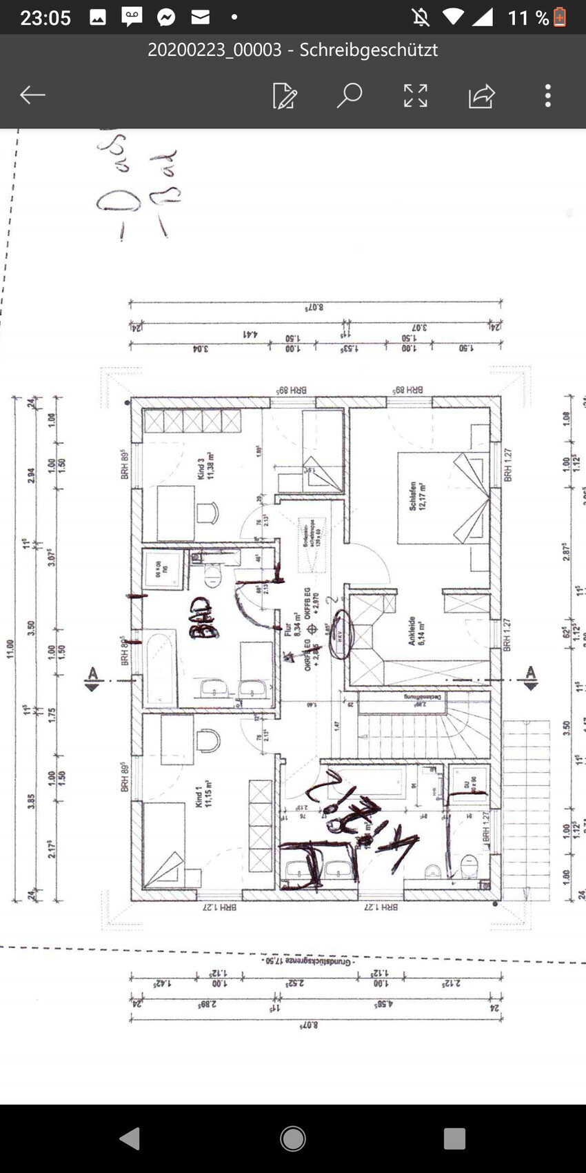
Dass das Bad im 2. Größten Zimmer ist. Wir haben schon mal in den Entwürfen unsere eigenen Ideen reingekritzelt. Die poste ich Mal mit.
Dass im EG das Bad größee als der Hauswirtschaftsraum ist, dass das Bad insgesamt so groß ist. Und dass das Luft-Wasser-Wärmepumpe Gerät zur Straße steht. Der Hauswirtschaftsraum sollte auch etwas größer sein Denken wir.
Die Treppe zum Eingang, aber das ist der Kompromiss. Wir könnten die Etagen tauschen, aber die Küche MUSS für uns auf einer Ebene mit dem Garten sein. Das ist so das Wichtigste für uns. Für Eingang oben, da wird es dann zu eng und jeder würde erst mal in den "Privatbereich".
Preisschätzung lt Architekt/Planer: ca 240.000€ ohne Baunebenkosten. Diese belaufen sich lt. Kalkulation auf 75.000€.(ohne Ausstattung, inkl. Außengelände, wobei da erst mal nur für dass es nutzbar wird). Bodenproben wurden genommen und wir warten auf die Ergebnisse. Nachbarn konnten leider keine Auskunft geben. Für Mehrgründung wurden 25.000€ einkalkuliert meine ich. (TuC)
Persönliches Preislimit fürs Haus, inkl Ausstattung: 350T. Das wollen wir aber definitiv nichtschon von vornherein planen.
favorisierte Heiztechnik: Luft-Wasser-Wärmepumpe mit Fußbodenheizung. Leerrohr für Photovoltaik und Zählerplatz ist im Hauspreis bereits berücksichtigt.
Wenn Ihr verzichten müsst, auf welche Details/Ausbauten
-könnt Ihr verzichten: Ankleide
-könnt Ihr nicht verzichten: Küche mit Sicht in den Garten (Kleinkinder )
Warum ist der Entwurf so geworden, wie er jetzt ist?
Durch die Begrenzung der Außenmaße, durch die Standardgrundrisse von TuC, meinen Vorentwurf und unseren Wünschen. Und durch das Grundstück. (80cm unter Straßenniveau)
Entsprechende/Welche Wünsche wurden vom Architekten umgesetzt?
Er hat alle im Termin geäußerten Wünsche berücksichtigt.
Was macht ihn in Euren Augen besonders gut oder schlecht?
Wir finden es schon sehr gut. Aber und fehlt etwas die Vorstellungskraft. Die Geschichte mit den Bädern wollen wir aber definitiv ändern.
Was ist die wichtigste/grundlegende Frage zum Grundriss in 130 Zeichen zusammengefasst?
Gibt es aus Sicht der erfahrenen Bauherren hier weitere grobe Dinge zu beachten?
Hat jmd eine Idee/Erfahrung bzgl Stellplatz? (Dachten an das grenzbebaute Haus des Nachbarn den Stellplat
Ich sag schon mal danke!
Find ich ganz ok.
Bei Deinen Änderungen ist unten jetzt noch ein Duschbad drin? Das sieht etwas wirr aus, sorry.
Die künstliche Flurverlängerung oben würde ich radikal wegschneiden. Ihr habt nichts zu verschenken und die Kinderzimmer brauchen den Platz.

Mit dem Bad in der Mitte solltest Du bedenken, dass dann immer 2 Kinder direkt vom Lärm betroffen sind. Ich finde die Aufteilung auch besser, aber die Wände sollten super isoliert werden. Würde die Wand von K1 noch verschieben, so dass es auch 12m² hat.
Bei Deinen Änderungen ist unten jetzt noch ein Duschbad drin? Das sieht etwas wirr aus, sorry.
Die künstliche Flurverlängerung oben würde ich radikal wegschneiden. Ihr habt nichts zu verschenken und die Kinderzimmer brauchen den Platz.
Mit dem Bad in der Mitte solltest Du bedenken, dass dann immer 2 Kinder direkt vom Lärm betroffen sind. Ich finde die Aufteilung auch besser, aber die Wände sollten super isoliert werden. Würde die Wand von K1 noch verschieben, so dass es auch 12m² hat.
@Curly : Die Deckenhöhe werden wir uns morgen mal ausmessen. Meine Eltern haben 2,52m. Das kam mir nie sonderlich niedrig vor.
Wir sind glücklicherweise zwei kleine/normal große Frauen. Aber fragen den Architekten Mal was eine Steinreihe überall mehr kostet.
@kaho674 : danke dir! Ja stimmt diese Ecke ist unvorteilhaft. Kann man diese Bodeneinschubtreppen verschieben? Das schreibe ich auf jeden Fall auf die Frage-Liste.
Ja ich konnte das Original nicht mehr finden. Nein das war der Versuch eine Speisekammer einzuzeichnen . Quasi zwischen Hauswirtschaftsraum und Bad und dann in die Nische im Bad eine 90x90 Dusche.
Das wäre total toll alle auf 12qm zu bekommen! Wir brauchen dann auch kein ultra großes Bad. Hätten ja noch ein Ausweichbad mit Dusche unten.
Wir sind glücklicherweise zwei kleine/normal große Frauen. Aber fragen den Architekten Mal was eine Steinreihe überall mehr kostet.
@kaho674 : danke dir! Ja stimmt diese Ecke ist unvorteilhaft. Kann man diese Bodeneinschubtreppen verschieben? Das schreibe ich auf jeden Fall auf die Frage-Liste.
Ja ich konnte das Original nicht mehr finden. Nein das war der Versuch eine Speisekammer einzuzeichnen . Quasi zwischen Hauswirtschaftsraum und Bad und dann in die Nische im Bad eine 90x90 Dusche.
Das wäre total toll alle auf 12qm zu bekommen! Wir brauchen dann auch kein ultra großes Bad. Hätten ja noch ein Ausweichbad mit Dusche unten.
Ähnliche Themen