Bungalow für 2 Personen aber Platz...

4,40 Stern(e) 5 Votes
Zuletzt aktualisiert 25.11.2025
Sie befinden sich auf der Seite 3 der Diskussion zum Thema: Bungalow für 2 Personen aber Platz...
>> Zum 1. Beitrag <<

Y

ypg

Kann ich gern erklären: der Entwurf ist ja nicht gerade gelungen. Punkt.
Aber es gibt ja auch andere Orientierungen zur Bewertung, zB ist genug Platz für eine Küchenzeile, hat man genug Stellmöglichkeiten, haben die Kinder ihre Zone... Und Du hast in # 10 ja schon drum gebeten, Hintergrundinformationen zu schreiben.
Wir wissen zur Zeit nur, das zwei Leute, und das Büro soll eher Abstellfläche sein. :/
 
ThomasK.

ThomasK.

Keine Kinder mehr geplant, ich werde 40 meine Frau ist schon über 40...
Wir sind aber aufgrund eurer Kritik und genauerer Betrachtung schon wider weg von dem Grundriss.
Auch aufgrund dessen, das ein Seitlicher Eingang ein nach hinten versetzten Carport bedingt und dadurch ja schon
fast eine eigene Straße (11m) vor dem Carport entsteht.
Jetzt wird umgeplant mit einem Eingang von vorne...

Vielen Dank dafür
 
kbt09

kbt09

@Thomas K. .

Vielleicht kannst du noch die Fragen
Gibt es Baugrenzen auf dem Grundstück? Was ist rechts, links und planoben? Planunten ist die Straße - oder?
und
beantworten.

Aber, . ich spiele ja gerne mit Grundrissen. Daher habe ich auch schon mal ein bisschen geschoben. Dabei habe ich mir um den Ausbau DG zunächst keine Gedanken gemacht, sondern ein recht flaches Walmdach gesetzt, wo eh oben kein echter Wohnraum entstehen kann. Wohnfläche ebenfalls ca. 127 qm.

Einfamilienhaus aus Backstein mit braunem Dach, Carport links, Fensterfront, grünem Rasen.


Ein braunes Backsteinhaus mit dunklem Satteldach, Terrasse mit Tisch und Stühlen


Einfamilienhaus aus Backstein mit dunklem Dach, Terrasse mit Stühlen und grünem Garten


Luftbild eines Hauses mit dunklem Ziegeldach, umlaufender Terrasse und grünem Garten.


Isometrischer 3D-Grundriss eines Hauses mit Küche, Wohnzimmer, Schlafzimmer, Bad und Terrasse.


Isometrische 3D-Planansicht eines Hauses: Wohnzimmer, Küche, Essbereich, Schlafzimmer, Terrasse.


Grundriss eines Einfamilienhauses: Küche/Essen, Wohnen, Schlafen, Bad, Flur, Technik, Gästebereich
 
ThomasK.

ThomasK.

Wow, vielen Dank. Auch ein Interessanter Ansatz mit der Essecke in der Küche.
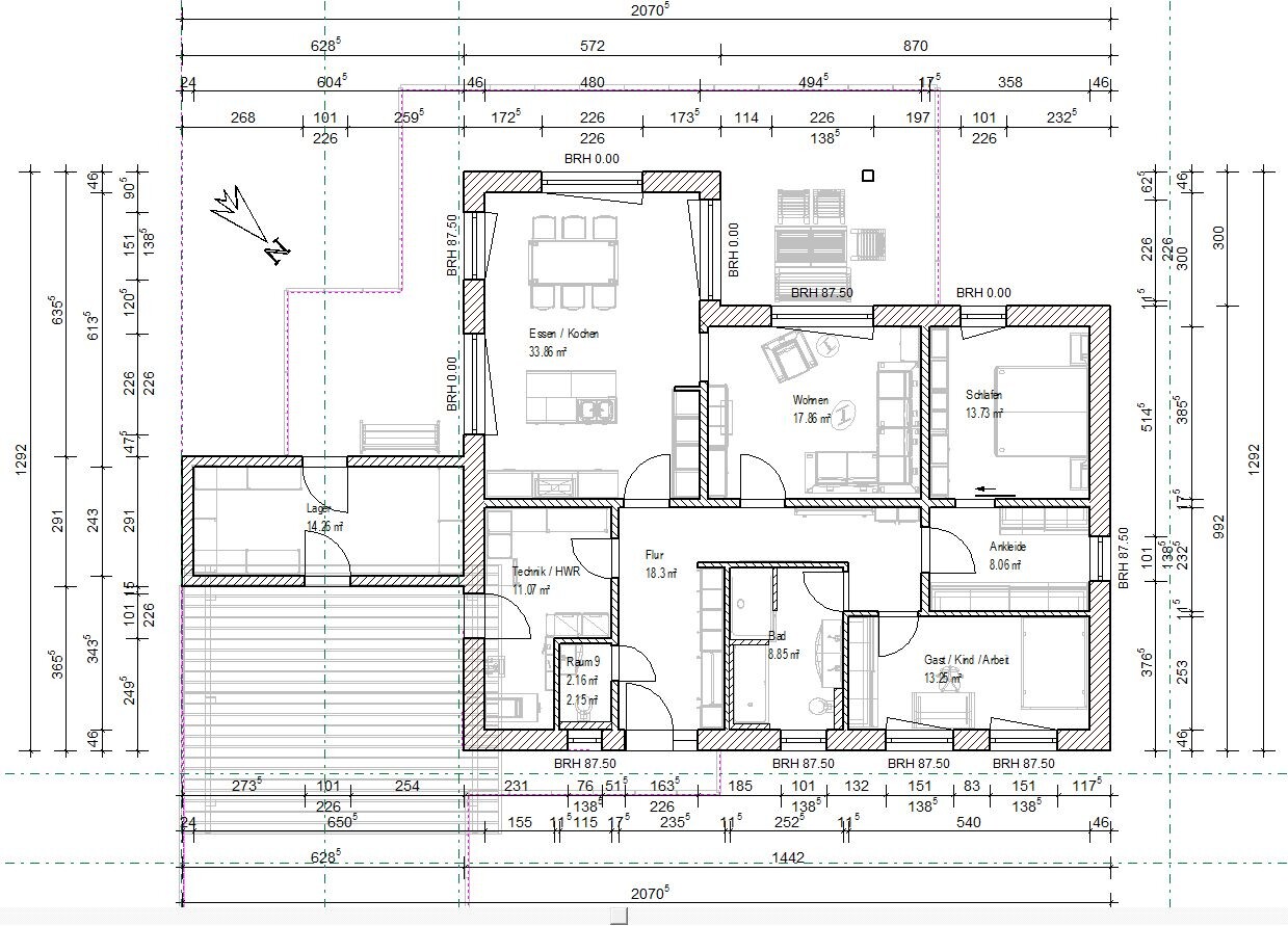
Unser "neuer" Entwurf sieht so aus.:
Grundriss eines Hauses: Wohnzimmer mit Eckcouch, Esstisch, Küche, Bad, zwei Schlafzimmer.

Die Bebauungsauflagen wären mit dem 9m langen Carport Maximal ausgeschöpft.
Im Südlich/Westlichen Bereich ist ein Regenwasserkanal (Bach) mit einem
Schotter-Weg für Fußgänger und Radfahrer. Westlich ist getrennt durch den Schotter-Weg ein
Spielplatz. Nördlich ist die Straße und nur Östlich das Nachbar Grundstück.
Gesamt Grundstück ist 719qm.
 
Zuletzt aktualisiert 25.11.2025
Im Forum Grundrissplanung / Grundstücksplanung gibt es 2536 Themen mit insgesamt 88016 Beiträgen


Ähnliche Themen zu Bungalow für 2 Personen aber Platz...
Nr.ErgebnisBeiträge
1Grundriss-Entwurf: Einfamilienhaus mit Keller; 560qm Grundstück - Seite 365
2Haus, Garage / Carport auf dem Grundstück platzieren - Seite 493
3Hang-Grundstück, Carport abfangen 22
4Lage Stadtvilla oder Einfamilienhaus auf Grundstück mit breiter Straßenfront 63
5Grundriss Planung Einfamilienhaus ca. 150 m² auf 913m² Grundstück 13
6Grundstück real teilen aber beide das gleiche Baurecht haben - Seite 1269
7Grundriss & Ausrichtung Haus auf Grundstück 420m² - Seite 236
8Süd Hang Grundstück 700qm Einfamilienhaus ca. 150qm, Ideen Input? 41
9Entwurf Grundriss Bungalow - Eure Meinungen bitte! 14
10Ausrichtung der Räume bei Nord-Ost Grundstück 22
11Grundrissplanung mit enger werdendem Grundstück - Seite 223
12Grundriss Einfamilienhaus 133qm Grundstück 850qm 16
13EFA mit ca. 120 m² auf ca. 450 m² Grundstück - Seite 320
14Kosteneinschätzung: Fertighaus, Keller, Carport, Einzelgarage 10
15Kosten/Planung Grundstück, Baunebenkosten Schlüsselfertig usw. - Seite 227
16Carport bauen. Statt Holzpfosten, Flacheisen möglich? 12
17Grundriss mit Garage auf Grundstück realisierbar? 29
18Grundstück Kosten - Haus Bauen und Finanzieren 29
19Hausplatzierung auf kleinem 448m² Grundstück - Seite 356
20Baunebenkosten für Haus auf Grundstück 120k Euro 28

Oben