Bungalow an Brandwand

4,20 Stern(e) 5 Votes
Zuletzt aktualisiert 04.10.2025
Sie befinden sich auf der Seite 5 der Diskussion zum Thema: Bungalow an Brandwand
>> Zum 1. Beitrag <<

Y

ypg

Ich finde den Ansatz von @kbt09 gut. Natürlich ist es "nur" ein Ansatz, ein Bsp, wie man es mit vorhandenen Informationen ansetzen kann.
Auch ich habe mir Gedanken gemacht und auch an zwei versetzte Rechtecke gedacht, sodass Innenhöfe entstehen. Ich würde aber auch das Schlafzimmer mehr in Rtg Garten sehen.
Das Spielen mit den Räumen und Möglichkeiten bringt einem schnell die Sichtweise, dass bestimmte Räume sich zu viel Raum in den Außenwänden nehmen, wie @kbt09 schon sagt. Dennoch fehlen wahnsinnig viel Informationen. Zb die Länge des Nachbargebäudes... wie viel Abstand zu dem Nordgrundstück, wie ist der Grundflächenzahl und, und.... Auch wenn das Bauamt Aussagen trifft, kann ein guter Architekt bei einem Problemgrundstück Möglichkeiten erkennen, die wir so keinesfalls wissen können.

Außerdem bleibt das Fragezeichen, ob ein Gästezimmer nicht doch angebracht wäre oder ein Homeoffice. Soll das Haus barrierefrei gebaut werden? Was steht auf der anderen Seite der Mauer? Zum Herumspielen und Experimentieren finde ich so eine Herausforderung allemal besser als 20 x 30 Nord-Westausrichtung, aber ich würde doch gern alle Spielregeln kenne, bevor man sich Gedanken macht, die nur die Hälfte des Möglichen beinhalten kann.

Zum Pultdachhaus: Ankleide wäre verzichtbar. Flur kann mehr Fläche vertragen. statt des Bades den Hauswirtschaftsraum, Schlafen statt Hauswirtschaftsraum, in der Mitte Bad. Ich könnte mir auch ein Atrium an der Mauer im Haus vorstellen (Bad mit Außenbereich ), bissel größer müsste allerdings die Grundfläche des Hauses werden. Aber noch ist ja alles offen
 
kbt09

kbt09

Ja, da stimme ich dir voll zu, ypg, auch zu dem, was du in dem anderen Thread schon geschrieben hast. Es fehlen noch zu viele Parameter. Vor allem Parameter, die tatsächlich ein Architekt auch aus Bebauungsplänen etc. herauslesen kann.

So Sachen wie ein drittes Zimmer, auch als Gästezimmer nutzbar, fände ich z. B. auch sinnvoll.

Mir bringt halt Grundrisse planen Spaß und ich wollte vor allem mal die Möglichkeit prüfen, ob man alles grundsätzlich so anlegen kann, dass alle Räume Fenster haben.
 
F

frosch006

Hallo,
ich hab lane nichtsmehr geschrieben, denn ich möchte erst die Sache mit dem Bauamt abklären, wie was und wo genau gebaut werden darf.
Leider hab ich erst den Termin für den 16.12.2014 bekommen.

ma
 
F

frosch006

Hallo,
Ich war diese Woche auf dem Bauamt. So richtige Aussagen wurden nicht getroffen. Ich soll mal Vorschläge bringen und dann wird man es sich in einer Teambesprechung ansehen.
Problem ist, es gibt offiziell keine Wohnraum Bebauung nach diesem Plan. Es gibt aber Ausnahmen und es könnte auch hier so eine Ausnahme getroffen werden, das hängt aber vom geplanten Objekt ab. Es soll sich harmonisch ins Umfeld einfügen und schlicht gehalten werden.
Das Problem mit der Grenzbebauung an die Brandwand auf der Südseite wurde ebenfalls angesprochen, sie erkennen natürlich auch die Probleme und sind nicht prinzipiell gegen eine Teilweise abgerückte Bebauung. Soll heißen, es könnte schon eine U-Form, oder zwei versetzte Rechtecke Anwendung finden, wenn es gut verkauft wird. Auch eine L-Form ist denkbar, jedoch muss der lange Schenkel an der Brandmauer ausgeführt werden.
Von der Dachform, wurde sich gegen ein versetztes Dach ausgesprochen, es wirke zu unruhig. Mann könne ich bei diesem Objekt ein Flachdach vorstellen.
Am kann als grobe Richtung von maximal 9 Meter Breite ausgehen und sollte von der Gartenseite aus mit dem Nachbargebäude abschließen.
Auch sollen Parkmöglichkeiten berücksichtigt werden.
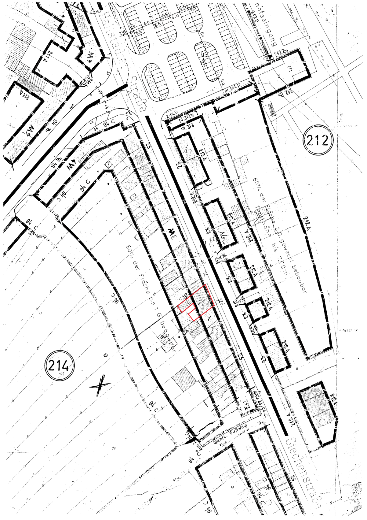
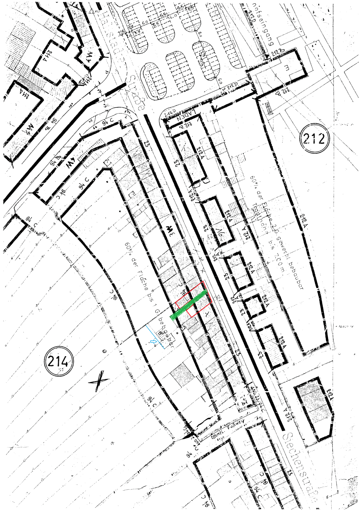
Ich hab mal den aktuellsten (1943) Flächennutzungsplan von der Stadt mitbekommen. Ich füge auch mal verschiedene andere Pläne mit bei.
Die Rot eingezeichneten Gebäude bleiben bestehen.
Das grün eingezeichnete, soll die Durchfahrt anzeigen.
Die blaue Linie, ist die Grenze zum Garten, weiter Richtung Garten darf nicht gebaut werden und es sollte von dieser Linie aus auch gebaut werden um im Vorderen Bereich möglichst Luft zu schaffen und das ganze auflockert.
Euch wird sicher auch auffallen, dass das Dach vom Vorderhaus verkehrt eingezeichnet ist, das Satteldach ist um 90 Grad verdreht.

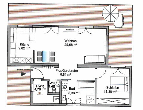
Grundriss einer Wohnung mit Küche, Wohnen, Schlafen, Bad, Flur und Terrasse
 

Anhänge

F

frosch006

So, jetzt kommen die anderen Fotos noch dazu, konnte ich gestern nicht hochladen. Ich musste das Format erst ändern.
Ich hab mal ein Luftbild beigefügt um einen besseren Gesamt Eindruck zu bekommen. Unser Grundstück ist auf Höhe, des "Google" Schriftzuges ("Go"gle) Rotes Dach mit der großen Gaube zum Garten.
 
Zuletzt aktualisiert 04.10.2025
Im Forum Grundrissplanung / Grundstücksplanung gibt es 2509 Themen mit insgesamt 87151 Beiträgen


Ähnliche Themen zu Bungalow an Brandwand
Nr.ErgebnisBeiträge
1Hausanschlusssäule im Garten vs. Hausanschluss direkt im Hauswirtschaftsraum 35
2Mauer auf Grundstücksgrenze 45
3Technik / Hauswirtschaftsraum im OG Meinungen? - Seite 427
4Wie Hang sichern und Aufgang Garten kostengünstig gestalten? 27
5Garten-Landschaftsbauer Angebot ok oder doch eher total überzogen? - Seite 17103
6Garten-Bilder Plauderecke - Seite 152693
7Neubau Einfamilienhaus ca. 174 m² Grundriss Architekt - Seite 355
8Regenwasser vom Dach - Drainage im Erdreich zum abführen? - Seite 212
9Ausrichtung des Hauses und Garten nach Osten - Seite 643
10Streifenfundament bei kleiner Mauer überhaupt notwendig? - Seite 323
11Bau 150-160qm Einfamilienhaus im Garten der Eltern - Überfordert! - Seite 226
12Garten an Hanglage sinnvoll gestalten 57
13Wie eine Mauer aus Schalungssteinen verputzen, Erfahrungen? - Seite 213
14Sanierung oder Abriss und Neubau - Entscheidungshilfe Architekt? 25
15Bauamt fordert Freiflächengestaltungsplan für Einfamilienhaus - Erfahrungen? 37
16Grundriss Landhausneubau in großem Garten nach §34 (mit Abriss) 37
17Terrassenplanung Reiheneckhaus mit grossem Garten - An was denken? - Seite 393
18Baulandumwandlung Feldgrundstück, Widerspruch, Bauamt, Baugesetze 12
19Genehmigung Bauamt 10
20Architekt, Vertrag nach HOAI 2013 - verweigert Leistungserbringung - Seite 436

Oben