Hausbau - Ratgeber
Bauherrenhilfe
- Bauherrenhilfe vor Vertragsabschluss
-- Warum einen unabhängigen Baubetreuer?
-- Vertragsgrundlagen
-- Bausumme
-- Zahlungsplan zur Kostenkontrolle
-- Pflichten des Bauherren vor Vertragsabschluss
-- Unterlagen beim Hausbau vor Vertragsabschluss
- Bauherrenhilfe nach Vertragsabschluss
-- Bauantrag bei Behörden
-- Bau-Genehmigungsverfahren bei Baubehörden
-- Bauspezifische Versicherungen
-- Bauzeitenplan
-- Baubeginn - die Letzten Pflichten der Bauherrschaft
- Bauherrenhilfe während der Bauzeit
- Gewährleistungsansprüche
- Bauabnahme
Baufinanzierung
- Baufinanzierung - Allgemeine Fragen
- Kreditarten
- Kredit-Konditionen
- Bausparen
- Staatliche Förderungen
- Verkehrswert
- Haushaltsrechnung und Bonität
Hausbau Planung
- Haustypen
- Hausbau Vorbereitungsarbeiten
- Das Baugrundstück
- Baugrund beim Hausbau
- Baurecht
- Gebäudeschutz
- Erdarbeiten und Wasserhaltung
- Stützmauern
- Einfriedung
- Untergeschoss
- Kanalisation
- Tragende Elemente
- Nichttragende Innenwände
- Fundation / Fundament
- Deckenkonstruktionen
- Dächer
- Kaminanlagen
- Treppen Rampen Leitern
- Dachbeläge und Spengler
- Fenster
- Sonnen und Wetterschutz
- Aussenputze
- Einbauten, Küchen, Türen
- Bodenbeläge und Unterlagsböden
- Parkett
- Gips, Wand, Decke
Haustechnik und Energie
- Heiztechnik
- Lüftung und Klimatechnik
- Sanitärtechnik
- Elektrotechnik
- Erneuerbare Energie
Whirlpools / Jacuzzi
Hausbau Magazin
- Baufinanzierung trotz Krise?
- Das Blockhaus
- Moderne Dämmstoffe im Vergleich
- Erker Vor- und Nachteile
- Glasflächen beim Hausbau
- Günstig ein Haus Bauen
- Mediterraner Hausbaustil
- Mehrgenerationenhaus
- Moderne Architektur
- Gartengestaltung leicht gemacht
- Traditioneller Ziegelbau
- Villa als höchster Traum
- Im Eigenheim Ruhestand geniessen
- Altbau sanieren
- Kauf einer Holzgarage
- Immobilienmakler
- Arbeitshandschuhe für den Winter
- Zuhause verschönern
- Outdoor-Plissees
- Schlafzimmer planen
- Terrassenüberdachung
- Wohngebäudeversicherung
- Zaunarten und Eigenschaften
- Hauseingang gestalten
- Der perfekte Grundriss
- Sparsamer heizen im Altbau
- Einfamilienhaus smart finanzieren
- Planung einer PV-Anlage
- Neues Haus
- Immobilienfinanzierung
- Installation einer Photovoltaikanlage
- Asbest erkennen und entfernen
- Gartenpflege im Frühling – worauf achten
- Sauna im Fokus - Wellness zuhause
- Erfolgreich vermieten
- Die perfekte Winterbekleidung
- Das Niedrigenergiehaus
- Der April und seine Stürme
- Architektonische Vielfalt
- Ökologisch und nachhaltig bauen
- Das perfekte Schlafzimmer
- Nachhaltige Energieversorgung
- Zukunftsorientiert bauen
- Nachhaltigkeit beim Hausbau
- Tiny Houses
- Wärmepumpen als nachhaltige Heizvariante
- Maßgeschneiderten Kleiderschrank
- Der richtige Baukredit
- Ratgeber für erfolgreichen Hausbau
- Haus als Altersvorsorge
Do-it-yourself Anleitungen
- Verlegeanleitung für Bodenbeläge und Parkett
- Bodenbeläge und Parkett reinigen und pflegen
- Malerarbeiten am Haus
- Garten Tipps
- Umzug und Reinigung

ᐅ Bitte um Anregungen für EG Grundriss

Erstellt am: 07.04.15 19:48
B
Barley
Barley07.04.15 19:48
Hallo liebe Forumsleser/innen!

Einleitung und Motivation
Wir möchten den angehängten Grundriss umgestalten und bitten hierfür um kreative Anregungen aus dem Forum. Wir hoffen auf gute Ideen, die wir aufgrund einer gewissen Voreingenommenheit selbst nie hätten.

Angaben wie tragende Wände, Verlauf von Wasser, Abwasser lassen wir hierbei bewusst weg, um kreative Ideen nicht in ein Korsett zu zwängen. Fragen der Machbarkeit, Finanzierung usw. sollen daher ebenfalls außer Acht gelassen werden.

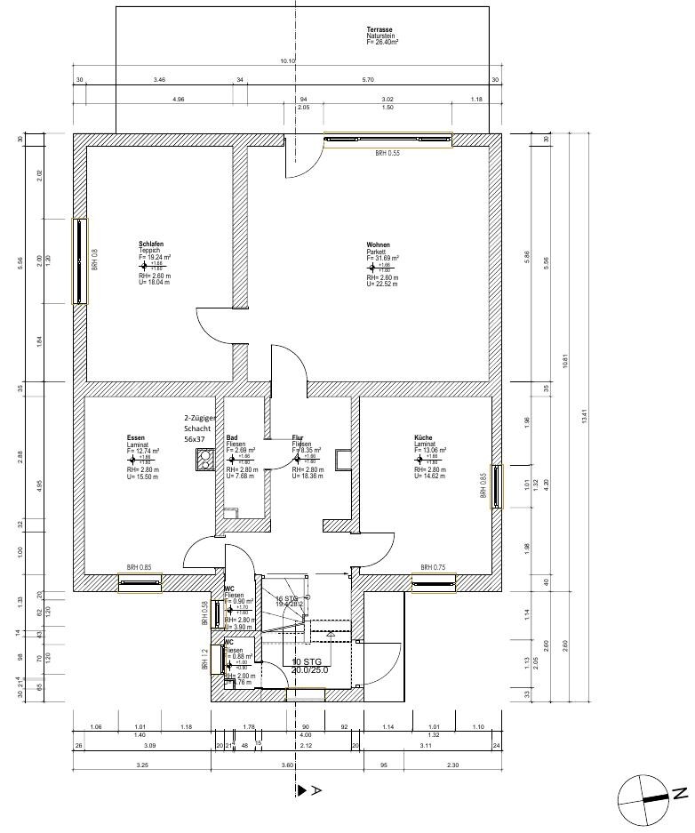
Istzustand
Der Istzustand wird auf der angehängten Datei "EG_ist.jpg" dargestellt.

Grundriss eines Einfamilienhauses mit Wohnzimmer, Küche, Flur und Terrasse


Zusatzinfos
- Das Gebäude ist freistehend.
- Das EG ist etwa 1,5 m über dem Boden. Die Terrasse liegt daher auf einem "Hang"
- Die anliegende Strasse verläuft von links nach rechts am "unteren Ende" des Grundrisses (nicht dargestellt).

Wünsche

Wir versuchen die folgenden Ideen/Wünsche umzusetzen
- ein oder sogar zwei Zimmer mehr - Nutzung zunächst als Arbeitszimmer / später ggf. Kinderzimmer
- Bad mit Aussenfenster
- Gen Süden (links auf dem Grundriss) und gen Westen (oben auf dem Grundriss) hat man einen Schönen Blick den wir gerne auskosten möchten.

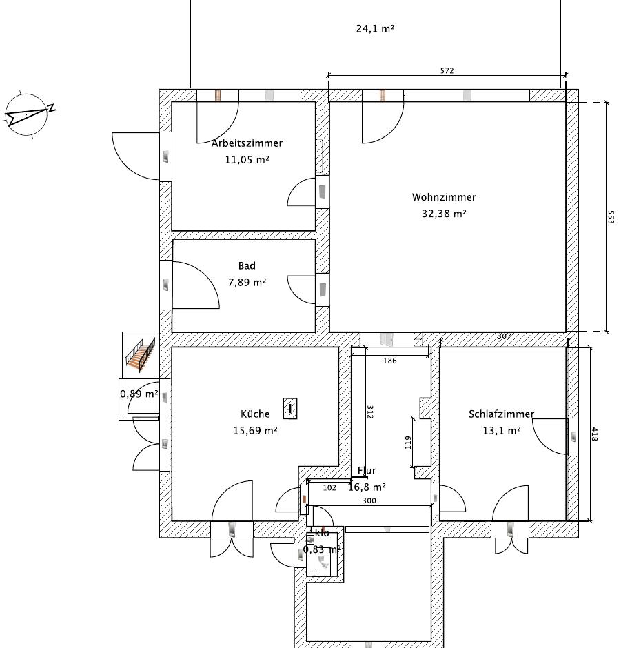
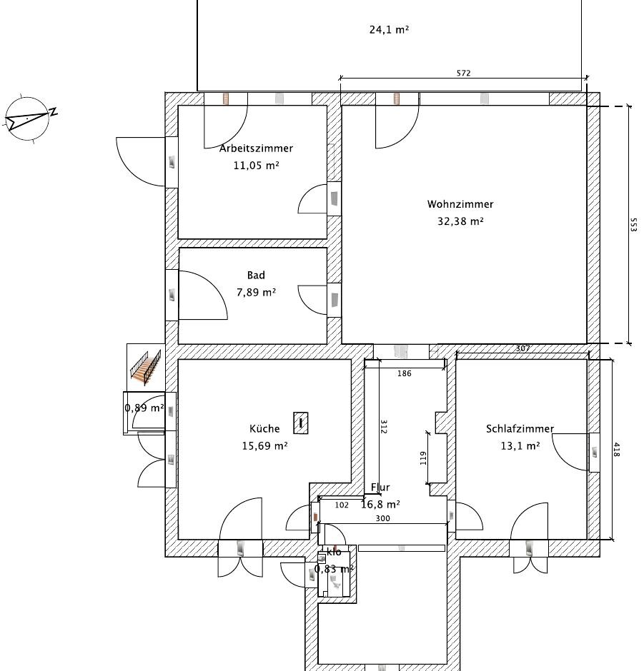
Erster eigener Entwurf
Der erste eigene Entwurf wird in der Datei "EG_neu.jpg" gezeigt.
Wir sind noch nicht so richtig zufrieden, da der Zugang zum Bad über das Wohnzimmer erfolgt.

2D-Grundriss eines Hauses mit Wohnzimmer, Küche, Bad, Arbeitszimmer und Schlafzimmer.




Wir bedanken uns vorab für jede Kritik und Anregung!
L
Legurit
07.04.15 19:54
Was soll das denn sein?! 3 Wcs mit 0,9 m³ und eins davon mit Zugang unter der Treppe? Wo ist überhaupt der Eingang?
Ich hoffe nicht auch unter der Treppe...Innenbad mit 2,69 m²?!
Ihr braucht keine Anregungen, sondern nen Architekten oder von mir aus ein Musterhaus.
Bad vom Wohnzimmer aus ?!
Barley07.04.15 20:02
So nebenbei, es handelt sich um ein 100 Jahre altes Haus, vieles ist nicht zwangsläufig logisch. Wir können nichts für die den gegenwärtigen Zustand. Da wurde nach und nach mal hier mal, da etwas hinzu gebaut. Wie soll ich bitte das mit dem Musterhaus verstehen? Eines dieser Klos ist im Keller. Die sind nicht nebeneinander. Der Eingang ist in der Zeichnung unten mittig.
L
Legurit
07.04.15 20:17
Okay, das erklärt das 😀 Bzw. ich hätte wohl mal lesen können - sorry. Die Treppe, die eingezeichnet ist ist also die Treppe zum Keller?
Also nun zum Plan: auch hier würde ich ggf. einen Fachman empfehlen - grad weil Leitungen etc. ggf. doch festgelegt sind. Auch Statik ist nicht immer so angenehm.
Bad vom Wohnzimmer funktioniert nicht... bzw. würde ich nicht machen.
Geht ein Tausch von Küche und Schlafzimmer? Dann kannst du das Bad als gefangenen Raum vom Schlafzimmer abgehen lassen - separates Gäste-WC ist ja vorhanden.
kbt0907.04.15 22:22
Der Ist-Zustand ist leider nicht sehr leserlich.

Dann ist die Frage, was ist mit OG? Soll das abgetrennt sein? Wo betritt man das Geschoss? Gibt es einen Keller? .. z. B. wg. Haustechnik und wie muss man sich den Zugang vorstellen? Erfolgt evtl. der komplette Hauszugang über den Keller und man kommt im Osten mit der Treppe von unten hoch?

Man kann Geschosse nicht einfach so isoliert betrachten.

Man müßte wissen, was alles umgebaut wird. Wird alles komplett entkernt, Fußböden entfernt etc.? Angaben wie tragende Wände etc, zumal, wenn sie schon festgestellt sind oder wenn schon festgestellt ist, welche Wände wie entfernt werden können (Stummel stehen lassen etc.) sind schon wichtig.

EDIT:
Außerdem muss man auch ein wenig darüber wissen, was ihr in einzelnen Räumen so machen wollt, unterbringen wollt usw. Da hat ja jeder einen anderen Lebensstil.

Zur Idee von euch:
Bad durchs Wohnzimmer geht gar nicht. Da muss man sofort wieder aufhören. 😉
Y
ypg
07.04.15 23:22
Bei Bestandsimmobilien hat man das Korsett der Statik. Punkt. Man kann tragende Wände nicht einfach ignorieren.
Deshalb ist es völliger Quatsch a la wünsch-dir-was in dem Plan rumzumalen.
Kennzeichne bitte die tragenden Wände und sage, für wieviel Personen diese Ebene sein soll. Was ist drüber? Daß das EG 1,50 hoch schwebt, hast du ja schon erwähnt 😉 Bedarf hast du ja genannt, dennoch etwas unklar.
Außerdem wäre die Abwasserversorgung interessant für die Bad- und Küchenlage.

Dann können Dir auch die ambitionierten Forumsmitglieder bei der Planung mit reellen Tipps kommen.

Gruß Yvonne
wändetreppewohnzimmerkellergrundrissentwurfeingangmusterhausstatikschlafzimmer