ᐅ Bauhaus: 2 Vollgeschosse + Staffelgeschoss (ca 200qm) - Optimierung
Erstellt am: 22.06.2020 22:23
Baumeisteri123 22.06.2020 22:23
Hallo zusammen,
nach erfolgreichem Grundstückserwerb stecken mein Mann und ich nun mitten in der Planung unseres Einfamilienhauses und würden uns jegliche Tipps zu den angehängten Entwürfen freuen.
Bebauungsplan/Einschränkungen
Größe des Grundstücks: 680qm
kein Hang
Grundflächenzahl 0,25
Baufenster, Baulinie und –grenze: ab 5m von Straße, 12m lang, ziehe Anhang
Randbebauung: nein
Anzahl Stellplatz: 1
Geschossigkeit: 2 Vollgeschosse + optional Staffelgeschoss
Dachform: Flachdach
Stilrichtung: Kubus
Maximale Höhen/Begrenzungen: 10m
Anforderungen der Bauherren
Stilrichtung, Dachform, Gebäudetyp: Bauhaus, Flachdach
Keller, Geschosse: kein Keller; zwei Vollgeschosse plus Staffelgeschoss
Anzahl der Personen, Alter: 2 Erwachsene, 2 Babies
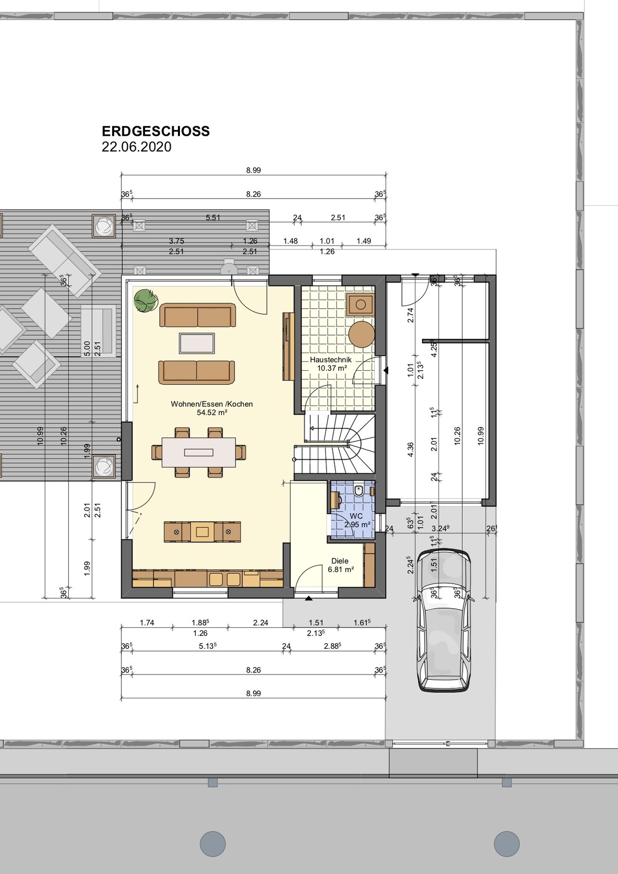
Raumbedarf im EG, OG: ca. 200qm
Büro: 2 Homeoffices
Schlafgäste pro Jahr: überschaubar, können Büro nutzen
offene oder geschlossene Architektur: offen
konservativ oder moderne Bauweise: modern
offene Küche, Kochinsel
Anzahl Essplätze: 6
Kamin: nein
Musik/Stereowand: nein
Dachterrasse
Garage
Hausentwurf
Von wem stammt die Planung:
Planer eines Bauunternehmens und Do-it-Yourself
Was gefällt besonders? Warum? Die große Fensterfront im Westen und Norden und das Küchenfenster im Süden, weil wir helle Räume mit viel Sonnenlicht mögen und gerne von der Küche aus auf die Straße schauen wollen.
Was gefällt nicht? Wohn-Ess-Küchenbereich wirkt beengt, ein größerer Grundriss ist aufdes Wunsches möglichst viel Garten zu haben allerdings nicht erwünscht. Die Außenansicht könnte noch optimiert werden, da das Haus aufgrund der 3 Geschosse sehr hoch wirkt und die Außenansichten mit den Fenstern nicht immer ganz harmonisch wirken. Um das Haus optisch etwas aufzulockern, überlegen wir, das Staffelgeschoss mit Holz zu verkleiden. Sollte dies zu kostspielig werden, denken wir über eine farbliche Absetzung nach.
Wenn Ihr verzichten müsst, auf welche Details/Ausbauten
-könnt Ihr verzichten: Auf die Podesttreppe können wir verzichten, wenn sich durch die Verwendung einer anderen Treppenform eine bessere Raumnutzung erreichen lässt. Auch könnte der Technikraum kleiner ausfallen.
-könnt Ihr nicht verzichten: Nicht verzichten möchten wir auf einen großzügigen Wohn/Ess/Kochbereich mit mindestens 50 qm Fläche und eine breite Küche (mind. 5 Meter) mit Kücheninsel.
Warum ist der Entwurf so geworden, wie er jetzt ist?
Planung nach unseren eigenen Wünschen, insbesondere dem Wunsch nach einem offenen Wohn/Ess/Kochbereich mit großen Fenstern (Hebeschiebetüren) und einer Küche mit Fenster Richtung Süden. Besonders gut gefällt uns dabei das Eckfenster im Wohnzimmer und der Elternbereich im Staffelgeschoss. Auch ist uns wichtig, dass man vom Eingangsbereich des Hauses keinen direkten Blick in das Wohnzimmer hat.
Was ist die wichtigste/grundlegende Frage zum Grundriss in 130 Zeichen zusammengefasst?
Lässt sich die Aufteilung im Erdgeschoss besser optimieren um einen großzügigeren Wohn/Ess/Kochbereich zu erreichen?
Über Rückmeldungen würden wir uns sehr freuen. Vielen Dank!








nach erfolgreichem Grundstückserwerb stecken mein Mann und ich nun mitten in der Planung unseres Einfamilienhauses und würden uns jegliche Tipps zu den angehängten Entwürfen freuen.
Bebauungsplan/Einschränkungen
Größe des Grundstücks: 680qm
kein Hang
Grundflächenzahl 0,25
Baufenster, Baulinie und –grenze: ab 5m von Straße, 12m lang, ziehe Anhang
Randbebauung: nein
Anzahl Stellplatz: 1
Geschossigkeit: 2 Vollgeschosse + optional Staffelgeschoss
Dachform: Flachdach
Stilrichtung: Kubus
Maximale Höhen/Begrenzungen: 10m
Anforderungen der Bauherren
Stilrichtung, Dachform, Gebäudetyp: Bauhaus, Flachdach
Keller, Geschosse: kein Keller; zwei Vollgeschosse plus Staffelgeschoss
Anzahl der Personen, Alter: 2 Erwachsene, 2 Babies
Raumbedarf im EG, OG: ca. 200qm
Büro: 2 Homeoffices
Schlafgäste pro Jahr: überschaubar, können Büro nutzen
offene oder geschlossene Architektur: offen
konservativ oder moderne Bauweise: modern
offene Küche, Kochinsel
Anzahl Essplätze: 6
Kamin: nein
Musik/Stereowand: nein
Dachterrasse
Garage
Hausentwurf
Von wem stammt die Planung:
Planer eines Bauunternehmens und Do-it-Yourself
Was gefällt besonders? Warum? Die große Fensterfront im Westen und Norden und das Küchenfenster im Süden, weil wir helle Räume mit viel Sonnenlicht mögen und gerne von der Küche aus auf die Straße schauen wollen.
Was gefällt nicht? Wohn-Ess-Küchenbereich wirkt beengt, ein größerer Grundriss ist aufdes Wunsches möglichst viel Garten zu haben allerdings nicht erwünscht. Die Außenansicht könnte noch optimiert werden, da das Haus aufgrund der 3 Geschosse sehr hoch wirkt und die Außenansichten mit den Fenstern nicht immer ganz harmonisch wirken. Um das Haus optisch etwas aufzulockern, überlegen wir, das Staffelgeschoss mit Holz zu verkleiden. Sollte dies zu kostspielig werden, denken wir über eine farbliche Absetzung nach.
Wenn Ihr verzichten müsst, auf welche Details/Ausbauten
-könnt Ihr verzichten: Auf die Podesttreppe können wir verzichten, wenn sich durch die Verwendung einer anderen Treppenform eine bessere Raumnutzung erreichen lässt. Auch könnte der Technikraum kleiner ausfallen.
-könnt Ihr nicht verzichten: Nicht verzichten möchten wir auf einen großzügigen Wohn/Ess/Kochbereich mit mindestens 50 qm Fläche und eine breite Küche (mind. 5 Meter) mit Kücheninsel.
Warum ist der Entwurf so geworden, wie er jetzt ist?
Planung nach unseren eigenen Wünschen, insbesondere dem Wunsch nach einem offenen Wohn/Ess/Kochbereich mit großen Fenstern (Hebeschiebetüren) und einer Küche mit Fenster Richtung Süden. Besonders gut gefällt uns dabei das Eckfenster im Wohnzimmer und der Elternbereich im Staffelgeschoss. Auch ist uns wichtig, dass man vom Eingangsbereich des Hauses keinen direkten Blick in das Wohnzimmer hat.
Was ist die wichtigste/grundlegende Frage zum Grundriss in 130 Zeichen zusammengefasst?
Lässt sich die Aufteilung im Erdgeschoss besser optimieren um einen großzügigeren Wohn/Ess/Kochbereich zu erreichen?
Über Rückmeldungen würden wir uns sehr freuen. Vielen Dank!
Baumeisteri123 23.06.2020 20:48
Anbei noch eine weitere Variante. Das Staffelgeschoss nun mit Holzverkleidung, was das Haus von Außen deutlich ansehnlicher macht. Zudem ist der Eingang und die Treppe etwas abgeändert. Hintergrund: wir wollten Treppe und Technikraum noch etwas schmaler machen, um das Wohnzimmer zu verbreitern. Zudem fanden wir, war die Garderobe etwas zu weit vom Eingang weg. Insgesamt wirkt uns der Eingangs- und Treppenbereich noch nicht so ganz rund. Hier wären wir für Verbesserungsvorschläge sehr dankbar.
Viele Grüße
Lena







Viele Grüße
Lena
Pinky0301 23.06.2020 21:13
Hui, das ist ja ein ganz schöner Klotz. Sicher, dass ihr den Elternbereich ganz nach oben wollt? Würde ich nicht wollen, da man so immer 2 Stockwerke hoch und runter laufen muss. Seid ihr euch sicher, dass ihr eine Dachterrasse wollt? Meistens nutzt man die kaum bis gar nicht, wenn man unten Terrasse mit Garten hat.
Du schreibst über Himmelsrichtungen, die stehen aber leider nicht in den Plänen drin.
Blick von der Küche auf die Straße ist meiner Meinung nach überbewertet (wofür?), mir wäre die Nähe zur Terrasse zwecks kurzer Laufwege wichtiger.
Wo ist euer Stauraum? oder gibt es einen Keller?
Du schreibst über Himmelsrichtungen, die stehen aber leider nicht in den Plänen drin.
Blick von der Küche auf die Straße ist meiner Meinung nach überbewertet (wofür?), mir wäre die Nähe zur Terrasse zwecks kurzer Laufwege wichtiger.
Wo ist euer Stauraum? oder gibt es einen Keller?
hanse987 23.06.2020 21:24
Ich hab jetzt nur schnell drüber gesehen. Wenn ich mir die Möbelgröße im Elternzimmer ansehe, dann solltet ihr mal alle Möbel überprüfen und mit einer realistischen Größe einzeichnen.
face26 23.06.2020 21:32
Nordpfeil in dem "hangezeichneten Lageplan"
Hallo Lena,
ein sehr interessanter Entwurf.
Ich sage es ehrlich, ich finde die Außenansicht gruselig. Bauhaus sehe ich nicht. Nur die "Verwendung" eines Flachdachs in Kombination mit Vor-/Rücksprüngen ergibt kein Bauhausstil.
Den Baukörper insbesondere eine Ansicht erinnert mich eher an einen Tetrisbaustein.
Du hast es ja eigentlich selber schon erkannt. Das Haus hat für drei Stockwerke zu wenig Grundfläche, in Kombi mit den vielen Rücksprüngen wirkt das eben wie Tetris.
Den Grundriss hab ich im Detail noch gar nicht genau angeschaut. Auf den ersten Blick ein typischer Fertighaus-/BU-Standard- 2-Geschossiger Grundriss für eine 4 Köpfige Familie. Das ist nicht schlecht deswegen, aber auch etwas langweilig. Weil Ihr aber ein zu der Grundfläche nicht passendes Raumprogramm, Wünsche habt hat man einfach nochmal einen Stock drauf gesetzt.
Klar kannst jetzt versuchen die einzelnen Geschosse zu optimieren, aber meiner Einschätzung nach wirst Du maximal ein bisschen den Baukörper entschärfen das wird aber dann halt etwas weniger schlimm aber nicht wirklich gut.
Auch wenn Du nichts geschrieben hast dazu...ihr habt ein sehr großzügiges Budget oder? Das sind viele QM und viel Glas und Dachterrassen usw....da marschierst je nach Region deutlich auf die 3000€/qm zu (oder auch mehr)
Kannst mal euer Grundstück mit Maßen versehen. Ich sehe das Problem noch nicht.
Radier den ersten Stock raus und gib dem Haus mehr Grundfläche.
Hallo Lena,
ein sehr interessanter Entwurf.
Ich sage es ehrlich, ich finde die Außenansicht gruselig. Bauhaus sehe ich nicht. Nur die "Verwendung" eines Flachdachs in Kombination mit Vor-/Rücksprüngen ergibt kein Bauhausstil.
Den Baukörper insbesondere eine Ansicht erinnert mich eher an einen Tetrisbaustein.
Du hast es ja eigentlich selber schon erkannt. Das Haus hat für drei Stockwerke zu wenig Grundfläche, in Kombi mit den vielen Rücksprüngen wirkt das eben wie Tetris.
Den Grundriss hab ich im Detail noch gar nicht genau angeschaut. Auf den ersten Blick ein typischer Fertighaus-/BU-Standard- 2-Geschossiger Grundriss für eine 4 Köpfige Familie. Das ist nicht schlecht deswegen, aber auch etwas langweilig. Weil Ihr aber ein zu der Grundfläche nicht passendes Raumprogramm, Wünsche habt hat man einfach nochmal einen Stock drauf gesetzt.
Klar kannst jetzt versuchen die einzelnen Geschosse zu optimieren, aber meiner Einschätzung nach wirst Du maximal ein bisschen den Baukörper entschärfen das wird aber dann halt etwas weniger schlimm aber nicht wirklich gut.
Auch wenn Du nichts geschrieben hast dazu...ihr habt ein sehr großzügiges Budget oder? Das sind viele QM und viel Glas und Dachterrassen usw....da marschierst je nach Region deutlich auf die 3000€/qm zu (oder auch mehr)
Kannst mal euer Grundstück mit Maßen versehen. Ich sehe das Problem noch nicht.
Radier den ersten Stock raus und gib dem Haus mehr Grundfläche.
Baumeisteri123 23.06.2020 21:38
Pinky0301 schrieb:
Hui, das ist ja ein ganz schöner Klotz. Sicher, dass ihr den Elternbereich ganz nach oben wollt? Würde ich nicht wollen, da man so immer 2 Stockwerke hoch und runter laufen muss. Seid ihr euch sicher, dass ihr eine Dachterrasse wollt? Meistens nutzt man die kaum bis gar nicht, wenn man unten Terrasse mit Garten hat.
Du schreibst über Himmelsrichtungen, die stehen aber leider nicht in den Plänen drin.
Blick von der Küche auf die Straße ist meiner Meinung nach überbewertet (wofür?), mir wäre die Nähe zur Terrasse zwecks kurzer Laufwege wichtiger.
Wo ist euer Stauraum? oder gibt es einen Keller?Vielen Dank! Ja, das ist ein ganz schöner Klotz. Das besorgt uns auch ein wenig.
Mit dem Elternbereich sind wir uns recht sicher. Die Dachterrasse ist insofern durch den Bebauungsplan vorgeben, als das Staffelgeschoss nur 75% der drunterliegenden Fläche ausmachen darf. Wirklich viel nutzen, werden wir die Terrasse aber vermutlich nicht.
Zu den Himmelsrichtung: Sorry. Die Straße ist im Süden.
Warum Blick von Küche auf die Straße: So wohnen wir aktuell. Das gefällt uns ganz gut. Um einen kürzeren Weg von der Küche zur Terrasse zu haben, könnte man die Terrasse bis zur Küchentür verlängern.
Zum Stauraum: Keller gibt es keinen. Für Stauraum ist der Technikraum, der hintere Teil der Garage und der Hauswirtschaftsraum im OG vorgesehen. Zudem bieten die Zimmer wegen ihrer Größe auch einen gewissen Stauraum.
Viele Grüße
Lena
Ähnliche Themen