ᐅ Grundriss Reihenendhaus mit Staffelgeschoss
Erstellt am: 26.07.17 21:04
N
Nordisch1726.07.17 21:04Bebauungsplan/Einschränkungen: Es muss ein Reihenendhaus gebaut werden.
Größe des Grundstücks: 10,66 m * 37,5 m
Hang: flach, Westausrichtung
Grundflächenzahl 0,3
Geschossflächenzahl 0,6
Baufenster, Baulinie und -grenze: 3 m zum Südgrundstück (Garage erlaubt)
Randbebauung: an Nordseite ja
Anzahl Stellplatz: 1-2
Geschossigkeit: 2 Vollgeschosse plus Staffelgeschoss
Dachform: Pultdach/Flachdach
Stilrichtung: modern
Ausrichtung: Eingang Osten, Garten Westen
Maximale Höhen/Begrenzungen: Mindestens 6 m, Max: 11 m
Anforderungen der Bauherren
Stilrichtung, Dachform, Gebäudetyp
Keller, Geschosse. Kein Keller, 2 Vollgeschosse und Staffelgeschoss, Pultdach
Anzahl der Personen, Alter: 2 x Mitte dreißig, 2 Kleinkinder
Raumbedarf im EG, OG
Büro: Familiennutzung oder Homeoffice? Familie
Schlafgäste pro Jahr: 3-5
offene oder geschlossene Architektur: offen
konservativ oder moderne Bauweise: modern
offene Küche, Kochinsel: beides ja
Anzahl Essplätze: 4 regelmäßig
Kamin: ja
Musik/Stereowand: nein
Balkon, Dachterrasse: Dachterrasse
Garage, Carport: gerne: Garage muss 5m von der Straße (Osten) entfernt sein, damit ein zweites Auto parken kann.
Nutzgarten, Treibhaus: nein
Hausentwurf
Von wem stammt die Planung:
-Planer eines Bauunternehmens mit eigenen Anpassungen
Was gefällt besonders? Warum? Küche zur Terrasse
Was gefällt nicht? Warum? Wohnzimmer schmal
Preisschätzung lt Architekt/Planer:
Persönliches Preislimit fürs Haus, inkl Ausstattung: noch zu ermitteln
favorisierte Heiztechnik: Fernwärme
Wenn Ihr verzichten müsst, auf welche Details/Ausbauten
-könnt Ihr verzichten: Badewanne
-könnt Ihr nicht verzichten: Kontrollierte-Wohnraumlüftung, Hebe/Schiebetüren
Warum ist der Entwurf so geworden, wie er jetzt ist? ZB
Standardentwurf vom Planer? Eigene Vorlieben in den Standardentwurf eingebracht: Küche zur Terrasse; Waschmaschine/Trockner im Bad OG; Große Schiebetüren zur Terrasse.
Entsprechende/Welche Wünsche wurden vom Architekten umgesetzt?
Ein Gemisch aus vielen Beispielen aus div. Magazinen... und Pinterest
Was macht ihn in Euren Augen besonders gut oder schlecht? Schöner offener Koch/Essbereich. Sofaecke ist verhältnismäßig schmal aber nahezu identisch mit unserem jetzigen Fernsehbereich in der Mietwohnung.
Was ist die grundlegende Frage zum Grundriss in 130 Zeichen zusammengefasst?
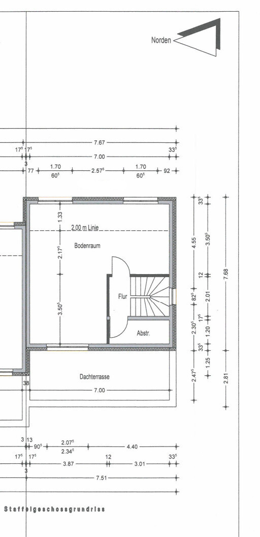
Allgemeine Verbesserungsvorschläge? Position von Garage/Carport (mit angeschlossenem extra Raum)? Wie Staffelgeschoss verwenden oder Teilen?
Anmerkungen zum Grundriss:
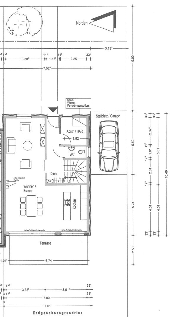
In der Küche fehlt noch ein Fenster in der Südwand und die genauen Maße der Hebe/Schiebetüren und Kochinsel müssen noch mit dem Küchenstudio besprochen werden.
Zugang von Diele zu Wohnzimmer noch unklar was für eine Schiebetür und welche Breite.
Badezimmermöblierung ist noch nicht wirklich geplant, wir brauchen keine Badewanne, dafür Bodenebene Dusche sowie Waschmaschine/Trockner.
Durch die Reihenendhausthematik und maximale Breite von ca. 7.6 m sind wir natürlich recht beschränkt was Änderungen angeht, freuen uns aber falls ihr Profis hier noch Vorschläge zu Optimierungen habt.
LG Michi



Größe des Grundstücks: 10,66 m * 37,5 m
Hang: flach, Westausrichtung
Grundflächenzahl 0,3
Geschossflächenzahl 0,6
Baufenster, Baulinie und -grenze: 3 m zum Südgrundstück (Garage erlaubt)
Randbebauung: an Nordseite ja
Anzahl Stellplatz: 1-2
Geschossigkeit: 2 Vollgeschosse plus Staffelgeschoss
Dachform: Pultdach/Flachdach
Stilrichtung: modern
Ausrichtung: Eingang Osten, Garten Westen
Maximale Höhen/Begrenzungen: Mindestens 6 m, Max: 11 m
Anforderungen der Bauherren
Stilrichtung, Dachform, Gebäudetyp
Keller, Geschosse. Kein Keller, 2 Vollgeschosse und Staffelgeschoss, Pultdach
Anzahl der Personen, Alter: 2 x Mitte dreißig, 2 Kleinkinder
Raumbedarf im EG, OG
Büro: Familiennutzung oder Homeoffice? Familie
Schlafgäste pro Jahr: 3-5
offene oder geschlossene Architektur: offen
konservativ oder moderne Bauweise: modern
offene Küche, Kochinsel: beides ja
Anzahl Essplätze: 4 regelmäßig
Kamin: ja
Musik/Stereowand: nein
Balkon, Dachterrasse: Dachterrasse
Garage, Carport: gerne: Garage muss 5m von der Straße (Osten) entfernt sein, damit ein zweites Auto parken kann.
Nutzgarten, Treibhaus: nein
Hausentwurf
Von wem stammt die Planung:
-Planer eines Bauunternehmens mit eigenen Anpassungen
Was gefällt besonders? Warum? Küche zur Terrasse
Was gefällt nicht? Warum? Wohnzimmer schmal
Preisschätzung lt Architekt/Planer:
Persönliches Preislimit fürs Haus, inkl Ausstattung: noch zu ermitteln
favorisierte Heiztechnik: Fernwärme
Wenn Ihr verzichten müsst, auf welche Details/Ausbauten
-könnt Ihr verzichten: Badewanne
-könnt Ihr nicht verzichten: Kontrollierte-Wohnraumlüftung, Hebe/Schiebetüren
Warum ist der Entwurf so geworden, wie er jetzt ist? ZB
Standardentwurf vom Planer? Eigene Vorlieben in den Standardentwurf eingebracht: Küche zur Terrasse; Waschmaschine/Trockner im Bad OG; Große Schiebetüren zur Terrasse.
Entsprechende/Welche Wünsche wurden vom Architekten umgesetzt?
Ein Gemisch aus vielen Beispielen aus div. Magazinen... und Pinterest
Was macht ihn in Euren Augen besonders gut oder schlecht? Schöner offener Koch/Essbereich. Sofaecke ist verhältnismäßig schmal aber nahezu identisch mit unserem jetzigen Fernsehbereich in der Mietwohnung.
Was ist die grundlegende Frage zum Grundriss in 130 Zeichen zusammengefasst?
Allgemeine Verbesserungsvorschläge? Position von Garage/Carport (mit angeschlossenem extra Raum)? Wie Staffelgeschoss verwenden oder Teilen?
Anmerkungen zum Grundriss:
In der Küche fehlt noch ein Fenster in der Südwand und die genauen Maße der Hebe/Schiebetüren und Kochinsel müssen noch mit dem Küchenstudio besprochen werden.
Zugang von Diele zu Wohnzimmer noch unklar was für eine Schiebetür und welche Breite.
Badezimmermöblierung ist noch nicht wirklich geplant, wir brauchen keine Badewanne, dafür Bodenebene Dusche sowie Waschmaschine/Trockner.
Durch die Reihenendhausthematik und maximale Breite von ca. 7.6 m sind wir natürlich recht beschränkt was Änderungen angeht, freuen uns aber falls ihr Profis hier noch Vorschläge zu Optimierungen habt.
LG Michi
Ich frage mich, warum der Grundriss nicht gespiegelt daherkommt, sodass die Treppe an der Zwischenwand zum Nachbarn liegt. Man würde durch die Südausrichtung an der Seite doch mit gezielten Fenstern umd Carport herum mehr Licht ins Haus bekommen. TK und WC wären zu tauschen. Für mich macht das mehr Sinn, aber ich suche noch den Denkfehler bei mir
Auf die Wanne würde ich schon wegen der Kleinkinder nicht darauf verzichten. Die hätten die nächsten 10 Jahre was von ihr, und Ihr hättet später etwas von ihr, wenn die Zeit für Erholungsbäder da ist
Die Treppe im EG würde ich schliessen, sodass sich darunter wertvoller Abstellraum ergibt.
Auf die Wanne würde ich schon wegen der Kleinkinder nicht darauf verzichten. Die hätten die nächsten 10 Jahre was von ihr, und Ihr hättet später etwas von ihr, wenn die Zeit für Erholungsbäder da ist
Die Treppe im EG würde ich schliessen, sodass sich darunter wertvoller Abstellraum ergibt.
N
Nordisch1728.07.17 15:01Hi ypg,
Die gespiegelte Variante war tatsächlich die Ausgangssituation, von daher hast Du keinen Denkfehler
Zwei Gründe warum wir die aktuelle Planung favorisieren: wegen Carport wäre es gar nicht so viel mehr Licht (außerdem ist auf dieser Höhe in 6 m Entfernung die Wand des Nachbarn). Zweitens soll die Küche ja noch ein Fenster zur Südseite bekommen. Auf der Höhe des Küchenfensters ist Richtung Süden der Blick für 50 m unverbaut.
Mit Treppe hast Du Recht, wir müssen jeden Platz sinnvoll nutzen.
Badewanne schwierig... die Kids baden noch in so einer extra Wanne und wir sind Duschtypen. Der Joker wäre (eines fernen Tages) im Staffelgeschoss unser Schlafzimmer mit Bad unterzubringen.
TK und WC ist glaube ich deswegen so angeordnet, da WC eingerückt ist um mehr Platz für Diele und Treppenhaus zu lassen. TK hätte wenn eingerückt weniger qm...
Die gespiegelte Variante war tatsächlich die Ausgangssituation, von daher hast Du keinen Denkfehler
Zwei Gründe warum wir die aktuelle Planung favorisieren: wegen Carport wäre es gar nicht so viel mehr Licht (außerdem ist auf dieser Höhe in 6 m Entfernung die Wand des Nachbarn). Zweitens soll die Küche ja noch ein Fenster zur Südseite bekommen. Auf der Höhe des Küchenfensters ist Richtung Süden der Blick für 50 m unverbaut.
Mit Treppe hast Du Recht, wir müssen jeden Platz sinnvoll nutzen.
Badewanne schwierig... die Kids baden noch in so einer extra Wanne und wir sind Duschtypen. Der Joker wäre (eines fernen Tages) im Staffelgeschoss unser Schlafzimmer mit Bad unterzubringen.
TK und WC ist glaube ich deswegen so angeordnet, da WC eingerückt ist um mehr Platz für Diele und Treppenhaus zu lassen. TK hätte wenn eingerückt weniger qm...
Nordisch17 schrieb:
Der Joker wäre (eines fernen Tages) im Staffelgeschoss unser Schlafzimmer mit Bad unterzubringen.Eines fernen Tages wird man älter sein und weniger gerne so hoch krabbeln.https://www.instagram.com/11antgmxde/
https://www.linkedin.com/company/bauen-jetzt/
Ich bin eigentlich immer einer derjenigen, der sofort schreit "Küche an die Terrasse, Wohnzimmer tendenziell eher ruhig", also so, wie es hier ist.
Aber bei einer Breite von 3,3m im Wohnzimmer... ich würde es in diesem Fall doch drehen... mit 3,3m wirkt es unglaublich schlauchig und ist ungemütlich. Hingegen bekommt man eine Küche ganz gut rein... klar keine Traumküche, aber es ist halt nen schmales Reihenhaus, da muss man sowieso so einige Kompromisse eingehen.
Zur Badewanne: Dachte auch immer brauchen wir ned, aber seitdem die Kinde regelmäßig baden (wollen), bin ich heilfroh, eine zu haben. Würde ich also auch nicht darauf verzichten.
Aber bei einer Breite von 3,3m im Wohnzimmer... ich würde es in diesem Fall doch drehen... mit 3,3m wirkt es unglaublich schlauchig und ist ungemütlich. Hingegen bekommt man eine Küche ganz gut rein... klar keine Traumküche, aber es ist halt nen schmales Reihenhaus, da muss man sowieso so einige Kompromisse eingehen.
Zur Badewanne: Dachte auch immer brauchen wir ned, aber seitdem die Kinde regelmäßig baden (wollen), bin ich heilfroh, eine zu haben. Würde ich also auch nicht darauf verzichten.
Ähnliche Themen