S
Sandra&Thilo23.07.24 13:42Hallo ins Forum,
meine Familie und ich habe uns letztes Jahr den Traum vom (gebrauchten) Eigenheim erfüllt und die zunächst wichtigsten Dinge erledigt.
Nun beschäftigen wir uns langsam mit dem Innenleben, und vor allem: dem Masterbad.
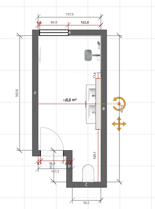
Das Bad ist aktuell gerade ausreichend, mit seinen knapp 8 qm eher klein und es ist in einem altersgemäßen Zustand, sprich es muss raus.
Der Vollständigkeit halber füge ich hier direkt mal einen Grundriss dazu, da ich andere Bad-Threads schon zur Genüge konsultiert habe, jedoch auf das Schwarmwissen hoffe, und ich vielleicht noch die ein oder andere Idee generiere, bevor wir mit der Planung konkreter werden.

anbei auch noch ein paar Bilder des Bads aktuell:
Das nötigste in diesem Bad war ein Doppelwaschtisch von Geberit, der soll nach Möglichkeit weiter Verwendung finden.
Folgende Randbedingungen / Überlegungen gibt es:
- Da wir als 7-köpfige Familie die Badewanne seit einem Jahr überhaupt nicht ein einziges Mal genutzt haben würden wir keine Badewanne einplanen.
Das kommt dem Grundriss vermutlich entgegen. Was spricht hier dafür / dagegen? Eine weitere Wanne gibt es nicht im Haus.
- Ich würde gerne die Dusche als Walk-in Dusche nach "hinten rechts" platzieren um dem Raum die Tiefe zu nehmen. Der Wasserablauf dann als geflieste Fuge am Boden direkt an der Wand. Vom Ablauf müsste das passen, da die Badewanne aktuell dort auch den Ablauf hat.
Eingang in den Duschbereich von links, Handtuchhalter an der Wand links im Eingangsbereich zur Dusche.
- Da wir über kurz oder lang sowieso die Fenster tauschen werden überlege ich das Fenster nach links an die Wand direkt in die Raumecke umsetzen und Bodentief machen, den unteren Teil festverglast, den oberen zum Öffnen, wegen der Lüftung. ggf. oben noch ein Oberlicht ergänzt über die komplette Breite. Ich könnte mir allerdings auch eine Lüftung in dem Raum plus Festverglasung vorstellen, wenn nichts dagegen spricht. Ich vermute, dass man das aktuelle Holzfenster nicht so belassen kann aufgrund der Feuchtigkeit im Spitzbereich der Dusche richtig?
-Von der Oberfläche her würde ich helle große Fliesen bevorzugen aber nur im Spritzbereich, im Rest einen wasserabweisenden Lehmputz, der auch die Feuchtigkeit im Raum gut reguliert.
- Die Toilette hätte ich an die Stelle platziert, wo jetzt die Dusche ist und die aktuelle Trennwand eventuell so gelassen, allerdings verstärkt diese den schlauchartigen Charakter des Raumes aktuell noch mehr. Daher hatte ich mit dem Gedanken gespielt diese Wand doch zu entfernen und dafür die Tür auf die andere Seite anzuschlagen, sodass man dennoch als Benutzer der Toilette nicht sofort auf dem Präsentierteller sitzt.
- Eine Öffnung der Tür nach Außen wäre ggf. auch möglich.
Vom Tageslicht her ist das Bad eher auf der dunkleren Seite, da vor dem Fenster unser großer Walnussbaum steht, daher würde ich nach Möglichkeit die vorhandene Fensterfläche vergrößern.
- Die Wand links ist eine sog. "Installationswand" aus Leichtbeton. die Anschlüsse sind alle aus dem Baujahr. ich vermute mal die sollte man im Zuge der Sanierung komplett austauschen, wenn man eh die Wand bearbeitet.
Die Wasser, Abwasser und Heizungsleitungen sind von der Lage her bekannt, da wir noch Fotos vor dem Estrichlegen, haben.
Über diesem Bad kommen vom Bad im OG, das sich direkt darüber befindet die Leitungen durch diese Wand.
Wenn man nun eh am Rohbau etwas macht, hatte ich mir überlegt, dass man theoretisch zwei Möglichkeiten hätte die Grundfläche des Bads zu vergrößern:
- Man entfernt die linke Begrenzungswand der Dusche und setzt eine neue Tür im 45° Winkel ein --> weniger schlauchig, plus 0,5qm
- Man "opfert" ca. 50-maximal 70 cm des Wohnzimmers und versetzt die Wand, dem Wohnzimmer täte es nicht weh. Dadurch ergäbe sich mit einer neue Raumbreite von ca. 2,5m eine neue Grundfläche von 10 qm. Lediglich etwas blöd wäre im Wohnzimmer dass hier die Raumhöhe bis auf 4,7 Meter hoch geht (Luftraum) Diesen Raum könnte man aus meiner Sicht nicht sinnvoll nutzen und müsste ihn mit einer Trockenbauwand verkleiden.
Zur Nutzung noch folgendes. Wir haben derzeit 2 Bäder mit Dusche plus ein Gäste-WC, diese sind in den Stoßzeiten gut belegt, aber es funktioniert.
Die Kinder sind jetzt allerdings im Alter von 4 ,8,9,10 und 11, daher gehe ich davon aus, dass die Duschzeiten sich in naher Zukunft deutlich erhöhen werden und sich auch die Belegung der Bäder morgens verlängert. Vielleicht kann man hier schon den Blick in die Zukunft einfließen lassen mit paralleler Nutzungsmöglichkeit von Dusche plus WC und die Privatsphäre noch einigermaßen zu wahren.
Ich hoffe es ist alles an Informationen drin und dennoch nicht zu lang, bitte um Feedback.
Grüße
Thilo



meine Familie und ich habe uns letztes Jahr den Traum vom (gebrauchten) Eigenheim erfüllt und die zunächst wichtigsten Dinge erledigt.
Nun beschäftigen wir uns langsam mit dem Innenleben, und vor allem: dem Masterbad.
Das Bad ist aktuell gerade ausreichend, mit seinen knapp 8 qm eher klein und es ist in einem altersgemäßen Zustand, sprich es muss raus.
Der Vollständigkeit halber füge ich hier direkt mal einen Grundriss dazu, da ich andere Bad-Threads schon zur Genüge konsultiert habe, jedoch auf das Schwarmwissen hoffe, und ich vielleicht noch die ein oder andere Idee generiere, bevor wir mit der Planung konkreter werden.
anbei auch noch ein paar Bilder des Bads aktuell:
Das nötigste in diesem Bad war ein Doppelwaschtisch von Geberit, der soll nach Möglichkeit weiter Verwendung finden.
Folgende Randbedingungen / Überlegungen gibt es:
- Da wir als 7-köpfige Familie die Badewanne seit einem Jahr überhaupt nicht ein einziges Mal genutzt haben würden wir keine Badewanne einplanen.
Das kommt dem Grundriss vermutlich entgegen. Was spricht hier dafür / dagegen? Eine weitere Wanne gibt es nicht im Haus.
- Ich würde gerne die Dusche als Walk-in Dusche nach "hinten rechts" platzieren um dem Raum die Tiefe zu nehmen. Der Wasserablauf dann als geflieste Fuge am Boden direkt an der Wand. Vom Ablauf müsste das passen, da die Badewanne aktuell dort auch den Ablauf hat.
Eingang in den Duschbereich von links, Handtuchhalter an der Wand links im Eingangsbereich zur Dusche.
- Da wir über kurz oder lang sowieso die Fenster tauschen werden überlege ich das Fenster nach links an die Wand direkt in die Raumecke umsetzen und Bodentief machen, den unteren Teil festverglast, den oberen zum Öffnen, wegen der Lüftung. ggf. oben noch ein Oberlicht ergänzt über die komplette Breite. Ich könnte mir allerdings auch eine Lüftung in dem Raum plus Festverglasung vorstellen, wenn nichts dagegen spricht. Ich vermute, dass man das aktuelle Holzfenster nicht so belassen kann aufgrund der Feuchtigkeit im Spitzbereich der Dusche richtig?
-Von der Oberfläche her würde ich helle große Fliesen bevorzugen aber nur im Spritzbereich, im Rest einen wasserabweisenden Lehmputz, der auch die Feuchtigkeit im Raum gut reguliert.
- Die Toilette hätte ich an die Stelle platziert, wo jetzt die Dusche ist und die aktuelle Trennwand eventuell so gelassen, allerdings verstärkt diese den schlauchartigen Charakter des Raumes aktuell noch mehr. Daher hatte ich mit dem Gedanken gespielt diese Wand doch zu entfernen und dafür die Tür auf die andere Seite anzuschlagen, sodass man dennoch als Benutzer der Toilette nicht sofort auf dem Präsentierteller sitzt.
- Eine Öffnung der Tür nach Außen wäre ggf. auch möglich.
Vom Tageslicht her ist das Bad eher auf der dunkleren Seite, da vor dem Fenster unser großer Walnussbaum steht, daher würde ich nach Möglichkeit die vorhandene Fensterfläche vergrößern.
- Die Wand links ist eine sog. "Installationswand" aus Leichtbeton. die Anschlüsse sind alle aus dem Baujahr. ich vermute mal die sollte man im Zuge der Sanierung komplett austauschen, wenn man eh die Wand bearbeitet.
Die Wasser, Abwasser und Heizungsleitungen sind von der Lage her bekannt, da wir noch Fotos vor dem Estrichlegen, haben.
Über diesem Bad kommen vom Bad im OG, das sich direkt darüber befindet die Leitungen durch diese Wand.
Wenn man nun eh am Rohbau etwas macht, hatte ich mir überlegt, dass man theoretisch zwei Möglichkeiten hätte die Grundfläche des Bads zu vergrößern:
- Man entfernt die linke Begrenzungswand der Dusche und setzt eine neue Tür im 45° Winkel ein --> weniger schlauchig, plus 0,5qm
- Man "opfert" ca. 50-maximal 70 cm des Wohnzimmers und versetzt die Wand, dem Wohnzimmer täte es nicht weh. Dadurch ergäbe sich mit einer neue Raumbreite von ca. 2,5m eine neue Grundfläche von 10 qm. Lediglich etwas blöd wäre im Wohnzimmer dass hier die Raumhöhe bis auf 4,7 Meter hoch geht (Luftraum) Diesen Raum könnte man aus meiner Sicht nicht sinnvoll nutzen und müsste ihn mit einer Trockenbauwand verkleiden.
Zur Nutzung noch folgendes. Wir haben derzeit 2 Bäder mit Dusche plus ein Gäste-WC, diese sind in den Stoßzeiten gut belegt, aber es funktioniert.
Die Kinder sind jetzt allerdings im Alter von 4 ,8,9,10 und 11, daher gehe ich davon aus, dass die Duschzeiten sich in naher Zukunft deutlich erhöhen werden und sich auch die Belegung der Bäder morgens verlängert. Vielleicht kann man hier schon den Blick in die Zukunft einfließen lassen mit paralleler Nutzungsmöglichkeit von Dusche plus WC und die Privatsphäre noch einigermaßen zu wahren.
Ich hoffe es ist alles an Informationen drin und dennoch nicht zu lang, bitte um Feedback.
Grüße
Thilo
S
Sandra&Thilo23.07.24 13:51kurze Ergänzung, das Fenster zeigt nach Süd-Süd-Ost
S
Sandra&Thilo23.07.24 15:25ich habe mich mal am kostenlosen Planer von Kaldewei versucht. Diese Software ist wirklich zu fast nichts zu gebrauchen, aber naja, ich hab da mal was gemacht.
die idee ist, auf die Wand vor der dusche eine glasscheibe zu setzen bis nach oben und die wand mit glas ggf etwas zu verlängern, das gibt dieses Tool nicht her. eventuell die ganze wand aus glas, und im unteren Bereich satiniert oder mit Folie.



die idee ist, auf die Wand vor der dusche eine glasscheibe zu setzen bis nach oben und die wand mit glas ggf etwas zu verlängern, das gibt dieses Tool nicht her. eventuell die ganze wand aus glas, und im unteren Bereich satiniert oder mit Folie.
S
Sandra&Thilo23.07.24 16:35Ich finde die Lage der Dusche eigentlich ganz gut dort, wo sie jetzt auch ist.
Ich würde zusehen, dass unter dem zu erhaltenen Waschtisch ein Schrank kommt, also statt dem Platzfresser links.
Durch den Schrank wäre die Toi dann etwas geschützt. Wenn das nicht reicht, dann kann man ja eine Schamwand erstellen.
Auf Wanne würde ich nicht verzichten - dazu gibt es genug andere Einsatzmöglichkeiten. Die könnte man aber drehen und in die linke hinter Ecke setzen. Wenn Inr drauf verzichten wollt, dann eben Verzicht.
Toi würde ich immer am Fenster haben wollen, wenn möglich. Außerdem geben kurze Leitungswege vom Abfluss bis zur Außenwand Sicherheit.
Ich würde zusehen, dass unter dem zu erhaltenen Waschtisch ein Schrank kommt, also statt dem Platzfresser links.
Durch den Schrank wäre die Toi dann etwas geschützt. Wenn das nicht reicht, dann kann man ja eine Schamwand erstellen.
Auf Wanne würde ich nicht verzichten - dazu gibt es genug andere Einsatzmöglichkeiten. Die könnte man aber drehen und in die linke hinter Ecke setzen. Wenn Inr drauf verzichten wollt, dann eben Verzicht.
Toi würde ich immer am Fenster haben wollen, wenn möglich. Außerdem geben kurze Leitungswege vom Abfluss bis zur Außenwand Sicherheit.
M
motorradsilke24.07.24 04:42Sandra&Thilo schrieb:
Der Planer von Elements ist deutlich einfacher und schneller zu bedienen. 
Mir würde das Bad so gefallen. Die Glaswand würde ich etwas breiter machen, damit es nicht rausspritzt. Die Dusche würde ich auch nicht in der Nische lassen, wäre mir zu beengt.
Wir haben auch keine Wanne, haben wir seit 3 Jahren nicht vermisst, hatten wir im alten Haus jahrelang nicht benutzt. Für die 3 Mal im Jahr, wo ich sie z.B. für größere Wäschestücke brauchen würde, hab ich eine Plastikwanne, die auf dem Wäscheplatz lagert. Für eine Wanne, die man nicht nutzt, würde ich nicht den doch recht wenigen Platz opfern. Und regelmäßig putzen muss man sie auch.
Ähnliche Themen