ᐅ Badplanung: Ideen für Badgestaltung kleines Bad (7,8 m²) gesucht.
Erstellt am: 18.11.20 00:15
O
Olli-KaMoin zusammen,
unsere Hausplanung nimmt langsam konkrete Formen an.
Irgendwie kommen wir mit dem (Haupt)Bad noch nicht so ganz klar.
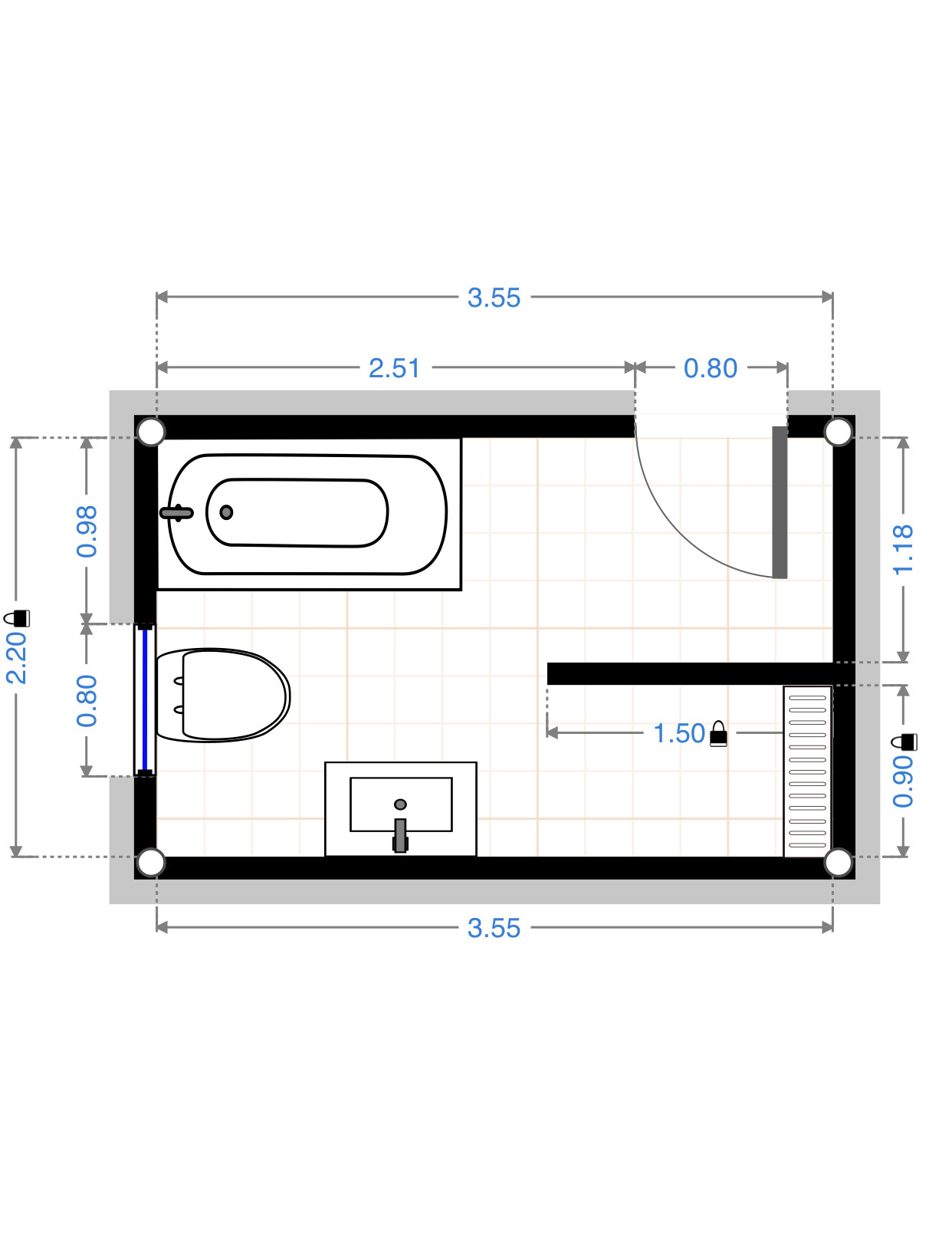
Da sich alle wesentlichen Räume im EG befinden sollen ist das Bad sehr klein (3,55m x 2,20 m).
Folgende Elemente sollen enthalten sein:
Das Fenster könnte nach links oder rechts verschoben bzw. in der Größe verändert werden.
Die eingezeichneten Zwischenwände sollten idealerweise aus Glas und ca. 2m hoch sein.
Was sagt Ihr so zu diesen Entwurf?
Vielleicht habt Ihr hier noch irgendwelche Ideen?
Ach ja, wir sind nur zu zweit und es gibt noch ein kleines Gästebad mit Dusche.
Einen Entwurf habe ich mal angefügt.
Vielen dank schonmal und schöne Grüße
Olli

unsere Hausplanung nimmt langsam konkrete Formen an.
Irgendwie kommen wir mit dem (Haupt)Bad noch nicht so ganz klar.
Da sich alle wesentlichen Räume im EG befinden sollen ist das Bad sehr klein (3,55m x 2,20 m).
Folgende Elemente sollen enthalten sein:
- Begehbare Dusche
- waschtisch ca. 80 cm breit.
- Badewanne
- WC
- Handtuchheizkörper
Das Fenster könnte nach links oder rechts verschoben bzw. in der Größe verändert werden.
Die eingezeichneten Zwischenwände sollten idealerweise aus Glas und ca. 2m hoch sein.
Was sagt Ihr so zu diesen Entwurf?
Vielleicht habt Ihr hier noch irgendwelche Ideen?
Ach ja, wir sind nur zu zweit und es gibt noch ein kleines Gästebad mit Dusche.
Einen Entwurf habe ich mal angefügt.
Vielen dank schonmal und schöne Grüße
Olli
O
Osnabruecker18.11.20 06:28Bei dem kleinen Grundriss habt ihr das möglichste raus geholt.
Bleibt unbedingt bei Glaswänden, oder die letztens vorgeschlagene Variante 1m Mauer, darauf Glas.
Wofür ist die Wand an der Wanne? Sehe keinen Sinn.
Bleibt unbedingt bei Glaswänden, oder die letztens vorgeschlagene Variante 1m Mauer, darauf Glas.
Wofür ist die Wand an der Wanne? Sehe keinen Sinn.
A
Alessandro18.11.20 09:15warum brauchst du so eine große Dusche?
Wenn du die kleiner machst, dann passt eine Badewanne dahinter:

Wenn du die Größe beibehalten willst, dann würde ich es anders platzieren, so dass du die Anschlüsse alle in der Trockenbauwand und nicht in einer Außenwand hast.
Das lässt auch ein Doppelwaschbecken zu..

Wenn du die kleiner machst, dann passt eine Badewanne dahinter:
Wenn du die Größe beibehalten willst, dann würde ich es anders platzieren, so dass du die Anschlüsse alle in der Trockenbauwand und nicht in einer Außenwand hast.
Das lässt auch ein Doppelwaschbecken zu..
G
goalkeeper18.11.20 11:29Das hier wäre theoretisch auch noch eine Idee. Hierbei könntest du in der Walk-In Dusche komplett auf Glas verzichten, da du direkt Tageslicht vom dahinter liegenden Fenster bekommst.
Auch würde ich auf eine Eckbadewanne verzichten. Da hast du viel weniger Platz drin wie in einer normalen. Das hier jetzt ist eine 1,80 x 0,80cm.

Auch würde ich auf eine Eckbadewanne verzichten. Da hast du viel weniger Platz drin wie in einer normalen. Das hier jetzt ist eine 1,80 x 0,80cm.
P
pagoni202018.11.20 13:03Auif jeden Fall würde ich die Duschwand auch halbhoch mauern ud Glas drauf; dieses dann außen aufstellen, dann hast innen 10cm mehr Bewegungsfreiheit im oberen Bereich und gleichzeitig ne Abstellmöglichkeit; zudem erheblich einfacher abzuziehen nach dem Duschen.
Hast Du die jeweils nötige Vormauerung für Dusch, WC, Waschtisch und Wanne berücksichtigt ?
Letztlich ist es wohl eher eine Frage der Präferenz. Reicht der Waschtisch mit 80cm tatsächlich oder hättest lieber eine breitere Ablage drunter, reicht eine Eckewanne für den ersehnten Genuss, soll es eine Walkin-Dusche sein etc.
Ab 90x90cm kann man absolut komfortabel duschen, somit kännte auch eine Glastür rein. Walkin geht bedingt aber ausreichend 120 Tiefe je nach Situation, besser 140cm oder etwas mehr.
Handtuchheizkörper sind mMn überbewertet, darauf würde ich eher verzichten, falls er besonderen Platz beansprucht. Ein schöner, breiter Waschtisch wäre z.B. für mich wichtig und vor Allem Abstell- und Lagerfläche für Handtücher, WC-Rollen, Reinigungszeugs, Duschzeugs etc.
Ich hatte fanz früher mal ein Bad mit 12qm; innen Tanzsaalcharakter, Abstellmöglichkeiten Null. Das wäre für mich auch wichtig zu bedenken.
Wir sind auch zu zweit und letztlich wird es eher Mein-Bad und Dein-Bad.....daher könnte man ja auch da Schwerpunkte unterschiedlich setzen,.
Hast Du die jeweils nötige Vormauerung für Dusch, WC, Waschtisch und Wanne berücksichtigt ?
Letztlich ist es wohl eher eine Frage der Präferenz. Reicht der Waschtisch mit 80cm tatsächlich oder hättest lieber eine breitere Ablage drunter, reicht eine Eckewanne für den ersehnten Genuss, soll es eine Walkin-Dusche sein etc.
Ab 90x90cm kann man absolut komfortabel duschen, somit kännte auch eine Glastür rein. Walkin geht bedingt aber ausreichend 120 Tiefe je nach Situation, besser 140cm oder etwas mehr.
Handtuchheizkörper sind mMn überbewertet, darauf würde ich eher verzichten, falls er besonderen Platz beansprucht. Ein schöner, breiter Waschtisch wäre z.B. für mich wichtig und vor Allem Abstell- und Lagerfläche für Handtücher, WC-Rollen, Reinigungszeugs, Duschzeugs etc.
Ich hatte fanz früher mal ein Bad mit 12qm; innen Tanzsaalcharakter, Abstellmöglichkeiten Null. Das wäre für mich auch wichtig zu bedenken.
Wir sind auch zu zweit und letztlich wird es eher Mein-Bad und Dein-Bad.....daher könnte man ja auch da Schwerpunkte unterschiedlich setzen,.
Ähnliche Themen