ᐅ Positionierung von WC und Waschtisch im Kinderbad
Erstellt am: 06.05.17 08:52
B
baumhaus81506.05.17 08:52Hallo zusammen,
unser Hausgrundriss steht jetzt im Wesentlichen fest. Unter anderem sind wir uns allerdings noch unschlüssig, was die Positionierung von WC und waschtisch im Kinderbad anbetrifft.
Rahmenbedingungen Kinderbad:
* Größe ca. 4,3 m2
* Abmessungen: ca. 1,65m * 2,6m
* Bad liegt im Zwerchgiebel, mit bodentiefem Fenster gegenüber der Eingangstür
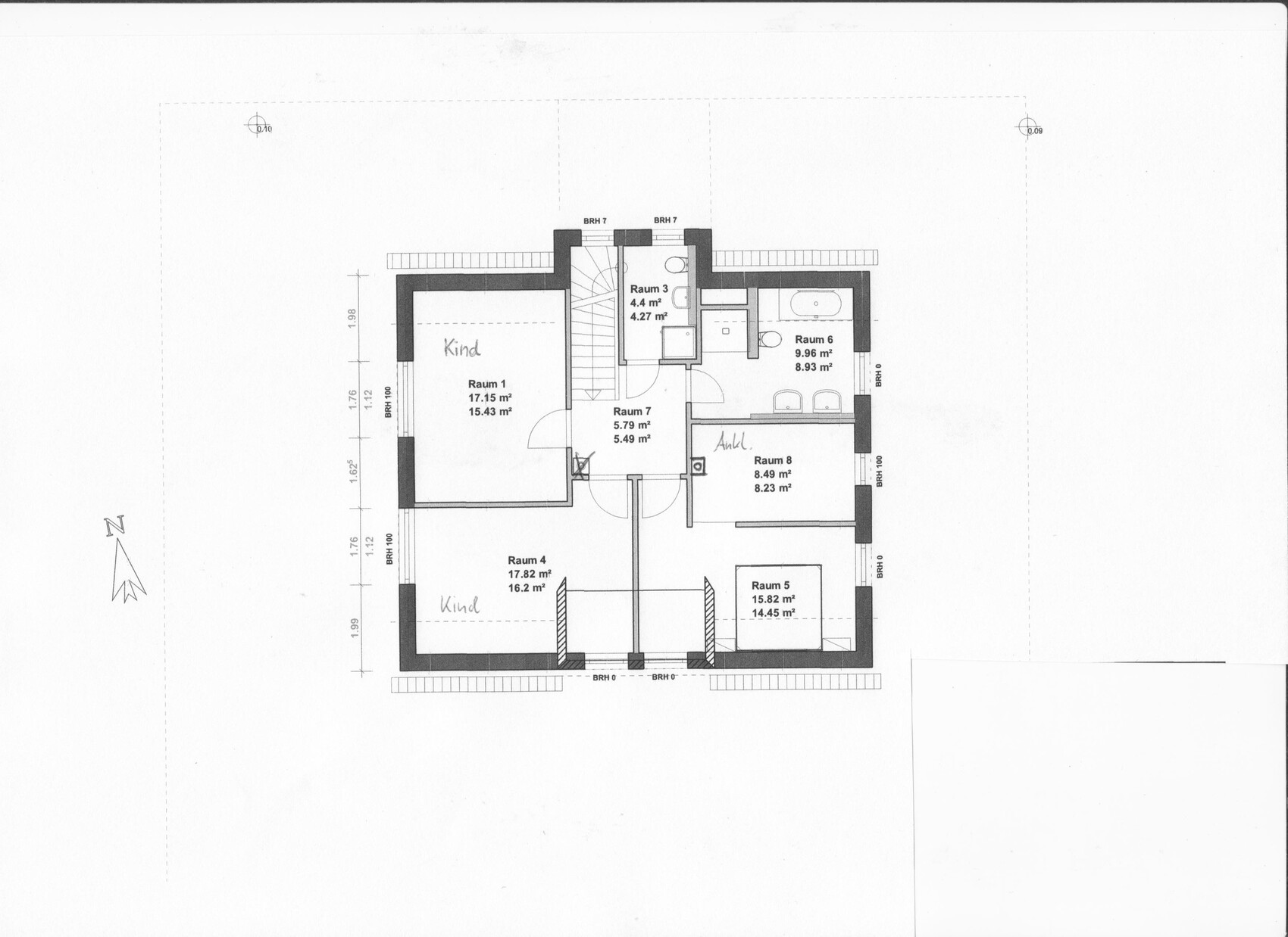
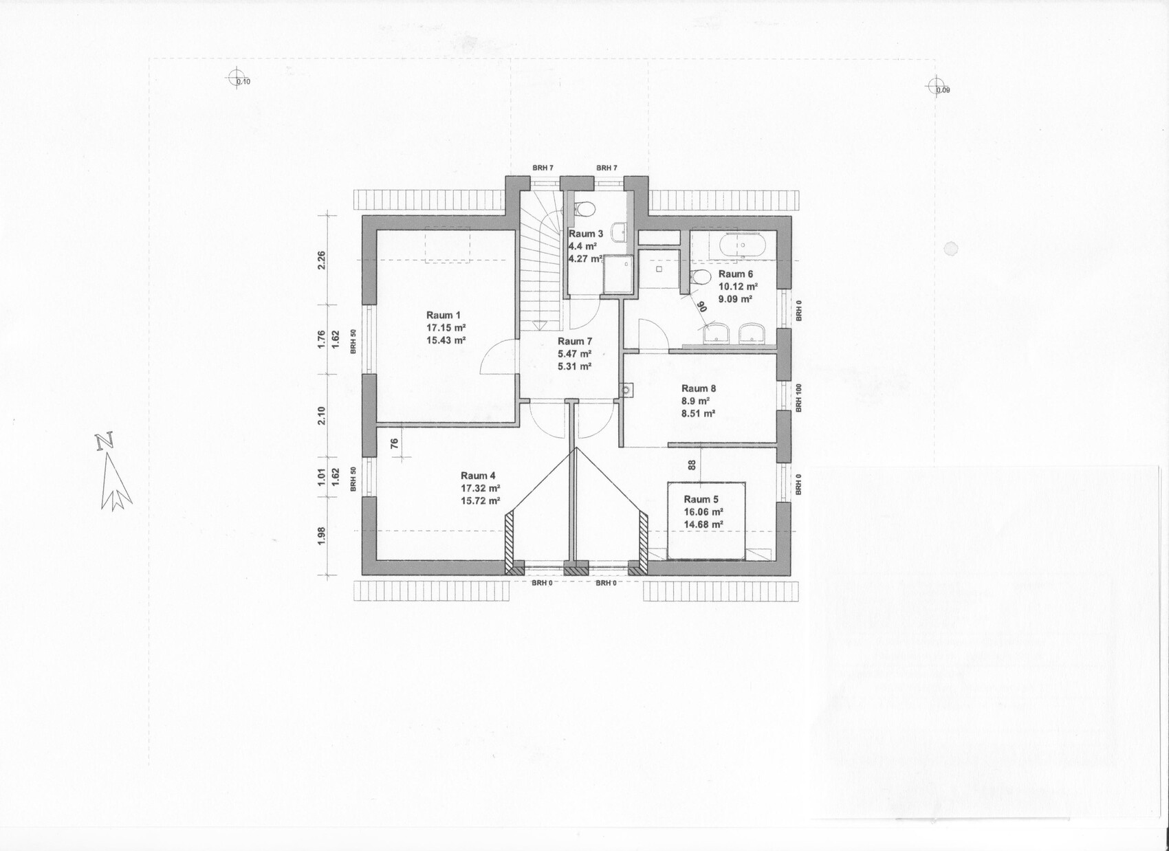
Zuerst hatten wir Dusche, Waschtisch und WC alles an einer Wand planrechts angeordnet. Vorteil: bautechnisch einfacher, evtl. "übersichtlicher"; Nachteil: WC vor (bodentiefem) Fenster, der Raum planlinks ist eher ungenutzt und alles sieht ziemlich "aufgereiht" aus.
Siehe EntwurfII_OG
Alternativ dazu haben wir jetzt die Toilette gegenüber, planlinks geplant. Vorteil: Toilette ist weg vom Fenster, Nachteil: Wir benötigen zum einen eine zusätzliche Vorwandinstallation, außerdem müsste das Abflussrohr dann innerhalb des Bads noch nach rechts geführt werden, damit es mit dem EG dann zusammenpasst.
Siehe OG 5c
Was meint ihr zu den Lösungen? Wir denken auch noch zusätzlich darüber nach, das WC planlinks oben in der Ecke diagonal im 45 Grad Winkel zu platzieren, da man somit die Fläche wahrscheinlich besser nutzen könnte.
Was würdet ihr aus eurer Erfahrung empfehlen? Danke vorab schonmal für die Antworten!


unser Hausgrundriss steht jetzt im Wesentlichen fest. Unter anderem sind wir uns allerdings noch unschlüssig, was die Positionierung von WC und waschtisch im Kinderbad anbetrifft.
Rahmenbedingungen Kinderbad:
* Größe ca. 4,3 m2
* Abmessungen: ca. 1,65m * 2,6m
* Bad liegt im Zwerchgiebel, mit bodentiefem Fenster gegenüber der Eingangstür
Zuerst hatten wir Dusche, Waschtisch und WC alles an einer Wand planrechts angeordnet. Vorteil: bautechnisch einfacher, evtl. "übersichtlicher"; Nachteil: WC vor (bodentiefem) Fenster, der Raum planlinks ist eher ungenutzt und alles sieht ziemlich "aufgereiht" aus.
Siehe EntwurfII_OG
Alternativ dazu haben wir jetzt die Toilette gegenüber, planlinks geplant. Vorteil: Toilette ist weg vom Fenster, Nachteil: Wir benötigen zum einen eine zusätzliche Vorwandinstallation, außerdem müsste das Abflussrohr dann innerhalb des Bads noch nach rechts geführt werden, damit es mit dem EG dann zusammenpasst.
Siehe OG 5c
Was meint ihr zu den Lösungen? Wir denken auch noch zusätzlich darüber nach, das WC planlinks oben in der Ecke diagonal im 45 Grad Winkel zu platzieren, da man somit die Fläche wahrscheinlich besser nutzen könnte.
Was würdet ihr aus eurer Erfahrung empfehlen? Danke vorab schonmal für die Antworten!
Die Variante Aufreihung bringt dir aber die Möglichkeit an die linke Wand dann auch mal noch einen flachen Schrank zu stellen. Auf beide Wände verteilt ist halt Slalomlaufen. Und zusätzlich einfach statt bodentiefer Fenster, die ich im Bad Richtung Straße eh für unnütz halte, jeweils Fenster mit Brüstungshöhe setzen. Ist auch fürs Duschen in dem Raum etc. viel angenehmer.
Ich schließe mich da an. Aufgereiht sieht auch aufgeräumt aus. Bodentiefes Fenster? Warum? Würde ich nie haben wollen im Bad, selbst wenn die Seite uneinsichtig wäre. Da schließt man doch immer wieder die Rollläden - falls vorhanden. So hat man nichts vom zusätzlichen Licht an den Füßen. Alternativ kann man natürlich die Unterseite satiniert, etwas blickdicht ausstatten oder mit Folie bekleben. Hat aber nun keinen wirklichen Sinn oder?
Viel Glück
Viel Glück
Wozu eigentlich ein Extra-Thread, Meinungen dazu gab es doch schon ?
Das fände ich als Killer-Argument schon überzeugend genug.
Ich glaube, nach aktuellem Stand der Auszählungen meinen wir unverändert mehrheitlich, die Reihung solle so bleiben. Wozu überhaupt die Klimmzüge ? - es ist doch alles drin, was rein soll. Wenn da noch ein Doppelwaschtisch hin müßte, oder ein Urinal, oder für sonst etwas die eine Wand allein und gerade zu kurz wäre. Aber so, wo alles an eine paßt - sind die Kinder gefürchtete Architekturkritiker ? - dann würde ich ihnen den Pott erst recht nicht in die Sichtachse des Raumbetretenden setzen.
So, und jetzt kann meinetwegen wieder jemand mosern, daß ich das nicht in zehn Worten gesagt habe.
https://www.instagram.com/11antgmxde/
https://www.linkedin.com/company/bauen-jetzt/
baumhaus815 schrieb:
Nachteil: Wir benötigen zum einen eine zusätzliche Vorwandinstallation, außerdem müsste das Abflussrohr dann innerhalb des Bads noch nach rechts geführt werden, damit es mit dem EG dann zusammenpasst.
Das fände ich als Killer-Argument schon überzeugend genug.
baumhaus815 schrieb:
Was meint ihr zu den Lösungen? Wir denken auch noch zusätzlich darüber nach, das WC planlinks oben in der Ecke diagonal im 45 Grad Winkel zu platzieren, da man somit die Fläche wahrscheinlich besser nutzen könnte.
Ich glaube, nach aktuellem Stand der Auszählungen meinen wir unverändert mehrheitlich, die Reihung solle so bleiben. Wozu überhaupt die Klimmzüge ? - es ist doch alles drin, was rein soll. Wenn da noch ein Doppelwaschtisch hin müßte, oder ein Urinal, oder für sonst etwas die eine Wand allein und gerade zu kurz wäre. Aber so, wo alles an eine paßt - sind die Kinder gefürchtete Architekturkritiker ? - dann würde ich ihnen den Pott erst recht nicht in die Sichtachse des Raumbetretenden setzen.
So, und jetzt kann meinetwegen wieder jemand mosern, daß ich das nicht in zehn Worten gesagt habe.
https://www.instagram.com/11antgmxde/
https://www.linkedin.com/company/bauen-jetzt/
Ich glaube, Du, TE, @lbdk14 denkst, dass es langweilig und ideenlos ist, diese Aufreihung.
Ist es aber überhaupt nicht 🙂
Die Fenster "da vorn" würde ich auch einkürzen: man kommt mittlerweile wieder von den Bodenfenstern ab - vor allem dort, wo sie unpassend sind, wie im Bad oder Flur
Ist es aber überhaupt nicht 🙂
Die Fenster "da vorn" würde ich auch einkürzen: man kommt mittlerweile wieder von den Bodenfenstern ab - vor allem dort, wo sie unpassend sind, wie im Bad oder Flur
Ähnliche Themen