ᐅ Beratung: Neues Badezimmer, 5,9qm mit Badewanne
Erstellt am: 22.12.20 18:02
A
ArniBanarni22.12.20 18:02Hallo zusammen,
meine Frau und ich sind gerade dabei unsere beiden Badezimmer neu zu planen.
Wir haben eine Doppelhaushälfte aus 2010 gekauft, nur leider sind die Badezimmer schlecht geplant und sehr heruntergekommen.
Freue mich daher sehr, dass es hier ein Forum gibt in dem die Planungen kritisch beäugt werden und danke im Voraus über euren Support.
Kurz zur Idee:
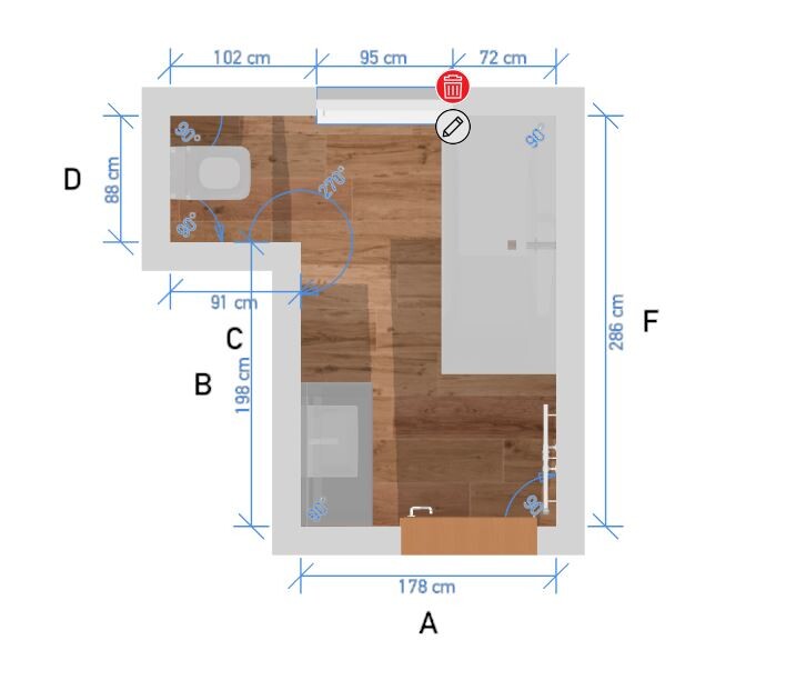
Badezimmer OG hat Badewanne.
Badezimmer UG hat Dusche.
Wir wollen beide Badezimmer komplett neu gestalten und die Wanne/Dusche tauschen. Hintergrund: Eltern, wie auch beide Mädchen (1Jahr & 2 Jahre) schlafen oben und wollen nicht zum Duschen ins EG laufen.
Im EG überlegen wir:
a) Nur Badewanne (Lösung 2) oder
b) Badewanne mit Duschmöglichkeit (Lösung 1)
Grundsätzliches:
Nur Badewanne:
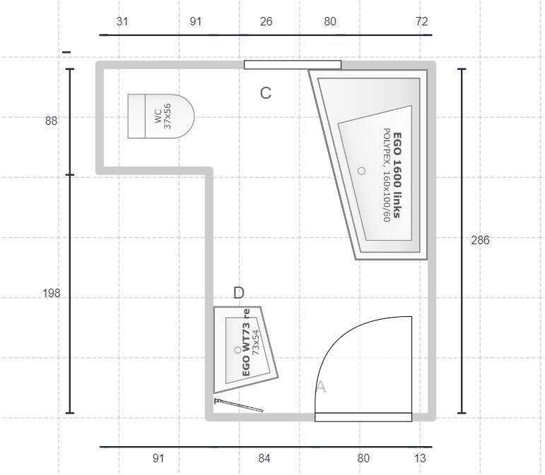
In diesem Fall kann die Badewanne ohne weiteres über das Fenster hinausstehen. Mithilfe der schrägen Form holen wir die maximale Breite heraus und die Wanne steht nicht im Weg. Zusätzliche Ablagefläche planen wir in der Wand.
Badewanne mit Duschmöglichkeit:
Ich (Papa) gehe davon aus, dass mit 3 Frauen im Haus es irgendwann zu Streitereien kommt wer wann duschen darf. Auch Gästen will man eine Duschmöglichkeit bieten. Aus diesem Grund will ich mir die Option offen halten, dass man im EG auch noch duschen kann. Hier stelle ich mir vor, dass ich eine normale Badewanne wähle und einen KLAPPBAREN Spritzschutz beim Fenstern einbauen lasse.
Ja, die Wanne ist 75cm Breit und steht über das Fenster hinaus. Da eine Wanne aber einen Rand von ca. 6cm hat stelle ich mir vor den Spritzschutz nicht am Rand der Wanne anzubringen, sondern an der Stelle, an der die Wanne nach unten geht. (Sorry kenne das Wort nicht)
Das waschbecken versuche ich möglichst nicht tief zu gestalten oder es soweit es geht nach links zu schieben, damit der Durchgang nicht zu eng wird. Raumbreite: 178cm / 50cm Waschbecken + 75cm Wanne= 125cm --> 50cm Durchgang an engster Stelle.
Alternativ kann ich mir vorstellen einen geschwungenen Waschtisch zu wählen, der nach rechts immer schmaler wird. Hier befürchte ich nur ein wenig, dass das "geschwungene" nicht ganz in die Optik passt, wenn sonst alles geradlinig ist.
Von der Optik haben wir schwarze Fliesen, Oberffächen in Holz Optik und Armaturen in weiß geplant.
Bin gespannt auf euer Feedback!
Viele Grüße
Arnold



meine Frau und ich sind gerade dabei unsere beiden Badezimmer neu zu planen.
Wir haben eine Doppelhaushälfte aus 2010 gekauft, nur leider sind die Badezimmer schlecht geplant und sehr heruntergekommen.
Freue mich daher sehr, dass es hier ein Forum gibt in dem die Planungen kritisch beäugt werden und danke im Voraus über euren Support.
Kurz zur Idee:
Badezimmer OG hat Badewanne.
Badezimmer UG hat Dusche.
Wir wollen beide Badezimmer komplett neu gestalten und die Wanne/Dusche tauschen. Hintergrund: Eltern, wie auch beide Mädchen (1Jahr & 2 Jahre) schlafen oben und wollen nicht zum Duschen ins EG laufen.
Im EG überlegen wir:
a) Nur Badewanne (Lösung 2) oder
b) Badewanne mit Duschmöglichkeit (Lösung 1)
Grundsätzliches:
Nur Badewanne:
In diesem Fall kann die Badewanne ohne weiteres über das Fenster hinausstehen. Mithilfe der schrägen Form holen wir die maximale Breite heraus und die Wanne steht nicht im Weg. Zusätzliche Ablagefläche planen wir in der Wand.
Badewanne mit Duschmöglichkeit:
Ich (Papa) gehe davon aus, dass mit 3 Frauen im Haus es irgendwann zu Streitereien kommt wer wann duschen darf. Auch Gästen will man eine Duschmöglichkeit bieten. Aus diesem Grund will ich mir die Option offen halten, dass man im EG auch noch duschen kann. Hier stelle ich mir vor, dass ich eine normale Badewanne wähle und einen KLAPPBAREN Spritzschutz beim Fenstern einbauen lasse.
Ja, die Wanne ist 75cm Breit und steht über das Fenster hinaus. Da eine Wanne aber einen Rand von ca. 6cm hat stelle ich mir vor den Spritzschutz nicht am Rand der Wanne anzubringen, sondern an der Stelle, an der die Wanne nach unten geht. (Sorry kenne das Wort nicht)
Das waschbecken versuche ich möglichst nicht tief zu gestalten oder es soweit es geht nach links zu schieben, damit der Durchgang nicht zu eng wird. Raumbreite: 178cm / 50cm Waschbecken + 75cm Wanne= 125cm --> 50cm Durchgang an engster Stelle.
Alternativ kann ich mir vorstellen einen geschwungenen Waschtisch zu wählen, der nach rechts immer schmaler wird. Hier befürchte ich nur ein wenig, dass das "geschwungene" nicht ganz in die Optik passt, wenn sonst alles geradlinig ist.
Von der Optik haben wir schwarze Fliesen, Oberffächen in Holz Optik und Armaturen in weiß geplant.
Bin gespannt auf euer Feedback!
Viele Grüße
Arnold
S
Schimi179122.12.20 18:14H
Hausbautraum2022.12.20 18:29Hmm ein Haus ohne Badewanne wäre für mich absolut keine Option.
Ich hatte kein Problem mit dem Duschen in der Badewanne in unserer Studentenwohnung zumal es bei euch ja nur die Notdusche wäre.
Ich hatte kein Problem mit dem Duschen in der Badewanne in unserer Studentenwohnung zumal es bei euch ja nur die Notdusche wäre.
B
Bertram10022.12.20 19:00Ich fühle mich mittlerweile zu alt für permanentes Duschen in der Badewanne. Wenn ich irgendwo bin wo es so ist, finde ich es kein Problem. Aber mir mit voller Absicht so eine Konstruktion ins Bad bauen, würde ich wohl nicht.
Ich habe auch ein kleines Bad und habe die Badewanne rausgeschmissen. Geht auch sehr gut ohne. Ganz ab und zu, im Urlaub oder bei einer Freundin, bade ich dann mal. Und weiss dann auch wieder warum ich eine Badewanne zwar ganz nett finde, aber nicht nötig.
Bei dem Bad das der TE hier vorstellt, würde ich auch ohne Wanne planen.
Ich selber habe z.B. eine Nische zum Wäschetrocknen/Waschmaschine stattdessen im Bad. So kann die Waschmaschine auf die Schlaf-Etage ohne dass ich dafür was von einem anderen Schlafzimmer abzweigen musste.
Ich habe auch ein kleines Bad und habe die Badewanne rausgeschmissen. Geht auch sehr gut ohne. Ganz ab und zu, im Urlaub oder bei einer Freundin, bade ich dann mal. Und weiss dann auch wieder warum ich eine Badewanne zwar ganz nett finde, aber nicht nötig.
Bei dem Bad das der TE hier vorstellt, würde ich auch ohne Wanne planen.
Ich selber habe z.B. eine Nische zum Wäschetrocknen/Waschmaschine stattdessen im Bad. So kann die Waschmaschine auf die Schlaf-Etage ohne dass ich dafür was von einem anderen Schlafzimmer abzweigen musste.
S
Schimi179122.12.20 19:45Hausbautraum20 schrieb:
Hmm ein Haus ohne Badewanne wäre für mich absolut keine Option.Ich hoffe, dass ich mir mit dem Ausbau der Badewanne nicht den Wiederverkaufswert kaputt gemacht habe ... 😀Ich denke, dass eine Badewanne umso seltener genutzt wird, je älter man ist. Sicher, es gibt das Argument der "Heilbäder", aber wenn ich an meine (!) Eltern denke, sehe ich mich bestätigt.
Ähnliche Themen