ᐅ Dusche direkt am Fenster - kompatibel oder inkompatibel?
Erstellt am: 12.04.21 22:00
Hallo meine Lieben,
aktuell planen meine Frau und ich eine Doppelhaushälfte mit 125 m² Wohnfläche.
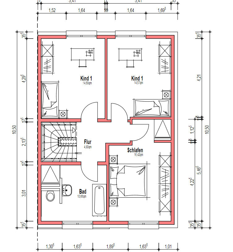
Im Verlauf der Planung ist mir bewusst geworden, dass eine zweite Duschmöglichkeit von Vorteil wäre. Da man mit 125m² jedoch kein Raumwunder besitzen wird, muss ich genau überlegen, wie man den Platz optimal nutzen kann. Aus diesem Grund habe ich versucht, eine "tote" Ecke im Elternschlafzimmer, die in der Erstplanung als Schminkecke oder Ähnliches angedacht war, zu nutzen.
In der Erstplanung (Schminkecke) befand sich an der Außenseite der Doppelhaushälfte ein Fenster. Als ich dem GU meine Änderungen bzgl. der Dusche mitteilte, hat der zuständige Architekt das ehemals vorhandene Fenster kommentarlos herausgenommen.
Das gefällt mir gar nicht, weil
Danke! 🙂

aktuell planen meine Frau und ich eine Doppelhaushälfte mit 125 m² Wohnfläche.
Im Verlauf der Planung ist mir bewusst geworden, dass eine zweite Duschmöglichkeit von Vorteil wäre. Da man mit 125m² jedoch kein Raumwunder besitzen wird, muss ich genau überlegen, wie man den Platz optimal nutzen kann. Aus diesem Grund habe ich versucht, eine "tote" Ecke im Elternschlafzimmer, die in der Erstplanung als Schminkecke oder Ähnliches angedacht war, zu nutzen.
In der Erstplanung (Schminkecke) befand sich an der Außenseite der Doppelhaushälfte ein Fenster. Als ich dem GU meine Änderungen bzgl. der Dusche mitteilte, hat der zuständige Architekt das ehemals vorhandene Fenster kommentarlos herausgenommen.
Das gefällt mir gar nicht, weil
- ich den "Plan" hatte, dass mit dem Öffnen des Fensters Luftfeuchtigkeit sofort abgeführt werden kann und diese Möglichkeit nun entfällt.
- ich somit weniger Tageslicht im Zimmer habe.
Danke! 🙂
O
Osnabruecker13.04.21 02:16Frag den Architekten doch, warum er das Fenster entfernt hat. Wir hatten ein Fenster im Duschbereich und es war in Ordnung. Aber für mein Eigentum und dauerhaft sehe ich da etwas das Problem mit der Feuchtigkeit, und auch generell offene Dusche im Schlafzimmer ist Geschmackssache.
Weitere Fenster:
Bett und schrank tauschen. Bett etwas nach Planunten, dann wäre zwischen der Dusche und dem Bett Platz für ein Fenster.
Weitere Fenster:
Bett und schrank tauschen. Bett etwas nach Planunten, dann wäre zwischen der Dusche und dem Bett Platz für ein Fenster.
Hallo 🙂
abgesehen vom fehlenden Fenster finde ich die einsame Dusche an der Stelle schon gewöhnungsbedürftig. Das Thema Luftfeuchtigkeit wurde ja schon genannt. Habt ihr im Schlafzimmer Fliesen?
Was ist denn mit dem Gäste-WC unten? Passt da nichts hin? Muss ja nicht begehbar sein.
abgesehen vom fehlenden Fenster finde ich die einsame Dusche an der Stelle schon gewöhnungsbedürftig. Das Thema Luftfeuchtigkeit wurde ja schon genannt. Habt ihr im Schlafzimmer Fliesen?
Was ist denn mit dem Gäste-WC unten? Passt da nichts hin? Muss ja nicht begehbar sein.
Ich finde dort eine Dusche großen Mist. Da baut man ein Haus, gibt mega Kohle aus, und schon zu Anfang sieht’s ungeplant aus. Nachträglich eingezogene Dusche ist im OG zu präsent und ordnet sich vielen über.
Wer da duscht, wird ein Gefühl haben, in einer Abstellkammer zu Duschen.
Und wo wird die Entwässerung sein? Über die Länge garantiert in Richtung Hauptbad mit Ablaufproblemen!
Warum ist an der Seite überhaupt kein Fenster? Warum steht der Schrank an der Außenwand? Warum gibt es da oben keinen Stauraum für Staubsauger und Besen?
Was fehlt, das sind zwei Waschtische bei 4 Personen! Duschen kann man immer noch in der Wanne. Und eine vernünftige Badplanung!
Wer da duscht, wird ein Gefühl haben, in einer Abstellkammer zu Duschen.
Und wo wird die Entwässerung sein? Über die Länge garantiert in Richtung Hauptbad mit Ablaufproblemen!
Warum ist an der Seite überhaupt kein Fenster? Warum steht der Schrank an der Außenwand? Warum gibt es da oben keinen Stauraum für Staubsauger und Besen?
Was fehlt, das sind zwei Waschtische bei 4 Personen! Duschen kann man immer noch in der Wanne. Und eine vernünftige Badplanung!
Guten Morgen,
zunächst vielen Dank für euer Feedback.
Zu Beginn der Planung war die Zweitdusche im Gäste-WC. Das Gäste-WC ist vom Hauswirtschaftsraum und Flur umgeben. Durch eine kleine Dusche wurde der angrenzende Hauswirtschaftsraum sehr klein, sodass man im Endeffekt den Hauswirtschaftsraum hätte opfern müssen, um eine Dusche unterbringen zu können.
Ja, das ist auch noch in meinem Kopf allgegenwärtig... Ich rufe da später mal an...
Danke für den Tipp, werde ich ansprechen! 🙂
In der Erstplanung befand sich dort ein Fenster, das nun entfernt wurde. Aus diesem Grund wollte ich wissen, ob Dusche und Fenster aufgrund von Schimmel oder Ähnlichem kompatibel ist.
Lässt sich einfach regeln, indem man das tauscht. 🙂
Das habe ich tatsächlich noch gar nicht bedacht und war nur darauf fokussiert, dass es "genügend" Stauraum im EG gibt.
Danke für den Hinweis, dann muss die Wand länger gezogen werden.
Oh je, so schlimm? 🙁 Über Ratschläge würde ich mich freuen, weil ich das Bad eigentlich ganz gut fand. Habe aber auch gar keine Erfahrung. 🙁
Ich hatte schon Sorge, das hier online zu stellen, weil es sich hier um einen leidenschaftslosen Standard handelt.
Nochmal autsch!

zunächst vielen Dank für euer Feedback.
Ysop*** schrieb:
Was ist denn mit dem Gäste-WC unten? Passt da nichts hin?
Zu Beginn der Planung war die Zweitdusche im Gäste-WC. Das Gäste-WC ist vom Hauswirtschaftsraum und Flur umgeben. Durch eine kleine Dusche wurde der angrenzende Hauswirtschaftsraum sehr klein, sodass man im Endeffekt den Hauswirtschaftsraum hätte opfern müssen, um eine Dusche unterbringen zu können.
Osnabruecker schrieb:
Problem mit der Feuchtigkeit
Ja, das ist auch noch in meinem Kopf allgegenwärtig... Ich rufe da später mal an...
ypg schrieb:
Über die Länge garantiert in Richtung Hauptbad mit Ablaufproblemen!
Danke für den Tipp, werde ich ansprechen! 🙂
ypg schrieb:
Warum ist an der Seite überhaupt kein Fenster?
In der Erstplanung befand sich dort ein Fenster, das nun entfernt wurde. Aus diesem Grund wollte ich wissen, ob Dusche und Fenster aufgrund von Schimmel oder Ähnlichem kompatibel ist.
ypg schrieb:
Warum steht der Schrank an der Außenwand?
Lässt sich einfach regeln, indem man das tauscht. 🙂
ypg schrieb:
Warum gibt es da oben keinen Stauraum für Staubsauger und Besen?
Das habe ich tatsächlich noch gar nicht bedacht und war nur darauf fokussiert, dass es "genügend" Stauraum im EG gibt.
ypg schrieb:
Was fehlt, das sind zwei Waschtische bei 4 Personen!
Danke für den Hinweis, dann muss die Wand länger gezogen werden.
ypg schrieb:
Und eine vernünftige Badplanung!
Oh je, so schlimm? 🙁 Über Ratschläge würde ich mich freuen, weil ich das Bad eigentlich ganz gut fand. Habe aber auch gar keine Erfahrung. 🙁
Ich hatte schon Sorge, das hier online zu stellen, weil es sich hier um einen leidenschaftslosen Standard handelt.
ypg schrieb:
Da baut man ein Haus, gibt mega Kohle aus, und schon zu Anfang sieht’s ungeplant aus.
Nochmal autsch!
ypg schrieb:
Warum ist an der Seite überhaupt kein Fenster?Das ist mir auch gleich aufgefallen. Dass man bei einer Doppelhaushälfte eine fensterlose Hausseite hat, liegt in der Natur der Sache. Aber wie hier - zumindest im Obergeschoss - gleich auf zwei Hausseiten auf Fenster zu verzichten bzw. ein einziges Fenster im Bereich der fehlgeplanten Dusche vorzusehen, das hat dann doch schon eher den Charme eines Reihenmittelhaus. 😉 Gibt es eigentlich irgendwo auch den Plan des EG?
Ähnliche Themen