Hallo zusammen,
wir befinden uns gerade in der Planungsphase für unser Haus und wären wirklich dankbar für Anregungen. Hier die Eckdaten:
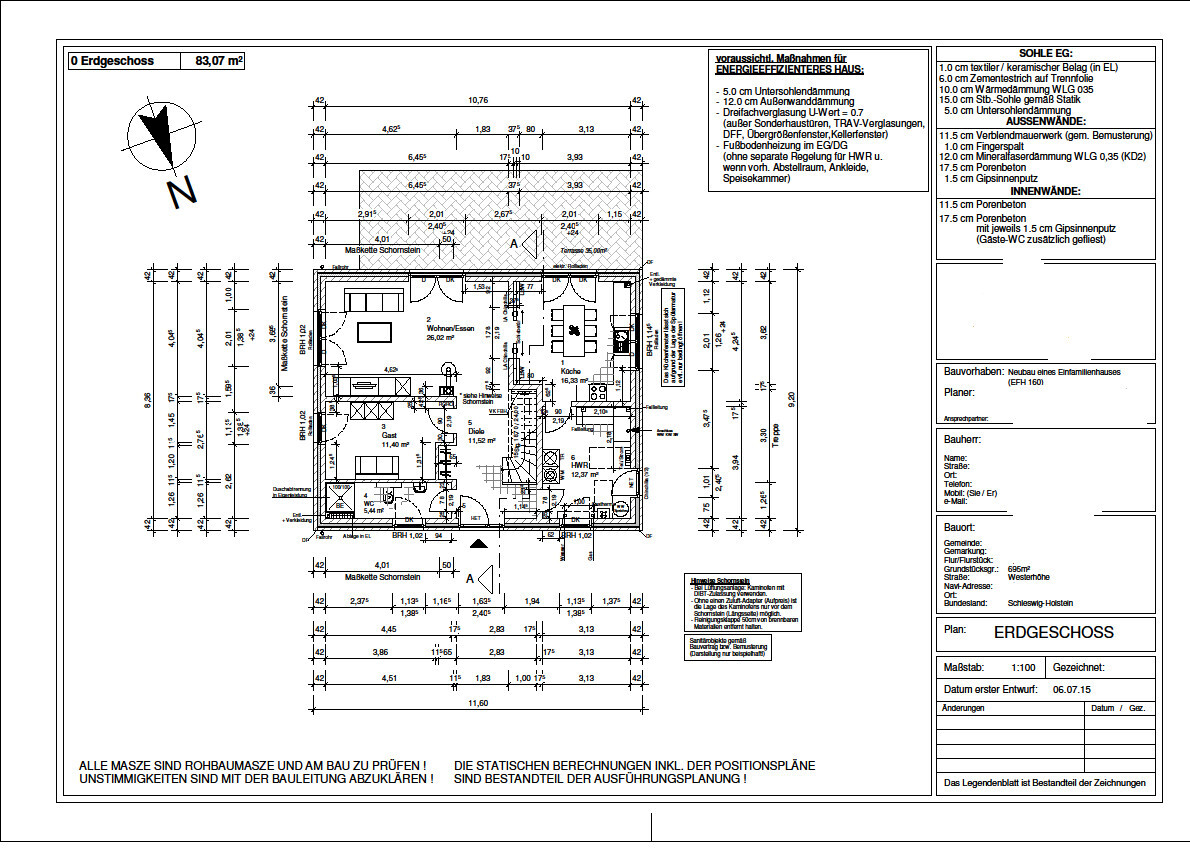
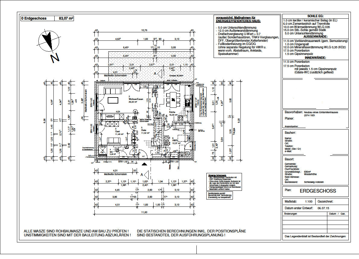
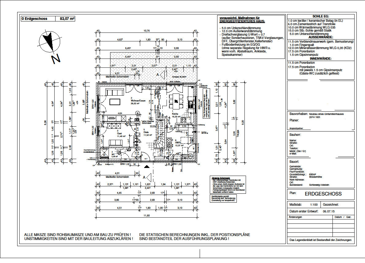
Größe des Grundstücks: 695 m²
Eckgrundstück
Anzahl Stellplatz / Carport: 1-2
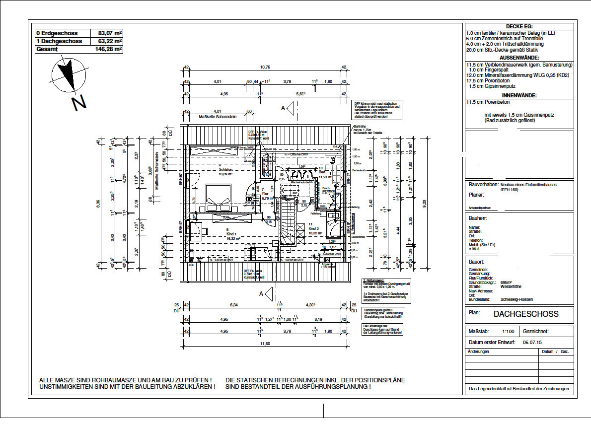
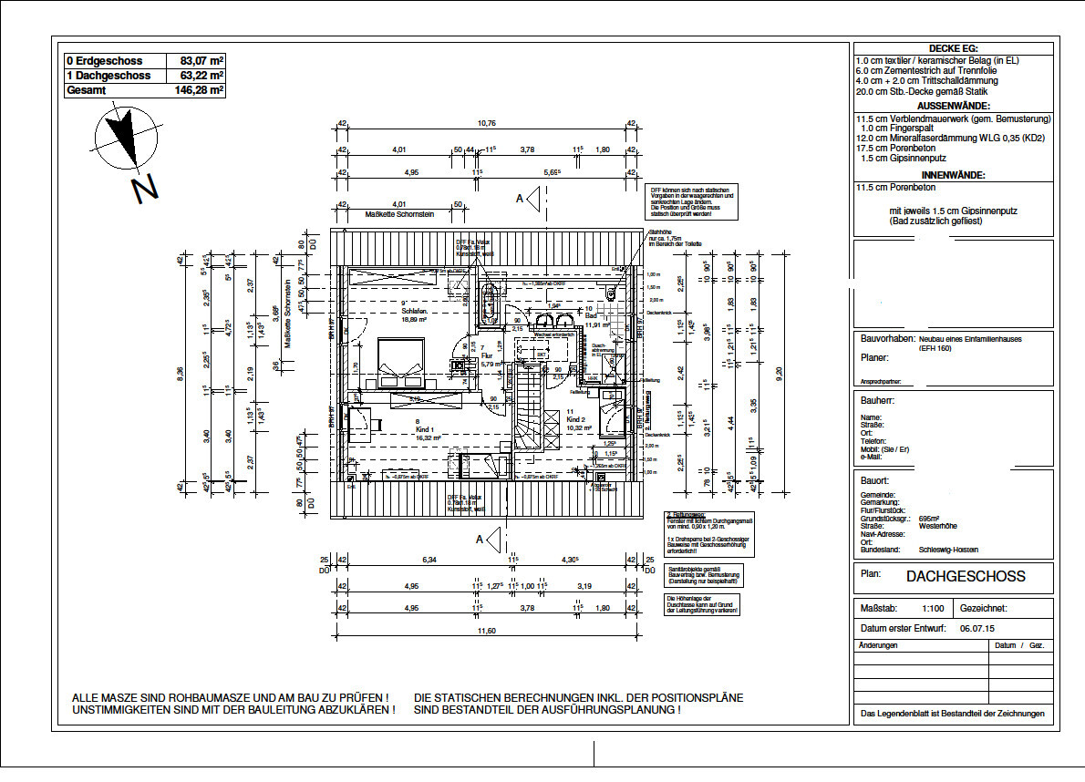
Geschossigkeit: 1 1/2
Dachform: Satteldach 44°
Gebäudetyp: 1 1/2 geschossiges Einfamilienhaus
Keller: nein
Anzahl der Personen: momentan 2
Kamin: ja
Wir sind mit dem Grundriss im Großen und Ganzen zufrieden. Unseren Ideen sind als Laien aber natürlich Grenzen gesetzt.
Das EG finden wir super so, nur im OG sind wir noch am zweifeln.
Das Bad macht uns noch Kopfzerbrechen. Habt ihr Ideen?
Im Schlafzimmer wird dann noch eine Trockenbauwand von uns gebaut. Dahinter soll dann die Ankleide.




wir befinden uns gerade in der Planungsphase für unser Haus und wären wirklich dankbar für Anregungen. Hier die Eckdaten:
Größe des Grundstücks: 695 m²
Eckgrundstück
Anzahl Stellplatz / Carport: 1-2
Geschossigkeit: 1 1/2
Dachform: Satteldach 44°
Gebäudetyp: 1 1/2 geschossiges Einfamilienhaus
Keller: nein
Anzahl der Personen: momentan 2
Kamin: ja
Wir sind mit dem Grundriss im Großen und Ganzen zufrieden. Unseren Ideen sind als Laien aber natürlich Grenzen gesetzt.
Das EG finden wir super so, nur im OG sind wir noch am zweifeln.
Das Bad macht uns noch Kopfzerbrechen. Habt ihr Ideen?
Im Schlafzimmer wird dann noch eine Trockenbauwand von uns gebaut. Dahinter soll dann die Ankleide.
Erstmal sind die Pläne etwas krampfig zu lesen... man muss die Bilder schon wirklich öffnen und dann zoomen.
EG:
Dusch-WC: 1,26 Breite - 15 cm Vorwand - 55 cm WC - 3 cm Putz - 3 cm Fliesen -> bleiben noch grandiose 50 cm Durchgang, wenn man aus der Dusche vorbei zum waschbecken tanzen will. Hoffentlich will man nie etwas vor der Toilette machen oder sich gar bücken oder so... will sagen: das ist Murks.
Auch dein Wohnzimmer enthält 13 qm Freifläche.. dafür hat die Küche einen 8-Mann Tisch vor der Spülmaschine - das ist natürlich ein Traum. Hoffentlich will da nie jemand essen, wenn jemand anderes etwas vorbereiten will. 5 m Küchenzeile sind übrigens auch nicht übermäßig üppig.
Hauswirtschaftsraum ist groß und hat viele Türen, dafür relativ wenig Stellfläche.
Vielleicht würde ich im EG drei Fensterflächen gen Süden machen - eine direkt gegenüber des Eingangs - dann hast du eine schöne Sicht wenn du ins Haus kommst.
Btw. was hat eure Treppe für eine Steigung und Auftrittsbreite? Wie hoch sind die Raumhöhen?
OG:
Kind 2 ist Mist, das Bad OG funktioniert so ggf. nicht mal - da muss man ja am Waschbecken Angst haben, dass man sich bei nem Schritt zurück den Kopf aufhaut... oder wenn man aneinander vorbei will.
Was wollt ihr im Elternschlafzimmer für komische schränke aufstellen... 1,5 m Höhe?
Generell schaut mal, ob ihr genug Fensterfläche zusammenbekommt.
Denkt auch noch mal über 11,5 cm Porenbeton Innenwände nach... Aufbau der Sohle kann ich nicht so viel zu sagen - wir hatten 20 cm Beton - aber gut, das wird schon eurer Statik entsprechen. Wenn ihr auf eine bodentiefe Dusche fixiert seid, solltet ihr das noch mal sehr gut planen.
Unser Heizungsbauer meinte auch, dass er lieber 7 als 6 cm Estrich hätte, wegen 4,5 cm Überdeckung der Fußbodenheizungsrohre - aber auch hier wird der BU wissen was er tut.
Alles in allem: ich find weder das EG noch das OG großartig... das EG ist noch etwas besser als das OG... würde noch mal neu anfangen.
EG:
Dusch-WC: 1,26 Breite - 15 cm Vorwand - 55 cm WC - 3 cm Putz - 3 cm Fliesen -> bleiben noch grandiose 50 cm Durchgang, wenn man aus der Dusche vorbei zum waschbecken tanzen will. Hoffentlich will man nie etwas vor der Toilette machen oder sich gar bücken oder so... will sagen: das ist Murks.
Auch dein Wohnzimmer enthält 13 qm Freifläche.. dafür hat die Küche einen 8-Mann Tisch vor der Spülmaschine - das ist natürlich ein Traum. Hoffentlich will da nie jemand essen, wenn jemand anderes etwas vorbereiten will. 5 m Küchenzeile sind übrigens auch nicht übermäßig üppig.
Hauswirtschaftsraum ist groß und hat viele Türen, dafür relativ wenig Stellfläche.
Vielleicht würde ich im EG drei Fensterflächen gen Süden machen - eine direkt gegenüber des Eingangs - dann hast du eine schöne Sicht wenn du ins Haus kommst.
Btw. was hat eure Treppe für eine Steigung und Auftrittsbreite? Wie hoch sind die Raumhöhen?
OG:
Kind 2 ist Mist, das Bad OG funktioniert so ggf. nicht mal - da muss man ja am Waschbecken Angst haben, dass man sich bei nem Schritt zurück den Kopf aufhaut... oder wenn man aneinander vorbei will.
Was wollt ihr im Elternschlafzimmer für komische schränke aufstellen... 1,5 m Höhe?
Generell schaut mal, ob ihr genug Fensterfläche zusammenbekommt.
Denkt auch noch mal über 11,5 cm Porenbeton Innenwände nach... Aufbau der Sohle kann ich nicht so viel zu sagen - wir hatten 20 cm Beton - aber gut, das wird schon eurer Statik entsprechen. Wenn ihr auf eine bodentiefe Dusche fixiert seid, solltet ihr das noch mal sehr gut planen.
Unser Heizungsbauer meinte auch, dass er lieber 7 als 6 cm Estrich hätte, wegen 4,5 cm Überdeckung der Fußbodenheizungsrohre - aber auch hier wird der BU wissen was er tut.
Alles in allem: ich find weder das EG noch das OG großartig... das EG ist noch etwas besser als das OG... würde noch mal neu anfangen.
T
toxicmolotof25.07.15 23:31Zuspruch. BeHaElJa trifft die wichtigsten Punkte. Der Grundriss ist so schlimm, da wäre Neuanfang der Beste Weg.
Weitere Punkte:
Hauswirtschaftsraum als einzige Lagerfläche zu klein wenn dort bereits die komplette Technik samt Waschmaschine/Trockner drin steht.
Keine Garage? Fahrräder, Werkzeuge, Rasenmäher, alles in den Hauswirtschaftsraum?
Kinderzimmer unterschiedlich groß. Geht m.E. gar nicht falls 2 Kinder da, bzw. geplant. Aber Kind 2 geht ja sowieso nicht, ebenso Bad OG und Bad EG.
Weitere Punkte:
Hauswirtschaftsraum als einzige Lagerfläche zu klein wenn dort bereits die komplette Technik samt Waschmaschine/Trockner drin steht.
Keine Garage? Fahrräder, Werkzeuge, Rasenmäher, alles in den Hauswirtschaftsraum?
Kinderzimmer unterschiedlich groß. Geht m.E. gar nicht falls 2 Kinder da, bzw. geplant. Aber Kind 2 geht ja sowieso nicht, ebenso Bad OG und Bad EG.
Danke schon mal für die ausführlichen Anmerkungen.
In der Küche hat der Architekt nen Tisch eingezeichnet. Da soll aber ne Kücheninsel hin und Esstisch kommt in Wohnzimmer.
Ins Schlafzimmer kommt, wie geschrieben, noch waagerecht ne Trennwand rein, so dass man an die eine Seite locker große Schränke stellen kann.
An den Bädern müssen wir echt noch was tun!
In der Küche hat der Architekt nen Tisch eingezeichnet. Da soll aber ne Kücheninsel hin und Esstisch kommt in Wohnzimmer.
Ins Schlafzimmer kommt, wie geschrieben, noch waagerecht ne Trennwand rein, so dass man an die eine Seite locker große Schränke stellen kann.
An den Bädern müssen wir echt noch was tun!
T
toxicmolotof25.07.15 23:36Ich möchte es anders formulieren: Die Bäder sind aber so scheiße geplant, dass es nicht hilft einfach nur eine Wand zu verschieben. Die sind absolut Murks und fehlgeplant samt anliegenden Räumen.
Fordere den Architekten auf, nicht einfach irgendwo irgendwas fiktives, nicht zutreffendes einzurichten, sondern Euer korrektes Raum und Möbelprogramm so wie ihr es euch vorstellt. Alles andere ist ebenso Murks und an der Sache vorbei geplant.
Fordere den Architekten auf, nicht einfach irgendwo irgendwas fiktives, nicht zutreffendes einzurichten, sondern Euer korrektes Raum und Möbelprogramm so wie ihr es euch vorstellt. Alles andere ist ebenso Murks und an der Sache vorbei geplant.
Ähnliche Themen