ᐅ Anbau-Planung / Änderung
Erstellt am: 03.08.17 10:08
Xorrhal03.08.17 10:08
Hallo!
Da es sich um einen Anbau handelt, kann ich die meisten Punkte des Steckbriefes nicht, oder nur ungenügend, beantworten. Daher schreibe ich einfach so runter, was meine Gegebenheiten sind. Falls das nicht gewünscht ist zwecks Übersichtlichkeit mache ich mir natürlich die Mühe und versuche den Steckbrief auszufüllen. Mein erster Versuch gerade war aber eher Unsinn
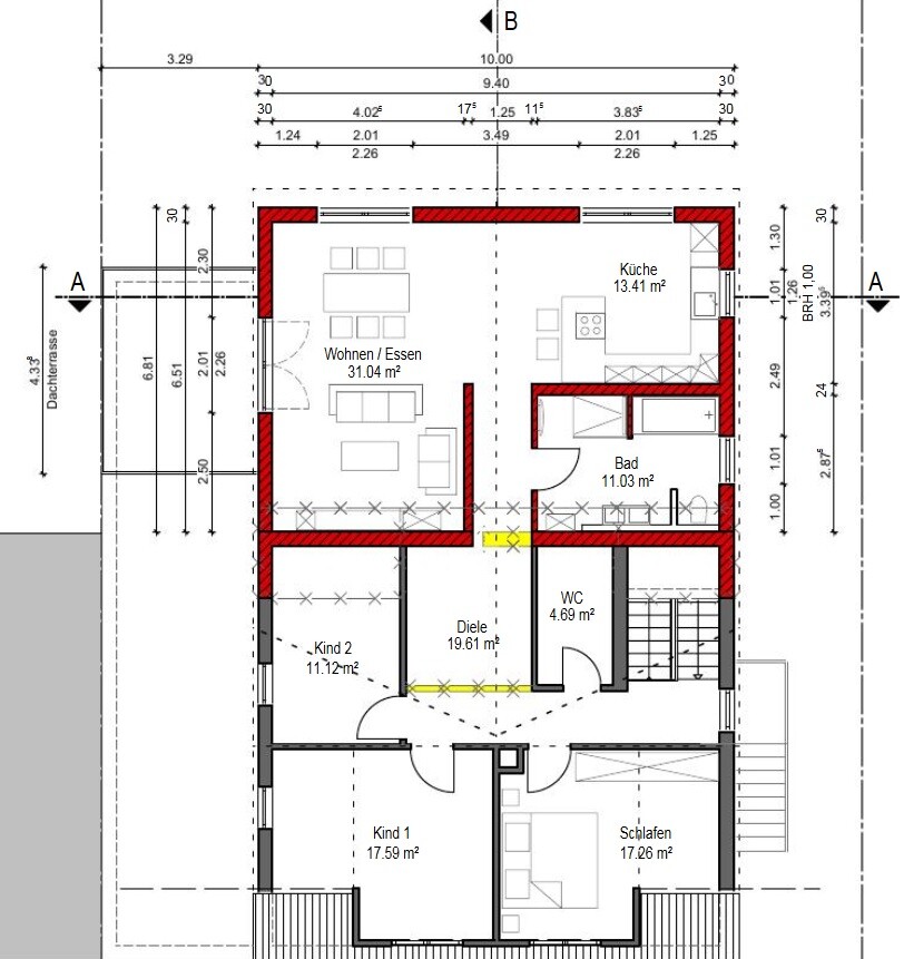
Im Anhang seht Ihr einen vom Architekten erstellten Entwurf. Rot eingefärbt sind die vorzunehmenden Änderungen. Der Anbau findet im OG statt, identisch zum bereits bestehenden Anbau im EG (dort wird entsprechend aufgestockt).
Was dort noch fehlt ist, dass das die Wand im Altbau zwischen Diele und Kind2 noch etwa 1,5m nach planrechts versetzt werden soll, so dass Kind2 größer wird. Hoffe, Ihr wisst wie ich meine. Die Türen bleiben alle wie sie sind, nur der Diele-Durchgang von Altbau zu Neubau wird schmäler.
Eigentlich waren wir mit dem Plan recht zufrieden. Kostenpunkt: 150.000€
Aufgeschlüsselt (Angebote liegen vor)
- ~58.000€ Holzrahmenbau mit Dachstuhl, Dämmung, Außenputzplatte und alle damit verbundenen Arbeiten
- ~12.000€ Fenster und Türen
- ~25.000€ Fußbodenheizung, Sanitär, Badezimmer inkl. Spanndecke mit Beleuchtung (nur Bad)
- ~15.000€ Bodenbeläge inkl. Estrichplatten, Tapete und Farbe (alles inkl. Ausführung)
- ~5.000€ Elektroinstallation (viel Eigenleistung)
- ~15.000€ Maßnahmen am bestehenden Objekt inkl. Schutz dessen während der Bauphase
- ~10.000€ Dachterrasse auf bestehender Garage inkl. Treppe in den Garten
- ~10.000€ neue Küche
Nun deutet sich an, dass wir noch ein drittes Kind möchten. Dann fehlt wieder Platz für ein Kinderzimmer. In dem bestehenden Plan kann ich mir das beim besten Willen nicht mehr vorstellen. Wenn überhaupt dann der ohnehin schon durch die Trennwand angedeutete Teil des Wohnzimmers, wobei dieses dann sehr Schlauchförmig wird und uns schon bei der reinen Vorstellung nicht passt.
Im EG ist an der planoberen Seite ein (nicht genehmigter) Wintergarten entstanden, der etwa 10*2,5m umfasst.
Mein Gedanke war nun, diesen mit einem Fundament zu versehen und Stützpfeiler zu errichten, so dass das OG statt 10*7 dann 10*9,5m Bruttofläche hat. Statisch sollte das passen. Dann könnte man in der Tat den abgetrennten Wohnzimmer-Bereich als Elternschlafzimmer nehmen, hätte weiterhin ein 6*5m großes Wohnzimmer. Die Küche wäre ebenfalls um etwa 5*2,5m größer, was dann eine Speisekammer o.Ä. ergeben könnte, oder einen überdachten Balkon an der Küche (für eine Fritteuse die "draußen" betrieben wird fände ich das echt nett => kein Gestank in der offenen Küche,...).
Der bestehende Wintergarten könnte damit bestehen bleiben, man müsste dann nur zwischen den entstehenden Stützpfeilern entsprechende Glas-Elemente einbauen.
Kostenschätzung: Bei zusätzlichen 20m² Wohnfläche würde ich schätzen, dass das Vorhaben dann etwa 200.000€ statt der geplanten 150.000€ kosten würde.
Was haltet Ihr davon? Habt Ihr bessere Ideen? Haltet Ihr die Kosten für realistisch? Ich mein die Angebote habe ich ja, aber fehlt vielleicht was Essenzielles?
Fehlen Euch wichtige Informationen oder besteht Ihr auf den Steckbrief, gebt einfach Bescheid
Vielen Dank. Wir freuen uns auf Eure Kritik/Ideen!
Gruß,
Xor

Da es sich um einen Anbau handelt, kann ich die meisten Punkte des Steckbriefes nicht, oder nur ungenügend, beantworten. Daher schreibe ich einfach so runter, was meine Gegebenheiten sind. Falls das nicht gewünscht ist zwecks Übersichtlichkeit mache ich mir natürlich die Mühe und versuche den Steckbrief auszufüllen. Mein erster Versuch gerade war aber eher Unsinn
Im Anhang seht Ihr einen vom Architekten erstellten Entwurf. Rot eingefärbt sind die vorzunehmenden Änderungen. Der Anbau findet im OG statt, identisch zum bereits bestehenden Anbau im EG (dort wird entsprechend aufgestockt).
Was dort noch fehlt ist, dass das die Wand im Altbau zwischen Diele und Kind2 noch etwa 1,5m nach planrechts versetzt werden soll, so dass Kind2 größer wird. Hoffe, Ihr wisst wie ich meine. Die Türen bleiben alle wie sie sind, nur der Diele-Durchgang von Altbau zu Neubau wird schmäler.
Eigentlich waren wir mit dem Plan recht zufrieden. Kostenpunkt: 150.000€
Aufgeschlüsselt (Angebote liegen vor)
- ~58.000€ Holzrahmenbau mit Dachstuhl, Dämmung, Außenputzplatte und alle damit verbundenen Arbeiten
- ~12.000€ Fenster und Türen
- ~25.000€ Fußbodenheizung, Sanitär, Badezimmer inkl. Spanndecke mit Beleuchtung (nur Bad)
- ~15.000€ Bodenbeläge inkl. Estrichplatten, Tapete und Farbe (alles inkl. Ausführung)
- ~5.000€ Elektroinstallation (viel Eigenleistung)
- ~15.000€ Maßnahmen am bestehenden Objekt inkl. Schutz dessen während der Bauphase
- ~10.000€ Dachterrasse auf bestehender Garage inkl. Treppe in den Garten
- ~10.000€ neue Küche
Nun deutet sich an, dass wir noch ein drittes Kind möchten. Dann fehlt wieder Platz für ein Kinderzimmer. In dem bestehenden Plan kann ich mir das beim besten Willen nicht mehr vorstellen. Wenn überhaupt dann der ohnehin schon durch die Trennwand angedeutete Teil des Wohnzimmers, wobei dieses dann sehr Schlauchförmig wird und uns schon bei der reinen Vorstellung nicht passt.
Im EG ist an der planoberen Seite ein (nicht genehmigter) Wintergarten entstanden, der etwa 10*2,5m umfasst.
Mein Gedanke war nun, diesen mit einem Fundament zu versehen und Stützpfeiler zu errichten, so dass das OG statt 10*7 dann 10*9,5m Bruttofläche hat. Statisch sollte das passen. Dann könnte man in der Tat den abgetrennten Wohnzimmer-Bereich als Elternschlafzimmer nehmen, hätte weiterhin ein 6*5m großes Wohnzimmer. Die Küche wäre ebenfalls um etwa 5*2,5m größer, was dann eine Speisekammer o.Ä. ergeben könnte, oder einen überdachten Balkon an der Küche (für eine Fritteuse die "draußen" betrieben wird fände ich das echt nett => kein Gestank in der offenen Küche,...).
Der bestehende Wintergarten könnte damit bestehen bleiben, man müsste dann nur zwischen den entstehenden Stützpfeilern entsprechende Glas-Elemente einbauen.
Kostenschätzung: Bei zusätzlichen 20m² Wohnfläche würde ich schätzen, dass das Vorhaben dann etwa 200.000€ statt der geplanten 150.000€ kosten würde.
Was haltet Ihr davon? Habt Ihr bessere Ideen? Haltet Ihr die Kosten für realistisch? Ich mein die Angebote habe ich ja, aber fehlt vielleicht was Essenzielles?
Fehlen Euch wichtige Informationen oder besteht Ihr auf den Steckbrief, gebt einfach Bescheid
Vielen Dank. Wir freuen uns auf Eure Kritik/Ideen!
Gruß,
Xor
RobsonMKK03.08.17 10:28
Hat das Haus eventuell noch einen Dachboden der ausgebaut werden kann zum Schlafraum?
Dann hättest du deine Zimmer alle beisammen.
Dann hättest du deine Zimmer alle beisammen.
Xorrhal03.08.17 10:38
RobsonMKK schrieb:
Hat das Haus eventuell noch einen Dachboden der ausgebaut werden kann zum Schlafraum?
Dann hättest du deine Zimmer alle beisammen.Nein leider nicht. Im Altbau habe ich mir das Dach zum Arbeitszimmer ausgebaut, aber da geht jetzt eine Wendeltreppe nach oben über die man Nichtmal einen Wäschekorb gescheit hoch tragen kann. Oben angekommen stößt sich jemand über 1,85m schon den Kopf an Dachfirst.
Beim geplanten Anbau wird das Dach über den Anbau quasi um 90° versetzt als dritte Giebelseite nach planoben weitergeführt, so dass am bestehenden Dach eigentlich kaum Änderungen nötig werden sollten.
Der Dachboden im Anbau wird somit ebenfalls nicht als echte Wohnfläche dienen können.
Evolith03.08.17 14:53
Magst du mal den kompletten Grundriss einstellen? Also auch den deiner Eltern? Dazu das Grundstück. Dass man mal Dimensionen bekommt.
Xorrhal03.08.17 15:24
Liegt mir leider nicht digital vor, aber das EG ist exakt aufgebaut wie der Plan das OG zeigt... der geplante Anbau (rot) ist im EG exakt so schon vorhanden. Einzig die dünne Trennwand gibt es unten nicht. Die ist im OG nur da, um nicht von der Couch die Toilette sehen zu können
Dort wo auf dem Plan das neue Bad ist, haben meine Eltern die Küche.
Dort wo auf dem Plan die neue Küche ist, haben meine Eltern das Esszimmer.
Das Wohnzimmer ist 1:1 identisch, auch die eine Wand (trägt die Mittelpfette) ist dort an der gleichen Stelle.
Auch die Zimmer im Altbau sind 1:1 identisch, bis auf die Tatsache, dass das im Plan gezeigte WC unten nur noch Besenkammer ist, und das Kind2 im Plan ist unten das Badezimmer plus Gästetoilette. Und unten sind natürlich keine Dachschrägen/Gauben.
Was im EG etwas anders ist: Die Deckenhöhe im Anbau. Der Anbau liegt etwa 80cm tiefer als das EG im Altbau, da geht es 3 Stufen runter - genau dort wo im OG-Plan auch der Durchgang Altbau->Neubau ist.
Durch dieses Absenken ist auch die Deckenhöhe im bestehenden Anbau etwa bis zur Mittelpfette bei 3,50m und fällt dann nach hinten (planoben) auf 2,50m ab.
Beim Aufstocken würde das Dach geöffnet und auf Höhe der Mittelpfette (die verstärkt wird) die Zwischendecke eingezogen (also bleibt im EG die Deckenhöhe unverändert - nach hinten entsteht etwas Hohlraum zwischen abfallender EG-Decke und Zwischendecke.
Die Zwischendecke mit Aufbau (Trittschalldämmung+Perlenfüllung+Estrichplatten+Bodenbelag) soll dann im OG absatzlos auf gleicher Höhe mit dem bestehenden Boden sein.
Lage auf dem Grundstück kann ich aktuell auch nur "beschreiben". Auf dem Plan sieht man das Grundstück eigentlich komplett von der Breite her - zum planlinken Nachbarn steht eine Garage von 3,29m, die grenzt direkt an dessen Garage (planlinks, grau). Zur rechten Grenze sind es ebenfalls etwa 3m, wobei dessen Haus auch so weit von der Grenze weg steht (Abstand dazwischen also 6m+).
Das Grundstück ist 602m² groß, also etwa 13,5m * 44,5m. Das Haus steht ziemlich genau 4m von der Straße weg und ist ziemlich genau 16m lang und 10m breit.
Im EG ist wie gesagt noch ein nicht genehmigter Wintergarten entstanden, der die volle Breite von 10m nutzt und etwa 2,5m weit herausragt. Bleiben 22m nach hinten an Garten.
Die Garage links erstreckt sich über fast die komplette Länge des Hauses, insgesamt 13,4m. Die Dachterrasse im Plan zeigt auch quasi das Ende der Garage, da die Terrasse eben genau darauf liegen soll.
Hoffe das ist soweit gescheit erklärt und verständlich!? Ansonsten muss ich n Bildchen selbst malen
EDIT: Ok, 2 Bilder hab ich noch gefunden... Nicht ganz was gewünscht war, aber hilft beim Vorstellen oder?
Dort wo auf dem Plan das neue Bad ist, haben meine Eltern die Küche.
Dort wo auf dem Plan die neue Küche ist, haben meine Eltern das Esszimmer.
Das Wohnzimmer ist 1:1 identisch, auch die eine Wand (trägt die Mittelpfette) ist dort an der gleichen Stelle.
Auch die Zimmer im Altbau sind 1:1 identisch, bis auf die Tatsache, dass das im Plan gezeigte WC unten nur noch Besenkammer ist, und das Kind2 im Plan ist unten das Badezimmer plus Gästetoilette. Und unten sind natürlich keine Dachschrägen/Gauben.
Was im EG etwas anders ist: Die Deckenhöhe im Anbau. Der Anbau liegt etwa 80cm tiefer als das EG im Altbau, da geht es 3 Stufen runter - genau dort wo im OG-Plan auch der Durchgang Altbau->Neubau ist.
Durch dieses Absenken ist auch die Deckenhöhe im bestehenden Anbau etwa bis zur Mittelpfette bei 3,50m und fällt dann nach hinten (planoben) auf 2,50m ab.
Beim Aufstocken würde das Dach geöffnet und auf Höhe der Mittelpfette (die verstärkt wird) die Zwischendecke eingezogen (also bleibt im EG die Deckenhöhe unverändert - nach hinten entsteht etwas Hohlraum zwischen abfallender EG-Decke und Zwischendecke.
Die Zwischendecke mit Aufbau (Trittschalldämmung+Perlenfüllung+Estrichplatten+Bodenbelag) soll dann im OG absatzlos auf gleicher Höhe mit dem bestehenden Boden sein.
Lage auf dem Grundstück kann ich aktuell auch nur "beschreiben". Auf dem Plan sieht man das Grundstück eigentlich komplett von der Breite her - zum planlinken Nachbarn steht eine Garage von 3,29m, die grenzt direkt an dessen Garage (planlinks, grau). Zur rechten Grenze sind es ebenfalls etwa 3m, wobei dessen Haus auch so weit von der Grenze weg steht (Abstand dazwischen also 6m+).
Das Grundstück ist 602m² groß, also etwa 13,5m * 44,5m. Das Haus steht ziemlich genau 4m von der Straße weg und ist ziemlich genau 16m lang und 10m breit.
Im EG ist wie gesagt noch ein nicht genehmigter Wintergarten entstanden, der die volle Breite von 10m nutzt und etwa 2,5m weit herausragt. Bleiben 22m nach hinten an Garten.
Die Garage links erstreckt sich über fast die komplette Länge des Hauses, insgesamt 13,4m. Die Dachterrasse im Plan zeigt auch quasi das Ende der Garage, da die Terrasse eben genau darauf liegen soll.
Hoffe das ist soweit gescheit erklärt und verständlich!? Ansonsten muss ich n Bildchen selbst malen
EDIT: Ok, 2 Bilder hab ich noch gefunden... Nicht ganz was gewünscht war, aber hilft beim Vorstellen oder?
RobsonMKK03.08.17 15:45
Schon mal daran gedacht vielleicht ein paar qm für ein Schlafzimmer bei den Eltern abzuknapsen? Immerhin sind die 140 qm für 2 Personen mehr als üppig.
Damit wird vielleicht ein wenig mehr Umbau nötig, würde aber viele Probleme lösen.
Damit wird vielleicht ein wenig mehr Umbau nötig, würde aber viele Probleme lösen.
Ähnliche Themen