ᐅ Abschluss Findungsphase für Anbau an Kernsaniertes Einfamilienhaus
Erstellt am: 15.03.17 14:12
K
KerbaLiebe Forumsleser,
wir haben ein Haus gekauft, kernsaniert und einen Anbau geplant. Mit dem Grundriss für die Sanierung habt ihr uns vor ungefähr einem Jahr sehr helfen können. Seitdem ist alles schief gegangen was am Bau so schiefgeht - erst war der GU insolvent, dann auch noch einzelne Handwerker, die Wände sind schief, die Fliesen fallen schon nach 3 Monaten wieder von der Wand, usw. Aber so langsam kriegen wir die Dinge in den Griff und wollen den Anbau wieder angehen, den wir wegen der Situation erstmal verschoben hatten. Wir haben eine fertige Planung und Baugenehmigung, sind uns aber nicht mehr sicher, ob das wirklich die perfekte Lösung ist und deswegen frage ich euch heute nochmal um eure ehrliche Meinung.
Die Planung ist in Zusammenarbeit mit einer Architektin entstanden, der Grundriss war stark von euch beeinflusst. Den Grundriss würde ich auch so lassen wie er ist, aber bei der Hausform, den Höhen und den Fenstern ist uns der aktuelle Entwurf irgendwie zu "schwach". Wir wünschen uns einen eindrucksvollen, großzügigen Anbau und keinen Schuppen den man an unser Haus dranklatscht. Und ich fürchte, der aktuelle Plan ist eher der Schuppen. Aber jetzt komme ich mal zu den Fakten und meinen Fragen.
Hier zunächst die Flurkarte:

- Anbau von ca. 60qm Wohnfläche (schraffierte Fläche) an einen Bungalow der heute 110qm Wohnfläche hat (das gesamte Grundstück hat ca. 800qm, damit nutzen wir die bebaubare Fläche komplett aus)
- Angebaut wird im Norden, der auf Grund der Hanglage ca. 2m tiefer ist als der ganz südliche Teil des Hauses
- Die Straße ist im Süden, die schöne Aussicht im Norden, daher ist uns die Aussicht Richtung Norden wichtig, zusätzliches Licht wollen wir über Dachfenster hineinbekommen
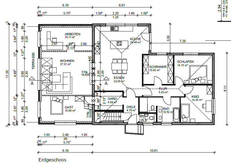
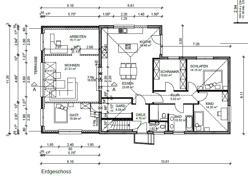
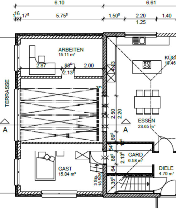
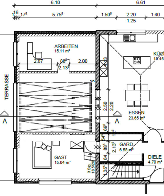
Und so sieht der geplante Grundriss aus, den wir wie gesagt auch immer noch gut finden. Allerdings soll da wo Gast steht langfristig das Schlafzimmer hin zugunsten eines zweiten Kinderzimmers, wo heute das Schlafzimmer ist. Das Arbeitszimmer wird dann kombiniert zum Gästezimmer.

Und hier der Schnitt:

Daran ergeben sich dann auch meine Fragen:
1. Die Dachform: Hier sind 5 Grad Dachneigung geplant, da haben wir Sorgen dass das nicht gut aussieht. Daher tendieren wir dazu stattdessen das Dach komplett Flach zu machen und entsprechend den Raum im Norden höher zu machen (die Südseite ist durch den Bestand vorgegeben). Wie seht ihr das?
2. Die Räumhöhe: Im Moment sieht der Plan vor relativ viel aufzuschütten um den Anbau hoch zu bekommen. Das ist erstens teuer (weil hinterm Haus und schlecht erreichbar) und zweitens kommt man dann nicht direkt in den Garten sondern müsste da weiter aufschütten. Daher überlegen wir jetzt den Anbau tiefer zu setzen und die Räume dafür höher zu machen. Möglich wäre alles bis ca. 4,50m, da wir in der Tiefe durch die Fundamente des Bestandshauses und in der Höhe durch das heutige Dach begrenzt sind. Wie hoch würdet ihr Räume in dieser Größe maximal machen?
Wenn wir auf eine Raumhöhe von 4,50m gehen: was haltet ihr von einer Galerie im Wohnzimmer an der Rückwand (also auf der Seite des Bestands) und einer Treppe seitlich runter? So wie die Treppe aktuell gezeichnet ist, gefällt sie uns nämlich nicht, erst recht nicht wenn es mehr als 3-5 Stufen werden sollten. Die Galerie hätte darunter allerdings nur maximal 2m Stehhöhe. Macht das Sinn?
Wie würdet ihr die beiden seitlichen Räume dann gestalten und wo die Türen machen?
3. Fenster: Der aktuelle Plan hat im Wohnzimmer 4 Flügeltüren in 2,20 Höhe (bis unter den Ringbalken) und 3,60 Breite. Wenn wir den Raum höher machen, würden wir wahrscheinlich auch die Fenster höher machen sodass sie immer bis unter den Ringbalken gehen, ggf. mit festverglasten Flächen über den Flügeltüren. Hintergrund ist, dass wir auch aus dem Essbereich gerne den schönen Blick Richtung Norden haben wollen.
Das kleine Dachfenster im Norden so wie gezeichnet, macht eigentlich keinen Sinn. Stattdessen würden wir das Dachfenster weiter im Süden machen und dann ca. 1,40 breit auf derselben Breite wie die Türen.
Was meint ihr dazu?
Ich hoffe, ich habe alles verständlich formuliert und alle Infos beisammen. Über eure Gedanken und Anregungen würde ich mich sehr freuen!
Liebe Grüße und vielen Dank vorab
Kerstin
wir haben ein Haus gekauft, kernsaniert und einen Anbau geplant. Mit dem Grundriss für die Sanierung habt ihr uns vor ungefähr einem Jahr sehr helfen können. Seitdem ist alles schief gegangen was am Bau so schiefgeht - erst war der GU insolvent, dann auch noch einzelne Handwerker, die Wände sind schief, die Fliesen fallen schon nach 3 Monaten wieder von der Wand, usw. Aber so langsam kriegen wir die Dinge in den Griff und wollen den Anbau wieder angehen, den wir wegen der Situation erstmal verschoben hatten. Wir haben eine fertige Planung und Baugenehmigung, sind uns aber nicht mehr sicher, ob das wirklich die perfekte Lösung ist und deswegen frage ich euch heute nochmal um eure ehrliche Meinung.
Die Planung ist in Zusammenarbeit mit einer Architektin entstanden, der Grundriss war stark von euch beeinflusst. Den Grundriss würde ich auch so lassen wie er ist, aber bei der Hausform, den Höhen und den Fenstern ist uns der aktuelle Entwurf irgendwie zu "schwach". Wir wünschen uns einen eindrucksvollen, großzügigen Anbau und keinen Schuppen den man an unser Haus dranklatscht. Und ich fürchte, der aktuelle Plan ist eher der Schuppen. Aber jetzt komme ich mal zu den Fakten und meinen Fragen.
Hier zunächst die Flurkarte:
- Anbau von ca. 60qm Wohnfläche (schraffierte Fläche) an einen Bungalow der heute 110qm Wohnfläche hat (das gesamte Grundstück hat ca. 800qm, damit nutzen wir die bebaubare Fläche komplett aus)
- Angebaut wird im Norden, der auf Grund der Hanglage ca. 2m tiefer ist als der ganz südliche Teil des Hauses
- Die Straße ist im Süden, die schöne Aussicht im Norden, daher ist uns die Aussicht Richtung Norden wichtig, zusätzliches Licht wollen wir über Dachfenster hineinbekommen
Und so sieht der geplante Grundriss aus, den wir wie gesagt auch immer noch gut finden. Allerdings soll da wo Gast steht langfristig das Schlafzimmer hin zugunsten eines zweiten Kinderzimmers, wo heute das Schlafzimmer ist. Das Arbeitszimmer wird dann kombiniert zum Gästezimmer.
Und hier der Schnitt:
Daran ergeben sich dann auch meine Fragen:
1. Die Dachform: Hier sind 5 Grad Dachneigung geplant, da haben wir Sorgen dass das nicht gut aussieht. Daher tendieren wir dazu stattdessen das Dach komplett Flach zu machen und entsprechend den Raum im Norden höher zu machen (die Südseite ist durch den Bestand vorgegeben). Wie seht ihr das?
2. Die Räumhöhe: Im Moment sieht der Plan vor relativ viel aufzuschütten um den Anbau hoch zu bekommen. Das ist erstens teuer (weil hinterm Haus und schlecht erreichbar) und zweitens kommt man dann nicht direkt in den Garten sondern müsste da weiter aufschütten. Daher überlegen wir jetzt den Anbau tiefer zu setzen und die Räume dafür höher zu machen. Möglich wäre alles bis ca. 4,50m, da wir in der Tiefe durch die Fundamente des Bestandshauses und in der Höhe durch das heutige Dach begrenzt sind. Wie hoch würdet ihr Räume in dieser Größe maximal machen?
Wenn wir auf eine Raumhöhe von 4,50m gehen: was haltet ihr von einer Galerie im Wohnzimmer an der Rückwand (also auf der Seite des Bestands) und einer Treppe seitlich runter? So wie die Treppe aktuell gezeichnet ist, gefällt sie uns nämlich nicht, erst recht nicht wenn es mehr als 3-5 Stufen werden sollten. Die Galerie hätte darunter allerdings nur maximal 2m Stehhöhe. Macht das Sinn?
Wie würdet ihr die beiden seitlichen Räume dann gestalten und wo die Türen machen?
3. Fenster: Der aktuelle Plan hat im Wohnzimmer 4 Flügeltüren in 2,20 Höhe (bis unter den Ringbalken) und 3,60 Breite. Wenn wir den Raum höher machen, würden wir wahrscheinlich auch die Fenster höher machen sodass sie immer bis unter den Ringbalken gehen, ggf. mit festverglasten Flächen über den Flügeltüren. Hintergrund ist, dass wir auch aus dem Essbereich gerne den schönen Blick Richtung Norden haben wollen.
Das kleine Dachfenster im Norden so wie gezeichnet, macht eigentlich keinen Sinn. Stattdessen würden wir das Dachfenster weiter im Süden machen und dann ca. 1,40 breit auf derselben Breite wie die Türen.
Was meint ihr dazu?
Ich hoffe, ich habe alles verständlich formuliert und alle Infos beisammen. Über eure Gedanken und Anregungen würde ich mich sehr freuen!
Liebe Grüße und vielen Dank vorab
Kerstin
Ein Anbau bei einem Walmdachbungalow ist immer etwas knifflig, da kann man für die Hanglage beinahe dankbar sein. Alles, was nicht wie geplant die Nord-Traufseite "unberührt" abschleppt, würde verflucht aufwendig.
Am Schnitt des Anbaues würde ich daher nichts wesentliches ändern. Lediglich würde ich statt der einen Reihe Dachflächenfensterchen lieber - ebenfalls vier Sparrenachsen breit - aber durchgehend bis zum Unterzug (jetzige Nord-Außenwand) ein wintergartenartiges Glasband einsetzen.
Der geplante Anbauaufbau sähe mir erstens gefrickelt aus, und zweitens: auch höhenmäßig in Blickachsen gedacht, paßt das insgesamt so mit den zwei Stufen tiefer vom Essbereich geschaut, von den Dachflächenfensterchen hätte man von dort aus gesehen Ausblickmäßig nichts.
Ein Elternschlafzimmer im geplanten Gästezimmer fände ich schlecht möblierbar, auch morgens durchs Wohnzimmer ins Bad zu tapsen, wäre nicht so mein Traum. Ich denke eher, daß das größere Kind dieses "Austragshäusl" außerhalb der Elternschlafzimmer-Hörweite dankbar annehmen wird. Gleichzeitig ist das etwas weniger weit vom Schuß als im Untergeschoss (ich habe erst mal Deinen vorherigen Thread gelesen).
https://www.instagram.com/11antgmxde/
https://www.linkedin.com/company/bauen-jetzt/
Am Schnitt des Anbaues würde ich daher nichts wesentliches ändern. Lediglich würde ich statt der einen Reihe Dachflächenfensterchen lieber - ebenfalls vier Sparrenachsen breit - aber durchgehend bis zum Unterzug (jetzige Nord-Außenwand) ein wintergartenartiges Glasband einsetzen.
Der geplante Anbauaufbau sähe mir erstens gefrickelt aus, und zweitens: auch höhenmäßig in Blickachsen gedacht, paßt das insgesamt so mit den zwei Stufen tiefer vom Essbereich geschaut, von den Dachflächenfensterchen hätte man von dort aus gesehen Ausblickmäßig nichts.
Ein Elternschlafzimmer im geplanten Gästezimmer fände ich schlecht möblierbar, auch morgens durchs Wohnzimmer ins Bad zu tapsen, wäre nicht so mein Traum. Ich denke eher, daß das größere Kind dieses "Austragshäusl" außerhalb der Elternschlafzimmer-Hörweite dankbar annehmen wird. Gleichzeitig ist das etwas weniger weit vom Schuß als im Untergeschoss (ich habe erst mal Deinen vorherigen Thread gelesen).
https://www.instagram.com/11antgmxde/
https://www.linkedin.com/company/bauen-jetzt/
schnell hingeschlunzt eingezeichnet meine Änderungen:
ausgewachsenes Wintergartendach auf demselben Breitenabschnitt wie die kleinen Flächenfenster geplant sind; und die Wand des Gästezimmers in die Flucht mit der der Garderobe geschubst
https://www.instagram.com/11antgmxde/
https://www.linkedin.com/company/bauen-jetzt/
ausgewachsenes Wintergartendach auf demselben Breitenabschnitt wie die kleinen Flächenfenster geplant sind; und die Wand des Gästezimmers in die Flucht mit der der Garderobe geschubst
https://www.instagram.com/11antgmxde/
https://www.linkedin.com/company/bauen-jetzt/
Hallo 11ant,
eine Wintergartenkonstruktion hatten wir schonmal angedacht, ist halt leider ziemlich teuer, weshalb wir im Moment eher an festverglaste Kunststoffdachfenster denken. Aber auf jeden Fall sollen die größer werden als im Plan und flach sein, vielleicht auch so groß wie du sie gezeichnet hast, wenn das geht.
Die Nutzung des Gäste-/Schlafzimmers wird sich denke ich mit der Zeit geben. Noch sind die Kinder sehr klein (2 Jahre und 3 Monate), da eilt es nicht so mit dem eigenen Zimmer. Warum würdest Du die Wand in die Flucht mit der Garderobe setzen? Ich hätte den Platz lieber im Wohnzimmer als im Gästezimmer - oder wirkt das nicht?
Und wie hoch würdest Du die Räume machen, wenn alles von 2,50 bis 4,50 möglich ist? Höher bedeutet mehr Stufen im Haus, dafür weniger Stufen auf die Terrasse und weniger Geländeveränderung/Aufschütten. Die Frage beschäftigt mich im Moment am meisten.
Vielen Dank!
Kerba
eine Wintergartenkonstruktion hatten wir schonmal angedacht, ist halt leider ziemlich teuer, weshalb wir im Moment eher an festverglaste Kunststoffdachfenster denken. Aber auf jeden Fall sollen die größer werden als im Plan und flach sein, vielleicht auch so groß wie du sie gezeichnet hast, wenn das geht.
Die Nutzung des Gäste-/Schlafzimmers wird sich denke ich mit der Zeit geben. Noch sind die Kinder sehr klein (2 Jahre und 3 Monate), da eilt es nicht so mit dem eigenen Zimmer. Warum würdest Du die Wand in die Flucht mit der Garderobe setzen? Ich hätte den Platz lieber im Wohnzimmer als im Gästezimmer - oder wirkt das nicht?
Und wie hoch würdest Du die Räume machen, wenn alles von 2,50 bis 4,50 möglich ist? Höher bedeutet mehr Stufen im Haus, dafür weniger Stufen auf die Terrasse und weniger Geländeveränderung/Aufschütten. Die Frage beschäftigt mich im Moment am meisten.
Vielen Dank!
Kerba
Kerba schrieb:
Und wie hoch würdest Du die Räume machen, wenn alles von 2,50 bis 4,50 möglich ist? Höher bedeutet mehr Stufen im Haus, dafür weniger Stufen auf die Terrasse und weniger Geländeveränderung/Aufschütten.Die Höhen im Plan wirken für mich stimmig. Das Dach (nicht technisch, aber doch wenigstens optisch) "abzuschleppen", sieht harmonischer aus als ein noch flacheres Flachdach (was ohnehin Grenzen hätte).
Ich habe mich im Geiste an Deinen Esstisch gesetzt (aber nichts weggefuttert), und mal meinen Blick schweifen lassen. So wie geplant, weicht der Boden des Wohnzimmers harmonisch mit der Dachneigung in die Flucht der Blicklinie zurück, an der Unterkante Deines Ausblick-Bildausschnittes ist die Unterkante der Fensterfront. Weniger Höhenunterschied Wohn- zu Esszimmer würde bedeuten, Du sähest noch mehr Boden.
Bei mehr Höhenunterschied wäre es so herum, daß Du genausogut bei der geplanten Höhe nicht-bodentiefe Fenster würdest nehmen können, die Unterkante des Bildausschnittes hinge in der Luft. Und, was mich noch mehr stören würde: das würde den Raumzusammenhang Wohnen - Essen zerreißen.
Und vom Essbereich in den Wohnbereich schaut man oft - gerade wenn der Essbereich den Ausblick des Wohnbereiches mitbenutzt. Ob Dir trotzdem weniger Stufen zum Hinausgehen mehr wiegen würden, mußt Du wissen. Das ergäbe aber mehr Raumhöhe des Wohnzimmers: zusätzlich zum anderen Bodenniveau noch ein anders orientiertes Raumformat im Querschnitt; und mehr Abstand zwischen gläserner Dachfläche und Boden. D.h. der ohnehin schwache Lichteinfall von der Nordseite heizt den Boden gar nicht mehr mit auf. Dann bleibt Ihr am Esstisch hocken und mögt nicht mehr ins Wohnzimmer hinabsteigen. Also: die Dachlinie des Anbaus ist o.k., und das Bodenniveau auch, wenn dem Hang nur leicht gefolgt und der Übergang Althaus / Anbau keine Bruchkante werden soll.
https://www.instagram.com/11antgmxde/
https://www.linkedin.com/company/bauen-jetzt/
Ähnliche Themen