8x12m Grundriss Ideensuche

4,50 Stern(e) 4 Votes
Zuletzt aktualisiert 06.01.2026
Sie befinden sich auf der Seite 4 der Diskussion zum Thema: 8x12m Grundriss Ideensuche
>> Zum 1. Beitrag <<

P

Painkiller

Beim Eingang auf der langen Seite hat man eben einen recht quadratischen Eingangsbereich oder Diele. Gerade wenn ich denke wenn Besuch da ist und die Schuhe in einem Gang stehen, oder man eben doch kurz vor dem gehen noch ein Schwätzchen hält ist das deutlich angenehmer wie in einem schmalen Gang.

Mein Problem bin ich eigentlich selbst Mir gefällt der obere Grundriss einfach besser, es wirkt aufgeräumter und für den Alltag praktischer (Man hat mehr Platz für Schuhschrank/Garderobe/Hundezubehör)

Vielleicht stelle ich mir das mit dem einparken auch nur so unpraktisch vor bei einer 3m Zufahrt!?
 
P

Painkiller

Wir haben etwas über 4m im Wohnzimmer, der Architekt hatte mit 3,5m geplant. in unserer aktuellen Wohnung haben wir 3,3m.

So ist der Erker an der Stelle an der der Wohnbereich durch die Treppe am engsten wirkt.
 
P

Painkiller

So vielleicht kann man den Threadtitel ändern, denn wir gehen nun in die Endphase der Planung.

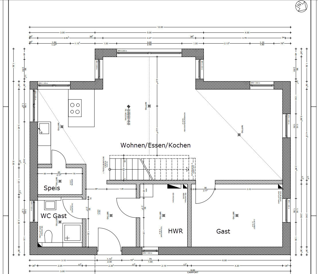
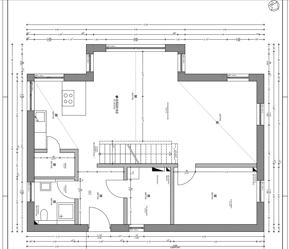
Anbei nun die Entwürfe des Architekten zur Werkplanung. Das heißt die Außenmaße sind fix aber innen könnte man noch das ein oder andere ändern.

Mit dem EG sind wir soweit zufrieden.
- Küche besteht schon aus der 3,4m langen Zeile und der Insel. Falls diese in 15 Jahren getauscht wird kann man immer noch über die Zunahme der Speisekammer überlegen.
- Tür zur Speisekammer soll in eine Schiebetür geändert werden
- Durchgang ins Wohnzimmer muss auf jeden Fall min auf 1,1m vergrößert werden.
- ich warte noch auf Rückinfo vom Architekten ob man die Wand aus dem Hauswirtschaftsraum ein Stück unter die Treppe ziehen kann damit Waschmaschine und Trockner da etwas Platz haben.

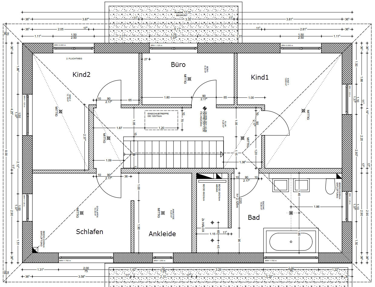
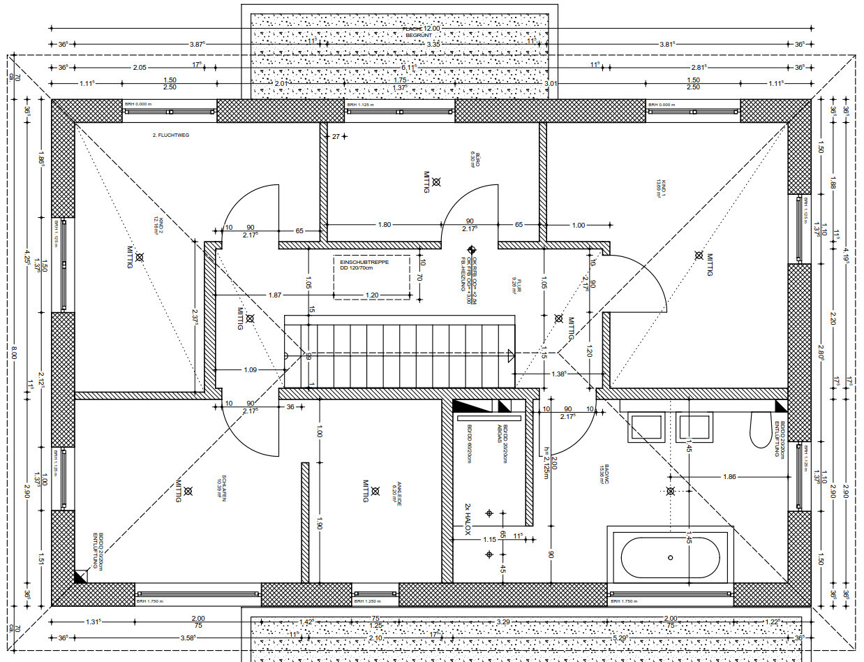
Hauptproblem ist das OG:
In unserem Ausgangsgrundriss war die Treppe etwas weiter Richtung Eingang. Das ist aufgrund Hauswirtschaftsraum nicht möglich.
-Hauptproblem Schlafzimmer: Es kann so kein Bett gestellt werden, dann geht die Tür nicht mehr auf. Türe in den Flur ziehen geht wohl auch nicht da es "katastrophal" aussieht wenn man die erste Stufe der Treppe überbaut (war im Ausgangsgrundriss so).
- Kinderzimmer haben recht wenig Stellmöglichkeit. Wir haben das gestern mal durchgespielt und würden für beide Zimmer eine Lösung hin bekommen. Im Moment sind wir mit der Familienplanung eh am Ende, das heißt das zweite Zimmer würden wir eher als Spielzimmer nutzen damit man dort auch mal die Legos liegen lassen kann...
- Bad gefällt mir sehr gut, ist aber halt auch riesig.
- Büro wäre für unsere Bedürfnisse ausreichend, wird nicht zum arbeiten genutzt sondern mehr um Papierkram zu erledigen ohne das dies für jeden sichtbar rum liegt.

Soweit mal von hier Jetzt dürft ihr.

Grundriss eines Wohnhauses mit Küche, Bad, Treppe, offenen Bereichen und Maßangaben.


Grundriss eines Hauses mit Treppenhaus, Türen, Bad, Küche und Maßangaben.
 
P

Painkiller

Wenn du die Schrift nicht lesen kannst, sind die Maße wahrscheinlich auch nicht lesbar. Aber ich will ja eure Meinung daher noch mal mit großer Beschriftung.

Grundriss eines Hauses: Schlafen, Ankleide, Bad, Büro, Kind1, Kind2, Flur, Treppenhaus.


Grundriss eines Hauses: offener Wohn-/Ess-/Kochbereich, Speis, WC Gast, HWR, Gästezimmer.
 
Y

ypg

Wie soll denn die Küche funktionieren?
Man sollte 90 cm Ablage für Kaffeemaschine, Wasserkocher, sonstige E-Geräte, Messer, Obstschale etc. einplanen, dazu natürlich Arbeitsfläche. Das sehe ich nicht.
 
Zuletzt aktualisiert 06.01.2026
Im Forum Grundrissplanung / Grundstücksplanung gibt es 2565 Themen mit insgesamt 88756 Beiträgen


Ähnliche Themen zu 8x12m Grundriss Ideensuche
Nr.ErgebnisBeiträge
1Speisekammer vs. größere Küche vs. Hauswirtschaftsraum 13
2 2 Vollgeschosse, Durchgang Garage, Hauswirtschaftsraum unter Treppe 25
3Vorplanung mit dem Architekten - eigener Grundriss sinnvoll? 18
4Grundrissfrage, Treppe, Fenster, Ausrichtung 12
5Mit Erker in die Abstandsflächen - in diesem Fall zulässig? - Seite 330
6Planung für Einfamilienhaus - Seite 566
7Erker in der Küche - Umsetzungsvorschläge - Seite 247
8Esstisch in einer kleinen Küche - Seite 449
9Grobe Schnitzer im Grundriss? Küche zu klein? - Seite 639
10Grundriss-Änderung Einfamilienhaus 150 m² aufgrund von Treppe 36
11Reicht der Hauswirtschaftsraum auch als Abstellkammer aus? - Seite 422
12Kombination Fliesen und Parkett im Wohnzimmer mit offener Küche - Seite 330
13Grundrissplanung Wohnzimmer-Küche 18
14Treppe im Wohnzimmer als Hype - Pro & Contra? - Seite 426
15Grundriss: Speisekammer oder größere Küche? Erfahrungen? - Seite 314
16Geschlossene Küche planen mit Durchgang zum Hauswirtschaftsraum - Seite 318
17Wohnen/Essen/Küche: Wie wohnt ihr oder werdet ihr wohnen? - Seite 852
18Treppe im Flur, Grundriss steht eigentlich schon :o( - Seite 320
19Wohnzimmer: Wie Sofa, TV und Schränke stellen? 32
20Grundriss für 150qm Einfamilienhaus mit Wohnzimmer nach Norden 21

Oben