ᐅ 3-FH geplant ohne Keller, euer Feedback zu meinem Grundriss
Erstellt am: 14.09.18 11:50
Hallo zusammen,
zunächst einmal, danke für das Aufnehmen in das Forum 🙂.
Wir ( Eltern und 3 Kinder, 10, 8 und 3 Jahre ) haben eine Grundstück gekauft.
Größe: 1170qm²
Besonderheit: Gewerbefläche
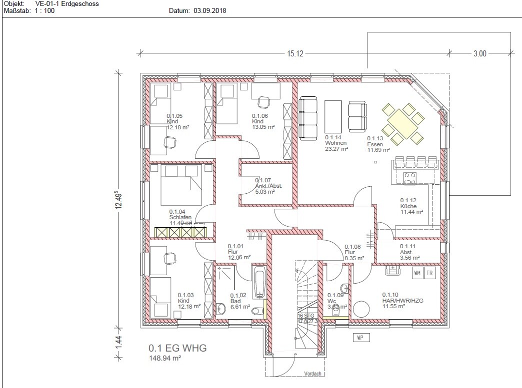
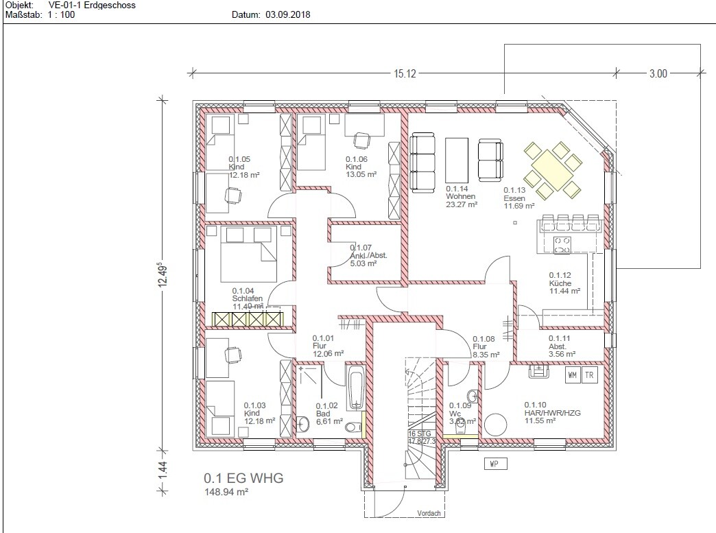
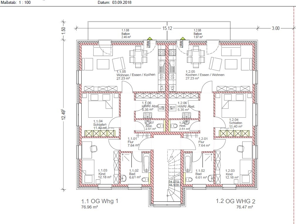
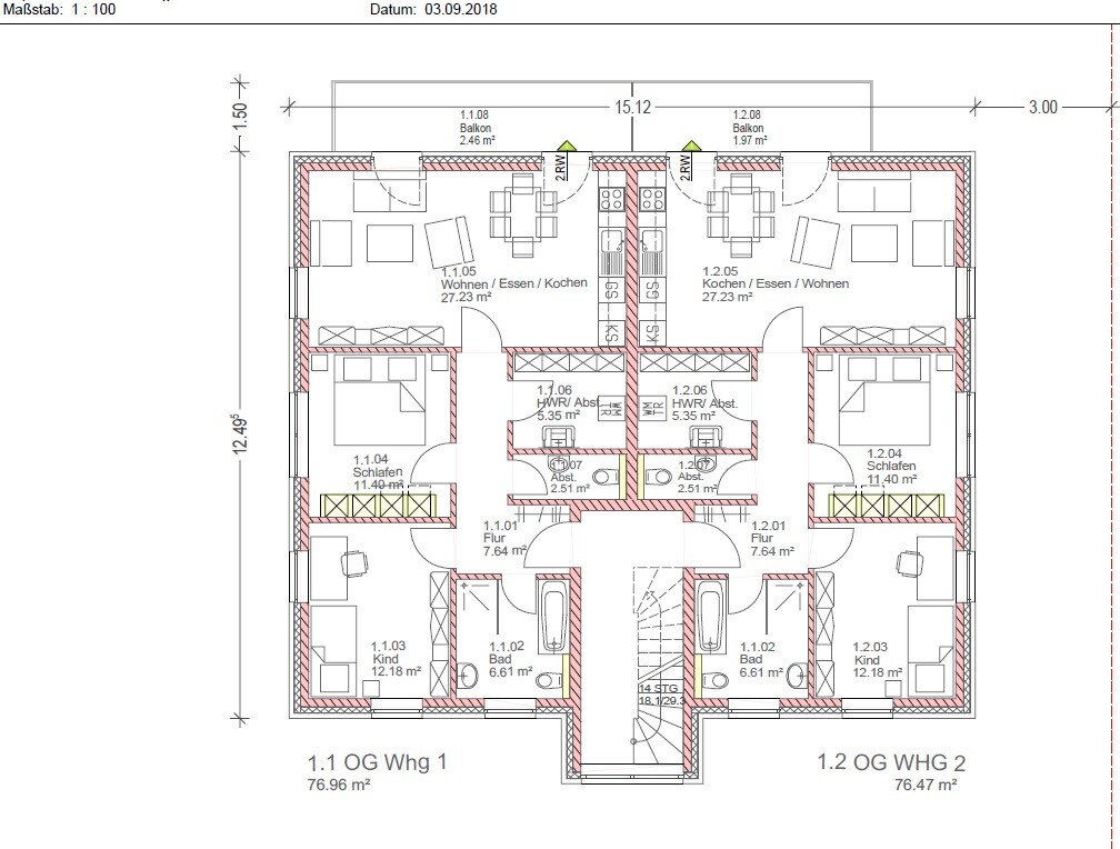
Bauvorhaben : 3FH mit ca. 300qm², ca. 150qm² für uns im EG & jeweils ca. 73qm² im OG.
Auf dem Grundstück befindet sich ein Einfamilienhaus , welches abgerissen werden soll.
Die Bauvoranfrage war bereits positiv.
Es war anfangs gedacht ( da hatte ich mir zu keine Gedanken gemacht), dass der Neubau an der Stelle des alten Objekts kommt.
Habe dann anschließend einen Architekten konsultiert.
Dieser empfahl mir, dass der Neubau weiter nach hinten versetzt wird (also weiter nach Norden).
Hintergrund:
+ das hintere Grundstücke ist breiter, besser für das Objekt
+ das Ausnutzen der Südseite für den Wohn- und Essbereich wäre effizienter 🙂,
zudem hat meine Frau einen Kochkanal, wo häufig Kochvideos gedreht werden, d.h., sie benötigt viel Licht. (ist uns sehr wichtig)
Hatten anschließend beim Bauamt nachgefragt, die Idee wurde abgelehnt.
Grund: da Gewerbefläche und man müsste das neue Objekt an der Stelle des alten Objekts bauen. Das Bauamt muss sonst damit rechnen, das evtl. Nachbarn vor Gericht ziehen würden/könnten.
Direkt nebenan befindet sich eine Tischlerei, die Produktion findet jedoch auf der anderen Seite statt, sodass sich nur die Lagerhalle daneben befindet. Der Tischler wollte vorher unbedingt das Grundstück kaufen. Zusage bekamen wir dann.
Es handelt sich sozusagen um ein Eckgrundstück, ein kleiner Weg trennt uns zu den nächsten Nachbarn.
Meine Idee war dazu evtl., dass ich mir eine schriftliche Bestätigung von den Nachbarn einhole, auch eingenommen der Tischler 🙂, dass diese damit einverstanden sind, dass der Neubau weiter nach hinten versetzt (siehe Anhang "Lageplan 2") wird. Es springt eigentlich nichts dagegen, keiner würde dadurch gestört sein (z.B. Sichtstörung etc.) und gebaut wird eh 🙂.
Ansonsten muss ich den ersten Lageplan nehmen.
Einen ersten Grundriss gibt es auch (siehe Anhang).
weitere Idee: der Dachboden (Formen für die Dachform sind nicht vorgeschrieben) könnte später als Wohnraum benutzt werden, z.B. für unseren Sohn, jedoch darf evtl. darf es sich nur "erweiterten Wohnraum" handeln = Aussage vom Bauamt. Außerdem bauen wir ohne Keller und der Dachboden könnte dann erstmal als zusätzlichen Stauraum dienen.
Frage:
- was hält ihr von unseren Entwurf, auf den ersten Blick gefällt der uns, doch was würdet ihr anders machen und warum ?
bzw.
- wie könnte man das Haus sonst noch gut platzieren ?
- es sind 2 Mietwohnungen geplant, was müsste man noch bedenken, z.B. bzgl. Privatsphäre etc.
Bin im Thema neu drin, bitte um Verständnis, falls ich was vergessen habe 🙂.
Bedanke mich schon und bin mal gespannt 🙂!!!





zunächst einmal, danke für das Aufnehmen in das Forum 🙂.
Wir ( Eltern und 3 Kinder, 10, 8 und 3 Jahre ) haben eine Grundstück gekauft.
Größe: 1170qm²
Besonderheit: Gewerbefläche
Bauvorhaben : 3FH mit ca. 300qm², ca. 150qm² für uns im EG & jeweils ca. 73qm² im OG.
Auf dem Grundstück befindet sich ein Einfamilienhaus , welches abgerissen werden soll.
Die Bauvoranfrage war bereits positiv.
Es war anfangs gedacht ( da hatte ich mir zu keine Gedanken gemacht), dass der Neubau an der Stelle des alten Objekts kommt.
Habe dann anschließend einen Architekten konsultiert.
Dieser empfahl mir, dass der Neubau weiter nach hinten versetzt wird (also weiter nach Norden).
Hintergrund:
+ das hintere Grundstücke ist breiter, besser für das Objekt
+ das Ausnutzen der Südseite für den Wohn- und Essbereich wäre effizienter 🙂,
zudem hat meine Frau einen Kochkanal, wo häufig Kochvideos gedreht werden, d.h., sie benötigt viel Licht. (ist uns sehr wichtig)
Hatten anschließend beim Bauamt nachgefragt, die Idee wurde abgelehnt.
Grund: da Gewerbefläche und man müsste das neue Objekt an der Stelle des alten Objekts bauen. Das Bauamt muss sonst damit rechnen, das evtl. Nachbarn vor Gericht ziehen würden/könnten.
Direkt nebenan befindet sich eine Tischlerei, die Produktion findet jedoch auf der anderen Seite statt, sodass sich nur die Lagerhalle daneben befindet. Der Tischler wollte vorher unbedingt das Grundstück kaufen. Zusage bekamen wir dann.
Es handelt sich sozusagen um ein Eckgrundstück, ein kleiner Weg trennt uns zu den nächsten Nachbarn.
Meine Idee war dazu evtl., dass ich mir eine schriftliche Bestätigung von den Nachbarn einhole, auch eingenommen der Tischler 🙂, dass diese damit einverstanden sind, dass der Neubau weiter nach hinten versetzt (siehe Anhang "Lageplan 2") wird. Es springt eigentlich nichts dagegen, keiner würde dadurch gestört sein (z.B. Sichtstörung etc.) und gebaut wird eh 🙂.
Ansonsten muss ich den ersten Lageplan nehmen.
Einen ersten Grundriss gibt es auch (siehe Anhang).
weitere Idee: der Dachboden (Formen für die Dachform sind nicht vorgeschrieben) könnte später als Wohnraum benutzt werden, z.B. für unseren Sohn, jedoch darf evtl. darf es sich nur "erweiterten Wohnraum" handeln = Aussage vom Bauamt. Außerdem bauen wir ohne Keller und der Dachboden könnte dann erstmal als zusätzlichen Stauraum dienen.
Frage:
- was hält ihr von unseren Entwurf, auf den ersten Blick gefällt der uns, doch was würdet ihr anders machen und warum ?
bzw.
- wie könnte man das Haus sonst noch gut platzieren ?
- es sind 2 Mietwohnungen geplant, was müsste man noch bedenken, z.B. bzgl. Privatsphäre etc.
Bin im Thema neu drin, bitte um Verständnis, falls ich was vergessen habe 🙂.
Bedanke mich schon und bin mal gespannt 🙂!!!
Ich würde mein Schlafzimmer nicht zwischen meine Kinder packen sondern unten in die Ecke neben das Bad.
Ich muss nicht von allen Seiten belauscht werden, außerdem wirds den Blagen irgendwann extrem peinlich 😉
Das Bad finde ich auch klein für 5 Personen.
Ich würde dann wohl in den Abstellraum ein 2. Duschbad machen. Oder wenigstens das Gäste-WC vergrößern und ne Dusche rein.
Der Flur scheint mir auch zu klein um da Jacken und Schuhe für 5 unterzubringen, wenn die Wohnzimmertür nicht da oben in der Ecke wäre, hätte man mehr Platz.
Ich würde mir vmtl auch die Theke schenken und dafür den Essbereich größer machen - 6 Plätze, ihr seid schon selber 5, da passen dann ja keine Gäste mehr mit hin.
So das mal nur auf den ersten Blick, gibt sicher noch mehr 😉
Ich muss nicht von allen Seiten belauscht werden, außerdem wirds den Blagen irgendwann extrem peinlich 😉
Das Bad finde ich auch klein für 5 Personen.
Ich würde dann wohl in den Abstellraum ein 2. Duschbad machen. Oder wenigstens das Gäste-WC vergrößern und ne Dusche rein.
Der Flur scheint mir auch zu klein um da Jacken und Schuhe für 5 unterzubringen, wenn die Wohnzimmertür nicht da oben in der Ecke wäre, hätte man mehr Platz.
Ich würde mir vmtl auch die Theke schenken und dafür den Essbereich größer machen - 6 Plätze, ihr seid schon selber 5, da passen dann ja keine Gäste mehr mit hin.
So das mal nur auf den ersten Blick, gibt sicher noch mehr 😉
Zunächst mal alles mit realistischen Möbeln bestücken ... also realistischen Maßen. Ich gucke nur auf den Esstisch und klappe den Plan zu 😉 ... wie soll man da auf die Terrasse kommen.
Schlafzimmer .. dürfte gerade mal gut 3m breit sein. Ganz schön eng neben dem Bett.
Die Außenmaße 12,5 x 15 m sind für insbesondere den Wohnbereich eher unpraktisch. Man sieht es auch am Grundriss ... ein großer ungenutzter Bereich, dafür eine gequetschte Küche und Esstisch.
Hausanschlussraum sollte eher vom Flur benutzbar sein, mindestens die echten Hausanschlüsse etc. Lass mal was an Heizung sein, wenn ihr im Urlaub seid, da muss auch der Mieter eine Möglichkeit haben an die Räume zu kommen. Oder Elektrozähler usw.
War da ein Architekt dran?
Schlafzimmer .. dürfte gerade mal gut 3m breit sein. Ganz schön eng neben dem Bett.
Die Außenmaße 12,5 x 15 m sind für insbesondere den Wohnbereich eher unpraktisch. Man sieht es auch am Grundriss ... ein großer ungenutzter Bereich, dafür eine gequetschte Küche und Esstisch.
Hausanschlussraum sollte eher vom Flur benutzbar sein, mindestens die echten Hausanschlüsse etc. Lass mal was an Heizung sein, wenn ihr im Urlaub seid, da muss auch der Mieter eine Möglichkeit haben an die Räume zu kommen. Oder Elektrozähler usw.
War da ein Architekt dran?
Climbee schrieb:
Wieso ein 3FH? Gibt es dafür einen Grund?
Wollt ihr wirklich immer Mieter haben, die euch "auf dem Kopf rumtrampeln"?
Ist das wirklich euer Ernst: 5köpfige Familie mit nur einem 6qm-Bad?Bin sozusagen Alleinverdiener, will eine monatliche Unterstützung, langfristig soll sich das auszahlen (laut Finanberater), natürlich muss auch Glück mit Mietern haben, kriege bessere Konditionen dadurch.
Hatten auch überlegt, wenn mal die Kinder was einiges möchten (bei Volljährigkeit) und dennoch bei uns bleiben wollen, dann kann jeder eine Wohnung nehmen, Ansonsten ziehe ich mit meiner Frau in eines der obigen kleineren Wohnung und vermieten die untere Wohnung, wäre dann zu groß für uns.
zum Bad: schwierig zu sagen, wie könnte man es sonst machen :
-1 zimmer weniger (wenn ehh dachboden ausgebaut wird) ??
- wir halten uns momentan nicht so lange im bad auf,kann sich bei den Kindern natürlich noch ändern :-)
------------------------------------------------------------------
kbt09 schrieb:
war da ein Architekt dran?ja, da war ein Architekt dran :-(, aber daher wollte ich nochmal erkundigen, ich werde sowas dann natürlich nochmal ansprechen.
danke schonmal
Ähnliche Themen