So, Corona-Lockdown und die berufliche „Zielgerade“ haben auch ihr Gutes:
Ich habe zwei kleine Grundstücksperlen, die jetzt endlich bebaut werden sollen (eines für uns selbst, eines für den ältesten Sohnemann - hier das erste. Wir haben lange mit dem Grundstück „verhandelt“, auch mit einer Architektin (mhm), und ich selbst als leicht unentschlossener verliere vor Alternativen ein wenig den klaren Überblick: welche grundsätzliche Form passt am besten zum Grundstück und zu uns?
In einem ersten Schritt wäre es toll, hierfür Hilfe zu bekommen, von Euch. Dann als nächstes die Feinplanung von uns
Größe des Grundstücks: 500m2, SW-Lage, 19,5 (Straße) x 25,5; Berlin, sehr gute Lage.
Sehr grüner Innenbereich nach Westen, nicht bebaubar. Ruhige Straße.
2 Herausforderungen:
Vorgarten mit 7,5 Metern sehr groß,
Riesige Fichte von 25-30m Höhe fast direkt auf der westlichen Grundstücksgrenze beim Nachbarn in der W/N-Ecke.
Hang: nein
Grundflächenzahl: 0,25
Geschossflächenzahl: keine, Maximal 2-gesch plus Dach
Baufenster, Baulinie und -grenze: 7,5m zur Straße freizuhalten, dort auch kein Stellplatz; 3m zu den 3 Nachbarn
Anzahl Stellplatz
Geschossigkeit: Max. 2-geschossig plus Dach
Dachform: Bauamt sieht Flachdach als unerwünscht an, allerdings in der Umgebung wurde ein solches genehmigt.
weitere Vorgaben: „Einfügen“ in die Umgebung
Anforderungen der Bauherren:
Stilrichtung, Dachform, Gebäudetyp: modern, vor allem aber in sich stimmig, wertig.
Keller, Geschosse: Keller bautechnisch schwierig wegen Zufahrt und Grundstücksgröße, in der Umgebung alles unterkellert, alte Villen, Keller idR ca 1 Meter aus dem Boden, aus unserer Sicht bei einem so kleinen Grundstück unpassend wegen Treppen zum kleinen Garten,
2-G plus Dach
Anzahl der Personen, Alter: 3: V/M/K, 60/51/12, V arbeitet zu Hause
Raumbedarf im EG, OG: OG 3 Zimmer, ein separates Arbeitszimmer EG/OG denkbar, aber nicht zwingend. Dampfsauna.
Büro: Familiennutzung oder Homeoffice? Homeoffice Vater
Schlafgäste pro Jahr: selten, Kind häufig
offene oder geschlossene Architektur: eher offen, aber eher W und E als Einheit als E und K (am esstisch auch Hausaufgaben, Spiele Zeitunglesen etc..
konservativ oder moderne Bauweise: modern
offene Küche, Kochinsel: wenn’s passt, aber die Esstisch ist eigentlich der Familienmittelpunkt, auch ohne Nahrungsaufnahme, daher Blick auf Bratpfannen eher nicht zwingend.
Anzahl Essplätze:5
Kamin: eher ja, aber: im letzten Haus war er sinnlos, im Ausland inFrankreich aber ein Traum.
Musik/Stereowand: V Musikliebhaber
Balkon, Dachterrasse: eher ja
Garage, Carport: zumindest carport planrechts (Pardon: nördlich)
Nutzgarten, Treibhaus: nein
weitere Wünsche/Besonderheiten/Tagesablauf, gern auch Begründungen, warum dieses oder das nicht sein soll:
möglichst kein „Ritter-Sport-Haus“ oder „Anstattvilla“. Aber wenn konventionell besser ist, auch ok.
Hausvorplanungen
Mir ist klar, dass wir wahrscheinlich einen Architekten benötigen, und die Zeichner einer Baufirma nicht ausreichen werden. Nur haben wir bisher keinen gefunden (einen, der baubiologische Ausführung planen kann, schon)
Von wem stammen die Planungen:
eine vom Architekten, allerdings mit zahlreichen BPlanwidrigen Versprechungen wie Fitness-Studio im Keller mit bodentiefen Abgrabungen bis an die Grenze zum Nachbarn.
-Planer eines Bauunternehmens
-Do-it-Yourself
Was gefällt besonders? Warum?
zu jedem gibt es einen ersten „Entwurf“ eines EG und OG, wissend dass das Wort Entwurf etwas übertrieben ist.
In zufälliger Reihenfolge:
Entwurf 4 (schräg): die Anpassung an die Sonne, die Öffnung des Raumes von klein am Eingang zu groß im WZ, die Übergänge, der Fluss der Räume K-E-WZ, die Möglichkeiten der Terrasse Rundum E/WZ, tolles unkonventionelles Kinderzimmer mit Terrasse
Entwurf 3: funktioniert immer mit L-Form von K-E-W, viel Garten nach Westen, Schmalseite zum südöstlichen Nachbarn
Entwurf 2 (Winkel): der Teil überdachte Draußenbereich. Das aufgeräumte OG. Die OG-Terrasse.
Entwurf 1 („Scheune“): Das ästhetische Äußere. Klare Struktur.
Was gefällt nicht? Warum?
E4: Küche zu subaltern? Großer Wohnraum bedarf der Untergliederung...oben reizvoll-schwierig
E3: keine Strukturierung des Gartens/Terrasse nicht dem Haus/Grundstück entspringend/eingeformt
E2: innen im EG zu zerklüftet? Küche nicht getrennt genug vom Esstisch?OG nicht ganz so einfach zu gestalten durch Winkel.
E1 Scheune: wenig Garten nach Westen.
Preisschätzung lt Architekt/Planer:
Persönliches Preislimit fürs Haus, inkl Ausstattung:
Wir haben kein Preislimit, es sollte dem (kleinen), aber wertigen Grundstück angemessen sein. Ich gehe von „all-in“ von ca 700 T€ aus
favorisierte Heiztechnik: Erdwärme
Wenn Ihr verzichten müsst, auf welche Details/Ausbauten
-könnt Ihr verzichten: Keller,
-könnt Ihr nicht verzichten: Licht, Raumhöhen EG 3m, Blick in die Natur, baubiologisch absolut einwandfreie Ausführung (schadstoffminimiert).
Was ist die wichtigste/grundlegende Frage zum Grundriss in 130 Zeichen zusammengefasst?
Welche der Grundkonzeptionen sollten wir in Bezug auf DIESES Grundstück weiterverfolgen? Oder sind die Optionen noch zu zahlreich, so dass wir uns erst noch selbst entscheiden müssen, was unser Favorit ist?
Wg Teenager: lieber EG/OG kleiner und Dach ausgebaut?








Ich habe zwei kleine Grundstücksperlen, die jetzt endlich bebaut werden sollen (eines für uns selbst, eines für den ältesten Sohnemann - hier das erste. Wir haben lange mit dem Grundstück „verhandelt“, auch mit einer Architektin (mhm), und ich selbst als leicht unentschlossener verliere vor Alternativen ein wenig den klaren Überblick: welche grundsätzliche Form passt am besten zum Grundstück und zu uns?
In einem ersten Schritt wäre es toll, hierfür Hilfe zu bekommen, von Euch. Dann als nächstes die Feinplanung von uns
Größe des Grundstücks: 500m2, SW-Lage, 19,5 (Straße) x 25,5; Berlin, sehr gute Lage.
Sehr grüner Innenbereich nach Westen, nicht bebaubar. Ruhige Straße.
2 Herausforderungen:
Vorgarten mit 7,5 Metern sehr groß,
Riesige Fichte von 25-30m Höhe fast direkt auf der westlichen Grundstücksgrenze beim Nachbarn in der W/N-Ecke.
Hang: nein
Grundflächenzahl: 0,25
Geschossflächenzahl: keine, Maximal 2-gesch plus Dach
Baufenster, Baulinie und -grenze: 7,5m zur Straße freizuhalten, dort auch kein Stellplatz; 3m zu den 3 Nachbarn
Anzahl Stellplatz
Geschossigkeit: Max. 2-geschossig plus Dach
Dachform: Bauamt sieht Flachdach als unerwünscht an, allerdings in der Umgebung wurde ein solches genehmigt.
weitere Vorgaben: „Einfügen“ in die Umgebung
Anforderungen der Bauherren:
Stilrichtung, Dachform, Gebäudetyp: modern, vor allem aber in sich stimmig, wertig.
Keller, Geschosse: Keller bautechnisch schwierig wegen Zufahrt und Grundstücksgröße, in der Umgebung alles unterkellert, alte Villen, Keller idR ca 1 Meter aus dem Boden, aus unserer Sicht bei einem so kleinen Grundstück unpassend wegen Treppen zum kleinen Garten,
2-G plus Dach
Anzahl der Personen, Alter: 3: V/M/K, 60/51/12, V arbeitet zu Hause
Raumbedarf im EG, OG: OG 3 Zimmer, ein separates Arbeitszimmer EG/OG denkbar, aber nicht zwingend. Dampfsauna.
Büro: Familiennutzung oder Homeoffice? Homeoffice Vater
Schlafgäste pro Jahr: selten, Kind häufig
offene oder geschlossene Architektur: eher offen, aber eher W und E als Einheit als E und K (am esstisch auch Hausaufgaben, Spiele Zeitunglesen etc..
konservativ oder moderne Bauweise: modern
offene Küche, Kochinsel: wenn’s passt, aber die Esstisch ist eigentlich der Familienmittelpunkt, auch ohne Nahrungsaufnahme, daher Blick auf Bratpfannen eher nicht zwingend.
Anzahl Essplätze:5
Kamin: eher ja, aber: im letzten Haus war er sinnlos, im Ausland inFrankreich aber ein Traum.
Musik/Stereowand: V Musikliebhaber
Balkon, Dachterrasse: eher ja
Garage, Carport: zumindest carport planrechts (Pardon: nördlich)
Nutzgarten, Treibhaus: nein
weitere Wünsche/Besonderheiten/Tagesablauf, gern auch Begründungen, warum dieses oder das nicht sein soll:
möglichst kein „Ritter-Sport-Haus“ oder „Anstattvilla“. Aber wenn konventionell besser ist, auch ok.
Hausvorplanungen
Mir ist klar, dass wir wahrscheinlich einen Architekten benötigen, und die Zeichner einer Baufirma nicht ausreichen werden. Nur haben wir bisher keinen gefunden (einen, der baubiologische Ausführung planen kann, schon)
Von wem stammen die Planungen:
eine vom Architekten, allerdings mit zahlreichen BPlanwidrigen Versprechungen wie Fitness-Studio im Keller mit bodentiefen Abgrabungen bis an die Grenze zum Nachbarn.
-Planer eines Bauunternehmens
-Do-it-Yourself
Was gefällt besonders? Warum?
zu jedem gibt es einen ersten „Entwurf“ eines EG und OG, wissend dass das Wort Entwurf etwas übertrieben ist.
In zufälliger Reihenfolge:
Entwurf 4 (schräg): die Anpassung an die Sonne, die Öffnung des Raumes von klein am Eingang zu groß im WZ, die Übergänge, der Fluss der Räume K-E-WZ, die Möglichkeiten der Terrasse Rundum E/WZ, tolles unkonventionelles Kinderzimmer mit Terrasse
Entwurf 3: funktioniert immer mit L-Form von K-E-W, viel Garten nach Westen, Schmalseite zum südöstlichen Nachbarn
Entwurf 2 (Winkel): der Teil überdachte Draußenbereich. Das aufgeräumte OG. Die OG-Terrasse.
Entwurf 1 („Scheune“): Das ästhetische Äußere. Klare Struktur.
Was gefällt nicht? Warum?
E4: Küche zu subaltern? Großer Wohnraum bedarf der Untergliederung...oben reizvoll-schwierig
E3: keine Strukturierung des Gartens/Terrasse nicht dem Haus/Grundstück entspringend/eingeformt
E2: innen im EG zu zerklüftet? Küche nicht getrennt genug vom Esstisch?OG nicht ganz so einfach zu gestalten durch Winkel.
E1 Scheune: wenig Garten nach Westen.
Preisschätzung lt Architekt/Planer:
Persönliches Preislimit fürs Haus, inkl Ausstattung:
Wir haben kein Preislimit, es sollte dem (kleinen), aber wertigen Grundstück angemessen sein. Ich gehe von „all-in“ von ca 700 T€ aus
favorisierte Heiztechnik: Erdwärme
Wenn Ihr verzichten müsst, auf welche Details/Ausbauten
-könnt Ihr verzichten: Keller,
-könnt Ihr nicht verzichten: Licht, Raumhöhen EG 3m, Blick in die Natur, baubiologisch absolut einwandfreie Ausführung (schadstoffminimiert).
Was ist die wichtigste/grundlegende Frage zum Grundriss in 130 Zeichen zusammengefasst?
Welche der Grundkonzeptionen sollten wir in Bezug auf DIESES Grundstück weiterverfolgen? Oder sind die Optionen noch zu zahlreich, so dass wir uns erst noch selbst entscheiden müssen, was unser Favorit ist?
Wg Teenager: lieber EG/OG kleiner und Dach ausgebaut?
Im ersten Moment dachte ich wirklich cooler Entwurf, habe aber noch einen zweiten riskiert...
- Begehbarer Luftraum, was es nicht alles gibt... der ist in Variante 1 übrigens über dem Lager, wer den Vorräten beim liegen zuschauen mag fühlt sich da direkt heimelig.
- Wenn ich mich nicht verrechnet habe, habt ihr 3.10m für den Tisch inklusive Stühle und Durchgang. Tisch 1m, Stuhl 60-80cm
- Stellplatz hinterm Haus, EINER, ein zweites Auto passt dort nicht wirklich hin trotz viel Fläche. Der Mülleimer bekommt ein Dach und du läufst im Regen einmal herum um zum Eingang zu gelangen. In V2 35-40m mit jeder Einkaufstüte bis zur Küche oder durchs Fenster rein?
- Ein gigantischer Balkon, der primär durch´s Bad oder ein Zimmer betreten werden soll, das Balkönchen dann vom anderen Zimmer durch den Flur?
- ganz wichtig dazu 2 Nur-Glasecken, dürfen in einem modernen Entwurf nicht fehlen :P
- offener multifunktionaler Büro- und Durchgangsbereich im OG aber keine Möglichkeit aufs Klo zu gehen dafür in der Ankleide max. 2m Schrank. Je nach Kniestock wird´s für den Kopf im Bett ebenfalls gefährlich
- Dusche im WC im EG wo wer duschen soll nachdem er oder sie an der Eingangstür vorbei lief in Unterwäsche?
- Stellplatz für Waschmaschine und Trockener bzw. Wäscheständer?
Das sind die Sachen die mir aufgefallen sind, nicht böse nehmen, ich wollte ihn cool finden aber gutes Design muss imho immer noch funktionieren. Rein des "Schönseins" wegen würde ich kein Haus bauen, das mag aber jeder selbst entscheiden welche Kompromisse er eingehen möchte.
- Begehbarer Luftraum, was es nicht alles gibt... der ist in Variante 1 übrigens über dem Lager, wer den Vorräten beim liegen zuschauen mag fühlt sich da direkt heimelig.
- Wenn ich mich nicht verrechnet habe, habt ihr 3.10m für den Tisch inklusive Stühle und Durchgang. Tisch 1m, Stuhl 60-80cm
- Stellplatz hinterm Haus, EINER, ein zweites Auto passt dort nicht wirklich hin trotz viel Fläche. Der Mülleimer bekommt ein Dach und du läufst im Regen einmal herum um zum Eingang zu gelangen. In V2 35-40m mit jeder Einkaufstüte bis zur Küche oder durchs Fenster rein?
- Ein gigantischer Balkon, der primär durch´s Bad oder ein Zimmer betreten werden soll, das Balkönchen dann vom anderen Zimmer durch den Flur?
- ganz wichtig dazu 2 Nur-Glasecken, dürfen in einem modernen Entwurf nicht fehlen :P
- offener multifunktionaler Büro- und Durchgangsbereich im OG aber keine Möglichkeit aufs Klo zu gehen dafür in der Ankleide max. 2m Schrank. Je nach Kniestock wird´s für den Kopf im Bett ebenfalls gefährlich
- Dusche im WC im EG wo wer duschen soll nachdem er oder sie an der Eingangstür vorbei lief in Unterwäsche?
- Stellplatz für Waschmaschine und Trockener bzw. Wäscheständer?
Das sind die Sachen die mir aufgefallen sind, nicht böse nehmen, ich wollte ihn cool finden aber gutes Design muss imho immer noch funktionieren. Rein des "Schönseins" wegen würde ich kein Haus bauen, das mag aber jeder selbst entscheiden welche Kompromisse er eingehen möchte.
Was mir beim lesen des Eingangs-Posts gerade noch eingefallen ist und das ohne Euch zu nahe treten zu wollen aber macht es Sinn, dass ihr Euch mit dem Wohnen "im Alter" beschäftigt und die sich daraus ergebenden Faktoren in den Bau mit einfließen lasst? Bei einem Bau mit "2x30" wäre das für mich ein Aspekt, den ich stärker in den Fokus setzen würde und Laufwege, Vermeidung Ecke etc. daran orientieren.
@borxx @ypg Ja, das sind genau die Bedenken, die ich auch habe:
1. Die Wege: vom Stellplatz über den Eingang zur Küche - sehr lang. Vom Eingang zur Küche: lang in beiden Varianten, durchs ganze Haus. Bei V1 Küche links muss man vom Eingang den Hauswirtschaftsraum-Block umrunden.
2. Die Vorgabe war: Wohn- und Esszimmer partielle verbunden/überlappend. Ist hier umgesetzt, aber um den Preis, dass es gar kein Esszimmer gibt, dass diesen Namen verdient, nur ein flurartiges Etwas, das nicht funktioniert, ein Durchgangsbereich. Esszimmer für mich so ein K.O.
3. Die riesigen Balkone laufen beide messerspitz zu, dort sind sie nicht nutzbar, vielleicht für Blumen/Pflanzen. Ist das aber baubar, abdichtbar? Zusatzrisiko ohne Zusatznutzen...?
Oder hättet Ihr diese Bedenken nicht? Wie wirkt das von außen? Verderben diese Balkon-Anbauten nicht den Eindruck des Scheunen-Mittelteils?
4. 1.OG müsste wohl das Arbeitszimmer zur Ankleide werden. Das Bad ist für dieses Haus recht klein.ü, keine Saunamöglichkeit. Kein Bad im 2.OG, aber Dusche im EG??
5.
6. Kein Fenster bei V2 zur SW-Seite Park geht in der Tat gar nicht.
In Summe hat die Architektin zumindest die Lage der Treppe nicht gut gewählt, oder?
@11ant das könnten tatsächlich berechtigte Bedenken sein:
1. Die Wege: vom Stellplatz über den Eingang zur Küche - sehr lang. Vom Eingang zur Küche: lang in beiden Varianten, durchs ganze Haus. Bei V1 Küche links muss man vom Eingang den Hauswirtschaftsraum-Block umrunden.
2. Die Vorgabe war: Wohn- und Esszimmer partielle verbunden/überlappend. Ist hier umgesetzt, aber um den Preis, dass es gar kein Esszimmer gibt, dass diesen Namen verdient, nur ein flurartiges Etwas, das nicht funktioniert, ein Durchgangsbereich. Esszimmer für mich so ein K.O.
borxx schrieb:Warum liegt also die Treppe dort? Warum nicht weiter vorn rechts oder zumindest an der rechten Wand?
Wenn ich mich nicht verrechnet habe, habt ihr 3.10m für den Tisch inklusive Stühle und Durchgang. Tisch 1m, Stuhl 60-80cm
3. Die riesigen Balkone laufen beide messerspitz zu, dort sind sie nicht nutzbar, vielleicht für Blumen/Pflanzen. Ist das aber baubar, abdichtbar? Zusatzrisiko ohne Zusatznutzen...?
Oder hättet Ihr diese Bedenken nicht? Wie wirkt das von außen? Verderben diese Balkon-Anbauten nicht den Eindruck des Scheunen-Mittelteils?
4. 1.OG müsste wohl das Arbeitszimmer zur Ankleide werden. Das Bad ist für dieses Haus recht klein.ü, keine Saunamöglichkeit. Kein Bad im 2.OG, aber Dusche im EG??
5.
borxx schrieb:sehr treffend, es dürfte sogar die Grundflächenzahl II überschritten sein. Rechts geht viel zu viel Fläche verloren.
Stellplatz hinterm Haus, EINER, ein zweites Auto passt dort nicht wirklich hin trotz viel Fläche
6. Kein Fenster bei V2 zur SW-Seite Park geht in der Tat gar nicht.
In Summe hat die Architektin zumindest die Lage der Treppe nicht gut gewählt, oder?
@11ant das könnten tatsächlich berechtigte Bedenken sein:
11ant schrieb:Aus den Gesprächen wurde deutlich, dass sie das „Bauen“ gern einem Generalunternehmer überlässt...und sich bei 5-9 weniger in der Pflicht sieht.
Offenbar verwechselt er "kreativ" mit "krampforiginell". Da wäre ich schon bedient und würde befürchten, Bauleitung sei so jemandes Stärke nicht
ypg schrieb:Ich mag nach wie vor den Gesamteindruck des Hauses, in der Tat ein Stadthaus. Ob es nicht doch etwas „villenartiger“ sein müsste für die Umgebung des Grundstücks (rotgeklinkerte, weiß abgesetzte Altbauvillen), muss man(n) vielleicht auch noch entscheiden.
Ps: ich sehe da keine Kirche - ich sehe ein Stadthaus.
H
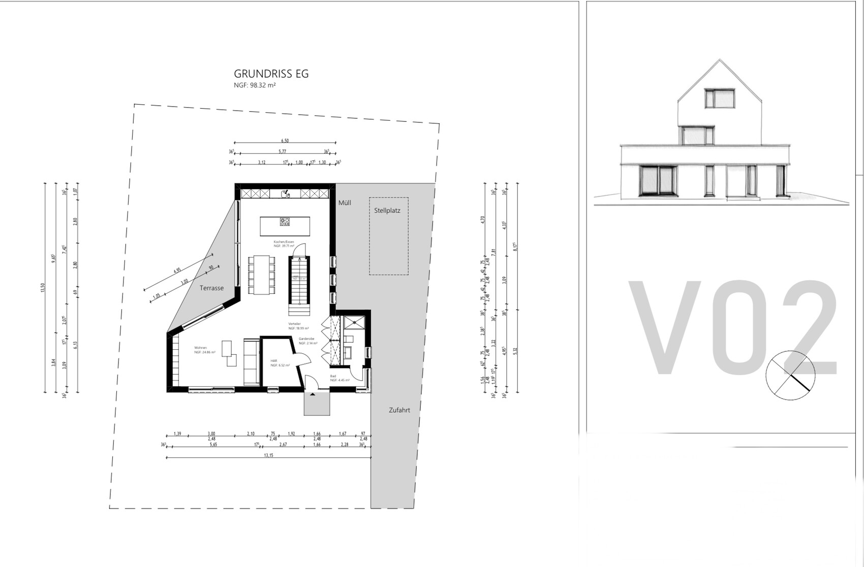
hanghaus200020.05.21 11:07Mir fehlt irgendwie der Nordpfeil. Warum der Stellplatz so weit hinten? Gibt es die Regel her nur einen Stellplatz zu planen?
borxx schrieb:
Wohnen "im AlterGar nicht zu nahe getreten, das kommt hier im Entwurf in der Tat zu kurz. Es gab einmal einen anderen Entwurf der Architektin , den sie entsorgte - dort gab es entsprechend unseren Wünschen im EG ein Gäste/Arbeits-/Altersschlafzimmer...übrig blieb davon die Dusche...hanghaus2000 schrieb:
Mir fehlt irgendwie der Nordpfeil. Warum der Stellplatz so weit hinten? Gibt es die Regel her nur einen Stellplatz zu planen?Sorry, im Anhang nochmal mit Nordpfeil.Warum Stellplatz so weit hinten? Ohne wirklichen Grund, und nicht sinnvoll, außer dass dort mehr Breite zur Verfügung steht als direkt neben dem Haus. Einzige Planvorgabe ist, kein Stellplatz VOR dem Haus im 7,5m-Bereich.
Ähnliche Themen