ᐅ Grundriss-Feedback gesucht: OG unsicher (Extra-WC ja/nein?), Speis im EG, Küche/Fenster + Bad-Layouts
Erstellt am: 26.01.26 09:22
Hallo zusammen,
ich plane aktuell unser Haus und würde mich sehr über Anregungen und Optimierungsideen freuen. Den Grundriss (EG + OG) lade ich gleich hoch.
bebauungsplan / Einschränkungen
• Grundstücksgröße: 625 m²
• Geschossflächenzahl: UG + EG + OG
• Stellplätze: 2
• Dachform: Walmdach
• Ausrichtung: Straße im Süden, Terrasse im Norden
Anforderungen der Bauherren
• Stil / Gebäudetyp: moderner Neubau mit Walmdach
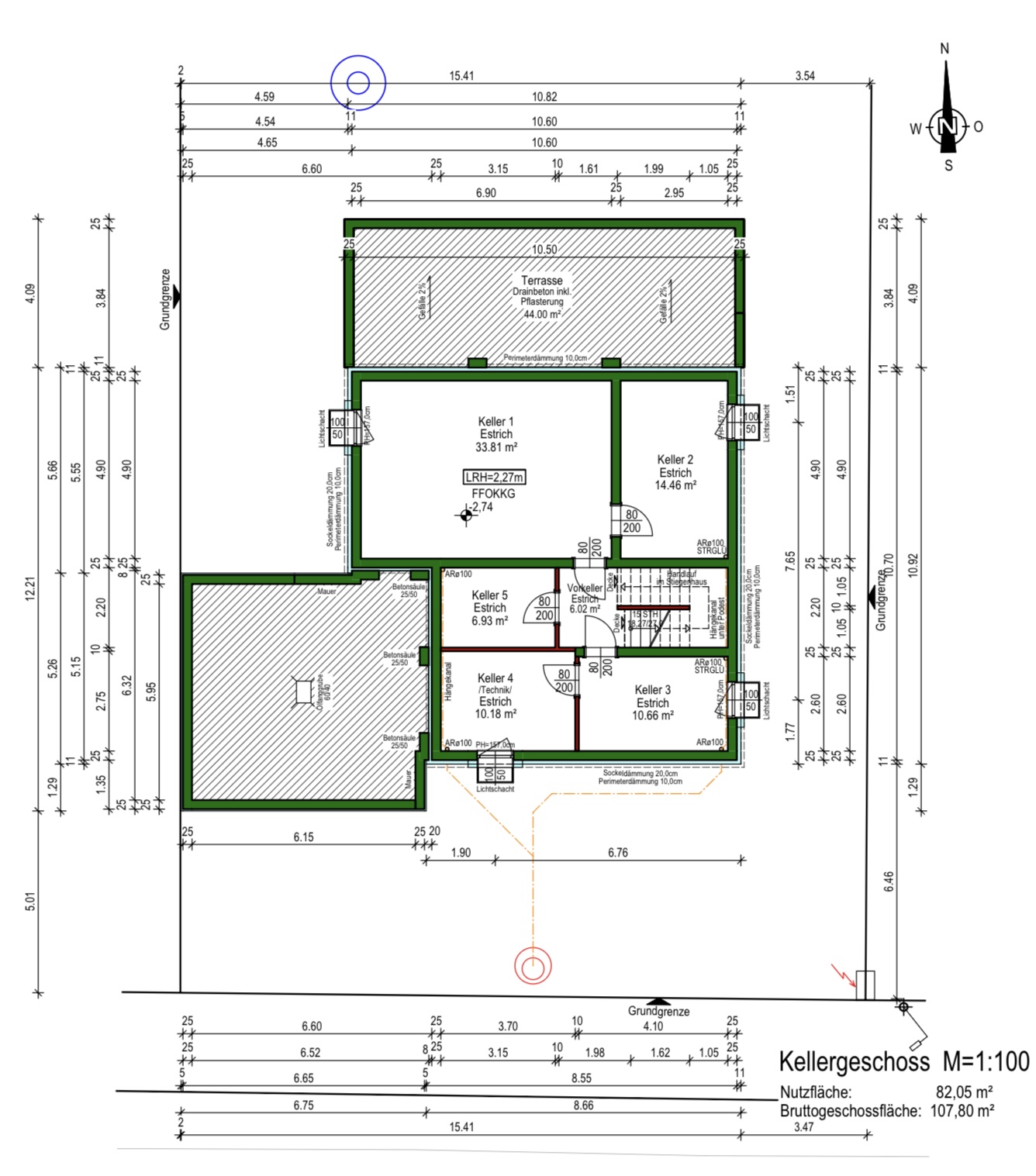
• Geschosse: Keller (Raumhöhe 2,27 m) + EG + OG
• Bewohner: 2 Erwachsene, 2 Kinder geplant
• Homeoffice/Büro erforderlich
• offene Architektur, moderne Bauweise
• offene Küche mit Kochinsel
• Dachterrasse
• Doppelgarage
Hausentwurf – Stand & Bauchgefühl
• Planung stammt von: Planer eines Bauunternehmens + Do-it-yourself Anpassungen
• Was gefällt besonders: Offener Wohn-/Essbereich
• Was gefällt weniger: Badsituation und Küchensituation
Kurz zu den Rahmenbedingungen / was geplant ist:
• Terrasse: Nordseite
• Wohnzimmerfenster: Westseite
• Dachterrasse: geplant, idealerweise mit Wasseranschluss
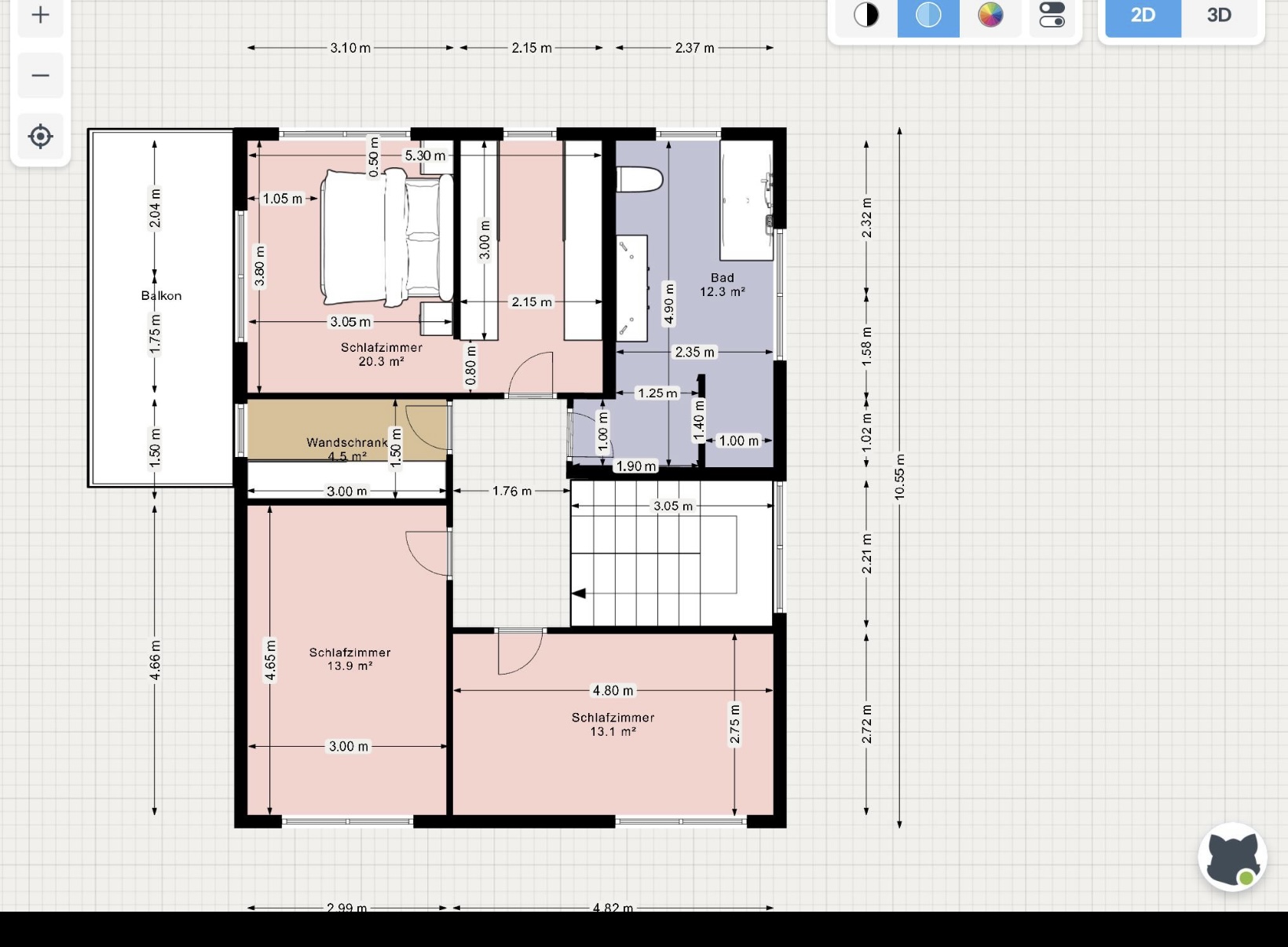
• OG aktuell: separates WC vorgesehen (Überlegung: streichen zugunsten Stauraum/Schrankraum + „Schacht“ in der Garderobe)
• EG aktuell: Speis geplant (unsicher, ob sinnvoll)
• EG Bad: ich habe 2–3 Grundrissvarianten (Frage: welche ist am funktionalsten?)
• Garderobennische Eingang: aktuell ca. 115 × 60 cm (Frage: reicht das oder vergrößern?)
• Küche: Maße bitte mit beurteilen; zudem bodentiefes Fenster geplant (Frage: gut so oder lieber Arbeitsplatte um die Ecke ziehen?)
Ich bin vor allem im OG unsicher und freue mich dort besonders über eure Erfahrungen – aber auch über Feedback zum EG, Küche und Licht/Ausrichtung. Danke euch schon jetzt!?
⸻
Worum geht’s mir besonders?
OG – hier wünsche ich mir am meisten Hilfe?
1) Raummaße & Proportionen
• Sind die Raummaße/Proportionen insgesamt stimmig und alltagstauglich?
• Gibt es ungünstige Verkehrswege oder „tote“ Flächen?
2) Extra-WC im OG: sinnvoll oder Fläche anders nutzen?
Im OG ist aktuell ein separates WC vorgesehen. Ich überlege, ob man darauf verzichten sollte, um Fläche besser zu nutzen.
Fragen dazu:
• Würdet ihr das separate WC oben beibehalten oder streichen?
• Falls streichen:
• eher Stauraum/Abstellraum oder Schrankraum (z. B. für Kinder/Stauraum)?
• lieber als Wandschrank-Lösung oder wirklich mit Wand abtrennen?
3) Dachterrasse & Wasseranschluss
• Wenn wir auf der Dachterrasse gerne einen Wasseranschluss möchten:
Wird das problematischer, wenn das WC oben wegfällt (Leitungsführung oÄ)?
4) Schlafzimmer
• Sind die Maße passend für Schlafzimmer inkl. Durchgang und Schrankbereich/Schrankraum?
5) Bad-Entscheidung OG (wenn WC wegkommt oder bleibt)
• Wenn WC wegkommt: Wie würdet ihr ein WC im großen Bad integrieren? Am liebsten etwas separiert. Generell die Gestaltung dieses Raumes bereitet mir noch etwas Kopfschmerzen.
• Wenn WC bleibt: Würdet ihr trotzdem ein WC ins große Bad integrieren oder lieber ein „Masterbad“ ohne Toilette und WC lieber nur separat?
⸻
EG – eure Meinung vor allem zur Speis & Küche
1) Speis: sinnvoll oder überflüssig?
• Findet ihr eine Speis im EG praktisch (Stauraum, Ordnung, Großeinkauf) oder eher Flächenfresser?
2) Küche / Fenster / Maße
• Gehen die Küchenmaße so gut auf (Arbeitswege, Stauraum, Alltagstauglichkeit, Insel/Zeile)? Die Arbeitszeile hat 3,60m an Länge, der Durchgang ist 1,30m breit und die Kochinsel hat die Maße 1m x 2,30m)
• Bodentiefes Fenster in der Küche: es ist ein bodentiefes Fenster in der Küche geplant:
• findet ihr das gut so (Licht/Optik) oder
• würdet ihr lieber die Arbeitsplatte um die Ecke ziehen (mehr Arbeitsfläche, weniger Fensterfläche)?
3) Garderobennische Eingang
• Aktuell geplant: 115 × 60 cm
• Reicht das für saisonale Jacken/Schuhe/Sitzbank/Spiegel oder würdet ihr vergrößern?
4) EG Bad – Varianten
• Ich habe zwei (bzw. drei) Bad-Grundrisse: Welcher ist funktionaler (Tür, Dusche, WC, Waschbecken, Bewegungsflächen)?
⸻
Was mir wichtig ist
• Alltagstauglichkeit (Stauraum, Wege, Türen, „wo landet Zeug“)
• Möglichst keine unnötigen Schächte durch verteilte Leitungen im ganzen Haus
• Gute Belichtung trotz Nordterrasse und Westfenster im Wohnzimmer
Ich bin gespannt auf eure Einschätzungen – vor allem zum OG, weil ich da unsicher bin. Danke euch! ????
Grundriss:







Bad EG:




ich plane aktuell unser Haus und würde mich sehr über Anregungen und Optimierungsideen freuen. Den Grundriss (EG + OG) lade ich gleich hoch.
bebauungsplan / Einschränkungen
• Grundstücksgröße: 625 m²
• Geschossflächenzahl: UG + EG + OG
• Stellplätze: 2
• Dachform: Walmdach
• Ausrichtung: Straße im Süden, Terrasse im Norden
Anforderungen der Bauherren
• Stil / Gebäudetyp: moderner Neubau mit Walmdach
• Geschosse: Keller (Raumhöhe 2,27 m) + EG + OG
• Bewohner: 2 Erwachsene, 2 Kinder geplant
• Homeoffice/Büro erforderlich
• offene Architektur, moderne Bauweise
• offene Küche mit Kochinsel
• Dachterrasse
• Doppelgarage
Hausentwurf – Stand & Bauchgefühl
• Planung stammt von: Planer eines Bauunternehmens + Do-it-yourself Anpassungen
• Was gefällt besonders: Offener Wohn-/Essbereich
• Was gefällt weniger: Badsituation und Küchensituation
Kurz zu den Rahmenbedingungen / was geplant ist:
• Terrasse: Nordseite
• Wohnzimmerfenster: Westseite
• Dachterrasse: geplant, idealerweise mit Wasseranschluss
• OG aktuell: separates WC vorgesehen (Überlegung: streichen zugunsten Stauraum/Schrankraum + „Schacht“ in der Garderobe)
• EG aktuell: Speis geplant (unsicher, ob sinnvoll)
• EG Bad: ich habe 2–3 Grundrissvarianten (Frage: welche ist am funktionalsten?)
• Garderobennische Eingang: aktuell ca. 115 × 60 cm (Frage: reicht das oder vergrößern?)
• Küche: Maße bitte mit beurteilen; zudem bodentiefes Fenster geplant (Frage: gut so oder lieber Arbeitsplatte um die Ecke ziehen?)
Ich bin vor allem im OG unsicher und freue mich dort besonders über eure Erfahrungen – aber auch über Feedback zum EG, Küche und Licht/Ausrichtung. Danke euch schon jetzt!?
⸻
Worum geht’s mir besonders?
OG – hier wünsche ich mir am meisten Hilfe?
1) Raummaße & Proportionen
• Sind die Raummaße/Proportionen insgesamt stimmig und alltagstauglich?
• Gibt es ungünstige Verkehrswege oder „tote“ Flächen?
2) Extra-WC im OG: sinnvoll oder Fläche anders nutzen?
Im OG ist aktuell ein separates WC vorgesehen. Ich überlege, ob man darauf verzichten sollte, um Fläche besser zu nutzen.
Fragen dazu:
• Würdet ihr das separate WC oben beibehalten oder streichen?
• Falls streichen:
• eher Stauraum/Abstellraum oder Schrankraum (z. B. für Kinder/Stauraum)?
• lieber als Wandschrank-Lösung oder wirklich mit Wand abtrennen?
3) Dachterrasse & Wasseranschluss
• Wenn wir auf der Dachterrasse gerne einen Wasseranschluss möchten:
Wird das problematischer, wenn das WC oben wegfällt (Leitungsführung oÄ)?
4) Schlafzimmer
• Sind die Maße passend für Schlafzimmer inkl. Durchgang und Schrankbereich/Schrankraum?
5) Bad-Entscheidung OG (wenn WC wegkommt oder bleibt)
• Wenn WC wegkommt: Wie würdet ihr ein WC im großen Bad integrieren? Am liebsten etwas separiert. Generell die Gestaltung dieses Raumes bereitet mir noch etwas Kopfschmerzen.
• Wenn WC bleibt: Würdet ihr trotzdem ein WC ins große Bad integrieren oder lieber ein „Masterbad“ ohne Toilette und WC lieber nur separat?
⸻
EG – eure Meinung vor allem zur Speis & Küche
1) Speis: sinnvoll oder überflüssig?
• Findet ihr eine Speis im EG praktisch (Stauraum, Ordnung, Großeinkauf) oder eher Flächenfresser?
2) Küche / Fenster / Maße
• Gehen die Küchenmaße so gut auf (Arbeitswege, Stauraum, Alltagstauglichkeit, Insel/Zeile)? Die Arbeitszeile hat 3,60m an Länge, der Durchgang ist 1,30m breit und die Kochinsel hat die Maße 1m x 2,30m)
• Bodentiefes Fenster in der Küche: es ist ein bodentiefes Fenster in der Küche geplant:
• findet ihr das gut so (Licht/Optik) oder
• würdet ihr lieber die Arbeitsplatte um die Ecke ziehen (mehr Arbeitsfläche, weniger Fensterfläche)?
3) Garderobennische Eingang
• Aktuell geplant: 115 × 60 cm
• Reicht das für saisonale Jacken/Schuhe/Sitzbank/Spiegel oder würdet ihr vergrößern?
4) EG Bad – Varianten
• Ich habe zwei (bzw. drei) Bad-Grundrisse: Welcher ist funktionaler (Tür, Dusche, WC, Waschbecken, Bewegungsflächen)?
⸻
Was mir wichtig ist
• Alltagstauglichkeit (Stauraum, Wege, Türen, „wo landet Zeug“)
• Möglichst keine unnötigen Schächte durch verteilte Leitungen im ganzen Haus
• Gute Belichtung trotz Nordterrasse und Westfenster im Wohnzimmer
Ich bin gespannt auf eure Einschätzungen – vor allem zum OG, weil ich da unsicher bin. Danke euch! ????
Grundriss:
Bad EG:
Anzeige
Hallo NMarieKH,
schau mal hier: Grundriss-Feedback gesucht: OG unsicher (Extra-WC ja/nein?), Speis im EG, Küche/Fenster + Bad-Layouts. Da wird jeder fündig!
schau mal hier: Grundriss-Feedback gesucht: OG unsicher (Extra-WC ja/nein?), Speis im EG, Küche/Fenster + Bad-Layouts. Da wird jeder fündig!
Hallo liebe Houzz-Community,
ich plane aktuell unser Haus und würde mich sehr über Anregungen und Optimierungsideen freuen. Den Grundriss (EG + OG) lade ich gleich hoch.
1) Raummaße & Proportionen • Sind die Raummaße/Proportionen insgesamt stimmig und alltagstauglich? [...]
• Wenn wir auf der Dachterrasse gerne einen Wasseranschluss möchten: Wird das problematischer, wenn das WC oben wegfällt (Leitungsführung oÄ)?Raummaße: wenn ich recht erinnere, geht es um einen bereits verbindlich gewordenen Bauvertrag, an dem eigentlich nur noch Maueröffnungen und Wände formatgleich verschoben werden können. Letzteres dürfte sich auf nichttragende Wände beschränken, denn sonst würde die Statik neu gerechnet werden müssen. Das läßt das Veränderungspotential der Raummaße enorm schrumpfen, egal wie ändernswert man Proportionen fände.
Wasseranschluss auf der Dachterrasse: der Steigleitung dorthin ist es egal, ob sie mit oder ohne Entnahmestelle für ein WC durchläuft.
https://www.instagram.com/11antgmxde/
https://www.linkedin.com/company/bauen-jetzt/
Ähnliche Themen