ᐅ Schmale Doppelhaushälfte - FD - 2 Vollgeschosse und Staffelgeschoss [NRW]
Erstellt am: 12.11.25 15:54
H
Horst Peter12.11.25 15:54Hallo zusammen,
wir haben die Möglichkeit eine Doppelhaushälfte (In enger Abstimmung mit den zukünftigen Nachbarn) zu bauen. Da das Grundstück sehr schmal und auch recht klein ist, würde ich mich über euren Input zum aktuell geplanten Grundriss freuen. Es handelt sich dabei um eigene von mir angefertigte Skizzen.
Folgende Punkte wären mir besonders wichtig:
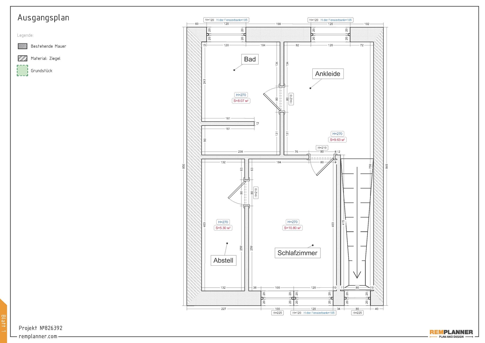
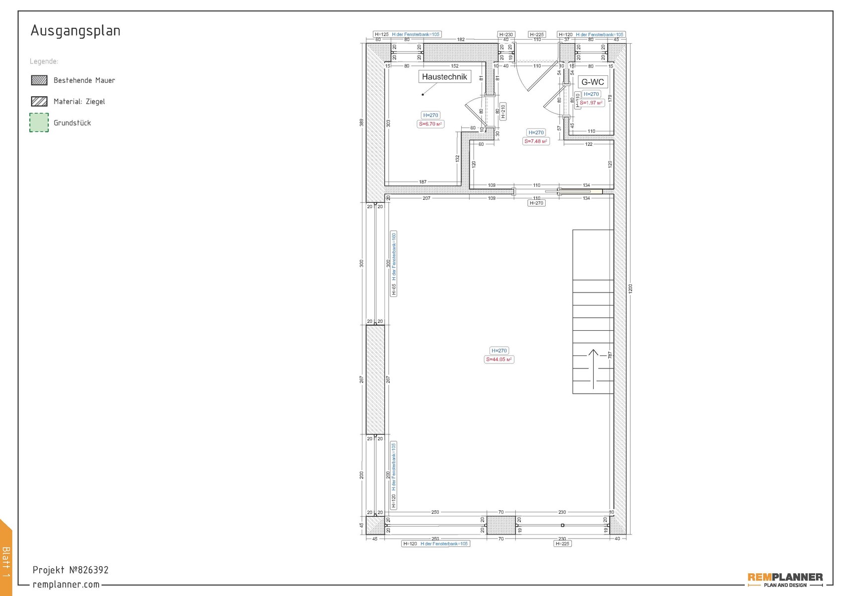
Größe des Grundstücks: 234 qm (24,5 x 9,35 x 25 x 9,35)
Größe des Hauses: 6,35 * 12 m
Hang: Nein
Grundflächenzahl: 0,4
Baufenster, Baulinie und -grenze: 14 m lang – Durch Abstand zum Nachbarn nur 6,35 m in der Breite, 5 m Vorgarten verpflichtend
Anzahl Stellplatz: 2
Dachform: Flachdach
Ausrichtung: Ost-West
Maximale Höhen/Begrenzungen: 10 Meter
Begrünung des Daches
Anforderungen der Bauherren
Keller, Geschosse: Kein Keller wegen hohem Grundwasserspiegel und Kosten, 2 Vollgeschosse + Staffel
Anzahl der Personen, Alter: 4 Personen davon 2 Kinder (1 und 3)
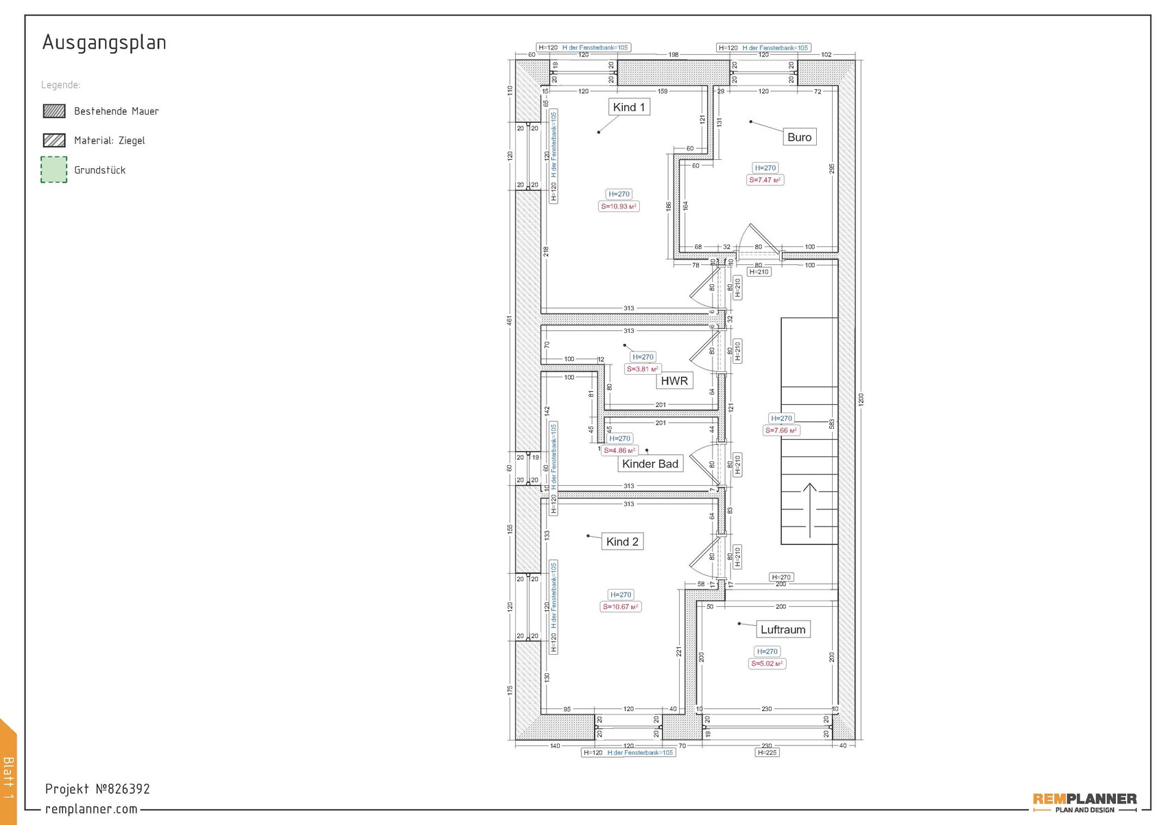
Büro: ja
offene Architektur
moderne Bauweise
offene Küche inkl. Kochinsel
Kamin: Nein
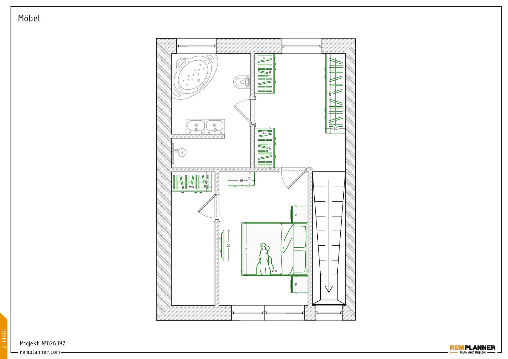
Balkon, Dachterrasse: Dachterrasse an dem Staffelgeschoss
Carport: nicht unbedingt notwendig und daher lieber die maximale Breite für das Haus nutzen
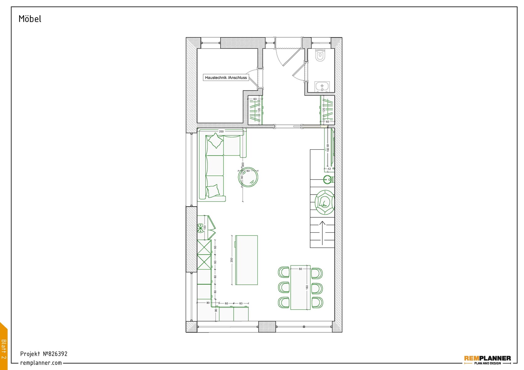
Besonderheiten: Offene gerade Treppe, Luftraum über Essbereich
Hausentwurf
Persönliches Preislimit fürs Haus, inkl. Ausstattung: 500.000€
favorisierte Heiztechnik: Pflicht der Abnahme von Kalt-Nahwärme mit innenliegender WP (Wird von den Stadtwerken gestellt)
Wenn Ihr verzichten müsst, auf welche Details/Ausbauten
-könnt Ihr verzichten: offene Treppe ist nicht notwendig, Ankleide könnte im Schlafzimmer integriert werden
-könnt Ihr nicht verzichten: Luftraum (über Esseplatz) und groß Küche
Vielen Dank für euren Support.
PS: den Bebauungsplan konnte ich hier leider nicht verlinken. Das Grundstück gehört zum Neubaugebiet "Telgte Süd" und liegt an der Straße "Schmale Horst"








wir haben die Möglichkeit eine Doppelhaushälfte (In enger Abstimmung mit den zukünftigen Nachbarn) zu bauen. Da das Grundstück sehr schmal und auch recht klein ist, würde ich mich über euren Input zum aktuell geplanten Grundriss freuen. Es handelt sich dabei um eigene von mir angefertigte Skizzen.
Folgende Punkte wären mir besonders wichtig:
- Wie kann noch Anstellfläche gewonnen werden?
- Kann der Eingangsbereich cleverer geplant werden?
- Wie könnte ein Entwurf mit geschlossener Treppe und trotzdem Luftraum aussehen?
- Alles was euch sonst so auffällt
Größe des Grundstücks: 234 qm (24,5 x 9,35 x 25 x 9,35)
Größe des Hauses: 6,35 * 12 m
Hang: Nein
Grundflächenzahl: 0,4
Baufenster, Baulinie und -grenze: 14 m lang – Durch Abstand zum Nachbarn nur 6,35 m in der Breite, 5 m Vorgarten verpflichtend
Anzahl Stellplatz: 2
Dachform: Flachdach
Ausrichtung: Ost-West
Maximale Höhen/Begrenzungen: 10 Meter
Begrünung des Daches
Anforderungen der Bauherren
Keller, Geschosse: Kein Keller wegen hohem Grundwasserspiegel und Kosten, 2 Vollgeschosse + Staffel
Anzahl der Personen, Alter: 4 Personen davon 2 Kinder (1 und 3)
Büro: ja
offene Architektur
moderne Bauweise
offene Küche inkl. Kochinsel
Kamin: Nein
Balkon, Dachterrasse: Dachterrasse an dem Staffelgeschoss
Carport: nicht unbedingt notwendig und daher lieber die maximale Breite für das Haus nutzen
Besonderheiten: Offene gerade Treppe, Luftraum über Essbereich
Hausentwurf
Persönliches Preislimit fürs Haus, inkl. Ausstattung: 500.000€
favorisierte Heiztechnik: Pflicht der Abnahme von Kalt-Nahwärme mit innenliegender WP (Wird von den Stadtwerken gestellt)
Wenn Ihr verzichten müsst, auf welche Details/Ausbauten
-könnt Ihr verzichten: offene Treppe ist nicht notwendig, Ankleide könnte im Schlafzimmer integriert werden
-könnt Ihr nicht verzichten: Luftraum (über Esseplatz) und groß Küche
Vielen Dank für euren Support.
PS: den Bebauungsplan konnte ich hier leider nicht verlinken. Das Grundstück gehört zum Neubaugebiet "Telgte Süd" und liegt an der Straße "Schmale Horst"
Horst Peter schrieb:
wir haben die Möglichkeit eine Doppelhaushälfte (In enger Abstimmung mit den zukünftigen Nachbarn) zu bauen. Da das Grundstück sehr schmal und auch recht klein ist, würde ich mich über euren Input zum aktuell geplanten Grundriss freuen. Es handelt sich dabei um eigene von mir angefertigte Skizzen.
Folgende Punkte wären mir besonders wichtig:Mir wäre eher lieb, Du führtest https://www.hausbau-forum.de/threads/grundstueck-beratung-fuer-doppelhaushaelfte-237qm.49555/page-6 fort, anstatt dem Kind einen neuen Namen zu geben !https://www.instagram.com/11antgmxde/
https://www.linkedin.com/company/bauen-jetzt/
H
Horst Peter13.11.25 09:09Dann bitte hier das Thema löschen. Als User habe ich keine Berechtigungen dafür.
Wir sind auch nur User.
Setze in Deinem Ursprungspost den Link zu diesem Thread, dann ist eine Verbindung da.
Mir ist es egal, in welchem ich schreibe.
Zum Entwurf:
6 Meter Breite ist erst einmal nicht schmal, sondern für Doppelhäuser Standard. Reihenhäuser sind meist noch schmaler. Das erklärt sich aber auch mit den Begriffen Doppelhaus oder Reihenhaus.
Es gibt auch genug Ideen zu diesen oder ähnlichen Maßen im Netz - es sind schon zig Häuser in 2-geschossiger Bauweise mit Staffel errichtet worden, die sehr gut ausgeklügelt sind, dass sich dort eine 4-köpfige Familie wohl fühlen kann.
Die Grundrisse findet man, wenn man nach projektierten Doppel- oder Reihenhäuser mut Staffelgeschoss sucht. Irgendwo findet man immer eine Siedlung, die sich dort vorstellt.
Oder mal "Deutsche Reihenhaus AG" googlen, die haben ja auch immer laufende Projekte.
Zeichne Dir am besten mal auf nem Karopapier und den Buntstiften Deiner Kinder das Grundstück auf mit dem Baukörper. Vielleicht braucht Ihr keinen Carport, aber die Fahrräder wollen sicherlich auch trocken stehen. Deshalb wäre ggf ein Schuppen oder so sehr hilfreich. Den also auch einzeichnen, damit man ungefähr sieht, was bleibt und wie man auf dem Grundstück mit Haus leben wird.
Grundsätzlich möchte man ja ein Heim für seine Familie bauen, wo sich jeder drin wohl findet, entweder gemeinschaftlich oder jeder auch separat sich individuell zurückziehen kann. Kinder werden größer und entwickeln ihre eigene Persönlichkeit.
Hier ist das sehr schlecht möglich: Der Luftraum nimmt nicht nur nötige Fläche, sondern sorgt mit seiner Akustik nach oben dafür, dass die Geräusche vom EG sich laut im OG verteilen.
Die schlecht positionierte Treppe nimmt dem Essbereich Möglichkeiten zu sitzen. Der Tisch steht quasi vor der Terrassentür, die nicht mehr ungehindert zu betreten wäre. Wenn man am Tisch sitzt, hat man kaum Möglichkeiten, nach oben zu gelangen.
Wenn man TV schauen möchte, läuft jeder ins Bild. Die Treppe gibt Unruhe.
Spielt mal durch wie die Tagesabläufe hier sein würden: alltags, Wochenende, Weihnachten und wenn die Kinder älter sind. Fängt an mit nach Hause kommen, Fahrrad abstellen, Schuhe aus, Einkäufe wegstellen, auf die Terrasse ne Blume giessen, Essenkochen, Partner schaut Nachrichten, eine Freundin kommt zu Besuch usw.
Ich würde die Treppe vom Flur aus erreichbar machen, dann hat man auch mal im Allraum seine Ruhe, wenn die Kinder Freunde mit ins Haus bringen.
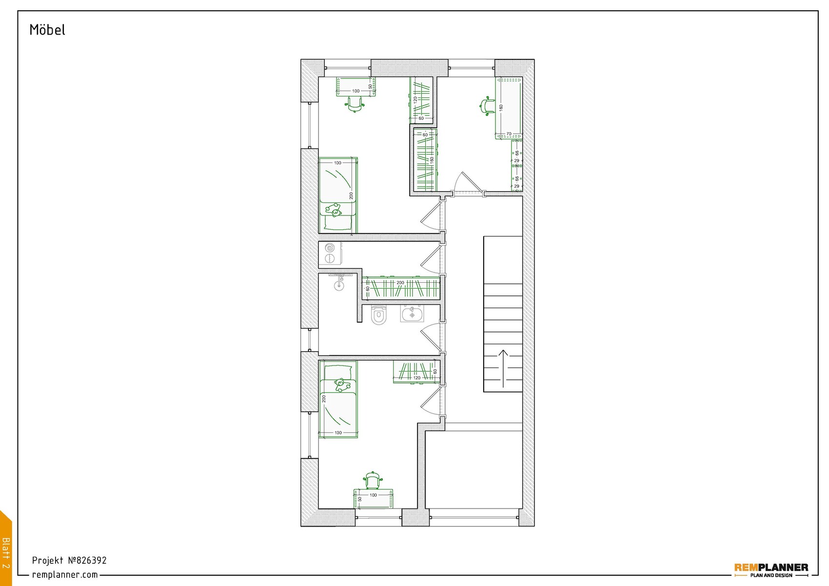
Die Toiletten/Bäder sollten sich schon mehr oder weniger übereinander befinden. Schließlich muss jede Toilette nach unten abgeführt werden mit einem Abwasserrohr, das kann man klugerweise bündeln.
Die Idee ist gut, im Staffel die Elternebene unterzubringen. Da bietet es sich allerdings an, nur ein kleines Dusch-Bad zu generieren, was den Eltern reichen sollte und im OG ein Familienbad mit Wanne einzuplanen. Im Elternreich könnte auch das Arbeitszimmer Platz finden.
Ankleide würde ich keinen zusätzlichen Raum gönnen, da Ihr noch weitere Abstellfläche für Koffer und co. generieren solltet.
Setze in Deinem Ursprungspost den Link zu diesem Thread, dann ist eine Verbindung da.
Mir ist es egal, in welchem ich schreibe.
Zum Entwurf:
6 Meter Breite ist erst einmal nicht schmal, sondern für Doppelhäuser Standard. Reihenhäuser sind meist noch schmaler. Das erklärt sich aber auch mit den Begriffen Doppelhaus oder Reihenhaus.
Es gibt auch genug Ideen zu diesen oder ähnlichen Maßen im Netz - es sind schon zig Häuser in 2-geschossiger Bauweise mit Staffel errichtet worden, die sehr gut ausgeklügelt sind, dass sich dort eine 4-köpfige Familie wohl fühlen kann.
Die Grundrisse findet man, wenn man nach projektierten Doppel- oder Reihenhäuser mut Staffelgeschoss sucht. Irgendwo findet man immer eine Siedlung, die sich dort vorstellt.
Oder mal "Deutsche Reihenhaus AG" googlen, die haben ja auch immer laufende Projekte.
Horst Peter schrieb:
Carport: nicht unbedingt notwendig und daher lieber die maximale Breite für das Haus nutzen
Zeichne Dir am besten mal auf nem Karopapier und den Buntstiften Deiner Kinder das Grundstück auf mit dem Baukörper. Vielleicht braucht Ihr keinen Carport, aber die Fahrräder wollen sicherlich auch trocken stehen. Deshalb wäre ggf ein Schuppen oder so sehr hilfreich. Den also auch einzeichnen, damit man ungefähr sieht, was bleibt und wie man auf dem Grundstück mit Haus leben wird.
Horst Peter schrieb:Eine geschlossene Treppe ist aber etwas anderes, als was Du gezeichnet hast. Sie steht ja offen im Wohnraum..
Wie könnte ein Entwurf mit geschlossener Treppe und trotzdem Luftraum aussehen?
Horst Peter schrieb:
-könnt Ihr nicht verzichten: Luftraum (über Esseplatz) und groß Küche
Grundsätzlich möchte man ja ein Heim für seine Familie bauen, wo sich jeder drin wohl findet, entweder gemeinschaftlich oder jeder auch separat sich individuell zurückziehen kann. Kinder werden größer und entwickeln ihre eigene Persönlichkeit.
Hier ist das sehr schlecht möglich: Der Luftraum nimmt nicht nur nötige Fläche, sondern sorgt mit seiner Akustik nach oben dafür, dass die Geräusche vom EG sich laut im OG verteilen.
Die schlecht positionierte Treppe nimmt dem Essbereich Möglichkeiten zu sitzen. Der Tisch steht quasi vor der Terrassentür, die nicht mehr ungehindert zu betreten wäre. Wenn man am Tisch sitzt, hat man kaum Möglichkeiten, nach oben zu gelangen.
Wenn man TV schauen möchte, läuft jeder ins Bild. Die Treppe gibt Unruhe.
Spielt mal durch wie die Tagesabläufe hier sein würden: alltags, Wochenende, Weihnachten und wenn die Kinder älter sind. Fängt an mit nach Hause kommen, Fahrrad abstellen, Schuhe aus, Einkäufe wegstellen, auf die Terrasse ne Blume giessen, Essenkochen, Partner schaut Nachrichten, eine Freundin kommt zu Besuch usw.
Ich würde die Treppe vom Flur aus erreichbar machen, dann hat man auch mal im Allraum seine Ruhe, wenn die Kinder Freunde mit ins Haus bringen.
Die Toiletten/Bäder sollten sich schon mehr oder weniger übereinander befinden. Schließlich muss jede Toilette nach unten abgeführt werden mit einem Abwasserrohr, das kann man klugerweise bündeln.
Die Idee ist gut, im Staffel die Elternebene unterzubringen. Da bietet es sich allerdings an, nur ein kleines Dusch-Bad zu generieren, was den Eltern reichen sollte und im OG ein Familienbad mit Wanne einzuplanen. Im Elternreich könnte auch das Arbeitszimmer Platz finden.
Ankleide würde ich keinen zusätzlichen Raum gönnen, da Ihr noch weitere Abstellfläche für Koffer und co. generieren solltet.
H
Horst Peter13.11.25 12:03ypg schrieb:
Zum Entwurf:
6 Meter Breite ist erst einmal nicht schmal, sondern für Doppelhäuser Standard. Reihenhäuser sind meist noch schmaler. Das erklärt sich aber auch mit den Begriffen Doppelhaus oder Reihenhaus.
Es gibt auch genug Ideen zu diesen oder ähnlichen Maßen im Netz - es sind schon zig Häuser in 2-geschossiger Bauweise mit Staffel errichtet worden, die sehr gut ausgeklügelt sind, dass sich dort eine 4-köpfige Familie wohl fühlen kann.
Danke für den Hinweis. Bin bereits zahlreiche Mustergrundrisse durchgegangen. Aber das ist ja genau der Grund weshalb ich hier im Forum schreibe, die Mustergrundrisse haben uns bisher nicht vollends überzeugt.
ypg schrieb:
Eine geschlossene Treppe ist aber etwas anderes, als was Du gezeichnet hast. Sie steht ja offen im Wohnraum..
Exakt. In meinem Grundriss ist eine offene Treppe geplant unter der der Hund sein Körbchen haben soll. Ziel war es dadurch mehr Platz im Wohn-Ess-Kochbereich zu gewinnen. Möglichkeiten mit einem Abstellraum unter der Treppe habe ich noch keinen guten gesehen, und deshalb hier gefragt.
ypg schrieb:
Grundsätzlich möchte man ja ein Heim für seine Familie bauen, wo sich jeder drin wohl findet, entweder gemeinschaftlich oder jeder auch separat sich individuell zurückziehen kann. Kinder werden größer und entwickeln ihre eigene Persönlichkeit.
Hier ist das sehr schlecht möglich: Der Luftraum nimmt nicht nur nötige Fläche, sondern sorgt mit seiner Akustik nach oben dafür, dass die Geräusche vom EG sich laut im OG verteilen.Die Nachteile des Luftraums sind mir / uns bewusst. Ich habe selbst schon in Wohnungen mit Luftraum gewohnt und das ganze Thema ist natürlich sehr subjektiv. Das schöne Raumgefühl, dass ein Luftraum bietet, überwiegt für uns die Nachteile der Akustik und auch der Gerüche.
ypg schrieb:
Die schlecht positionierte Treppe nimmt dem Essbereich Möglichkeiten zu sitzen. Der Tisch steht quasi vor der Terrassentür, die nicht mehr ungehindert zu betreten wäre. Wenn man am Tisch sitzt, hat man kaum Möglichkeiten, nach oben zu gelangen.
Da hast du vollkommen rechte, damit bin ich bisher auch absolut nicht zufrieden. Die Treppe muss irgendwie anders gebaut werden, ohne dabei jedoch den Luftraum entfernen zu müssen.
ypg schrieb:
Ich würde die Treppe vom Flur aus erreichbar machen, dann hat man auch mal im Allraum seine Ruhe, wenn die Kinder Freunde mit ins Haus bringen.Das mit der Ruhe wird durch den Luftraum obsolet. Die Treppe ist im Allraum geplant um diesen größer zu gestalten, bzw. ist mir keine andere Stelle für die Treppe eingefallen um einen Luftraum zu ermöglich.
ypg schrieb:
Die Toiletten/Bäder sollten sich schon mehr oder weniger übereinander befinden. Schließlich muss jede Toilette nach unten abgeführt werden mit einem Abwasserrohr, das kann man klugerweise bündeln.
Das ist nochmal ein guter Hinweis. Danke
ypg schrieb:
Ankleide würde ich keinen zusätzlichen Raum gönnen, da Ihr noch weitere Abstellfläche für Koffer und co. generieren solltet.Die würde ich optimaler Weise tatsächlich gerne im Elternschlafzimmer integrieren, da fehlte mir aber noch eine gute Idee die nicht nur maximal Fläche, bei geringem Platz für Schränke, kostet.
Also es geht mir ja aktuell genau darum keinen Standardgrundriss zu realisieren sondern ein Doppelhaushälfte mit Luftraum zu ermöglichen. Es wird schwierig und man wird einige Kompromisse eingehen müssen, aber dafür Suche ich ja den Support hier im Forum. Zum Architekten werden wir sicherlich auch noch gehen, aber erst wenn wir wissen, was wir uns vorstellen könne, bzw. was realistisch sein könnte.
Danke dir :-)
N
nordanney13.11.25 12:34Horst Peter schrieb:
Also es geht mir ja aktuell genau darum keinen Standardgrundriss zu realisieren sondern ein Doppelhaushälfte mit Luftraum zu ermöglichen.Oh, dazu gibt es einen schönen Parallelthread. Der TE wirft jetzt allerdings seine Planung komplett um, und plant nicht mehr sein Haus (auch eine Doppelhaushälfte) rund um einen Luftraum, sondern nach seinen wohnlichen/persönlichen/familiären Bedürfnissen. Wenn dabei ein Luftraum rauspringt, ist es toll. Aber andersrum wird es eher zur Katastrophe. Du solltest Deine Vorgehensweise überdenken. Erst der Nutzen bzw. die tatsächlichen Bedürfnisse verarbeiten. Und nicht erst einen Luftraum setzen und Dich dann über den Grundriss ärgern.
Ähnliche Themen