ᐅ Planung Einfamilienhaus, 4-köpfige Familie Westmünsterland, Erstentwurf Architekt
Erstellt am: 20.10.25 12:17
-
-Malte-ypg schrieb:
Den Lichtschalter neben der Treppe.
Ob Vor- oder Rücksprung. Er ist minimal und kaum negativ wahrnehmbar.Wird er neben der Treppe sein oder im Flur? Ich denke, dass es dem Flur gut tun wird, mehr Raum zu haben, während die Räume an sich nicht leiden.
Ich hätte folgende Vorteile gesehen:
Lichtschalter neben Treppe ist natürlich ein Thema, bei dem ich aber noch gar nicht weiß, ob wir den dort benötigen (Nutzung Präsenzmelder). Ich kann aber sehr gut nachvollziehen, dass die aktuelle Planung den Flur etwas großzügiger gestaltet und wir vielleicht nicht auch hier noch auf den letzten Zentimeter Effizienz trimmen sollten 😉
- Kind 2: keinen Versatz mehr in Wand Richtung Treppe, der bspw. das Stellen von Regalen/Schränken an der Wand schwer macht
- Eltern: Tür könnte durch die gewonnenen Zentimeter definitiv vor dem Kleiderschrank aufschlagen. Aktuell klappt das laut Zeichnung auch, aber da Rohbaumaße bin ich da skeptisch.
Lichtschalter neben Treppe ist natürlich ein Thema, bei dem ich aber noch gar nicht weiß, ob wir den dort benötigen (Nutzung Präsenzmelder). Ich kann aber sehr gut nachvollziehen, dass die aktuelle Planung den Flur etwas großzügiger gestaltet und wir vielleicht nicht auch hier noch auf den letzten Zentimeter Effizienz trimmen sollten 😉
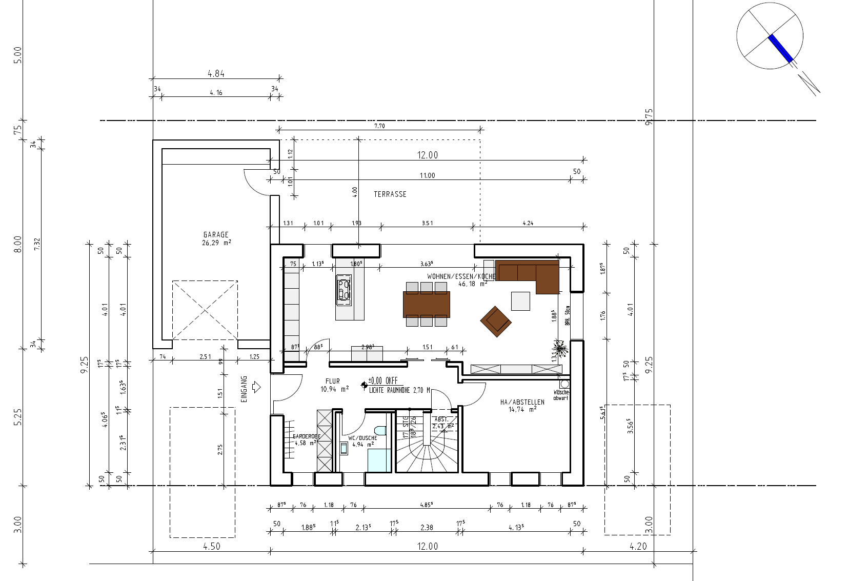
Ich hab nochmal eine weitere Frage zur geplanten Schiebetür zwischen Flur und Allraum.
In unserem jetzigen Haus haben wir keine Möglichkeit das Wohn-/Esszimmer zum Flur hin zu schließen und das stört uns abends doch regelmäßig. Nichtstdestrotrotz soll zukünftig die Öffnung vom Allraum zum Flur großzügig gestaltet sein und i.d.R. offen stehen und dann nur bei Bedarf am Abend geschlossen werden. Bisher ist hier eine Öffnung von 1,51m eingezeichnet, wobei wir noch nicht klar darüber sind, wie die Tür dafür aussehen kann/soll. Damit die Flügel nicht im Weg stehen, kommt aus unserer Sicht eigentlich nur eine Schiebetür in Frage. Eine zweiflüglige Tür passt so wie eingezeichnet letztlich gar nicht, weil der Flügel Richtung Wohnbereich zu lang für die Wand wäre.
Nun gibt es ja verschiedenste Möglichkeiten das ganze zu gestalten und irgendwie finden wir keinen guten Überblick. Ein Verlauf der Tür in der Wand wird aufgrund tragender Wand vermutlich ausgeschlossen sein und auch eine Trockenbau-Vorwandtasche wird bei der Wandgestaltung nicht in Frage kommen. Also vermutlich Standard mit Schiene im Allraum laufend. Die Tür selber kann ja auch sehr unterschiedlich gestaltet sein (zweiflüglig; ein Flügel in Verbindung mit Festelement etc.).
Ich denke wir müssen die Öffnung definitiv verkleinern, aber welches Maß ist sinnvoll? Ich habe irgendwie nicht rausbekommen, ob es so wirklich Standardmaße gibt oder eh alles mehr-oder-weniger Maßanfertigungen sind. Aktuell habe ich überlegt, ob das Maß auf 1,26m verkleinert sinnvoll wäre. Optimal wäre es natürlich, wenn wir bei Bedarf die Möglichkeit hätten etwas preiswertes von der Stange zu verbauen, wenn das Budget später nicht für die angefertigte Traum-Lofttür reicht.

In unserem jetzigen Haus haben wir keine Möglichkeit das Wohn-/Esszimmer zum Flur hin zu schließen und das stört uns abends doch regelmäßig. Nichtstdestrotrotz soll zukünftig die Öffnung vom Allraum zum Flur großzügig gestaltet sein und i.d.R. offen stehen und dann nur bei Bedarf am Abend geschlossen werden. Bisher ist hier eine Öffnung von 1,51m eingezeichnet, wobei wir noch nicht klar darüber sind, wie die Tür dafür aussehen kann/soll. Damit die Flügel nicht im Weg stehen, kommt aus unserer Sicht eigentlich nur eine Schiebetür in Frage. Eine zweiflüglige Tür passt so wie eingezeichnet letztlich gar nicht, weil der Flügel Richtung Wohnbereich zu lang für die Wand wäre.
Nun gibt es ja verschiedenste Möglichkeiten das ganze zu gestalten und irgendwie finden wir keinen guten Überblick. Ein Verlauf der Tür in der Wand wird aufgrund tragender Wand vermutlich ausgeschlossen sein und auch eine Trockenbau-Vorwandtasche wird bei der Wandgestaltung nicht in Frage kommen. Also vermutlich Standard mit Schiene im Allraum laufend. Die Tür selber kann ja auch sehr unterschiedlich gestaltet sein (zweiflüglig; ein Flügel in Verbindung mit Festelement etc.).
Ich denke wir müssen die Öffnung definitiv verkleinern, aber welches Maß ist sinnvoll? Ich habe irgendwie nicht rausbekommen, ob es so wirklich Standardmaße gibt oder eh alles mehr-oder-weniger Maßanfertigungen sind. Aktuell habe ich überlegt, ob das Maß auf 1,26m verkleinert sinnvoll wäre. Optimal wäre es natürlich, wenn wir bei Bedarf die Möglichkeit hätten etwas preiswertes von der Stange zu verbauen, wenn das Budget später nicht für die angefertigte Traum-Lofttür reicht.
Ich sehe weder ein Problem noch einen Änderungsbedarf. Lasse die Öffnung auf 151, verwende einen Hauptflügel in Form einer handelsüblichen 88.5er Tür und lasse den in einen Gelegenheitsflügel einschlagen, der verglast auch den Flur erhellt. Der Lösung tut es nicht weh, daß es eigentlich garkein Problem gab.
https://www.instagram.com/11antgmxde/
https://www.linkedin.com/company/bauen-jetzt/
https://www.instagram.com/11antgmxde/
https://www.linkedin.com/company/bauen-jetzt/
Okay, hier hatte ich offensichtlich ein Brett vorm Kopf. Unsere Innentüren im Haus sind ausnahmslos alle direkt neben einer Wand und so war mir gar nicht mehr bewusst, dass ich normale Anschlagstüren i.d.R. deutlich weiter als 90° öffnen kann. Das macht es natürlich deutlich einfacher und wir sind gar nicht auf eine Schiebetür angewiesen. Dann lassen wir die 151cm Rohbau-Öffnungsmaß bestehen und können dann je nach Budget später schauen, was für eine Variante mit festem Element in Frage kommt.
Ähnliche Themen