Hi Zusammen,
meine Frau und ich stehen kurz vor der Fertigstellung unserer Planung welche wir mit einem Architekten bestreiten. Das Ergebnis teilt sich in den unten angehängten Bildern dar.
Da sich hier geballte Erfahrungen von Bauherren tummelt würden wir uns sehr freuen Meinungen jeglicher Form dazu zu hören.
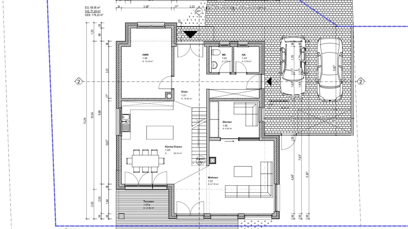
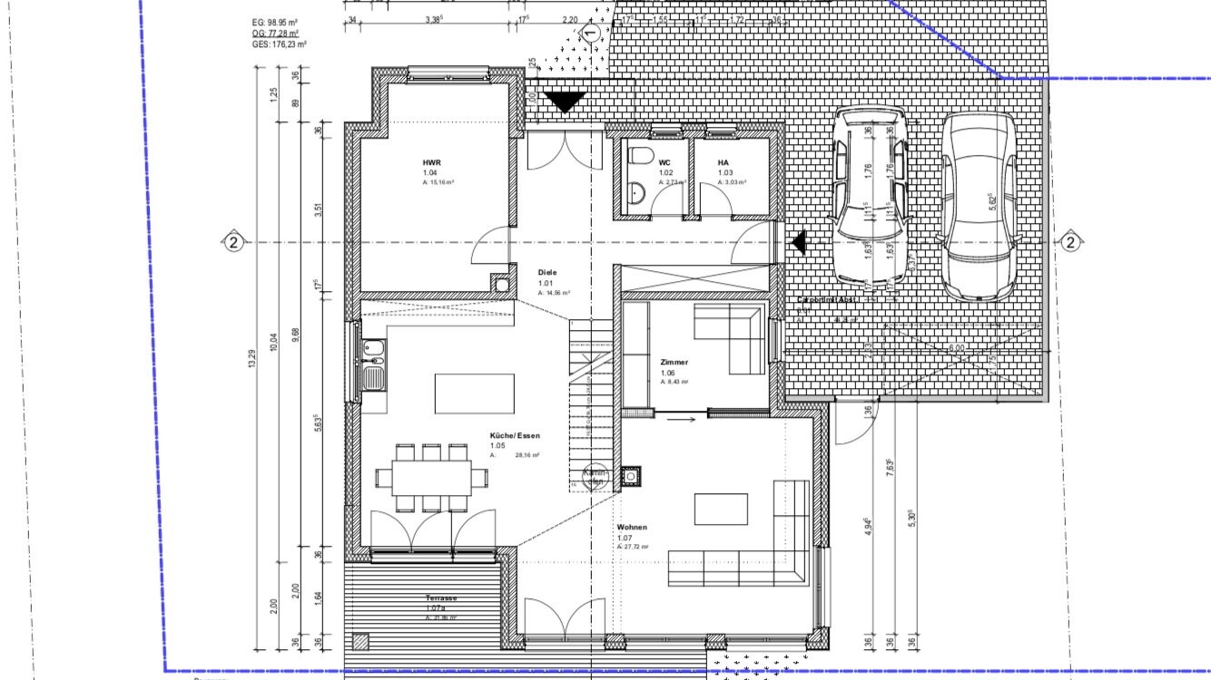
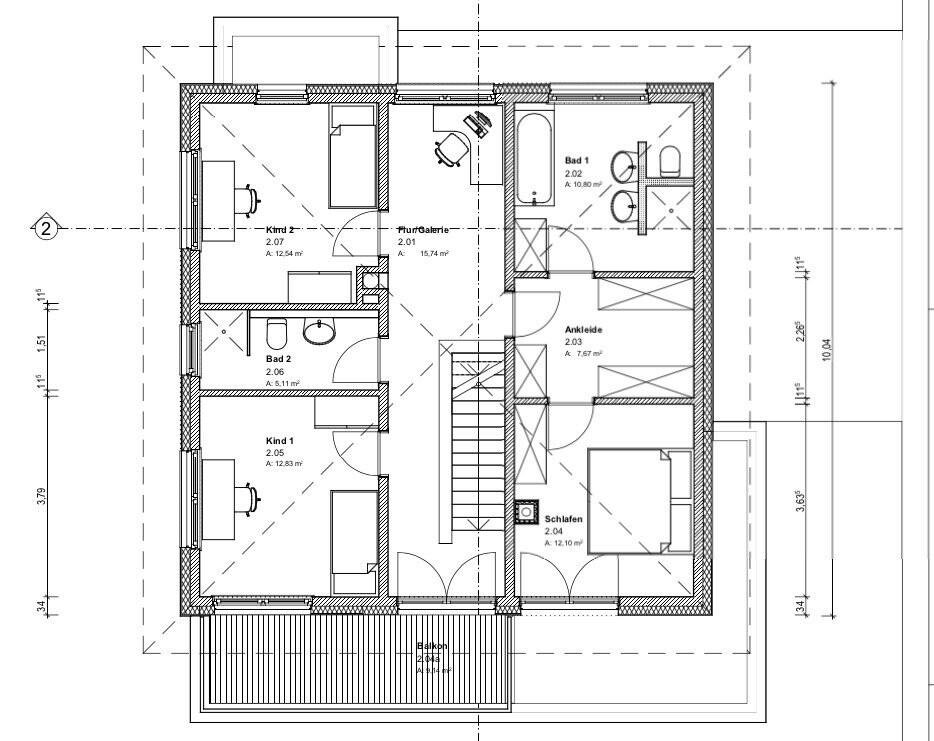
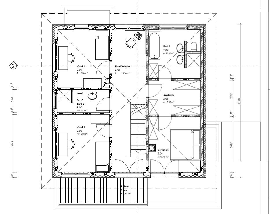
Was auf den Bildern noch nicht geändert ist aber bereits kommuniziert wurde, den Balkon auf die Seite des Schlafzimmers zu legen, dort is ja auch der Ausgang.
Der Grundriss ist für uns so gut wie perfekt, Positionierung der Fenster war nun die letzte Aktivität bei der ich noch Potenzial sehe.
Gerade in der Frage geteilte Fenster oder größere Fenster mit einer Scheibe.
Wir freuen uns auf Meinungen.
Viel Glück,
Jan
Bebauungsplan/Einschränkungen
Größe des Grundstücks 908qm
Hang Nein
Grundflächenzahl 0,3
Baufenster, Baulinie und -grenze: siehe Bild
Anzahl Stellplatz 2
Geschossigkeit 2
Stilrichtung Moderne Stadthausvilla
Maximale Höhen/Begrenzungen 8,5/6,5m (FH/TH)
Anforderungen der Bauherren (siehe Bilder)
Stilrichtung, Dachform, Gebäudetyp
Keller, Geschosse
Anzahl der Personen, Alter
Raumbedarf im EG, OG
Büro: Familiennutzung oder Homeoffice?
Schlafgäste pro Jahr
offene oder geschlossene Architektur
konservativ oder moderne Bauweise
offene Küche, Kochinsel
Anzahl Essplätze
Kamin
Musik/Stereowand
Balkon, Dachterrasse
Garage, Carport
Nutzgarten, Treibhaus
weitere Wünsche/Besonderheiten/Tagesablauf, gern auch Begründungen, warum dieses oder das nicht sein soll
Hausentwurf
Von wem stammt die Planung:
-Architekt
Was gefällt besonders? Warum?
Was gefällt nicht? Warum?
Preisschätzung lt Architekt/Planer: 350.000€ inkl Honorar (Leistungsphase 5-9) finale Aufstellung bekomme ich nächste Woche.
Persönliches Preislimit fürs Haus, inkl Ausstattung: 535.000€
(101.000€ Grundstück,
20.000€ Außenanlagen,
35.000€ Malern, Bodenbeläge, Küche),
Erschließung 15.000€
NotarGrunderwerb: 10.000€
Haus inkl Architekt (Leistungsphase 5-9) 350.000€
Rest diverses
favorisierte Heiztechnik: Luft-Wasser Wärmepumpe.
Warum ist der Entwurf so geworden, wie er jetzt ist?
Der Architekt hat eine sehr konkrete Vorlage von uns bekommen, an der wir Details angepasst haben.





meine Frau und ich stehen kurz vor der Fertigstellung unserer Planung welche wir mit einem Architekten bestreiten. Das Ergebnis teilt sich in den unten angehängten Bildern dar.
Da sich hier geballte Erfahrungen von Bauherren tummelt würden wir uns sehr freuen Meinungen jeglicher Form dazu zu hören.
Was auf den Bildern noch nicht geändert ist aber bereits kommuniziert wurde, den Balkon auf die Seite des Schlafzimmers zu legen, dort is ja auch der Ausgang.
Der Grundriss ist für uns so gut wie perfekt, Positionierung der Fenster war nun die letzte Aktivität bei der ich noch Potenzial sehe.
Gerade in der Frage geteilte Fenster oder größere Fenster mit einer Scheibe.
Wir freuen uns auf Meinungen.
Viel Glück,
Jan
Bebauungsplan/Einschränkungen
Größe des Grundstücks 908qm
Hang Nein
Grundflächenzahl 0,3
Baufenster, Baulinie und -grenze: siehe Bild
Anzahl Stellplatz 2
Geschossigkeit 2
Stilrichtung Moderne Stadthausvilla
Maximale Höhen/Begrenzungen 8,5/6,5m (FH/TH)
Anforderungen der Bauherren (siehe Bilder)
Stilrichtung, Dachform, Gebäudetyp
Keller, Geschosse
Anzahl der Personen, Alter
Raumbedarf im EG, OG
Büro: Familiennutzung oder Homeoffice?
Schlafgäste pro Jahr
offene oder geschlossene Architektur
konservativ oder moderne Bauweise
offene Küche, Kochinsel
Anzahl Essplätze
Kamin
Musik/Stereowand
Balkon, Dachterrasse
Garage, Carport
Nutzgarten, Treibhaus
weitere Wünsche/Besonderheiten/Tagesablauf, gern auch Begründungen, warum dieses oder das nicht sein soll
Hausentwurf
Von wem stammt die Planung:
-Architekt
Was gefällt besonders? Warum?
Was gefällt nicht? Warum?
Preisschätzung lt Architekt/Planer: 350.000€ inkl Honorar (Leistungsphase 5-9) finale Aufstellung bekomme ich nächste Woche.
Persönliches Preislimit fürs Haus, inkl Ausstattung: 535.000€
(101.000€ Grundstück,
20.000€ Außenanlagen,
35.000€ Malern, Bodenbeläge, Küche),
Erschließung 15.000€
NotarGrunderwerb: 10.000€
Haus inkl Architekt (Leistungsphase 5-9) 350.000€
Rest diverses
favorisierte Heiztechnik: Luft-Wasser Wärmepumpe.
Warum ist der Entwurf so geworden, wie er jetzt ist?
Der Architekt hat eine sehr konkrete Vorlage von uns bekommen, an der wir Details angepasst haben.
K
Knallkörper12.08.17 14:09Ein schöner Entwurf. Mir gefällt das EG. Zum OG fallen mir folgende Dinge ein, die mir ganz persönlich nicht so passen würden:
1. Bad zu klein. Wie groß sind Dusche, Waschtische, Badewanne in der Zeichnung?
2. Schlafzimmer nur durch AKZ zu betreten, wollt ihr das wirklich?
3. Kinderzimmer wären mir zu klein. Das Schlafzimmer auch, wenn dort ein Schrank stehen soll.
Ich persönlich würde auf etwas Verkehrsfläche und das zweite Bad im OG verzichten, um diese 3 Punkte anzugehen.
1. Bad zu klein. Wie groß sind Dusche, Waschtische, Badewanne in der Zeichnung?
2. Schlafzimmer nur durch AKZ zu betreten, wollt ihr das wirklich?
3. Kinderzimmer wären mir zu klein. Das Schlafzimmer auch, wenn dort ein Schrank stehen soll.
Ich persönlich würde auf etwas Verkehrsfläche und das zweite Bad im OG verzichten, um diese 3 Punkte anzugehen.
steija1 schrieb:
Hi Zusammen,
meine Frau und ich stehen kurz vor der Fertigstellung unserer Planung welche wir mit einem Architekten bestreiten. Das Ergebnis stellt sich in den unten angehängten Bildern dar.
Da sich hier geballte Erfahrung von Bauherren tummelt, würden wir uns sehr freuen Meinungen jeglicher Form zu hören.
Was auf den Bildern noch nicht geändert ist aber bereits kommuniziert wurde, den Balkon auf die Seite des Schlafzimmers zu legen, dort is ja auch der Ausgang.
Der Grundriss ist für uns so gut wie perfekt, Positionierung der Fenster war nun die letzte Aktivität bei der ich noch Potenzial sehe.
Gerade in der Frage geteilte Fenster oder größere Fenster mit einer Scheibe.
Wir freuen uns auf Meinungen.
Viel Glück,
Jan
Bebauungsplan/Einschränkungen
Größe des Grundstücks 908qm
Hang Nein
Grundflächenzahl 0,3
Baufenster, Baulinie und -grenze: siehe Bild
Anzahl Stellplatz 2
Geschossigkeit 2
Stilrichtung Moderne Stadthausvilla
Maximale Höhen/Begrenzungen 8,5/6,5m (FH/TH)
Anforderungen der Bauherren (siehe Bilder)
Stilrichtung, Dachform, Gebäudetyp
Keller, Geschosse
Anzahl der Personen, Alter
Raumbedarf im EG, OG
Büro: Familiennutzung oder Homeoffice?
Schlafgäste pro Jahr
offene oder geschlossene Architektur
konservativ oder moderne Bauweise
offene Küche, Kochinsel
Anzahl Essplätze
Kamin
Musik/Stereowand
Balkon, Dachterrasse
Garage, Carport
Nutzgarten, Treibhaus
weitere Wünsche/Besonderheiten/Tagesablauf, gern auch Begründungen, warum dieses oder das nicht sein soll
Hausentwurf
Von wem stammt die Planung:
-Architekt
Was gefällt besonders? Warum?
Was gefällt nicht? Warum?
Preisschätzung lt Architekt/Planer: 350.000€ inkl Honorar (Leistungsphase 5-9) finale Aufstellung bekomme ich nächste Woche.
Persönliches Preislimit fürs Haus, inkl Ausstattung: 535.000€
(101.000€ Grundstück,
20.000€ Außenanlagen,
35.000€ Malern, Bodenbeläge, Küche),
Erschließung 15.000€
NotarGrunderwerb: 10.000€
Haus inkl Architekt (Leistungsphase 5-9) 350.000€
Rest diverses
favorisierte Heiztechnik: Luft-Wasser Wärmepumpe.
Warum ist der Entwurf so geworden, wie er jetzt ist?
Der Architekt hat eine sehr konkrete Vorlage von uns bekommen, an der wir Details angepasst haben.





Hallo, mir gefällt das Haus auch sehr gut. Herzlichen Glückwunsch!
Ein Detail würde ich noch einmal überdenken: Im Terrassenbereich des Erdgeschosses würde ich Schiebetüren bevorzugen. Das lädt im Sommer einfach dazu ein, die Türen offen zu lassen, ohne dass irgendwelche Türflügel in den Raum hineinstehen, die vielleicht auch noch mit irgendwelchen Türstoppern fixiert werden müssen, damit sie nicht immer wieder mal in Bewegung sind.
Viele Grüße
Axel
Ein Detail würde ich noch einmal überdenken: Im Terrassenbereich des Erdgeschosses würde ich Schiebetüren bevorzugen. Das lädt im Sommer einfach dazu ein, die Türen offen zu lassen, ohne dass irgendwelche Türflügel in den Raum hineinstehen, die vielleicht auch noch mit irgendwelchen Türstoppern fixiert werden müssen, damit sie nicht immer wieder mal in Bewegung sind.
Viele Grüße
Axel
Ich schließe mich meiner Vorrednerin an, wenngleich der Entwurf auf mich insgesamt als merkwürdiger Zwitter (Zeltdach"Bauhaus") wirkt.
Wie soll denn überhaupt die Optik (Textur) der Oberflächen sein ? - auf den Perspektivzeichnungen sieht es nach Putz aus, mit dem Zeltdach fände ich Verklinkerung schicker (und ggf. die Erker in Putz).
https://www.instagram.com/11antgmxde/
https://www.linkedin.com/company/bauen-jetzt/
steija1 schrieb:Meinst Du damit, (unter Beibehalt der dargestellten Abmessungen) bei den optisch zweiflügeligen Festelementen die Mittelsprosse wegzulassen ja oder nein ? - da wäre ich für nein, "zweiflügelig".
Der Grundriss ist für uns so gut wie perfekt, Positionierung der Fenster war nun die letzte Aktivität bei der ich noch Potenzial sehe.
Gerade in der Frage geteilte Fenster oder größere Fenster mit einer Scheibe.
Wie soll denn überhaupt die Optik (Textur) der Oberflächen sein ? - auf den Perspektivzeichnungen sieht es nach Putz aus, mit dem Zeltdach fände ich Verklinkerung schicker (und ggf. die Erker in Putz).
https://www.instagram.com/11antgmxde/
https://www.linkedin.com/company/bauen-jetzt/
Ähnliche Themen