ᐅ Wohnungsumbau auf 2 Etagen im Altbau
Erstellt am: 11.03.20 15:18
D
Daywalker11.03.20 15:18Hallo zusammen,
wir sind eine 4 köpfige Familie und bewohnen das OG eines Mehrfamilienhauses (4 Wohnungen), das uns gehört. Da der Platz langsam knapp wird und die EG Wohnung frei wird, wollen wir uns gerne vergrößern und die beiden übereinander liegenden Wohnungen zur Gartenseite verbinden.
In der Vergangenheit wurde auch bereits einiges am Haus saniert und umgebaut.
Unter anderem wurde der Grundriss im OG verändert, Fußbodenheizung überall eingebaut inkl. Fliesenverlegung, alle Fenster ausgetauscht, Dach gedämmt, Balkone saniert, Wohnungseingangstüren, Haustür und Garagentore ausgetauscht.
Grundsätzlich geht es uns vorerst um das EG, wo wir gerne mehr Platz schaffen würden.
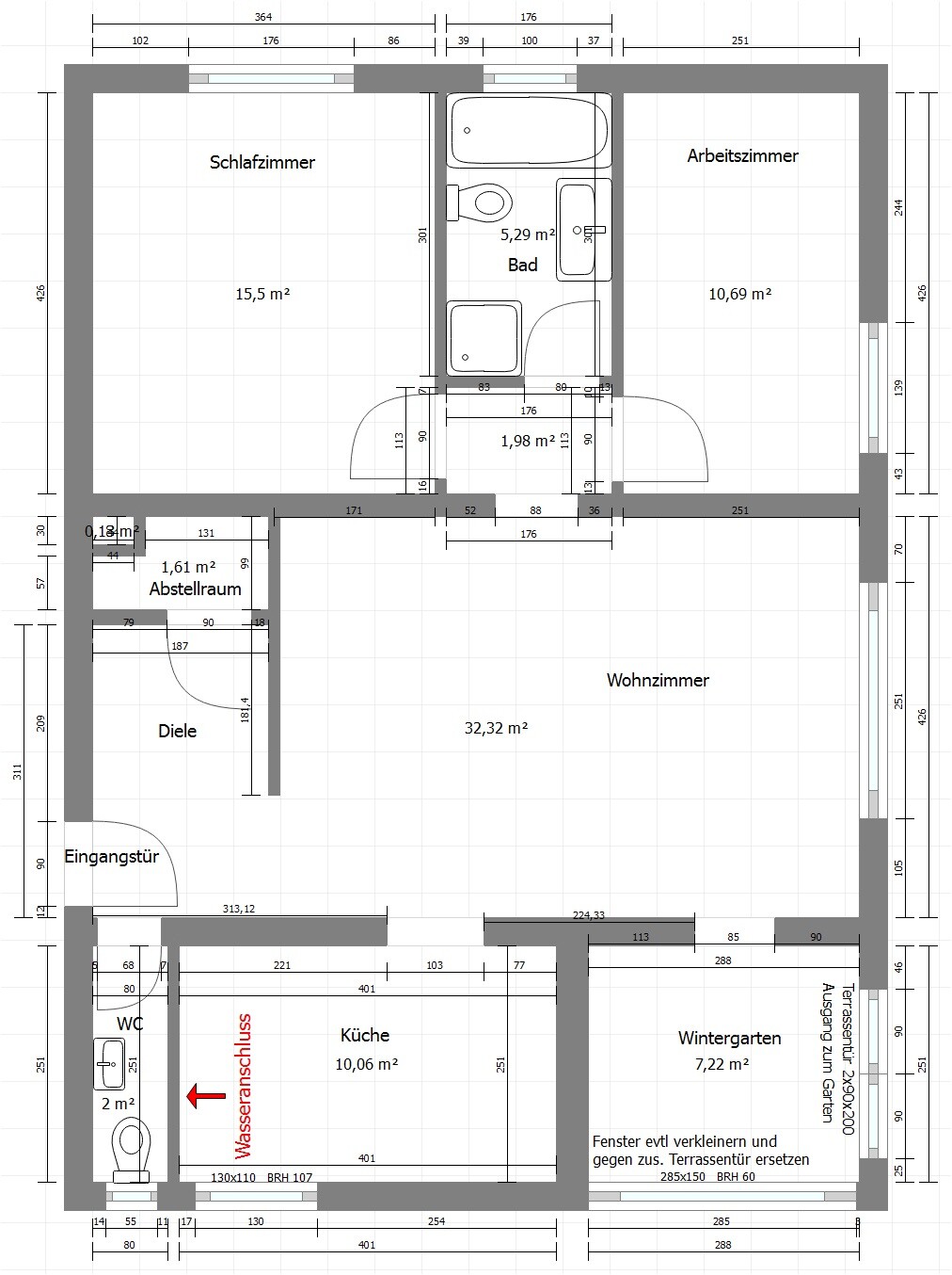
Dazu habe ich die Grundrisse mal angehängt, wie es zurzeit aussieht (G1). Zusätzlich habe ich auch die Grundrisse des gesamten Hauses eingestellt (EG+OG), die jedoch nicht ganz der Realität entsprechen. Zum Beispiel wurde der Freisitz nie realisiert, sondern als eine Art "Wintergarten" gebaut. Es handelt sich um die beiden Wohnungen auf der rechten Seite in den Plänen.
In den nächsten beiden Posts gehe ich auf die geplanten Zustände ein.
Vorab noch der Fragewbogen:
Bebauungsplan/Einschränkungen
Größe des Grundstücks: 800qm
Hang nein
Grundflächenzahl -
Geschossflächenzahl -
Baufenster, Baulinie und -grenze
Randbebauung nein
Anzahl Stellplatz 6
Geschossigkeit 1,5
Dachform Satteldach
Stilrichtung
Ausrichtung
Maximale Höhen/Begrenzungen
weitere Vorgaben
Anforderungen der Bauherren
Stilrichtung, Dachform, Gebäudetyp
Keller, Geschosse Unterkellert, 1,5 geschossig
Anzahl der Personen, Alter 4 in der Wohnung, 7 im ganzen Haus
Raumbedarf im EG, OG
Büro: Familiennutzung oder Homeoffice? Familiennutzung
Schlafgäste pro Jahr selten
offene oder geschlossene Architektur eher offen nach Möglichkeit
konservativ oder moderne Bauweise innen modern
offene Küche, Kochinsel je nach Möglichkeit, siehe Grundrisse
Anzahl Essplätze 6-8
Kamin nein
Musik/Stereowand nein
Balkon, Dachterrasse vorhanden, siehe Grundrisse
Garage, Carport 4 Garagen zur Straßenseite
Nutzgarten, Treibhaus nein
weitere Wünsche/Besonderheiten/Tagesablauf, gern auch Begründungen, warum dieses oder das nicht sein soll
Hausentwurf
Von wem stammt die Planung:
vorerst DIY, Vorgespräch mit Statiker durchgeführt, BauIng wird noch eingeschaltet
Was gefällt besonders? Warum?
größere, offene Räume
Was gefällt nicht? Warum?
kleine Räume
Preisschätzung lt Architekt/Planer:
bisher keine
Persönliches Preislimit fürs Haus, inkl Ausstattung:
-
favorisierte Heiztechnik:
zurzeit Ölbrenner, wird auch modernisiert auf Wärmepumpe falls möglich, Berechnung läuft zurzeit
Wenn Ihr verzichten müsst, auf welche Details/Ausbauten
-könnt Ihr verzichten:
-könnt Ihr nicht verzichten:
Warum ist der Entwurf so geworden, wie er jetzt ist? ZB
Bauliche Beschränkungen durch Bestand sind gegeben.
Was ist die wichtigste/grundlegende Frage zum Grundriss in 130 Zeichen zusammengefasst?
siehe Beschreibung oben bzw. in folgenden Beiträgen.



wir sind eine 4 köpfige Familie und bewohnen das OG eines Mehrfamilienhauses (4 Wohnungen), das uns gehört. Da der Platz langsam knapp wird und die EG Wohnung frei wird, wollen wir uns gerne vergrößern und die beiden übereinander liegenden Wohnungen zur Gartenseite verbinden.
In der Vergangenheit wurde auch bereits einiges am Haus saniert und umgebaut.
Unter anderem wurde der Grundriss im OG verändert, Fußbodenheizung überall eingebaut inkl. Fliesenverlegung, alle Fenster ausgetauscht, Dach gedämmt, Balkone saniert, Wohnungseingangstüren, Haustür und Garagentore ausgetauscht.
Grundsätzlich geht es uns vorerst um das EG, wo wir gerne mehr Platz schaffen würden.
Dazu habe ich die Grundrisse mal angehängt, wie es zurzeit aussieht (G1). Zusätzlich habe ich auch die Grundrisse des gesamten Hauses eingestellt (EG+OG), die jedoch nicht ganz der Realität entsprechen. Zum Beispiel wurde der Freisitz nie realisiert, sondern als eine Art "Wintergarten" gebaut. Es handelt sich um die beiden Wohnungen auf der rechten Seite in den Plänen.
In den nächsten beiden Posts gehe ich auf die geplanten Zustände ein.
Vorab noch der Fragewbogen:
Bebauungsplan/Einschränkungen
Größe des Grundstücks: 800qm
Hang nein
Grundflächenzahl -
Geschossflächenzahl -
Baufenster, Baulinie und -grenze
Randbebauung nein
Anzahl Stellplatz 6
Geschossigkeit 1,5
Dachform Satteldach
Stilrichtung
Ausrichtung
Maximale Höhen/Begrenzungen
weitere Vorgaben
Anforderungen der Bauherren
Stilrichtung, Dachform, Gebäudetyp
Keller, Geschosse Unterkellert, 1,5 geschossig
Anzahl der Personen, Alter 4 in der Wohnung, 7 im ganzen Haus
Raumbedarf im EG, OG
Büro: Familiennutzung oder Homeoffice? Familiennutzung
Schlafgäste pro Jahr selten
offene oder geschlossene Architektur eher offen nach Möglichkeit
konservativ oder moderne Bauweise innen modern
offene Küche, Kochinsel je nach Möglichkeit, siehe Grundrisse
Anzahl Essplätze 6-8
Kamin nein
Musik/Stereowand nein
Balkon, Dachterrasse vorhanden, siehe Grundrisse
Garage, Carport 4 Garagen zur Straßenseite
Nutzgarten, Treibhaus nein
weitere Wünsche/Besonderheiten/Tagesablauf, gern auch Begründungen, warum dieses oder das nicht sein soll
Hausentwurf
Von wem stammt die Planung:
vorerst DIY, Vorgespräch mit Statiker durchgeführt, BauIng wird noch eingeschaltet
Was gefällt besonders? Warum?
größere, offene Räume
Was gefällt nicht? Warum?
kleine Räume
Preisschätzung lt Architekt/Planer:
bisher keine
Persönliches Preislimit fürs Haus, inkl Ausstattung:
-
favorisierte Heiztechnik:
zurzeit Ölbrenner, wird auch modernisiert auf Wärmepumpe falls möglich, Berechnung läuft zurzeit
Wenn Ihr verzichten müsst, auf welche Details/Ausbauten
-könnt Ihr verzichten:
-könnt Ihr nicht verzichten:
Warum ist der Entwurf so geworden, wie er jetzt ist? ZB
Bauliche Beschränkungen durch Bestand sind gegeben.
Was ist die wichtigste/grundlegende Frage zum Grundriss in 130 Zeichen zusammengefasst?
siehe Beschreibung oben bzw. in folgenden Beiträgen.
D
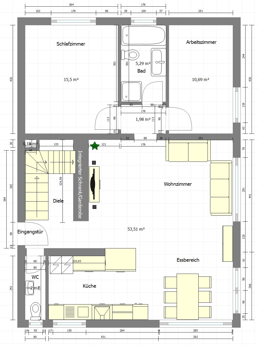
Daywalker11.03.20 15:22In diesem Post seht ihr die ersten Option für den Umbau (G2).
Wir sind nicht sicher, ob der Platz ausreicht, um Küche, Wohn- und Essbereich schön zu gestalten.
Nachteil bei dieser Lösung ist, dass wir unten weiterhin 2 zusätzliche Zimmer haben, die so nicht benötigt werden. Evtl. ist es ja kein Nachteil, aber es würde uns im EG ein Arbeitszimmer/Gästezimmer vollkommen ausreichen, die Schlaf- und Kinderzimmer sind dann oben.
Ein weiterer Nachteil wäre das kleine/schmale Bad, was im OG genauso aussieht. Aber auch damit würden wir zurecht kommen, da unser jetziges Bad auch recht klein ist.
Wir sind auch nicht sicher, ob der Platz für den Esstisch ausreichend ist und ob die Anordnung so ok ist. Der Tisch soll neu angeschafft werden und Platz für 6-8 Personen bieten (180cm, evtl. ausziehbar).
Der Vorteil dieses Grundrisses wäre, dass die Umbaumaßnahmen nicht ganz so groß wären und wir trotzdem einen Raumgewinn haben.
Alle möbel inkl. Küche sind nur exemplarisch eingefügt, um zu zeigen, wie wir uns das ganze grundsätzlich vorstellen.

Wir sind nicht sicher, ob der Platz ausreicht, um Küche, Wohn- und Essbereich schön zu gestalten.
Nachteil bei dieser Lösung ist, dass wir unten weiterhin 2 zusätzliche Zimmer haben, die so nicht benötigt werden. Evtl. ist es ja kein Nachteil, aber es würde uns im EG ein Arbeitszimmer/Gästezimmer vollkommen ausreichen, die Schlaf- und Kinderzimmer sind dann oben.
Ein weiterer Nachteil wäre das kleine/schmale Bad, was im OG genauso aussieht. Aber auch damit würden wir zurecht kommen, da unser jetziges Bad auch recht klein ist.
Wir sind auch nicht sicher, ob der Platz für den Esstisch ausreichend ist und ob die Anordnung so ok ist. Der Tisch soll neu angeschafft werden und Platz für 6-8 Personen bieten (180cm, evtl. ausziehbar).
Der Vorteil dieses Grundrisses wäre, dass die Umbaumaßnahmen nicht ganz so groß wären und wir trotzdem einen Raumgewinn haben.
Alle möbel inkl. Küche sind nur exemplarisch eingefügt, um zu zeigen, wie wir uns das ganze grundsätzlich vorstellen.
D
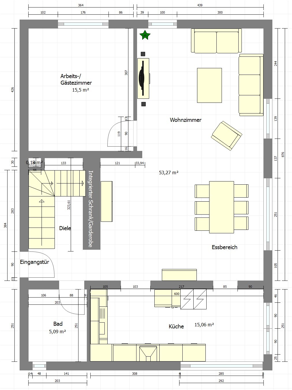
Daywalker11.03.20 15:23Unsere zweite Idee für den Grundriss sieht folgendermaßen aus (G3).
Hier sind erhebliche Umbaumaßnahmen erforderlich.
Man hat dann zwar keine offene Küche, sie wird dadurch aber nicht kleiner und man bekommt mehr Platz im Wohn- und Essbereich.
Alle Möbel inkl. Küche sind nur exemplarisch eingefügt, um zu zeigen, wie wir uns das ganze grundsätzlich vorstellen.
Es stellt sich uns die Frage, ob es die erheblichen Umbaumaßnahmen wert sind, den Grundriss so zu verändern.
Natürlich ist uns bewusst, dass es auch Geschmackssache ist, aber vielleicht seht ihr noch etwas, was wir nicht sehen oder bedacht haben.
Deswegen würden wir gerne eure Meinung hören.
Sollte ich noch etwas vergessen haben, reiche ich es gerne nach.

Hier sind erhebliche Umbaumaßnahmen erforderlich.
Man hat dann zwar keine offene Küche, sie wird dadurch aber nicht kleiner und man bekommt mehr Platz im Wohn- und Essbereich.
Alle Möbel inkl. Küche sind nur exemplarisch eingefügt, um zu zeigen, wie wir uns das ganze grundsätzlich vorstellen.
Es stellt sich uns die Frage, ob es die erheblichen Umbaumaßnahmen wert sind, den Grundriss so zu verändern.
Natürlich ist uns bewusst, dass es auch Geschmackssache ist, aber vielleicht seht ihr noch etwas, was wir nicht sehen oder bedacht haben.
Deswegen würden wir gerne eure Meinung hören.
Sollte ich noch etwas vergessen haben, reiche ich es gerne nach.
A
Aphrodithe11.03.20 17:47Warum öffnest du im zweiten Entwurf nicht auch die Küche und arbeitest dann mit einer Kochinsel?
Für mein Gefühl öffnest du sehr viele tragende Wände. Ob das die Statik mitmacht?
Ich bring mal die Idee ins Spiel, die Räume anders aufzuteilen (tragende Wände könnten weitgehend erhalten bleiben).
Unschön sind die sehr ungleichen Kinderzimmer.
EG:
- Kind 1/2
- Kinderbad
- Küche
- Essen
OG:
- Wohnen (TV, Sofalandschaft)
- Schlafen
- Arbeiten/Gast
- Bad
- Hauswirtschaftsraum

Ich bring mal die Idee ins Spiel, die Räume anders aufzuteilen (tragende Wände könnten weitgehend erhalten bleiben).
Unschön sind die sehr ungleichen Kinderzimmer.
EG:
- Kind 1/2
- Kinderbad
- Küche
- Essen
OG:
- Wohnen (TV, Sofalandschaft)
- Schlafen
- Arbeiten/Gast
- Bad
- Hauswirtschaftsraum
Ohne die Deckenpläne zu kennen, scheint mir dennoch grundsätzlich wahrscheinlich, daß diese Maisonette-Vereinigung von EG und DG mit vertretbarem Statikaufwand möglich sein wird. Der Beitragstitel ist etwas irreführend: dies ist offensichtlich kein AltBau, sondern lediglich ein BestandsGebäude (schätzungsweise aus den Siebzigern, also schon eindeutig zu Zeiten der BRD).
https://www.instagram.com/11antgmxde/
https://www.linkedin.com/company/bauen-jetzt/
https://www.instagram.com/11antgmxde/
https://www.linkedin.com/company/bauen-jetzt/
Ähnliche Themen