Was wird das Bauamt sagen?

4,20 Stern(e) 11 Votes
Zuletzt aktualisiert 19.12.2025
Sie befinden sich auf der Seite 7 der Diskussion zum Thema: Was wird das Bauamt sagen?
>> Zum 1. Beitrag <<

kbt09

kbt09

Reich den Plan zur Genehmigung ein und berichte ... ich als Nachbar würde mir das auf jeden Fall sehr genau ansehen.

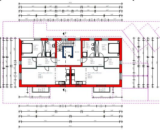
Auf diesem Plan kann man ja mal ein wenig was erkennen, wobei die Maße ja auch gesetzt sind wie der wilde Westen



Das sage ich, die Badezimmer (insbesondere das planlinke) finde ich überhaupt nicht gut geplant, Miniduschen, schlechte Durchgangsituation zum Waschbecken.

Bei den Schlafzimmern bezweifle ich, dass hinter den Türen ein 60 cm tiefer Schrank (Planmaß sollte da 70 cm sein) passt.

Im DG

scheint der Hauswirtschaftsraum im Süden geplant zu sein. Essen/Kochen/Wohnen, wenn ich mir da einen Tisch vorstelle, dann ist der Zugang zum quadratischen Terrassenbereich ziemlich unmöglich. Und zum Rest kann man sogar nichts sagen, weil einfach keine Maße erkennbar sind.
 
E

Escroda

Aber, das ist eher ein Fall für @Escroda
Hab' die Berechnungen im Einzelnen nicht nachgerechnet, das muss die Behörde prüfen, aber die Ansätze sind grundsätzlich richtig, wenn auch etwas verwirrend, da eine Grundflächenzahl II auftaucht, die es nach Baunutzungsverordnung 1968 ja nicht gibt.
und genau dafür sind Bebauungspläne da, das das Persönlichkeitsrecht nicht verletzt wird.
Nein, dafür ist das Nachbarrecht da und das sagt 2,50m Abstand, der hier von den Balkonen zwar eingehalten wird, von den Terrassen aber nicht.
Und das Bauordnungsrecht: Leider gibt es keinen Lageplan mit den Abstandsflächen und den Grenzabständen. Ob die Balkone das erlaubte Drittel der Grenzabstandsunterschreitung einhalten, ist daher nicht ersichtlich, darf aber bezweifelt werden.
aber hier spielt die Grundflächenzahl II ja keine Geige
Richtig und deshalb sollte sie in deinem Berechnungsformular unter 7. auch nicht vorkommen.
nicht aber der Baunutzungsverordnung 1977
<Korinthenkack> ... und auch nicht in der Baunutzungsverordnung 1968, die nach deinen Angaben anzuwenden ist. </Korinthenkack>
 
Zuletzt aktualisiert 19.12.2025
Im Forum Bauplanung gibt es 5075 Themen mit insgesamt 100834 Beiträgen


Ähnliche Themen zu Was wird das Bauamt sagen?
Nr.ErgebnisBeiträge
1Grundflächenzahl; § 19 Abs.4 Baunutzungsverordnung - Erfahrungen? - Seite 326
2§19 Baunutzungsverordnung - Grundflächenzahl - zulässige Grundfläche 16
3Grundflächenzahl/Geschossflächenzahl bei Bebauungsplan von 1968 11
4Grundflächenzahl mehrere Flurstücke - Seite 322
5Nachbarschaftliche Belange bei Befreiung von der Grundflächenzahl - Seite 231
6Neubau Grundflächenzahl ausnutzen, Terrasse überbauen - Seite 221
7Bebaute Fläche: Gehören Garage / Carport zur bebauten Fläche? - Seite 319
8Baukosten Terrassen etc. in Kostenschätzung nach DIN 27 19
9Terrassen: Welche Anzahl und wohin? 18
10Frage zur Bestimmung der Grundflächenzahl 10
11Was bedeutet: Grundflächenzahl 0,4 Geschossflächenzahl 1,2 Geschosse II - II 12
12Grundflächenzahl/Geschossflächenzahl bei Grundstück ohne Bebauungsplan: Wie kalkulieren? Erfahrungen? 18
13Grundflächenzahl Außenanlagen versickerungsfähiges Pflaster 11
14Grundflächenzahl Grundflächenzahl bei Grundstückstrennung 18
15Staffelgeschosshaus 23x30m Grundstück mit Grundflächenzahl 0,25 25
16Grundflächenzahl gegen Sonderzahlung erhöhbar? 15
17Grundflächenzahl vergrößern durch Zukauf von Grünland? - Seite 219
18Haus kaufen, wenn Grundflächenzahl überschritten? 22
19Grundflächenzahl-Berechnung, wenn 2 Flurstücke kombiniert werden müssen 19
20Prüfung Einhaltung Grundflächenzahl (Grundflächenzahl) im Neubaugebiet 11

Oben