Verbesserungsvorschläge Einfamilienhaus 137 qm GF mit Einliegerwohnung

4,50 Stern(e) 6 Votes
Zuletzt aktualisiert 23.11.2025
Sie befinden sich auf der Seite 4 der Diskussion zum Thema: Verbesserungsvorschläge Einfamilienhaus 137 qm GF mit Einliegerwohnung
>> Zum 1. Beitrag <<

M

Maartina

Moin


sorry aber das ist nur unwesentlich besser wie das selbst skizzierte Etwas.

In der Einliegerwohnung eine im Vergleich zum WZ riesige Küche, ein dunkler und wenig einladender Eingang - Treppenaufgang, ein unmögliches Schlafzimmer im OG, in den Bädern Platz für eine Eckwanne im kleinen Bad aber nur eine Dusche 75 x 90 cm, .........

Ich beende mal die Aufzählung und rate zu einem Neustart.



Olli
Ohje ich sehe schon, das wird wieder nichts..

Der treppenaufgang geht bis zum Dach durch und bekommt hier ein Fenster. Wird zwar leider nicht sehr hell, aber zumindest etwas Lichteinfall. Das Küchen/Wohnzimmerverhältnis der Einliegerwohnung wünscht meiner Schwiegermutter so. Wenn wir später das komplette Haus bewohnen, werden die Wände sowieso rausgenommen.
Das mit den Bädern versteh ich nicht ganz. Eine Badewanne und zwei Duschen reichen uns..
 
M

Maartina

Danke. Da kann man aber noch was dran machen, oder? (Mal von den fehlenden Kinderzimmer-Türen abgesehen)
Mich wundert, dass ein Architekt Türen vergisst und einige Hunken in die Wände gehauen hat.
Die Aufteilung im EG Hauswirtschaftsraum/Arbeiten/Einliegerwohnung finde ich ok.
Man könnte aber in fast jedem Zimmer, auch im OG, etwas an den Wänden ziehen, an dem der Raum dann gewinnt.

Ja leider, passiert das mit den Türen hin und wieder. Genauso wie der Abstellraum im EG eigentlich ein Gästezimmer ist.
Muss der Architekt definitiv noch ändern
 
M

Maartina

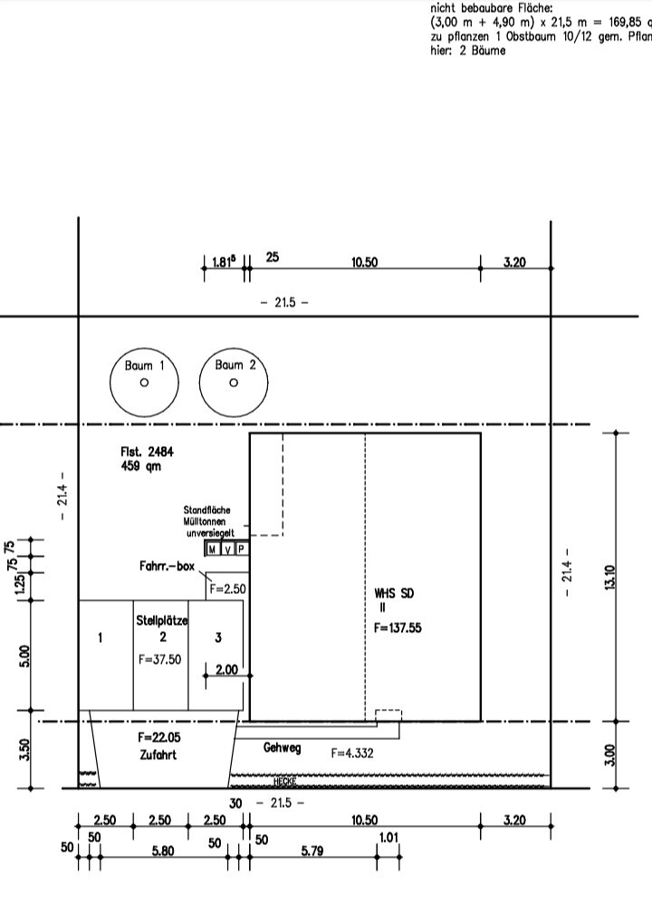
Lageplan? Lageplan! Lageplan?

Neben den bereits genannten Problemen solltet Ihr Euch vielleicht nochmals Gedanken über das Konzept machen.
Wegen der Schrägen ist es im Augenblick so, dass 5 Personen oben annähernd genauso viel Platz haben, wie eine Person unten. Scheint mir unverhältismäßig.
Das Büro ist recht groß - wie viel ist da wirklich nötig? Könnte man Besuchern eine Treppe zumuten oder haben die irgendwelche Gebrechen?
Gibt es Vorschriften zur Gaubengröße?
Uns war wichtig, dass unsere Wohnung auf einer Etage ist
Uiuiuiuiuiui, auauauauau.

Dem Rat kann ich mich nur anschließen, bemühe mich aber dennoch, noch weitere Punkte aufzuzeigen, denn der TE fällt es ja offenbar schwer, selbst einen Murks darin zu erkennen (nur zur Selbstkasteiung will man ja wohl nicht bauen). Aber da hat es ja wirklich jemand geschafft, einen Quatsch noch quätscher zu machen:
Wohnzimmer Einlieger als gefangener Raum # Raumgrößen Küche - Wohnzimmer - und erst recht und ganz besonders: Abstellraum stehen hier in keinem gesunden Verhältnis zueinander # das Einlieger-Einzelschlafzimmer für sich gesehen ist ja okay, aber das Hauptschlafzimmer ist eher ein begehbarer Alkoven # das DG funktioniert never ever, ibs. der Balkon bei Kniestock 115 ist ein Witz, insgesamt läßt der Zeichner hier erkennen, null räumliches Vorstellungsvermögen zu haben # die Wandverläufe im DG sind unbezahlbar, sowohl beim Mauern als auch beim Fliesenlegen, und das ist wie mein Vorredner schon anriß noch lange nicht das Ende vom Lied. Um nicht nur zu meckern, lasse ich noch das Bekenntnis folgen, daß ich ziemlich ähnlichen Bockmist früher selber geplant habe - aber da war ich auch erst Zwölf, insofern kommen beim Anschauen fast alte Erinnerungen wieder hoch

Auch ich vermute mal glaskugelig eine Wurzel des Übels in ungefähr drölfundachtzig Wünschen mehr, als das Bauvolumen ermöglichen kann.
Abstellraum soll Gästezimmer sein, da hier auch sehr regelmäßig Besuch kommt ist diese Größe durchaus angemessen. Wandverläufe im OG unbezahlbar aufgrund der vielen Ecken und Kanten oder? Das gefällt uns auch nicht recht, haben es auch schon etwas angepasst, davor sah es noch schlimmer aus.. Größeres Grundstück war hier leider schwer zu bekommen, wir wissen dass unsere Anforderungen auf so einem kleinen Grundstück schwer umsetzbar sind.
Die Einfahrt wird noch verkleinert. Es soll noch eine Garage folgen.

Grundrissplan eines Gebäudes mit Abmessungen, Stellplätzen und Baumstandorten
 
kaho674

kaho674

Wo ist denn Norden?
Ehrlich, Deine Infos sind zu spärlich und kommen hier nur tröpfchenweise.
Ihr wollt Euch lieber zu fünft auf eine Eben quetschen, als nach Alternativen zu suchen? Und weil Oma ab und zu einen Gast hat, braucht Sie ein Mega-Gästezimmer - das dann zu 90% leer steht?

Mit Deinem 35 Grad-Dach kommst Du ja auch nicht weit. Da dort mindestens steht, würde ich ja wenistens auf 45° gehen. Gibt es da schon eine Entscheidung?

Was ist mit einem Gartenzugang - auch wenn der mini ist? Mit 3 Kindern auf einer Terrasse zu sitzen, ist doch ein ganz anderes Lebensgefühl, als sich auf nen Balkon zu quetschen. Und was heißt hier "wenn wir später das ganze Haus bewohnen". Will die Schwimu noch mal heiraten und zieht bald zu ihrem Freund? Oder planst Du den Corona-Tod der Schwimu schon fest ein?
 
Y

ypg

Leg mal Informationen nach!
Du wirst von der Corona-Situation profitieren, da viele „von uns“ etwas mehr Zeit haben.
 
Zuletzt aktualisiert 23.11.2025
Im Forum Grundrissplanung / Grundstücksplanung gibt es 2535 Themen mit insgesamt 87992 Beiträgen


Ähnliche Themen zu Verbesserungsvorschläge Einfamilienhaus 137 qm GF mit Einliegerwohnung
Nr.ErgebnisBeiträge
1Grundrissplanung Einfamilienhaus auf großem Grundstück - Seite 230
2Grundrissoptimierung Einfamilienhaus mit Keller auf kleinem Grundstück - Seite 10178
3Grundriss Doppelhaushälfte mit Gästezimmer 53
4Dach dämmen: Flocken, Platten oder Wolle 17
5Beratung und Meinungen zum Grundstück 32
6Kostenschätzung Haus zur Ermittlung des Budgets für Grundstück - Seite 663
7Kaufpreisermittlung Grundstück m. altem Hausbestand - Seite 326
8Einfamilienhaus (2Etagen+Wohn-Keller+ausgebautes Dach) etwa 200qm -Änderungen 162
9Grundstück vorhanden - wie nutzen? 51
10Grundstück aufschütten oder nicht? - Seite 1387
11Grundstück - Ideen und Anregungen zu Ausrichtung und Bebauungsplan - Seite 433
12Grundstück in Marburg gefunden... Worauf achten? 11
13Schwieriger Grundriss Grundstück und Denkmal - §34 - Seite 8130
14Neue Planversion zu meinem Grundstück 22
15Hausplanung auf vorhandenem. Grundstück - Seite 859
16Grundstück 1250m², Wohnfläche 200m², 4 Personen Haushalt 25
17Meinungen f. Grundriss Einfamilienhaus ca. 160qm 29
18Dunstabzug / Dach oder Wand 14
19Dach dämmen mit Küchenrolle/Klopapier 12
20KfW 55 mit Holzhaus - U-Werte: Wand 0,18 - Dach 0,16 17

Oben