ᐅ Umbau vom Ein- zum Zwei Familienhaus - Hilfe bei Raumaufteilung
Erstellt am: 07.11.16 23:47
G
Gerry82Hallo, wir überlegen unser momentan noch Einfamilienhaus umzubauen in ein Zweifamilienhaus. Eher Zwei Generationenhaus. Meine Eltern ziehen in das EG ein und Wir in das OG.
Bebauungsplan/Einschränkungen
Da das Haus ja schon steht denke ich das sich dieser Punkt erledigt hat.
Anforderungen der Bauherren
Stilrichtung, Dachform, Gebäudetyp: Satteldach, Mehrgenerationenhaus
Keller, Geschosse: 1 Kellerraum + Garage in Whg1, EG, OG, DG nicht ausgebaut
Anzahl der Personen, Alter: 2x Mitte 50, 2x Mitte 30
Raumbedarf im EG, OG
Büro: Familiennutzung oder Homeoffice? Wird nicht benötigt
Schlafgäste pro Jahr: eher selten, wenn dann max. 2-3 auf schlafcouch
offene oder geschlossene Architektur: eher offene
konservativ oder moderne Bauweise: modern
offene Küche, Kochinsel: offen evtl. Ja. Keine Kochinsel.
Anzahl Essplätze: 4
Kamin: Ja
Musik/Stereowand: Nein
Balkon, Dachterrasse: Nein
Garage, Carport: Nein
Nutzgarten, Treibhaus: Nein
weitere Wünsche/Besonderheiten/Tagesablauf
Hausentwurf
Von wem stammt die Planung: Do-it-Yourself von uns selbst.
Was gefällt besonders? 2 gleiche Kinderzimmer, Ankleidezimmer nicht mit im Schlafzimmer, Kamin
Was gefällt nicht? Der Eingangsbereich im EG. Dahin sollte ein Gäste-WC mit Pissoir, Evtl. wenn möglich ein gemeinsamer Hauswirtschaftsraum, Vorratsbereich für Getränke und diverse Lebensmittel
Preisschätzung lt Architekt/Planer:
Persönliches Preislimit fürs Haus, inkl Ausstattung:
favorisierte Heiztechnik: bestehende Ölheizung
Wenn Ihr verzichten müsst, auf welche Details/Ausbauten
-könnt Ihr verzichten: Im Bad nicht zwingend eine Badewanne aber besser wäre mit,
-könnt Ihr nicht verzichten: Kamin, Eckbank im Essbereich, Ankleide
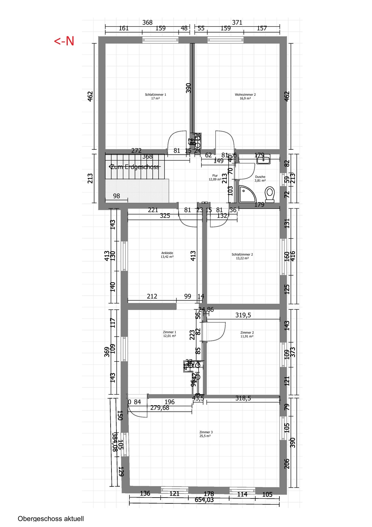
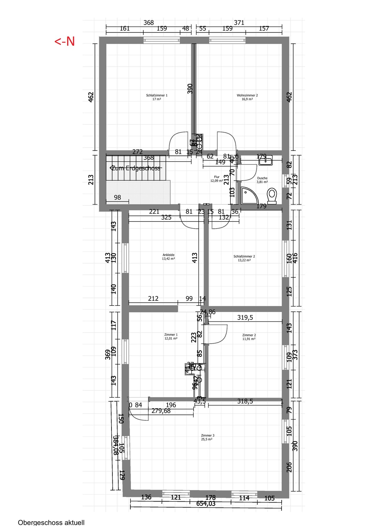
Nun kommen wir zum Plan:
Die Runden Kreise im Plan sind die Kamine. Südseite ist die Eingangsseite.
Die bestehende Treppe EG zum OG wird geschlossen. Im EG wird sie als Flacher wandschrank gebaut. Im OG als Stauraum für Staubsauger etc.
Mit der Neuen Aufteilung der Wohnung 1 sind meine Eltern zufrieden. Da der Platz aber etwas zu klein ist für einen eigenen Hauswirtschaftsraum kommen beide Partien mit dem Gedanken klar einen gemeinsam zu benutzen.
Da es teilweise kleine Fenster und diese auch komisch angeordnet sind, zwingen wir uns nicht dazu diese auch zu lassen. Also würden wir auch in die Fassade eingreifen, was bei der Eingangstüre sowieso nötig ist weil ein Großes Werkstattor momentan drin ist.
Die Wand vom Bad/Küche zum Wohn/Essbereich ist keine tragende Wand. Nur der Kamin müsste stehen bleiben. Haben deswegen überlegt wenn es bei unserer Aufteilung bleiben sollte ob man die Wand Küche - Essbereich komplett entfernt.
Ob das mit der Treppe so hinhaut wenn man den Eingangsbereich im EG hinbekommen wissen wir auch nicht, uns fehlen die Ideen im EG das alles unter einen Hut zu bekommen. Gäste-WC im EG wäre für uns optimal da es ein Nachbargebäude gibt mit einen kleinen Partyraum, auch kann man mal auf Toilette wenn man draußen etwas arbeitet und man muss dann nicht immer ins OG. Die Waschmaschine würde dann auch ins EG kommen, mit einen Schmutzwäscheschacht von OG ins EG.
Ich denke das ist erstmal genug. Wir kommen momentan nicht mehr weiter mit unseren Ideen, und sind hier auf das Forum gestoßen auf der Suche nach Möglichkeiten. Hoffe die Pläne sind lesbar und verständlich.
Bebauungsplan/Einschränkungen
Da das Haus ja schon steht denke ich das sich dieser Punkt erledigt hat.
Anforderungen der Bauherren
Stilrichtung, Dachform, Gebäudetyp: Satteldach, Mehrgenerationenhaus
Keller, Geschosse: 1 Kellerraum + Garage in Whg1, EG, OG, DG nicht ausgebaut
Anzahl der Personen, Alter: 2x Mitte 50, 2x Mitte 30
Raumbedarf im EG, OG
Büro: Familiennutzung oder Homeoffice? Wird nicht benötigt
Schlafgäste pro Jahr: eher selten, wenn dann max. 2-3 auf schlafcouch
offene oder geschlossene Architektur: eher offene
konservativ oder moderne Bauweise: modern
offene Küche, Kochinsel: offen evtl. Ja. Keine Kochinsel.
Anzahl Essplätze: 4
Kamin: Ja
Musik/Stereowand: Nein
Balkon, Dachterrasse: Nein
Garage, Carport: Nein
Nutzgarten, Treibhaus: Nein
weitere Wünsche/Besonderheiten/Tagesablauf
Hausentwurf
Von wem stammt die Planung: Do-it-Yourself von uns selbst.
Was gefällt besonders? 2 gleiche Kinderzimmer, Ankleidezimmer nicht mit im Schlafzimmer, Kamin
Was gefällt nicht? Der Eingangsbereich im EG. Dahin sollte ein Gäste-WC mit Pissoir, Evtl. wenn möglich ein gemeinsamer Hauswirtschaftsraum, Vorratsbereich für Getränke und diverse Lebensmittel
Preisschätzung lt Architekt/Planer:
Persönliches Preislimit fürs Haus, inkl Ausstattung:
favorisierte Heiztechnik: bestehende Ölheizung
Wenn Ihr verzichten müsst, auf welche Details/Ausbauten
-könnt Ihr verzichten: Im Bad nicht zwingend eine Badewanne aber besser wäre mit,
-könnt Ihr nicht verzichten: Kamin, Eckbank im Essbereich, Ankleide
Nun kommen wir zum Plan:
Die Runden Kreise im Plan sind die Kamine. Südseite ist die Eingangsseite.
Die bestehende Treppe EG zum OG wird geschlossen. Im EG wird sie als Flacher wandschrank gebaut. Im OG als Stauraum für Staubsauger etc.
Mit der Neuen Aufteilung der Wohnung 1 sind meine Eltern zufrieden. Da der Platz aber etwas zu klein ist für einen eigenen Hauswirtschaftsraum kommen beide Partien mit dem Gedanken klar einen gemeinsam zu benutzen.
Da es teilweise kleine Fenster und diese auch komisch angeordnet sind, zwingen wir uns nicht dazu diese auch zu lassen. Also würden wir auch in die Fassade eingreifen, was bei der Eingangstüre sowieso nötig ist weil ein Großes Werkstattor momentan drin ist.
Die Wand vom Bad/Küche zum Wohn/Essbereich ist keine tragende Wand. Nur der Kamin müsste stehen bleiben. Haben deswegen überlegt wenn es bei unserer Aufteilung bleiben sollte ob man die Wand Küche - Essbereich komplett entfernt.
Ob das mit der Treppe so hinhaut wenn man den Eingangsbereich im EG hinbekommen wissen wir auch nicht, uns fehlen die Ideen im EG das alles unter einen Hut zu bekommen. Gäste-WC im EG wäre für uns optimal da es ein Nachbargebäude gibt mit einen kleinen Partyraum, auch kann man mal auf Toilette wenn man draußen etwas arbeitet und man muss dann nicht immer ins OG. Die Waschmaschine würde dann auch ins EG kommen, mit einen Schmutzwäscheschacht von OG ins EG.
Ich denke das ist erstmal genug. Wir kommen momentan nicht mehr weiter mit unseren Ideen, und sind hier auf das Forum gestoßen auf der Suche nach Möglichkeiten. Hoffe die Pläne sind lesbar und verständlich.
Es ist etwas mühselig, sich PDF über Acrobat Reader öffnen lassen zu müssen und sich den Text zu den Plänen zu merken (Wandschrank? Staubsauger?)
In einer Bestandsimmo müssen vorhandene Mauern von neuen unterschieden werden, außerdem tragende Wände von nicht tragenden.
Was soll man denn sagen?
Ich hab beim Schreiben schon wieder vergessen, was ich gesehen habe - einen sehr langen Flur hab ich gesehen... und ein fehlendes Schlafzimmer im EG.
Insofern wäre es hilfreich, wenn Du die Bilder in Jpgs einstellst und die Änderungen in den Plänen rot markierst... oder so.
Grüsse
In einer Bestandsimmo müssen vorhandene Mauern von neuen unterschieden werden, außerdem tragende Wände von nicht tragenden.
Was soll man denn sagen?
Ich hab beim Schreiben schon wieder vergessen, was ich gesehen habe - einen sehr langen Flur hab ich gesehen... und ein fehlendes Schlafzimmer im EG.
Insofern wäre es hilfreich, wenn Du die Bilder in Jpgs einstellst und die Änderungen in den Plänen rot markierst... oder so.
Grüsse
Für die Beurteilung vieler Sachen fehlen Maße wie Wandlängen, Brüstungshöhen usw. Nordpfeil in den Zeichnungen, damit man sich nicht mühsam im Text eine Ausrichtung suchen muss und die dann auf die Zeichnung gedanklich umsetzen muss 😉
Was ist mit dem DG? Soll das noch erreichbar sein? Wäre das nicht noch zusätzlicher Platz?
Die neue Treppe wird so vermutlich nicht funktionieren, es ist der Hauptaufgang für die OG-Wohnung, und, wenn das Sofa noch halbwegs in gesunder Entfernung zur Fernsehwand stehen soll, bleibt kein Platz um nach der Treppe den Raum zu betreten. Ecksofa mit Schenkellängen von 180x200 .. ist das realistisch?
Die Ankleide erscheint mir als sinnlos verschwendete über 8 qm .. Brüstungshöhe des Fensters? Wo willst du da Schränke stellen? Ebenso Schlafzimmer .. wie soll das Bett stehen?
Badezimmer mit Schiebetür, das würde ich echt überlegen.
Wirklich schöne große Kinderzimmer sind es allerdings geworden 😉
Ich denke, hier hilft vor allem ein Architekt.
Was ist mit dem DG? Soll das noch erreichbar sein? Wäre das nicht noch zusätzlicher Platz?
Die neue Treppe wird so vermutlich nicht funktionieren, es ist der Hauptaufgang für die OG-Wohnung, und, wenn das Sofa noch halbwegs in gesunder Entfernung zur Fernsehwand stehen soll, bleibt kein Platz um nach der Treppe den Raum zu betreten. Ecksofa mit Schenkellängen von 180x200 .. ist das realistisch?
Die Ankleide erscheint mir als sinnlos verschwendete über 8 qm .. Brüstungshöhe des Fensters? Wo willst du da Schränke stellen? Ebenso Schlafzimmer .. wie soll das Bett stehen?
Badezimmer mit Schiebetür, das würde ich echt überlegen.
Wirklich schöne große Kinderzimmer sind es allerdings geworden 😉
Ich denke, hier hilft vor allem ein Architekt.
Habe es mal als JPG Datei gemacht. Ein wichtiges Detail habe ich vergessen zu sagen. Die beiden Grundriss Pläne die bemasst sind, sind die vom Haus im IST-Zustand. Die anderen beiden unserer Entwurf.
Habe die Neuen Wände und Türen rot markiert. Wie bekomme ich raus welche Wand tragend ist und welche nicht? Ich habe die alten Baupläne von den 60er Jahren noch im Schrank, sieht man das daraus?
Das DG haben wir geplant nur noch über eine Zugtreppe zu erreichen. Da das Haus mal einen Anbau bekommen hat ist der obere Teil auf dem Plan unmöglich auszubauen da er eine Stufe höher ist als der untere, beim Rest müsste man schauen was möglich ist und ob es sich dann lohnt vom Platz her. Bis jetzt haben wir das nicht mit geplant.
Zur Treppe ist das eben nur ein Vorschlag auf den Plan, ob und wie das funktionieren soll wissen wir eben auch nicht und brauchen Hilfe.
Im Schlafzimmer haben wir keinen Schrank, nur eine Kommode und das Bett und kommen so zurecht weil es eben recht klein ist und wir mit Bett keinen Schrank irgendwie hinstellen können der groß genug ist für beide. Deswegen auch das Ankleidezimmer. Da haben wir aber an eine offene Schrankvariante gedacht und dachten der Platz reicht aus?
Schiebetür im Badezimmer ist richtig, da tendieren wir eher zu einer normalen.
Danke
Gruß Gerry




Habe die Neuen Wände und Türen rot markiert. Wie bekomme ich raus welche Wand tragend ist und welche nicht? Ich habe die alten Baupläne von den 60er Jahren noch im Schrank, sieht man das daraus?
Das DG haben wir geplant nur noch über eine Zugtreppe zu erreichen. Da das Haus mal einen Anbau bekommen hat ist der obere Teil auf dem Plan unmöglich auszubauen da er eine Stufe höher ist als der untere, beim Rest müsste man schauen was möglich ist und ob es sich dann lohnt vom Platz her. Bis jetzt haben wir das nicht mit geplant.
Zur Treppe ist das eben nur ein Vorschlag auf den Plan, ob und wie das funktionieren soll wissen wir eben auch nicht und brauchen Hilfe.
Im Schlafzimmer haben wir keinen Schrank, nur eine Kommode und das Bett und kommen so zurecht weil es eben recht klein ist und wir mit Bett keinen Schrank irgendwie hinstellen können der groß genug ist für beide. Deswegen auch das Ankleidezimmer. Da haben wir aber an eine offene Schrankvariante gedacht und dachten der Platz reicht aus?
Schiebetür im Badezimmer ist richtig, da tendieren wir eher zu einer normalen.
Danke
Gruß Gerry
Ähnliche Themen