ᐅ Massivhaus-Einfamilienhaus 142 m² Wohnfläche, Fragen zu Grundrissen/Baukosten
Erstellt am: 26.09.13 14:27
B
baumann2013B
baumann201326.09.13 14:27Hallo Zusammen,
nachdem ich hier schon etwas im Forum gestöbert und bisher nur mitgelesen habe, möchte ich Euch gern auch unser Bauvorhaben vorstellen und Euch um Eure Meinungen zu unserer Grundrissidee und den bisher grob kalkulierten Kosten bitten. Folgende Eckdaten soll das Haus haben:
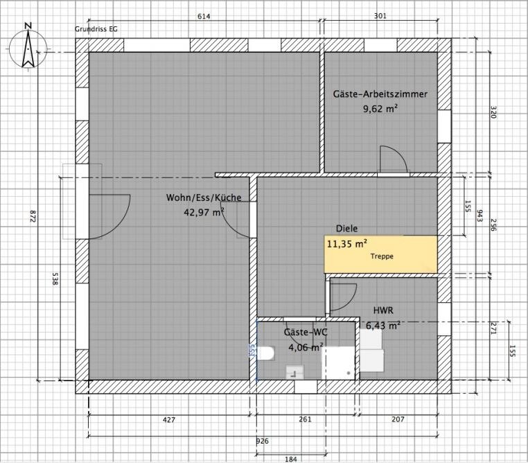
Folgenden Grundriss haben wir uns zusammengebastelt, welcher unseren bisherigen Vorstellungen am besten entgegen kommt:


Was denkt Ihr dazu? Vom ein oder anderen User habe ich schon gelesen, dass dieser es nicht optimal findet, wenn sich der Treppenaufgang direkt neben der Hauseingangstür befindet. Grundsätzlich kann ich das Argument mit dem Dreck nachvollziehen. Allerdings erscheint uns diese Variante als die beste im Hinblick auf den geringsten Platzverbrauch der Diele/des Treppenhauses. Ein von den Außenmaßen vergrößteres Haus erhöht ja auch gleich die Kosten in nicht unerheblichem Maße.
Zum Gästezimmer finden wir es besser, dieses im EG zu haben. Wir denken ja auch mal an´s "Alter" und hätten dann im EG gleich ein mögliches Schlafzimmer. Daher auch die zusätzliche Dusche im Gäste-WC des EG.
An das Thema Fenster haben wir noch keine großen Gedanken verschwendet. Die im Grundriss enthaltenen Fenster sind daher natürlich nicht in Stein gemeißelt und wir würden uns auch dazu über Ideen/Anregungen freuen.
Zum Thema Gesamtkosten würde uns interessieren, wie realistisch ihr folgende Aufstellung haltet:
205 T€ Hauspreis (=1.450 €/qm - Angebot liegt vor)
30 T€ Baunebenkosten
15 T€ Bemusterungspuffer + Extras
10 T€ Material für Außenanlagen, da überwiegend in Eigenleistung
-------
260 T€ Gesamtkosten ohne Grundstückskosten
Seht ihr da noch Potential nach unten, da uns das insgesamt doch etwas hoch vorkommt? Über weitere Anregungen sind wir natürlich auch dankbar.


nachdem ich hier schon etwas im Forum gestöbert und bisher nur mitgelesen habe, möchte ich Euch gern auch unser Bauvorhaben vorstellen und Euch um Eure Meinungen zu unserer Grundrissidee und den bisher grob kalkulierten Kosten bitten. Folgende Eckdaten soll das Haus haben:
- Massivhaus-Einfamilienhaus mit rd. 142 qm Wohnfläche und Satteldach
- keine Erker/Balkone etc.
- Bauort Sachsen/Chemnitz
- "normales Einfamilienhaus" für 4 Personen + eine Gäste-/Arbeitszimmer
- leicht hängiges Grundstück von Nord nach Süd - Größe knapp 700 qm
Folgenden Grundriss haben wir uns zusammengebastelt, welcher unseren bisherigen Vorstellungen am besten entgegen kommt:
Was denkt Ihr dazu? Vom ein oder anderen User habe ich schon gelesen, dass dieser es nicht optimal findet, wenn sich der Treppenaufgang direkt neben der Hauseingangstür befindet. Grundsätzlich kann ich das Argument mit dem Dreck nachvollziehen. Allerdings erscheint uns diese Variante als die beste im Hinblick auf den geringsten Platzverbrauch der Diele/des Treppenhauses. Ein von den Außenmaßen vergrößteres Haus erhöht ja auch gleich die Kosten in nicht unerheblichem Maße.
Zum Gästezimmer finden wir es besser, dieses im EG zu haben. Wir denken ja auch mal an´s "Alter" und hätten dann im EG gleich ein mögliches Schlafzimmer. Daher auch die zusätzliche Dusche im Gäste-WC des EG.
An das Thema Fenster haben wir noch keine großen Gedanken verschwendet. Die im Grundriss enthaltenen Fenster sind daher natürlich nicht in Stein gemeißelt und wir würden uns auch dazu über Ideen/Anregungen freuen.
Zum Thema Gesamtkosten würde uns interessieren, wie realistisch ihr folgende Aufstellung haltet:
205 T€ Hauspreis (=1.450 €/qm - Angebot liegt vor)
30 T€ Baunebenkosten
15 T€ Bemusterungspuffer + Extras
10 T€ Material für Außenanlagen, da überwiegend in Eigenleistung
-------
260 T€ Gesamtkosten ohne Grundstückskosten
Seht ihr da noch Potential nach unten, da uns das insgesamt doch etwas hoch vorkommt? Über weitere Anregungen sind wir natürlich auch dankbar.
Zum Grundriss:
EG: Ich finde die Lösung mit der Treppe im Dielenbereich optimal, der Dreck den man reinträgt ist für mich kein Argument, vielleicht auch deshalb, weil wir einen kleinen Windfang vorgesehen haben und nicht mit Schuhen im Haus herumlaufen (No-Go bei uns)
Ich würde den Hauswirtschaftsraum, wenn Ihr keinen Keller habt vielleicht an die Küche anreihen mit einem Zutritt von außen von der Garage/Carport. Wir haben uns gedacht den Hauswirtschaftsraum teils auch als Speisekammer zu nutzen. Beim Ess-/Wohnbereich solltet Ihr achten keinen zu schlauchförmigen Grundriss zu haben, da meiner Meinung nach 1. viel tote Fläche droht und 2. die räumliche Trennung Wohnen zu Essen schwierig wird, eher versetzt (z.B. mit Erker) finde ich schön, ist aber natürlich nur MEINE Meinung
OG: Spricht nicht viel dagegen aber ich denke, und so habe ich das bisher verstanden, eine im Verlauf schräg angesetzte Wand sollte soweit es geht vermieden werden. Ich kann den Einfluss auf die Statik aber nicht bewerten. Schön sieht es auch nicht aus.
Kosten: Ich denke der Hauspreis ist realistisch, nur die Frage was ist drin: KfW70? Klinker oder Putzfassade? Rollläden? Manuell oder Elektrisch? Was für Fenster (z.B. bodentief ja oder nein, foliert ja/nein)? Solar für Warmwasser? Sanitär Villeroy & Boch oder No-Name? Holztreppe/Betontreppe? Sonst alles Standard? Ich sage mal für 1.450€/qm darf man dann schon ruhig etwas an Ausstattung erwarten
Bau NBK sind realistisch, wir haben 22.000€ angesetzt und liegen aktuell im Soll teils sogar drunter. Für Außenanlagen würde ich eher 20.000€ anpeilen inkl. Carport und Außenzaun. Das sind meine Erfahrungen.
EG: Ich finde die Lösung mit der Treppe im Dielenbereich optimal, der Dreck den man reinträgt ist für mich kein Argument, vielleicht auch deshalb, weil wir einen kleinen Windfang vorgesehen haben und nicht mit Schuhen im Haus herumlaufen (No-Go bei uns)
Ich würde den Hauswirtschaftsraum, wenn Ihr keinen Keller habt vielleicht an die Küche anreihen mit einem Zutritt von außen von der Garage/Carport. Wir haben uns gedacht den Hauswirtschaftsraum teils auch als Speisekammer zu nutzen. Beim Ess-/Wohnbereich solltet Ihr achten keinen zu schlauchförmigen Grundriss zu haben, da meiner Meinung nach 1. viel tote Fläche droht und 2. die räumliche Trennung Wohnen zu Essen schwierig wird, eher versetzt (z.B. mit Erker) finde ich schön, ist aber natürlich nur MEINE Meinung
OG: Spricht nicht viel dagegen aber ich denke, und so habe ich das bisher verstanden, eine im Verlauf schräg angesetzte Wand sollte soweit es geht vermieden werden. Ich kann den Einfluss auf die Statik aber nicht bewerten. Schön sieht es auch nicht aus.
Kosten: Ich denke der Hauspreis ist realistisch, nur die Frage was ist drin: KfW70? Klinker oder Putzfassade? Rollläden? Manuell oder Elektrisch? Was für Fenster (z.B. bodentief ja oder nein, foliert ja/nein)? Solar für Warmwasser? Sanitär Villeroy & Boch oder No-Name? Holztreppe/Betontreppe? Sonst alles Standard? Ich sage mal für 1.450€/qm darf man dann schon ruhig etwas an Ausstattung erwarten
Bau NBK sind realistisch, wir haben 22.000€ angesetzt und liegen aktuell im Soll teils sogar drunter. Für Außenanlagen würde ich eher 20.000€ anpeilen inkl. Carport und Außenzaun. Das sind meine Erfahrungen.
M
Musketier26.09.13 17:31Die Treppe dürfte zu kurz sein. 15 Stufen x 26cm = 3,90m
Die Ausrichtung paßt überhaupt nicht. Auf der schönen Südseite sind Bad, Gäste-WC und Hauswirtschaftsraum.
Die schräge Wand geht auch nicht. 45° Wände sind schon zu vermeiden, aber so eine 70° Wand geht gar nicht.
Ob die eine Tragende Wand so ausreicht, wage ich auch zu bezweifeln.
Die Fenster und auch die Wohnraumgestaltung/Möblierung solltest du gleich mit in die Planung einfließen lassen.
Nur so siehst du, ob die Grundrisse sowohl innen, als auch die Ansichten von Außen passen.
In deiner Kostenaufstellung fehlt noch mindestens das Material für Belags und Malerarbeiten.
Die Ausrichtung paßt überhaupt nicht. Auf der schönen Südseite sind Bad, Gäste-WC und Hauswirtschaftsraum.
Die schräge Wand geht auch nicht. 45° Wände sind schon zu vermeiden, aber so eine 70° Wand geht gar nicht.
Ob die eine Tragende Wand so ausreicht, wage ich auch zu bezweifeln.
Die Fenster und auch die Wohnraumgestaltung/Möblierung solltest du gleich mit in die Planung einfließen lassen.
Nur so siehst du, ob die Grundrisse sowohl innen, als auch die Ansichten von Außen passen.
In deiner Kostenaufstellung fehlt noch mindestens das Material für Belags und Malerarbeiten.
B
backbone2326.09.13 18:31Selbst gezeichnet ... habt Ihr einen Architekten? Was ist das für ein Angebot?
Denke auch dass der Platz für die Treppe zu gering ist. Gästezimmer wird für ein späteres Schlafzimmer zu zweit wohl zu klein sein.
Die schräge Wand im OG finde ich auch furchtbar und das Bad ist auch nicht optimal. Kommt man rein, läuft man direkt auf die Dusche zu, von der man nicht unbedingt weiß ob die da überhaupt hinpasst (Dachschräge?!) und sonst hat mal viel verschenkten Platz.
Denke auch dass der Platz für die Treppe zu gering ist. Gästezimmer wird für ein späteres Schlafzimmer zu zweit wohl zu klein sein.
Die schräge Wand im OG finde ich auch furchtbar und das Bad ist auch nicht optimal. Kommt man rein, läuft man direkt auf die Dusche zu, von der man nicht unbedingt weiß ob die da überhaupt hinpasst (Dachschräge?!) und sonst hat mal viel verschenkten Platz.
Ich glaube baumann ging es um grundlegende Sachen, heisst die generelle Aufteilung. Dass die Treppe nicht passt und eventuell Längen und Breiten angepasst werden müssen sollte klar sein. Dadurch muss aber die grundlegende Aufteilung nicht geändert werden. So habe ich das aufgefasst. Der Grundriss scheint mit MySweetHome oder einer anderen Freeware gemacht zu sein. So sind wir auch an die Sache gegangen.
@Baumann: habt Ihr denn einen Festpreis pro qm mit freier Grundrissplanung oder wir kommen die 1450€/qm zustande??
@Baumann: habt Ihr denn einen Festpreis pro qm mit freier Grundrissplanung oder wir kommen die 1450€/qm zustande??
B
baumann201326.09.13 20:23Danke für Eure Meinungen. Ich setze das Zitat von aytex gleich mal vorweg:
Genau so ist es. Wir sind noch ganz am Anfang mit der Planung. Die Grundrisse sind mit dem Programm SweetHome3D entstanden und sind natürlich noch nicht auf jeden Zentimeter passend. Vielmehr sollte das erst mal als Grundlage für die allgemeine Raumaufteilung dienen. Und die Aufteilung der Räume, wenn man zusätzlich ein Gästezimmer haben möchte, ist gar nicht so einfach.
KfW70 ist nicht dabei, Putzfassade, manuelle Rollläden, Fenster noch nicht besprochen, Luftwärmepumpe, wobei wir Gas mit Solarthermie wollen (reduziert den Preis noch etwas), eingestemmte Holzwangentreppe, Marken für Sanitärobjekten noch nicht besprochen, Maler- und Bodenbelagsarbeiten incl. Material enthalten, Rest Standard, wobei "Standard" immer relativ ist. Ich denke an den 1.450 € lässt sich noch was machen bzw. zusätzliche Ausstattung dafür bekommen.
Die Treppe soll 1/4 gedreht sein. Ich dachte, da kommt man mit 3m Länge hin. Wir hatten das in nem Musterhaus mal an einer Beispieltreppe gemessen.
Mhm und mit der Ausrichtung der Räume hast Du schon recht, ich wollte die Räume im EG auch erst spiegeln (an Ost-West-Linie). Wir wollen allerdings im Süden an das Gebäude noch einen Doppelcarport ansetzen (geht sonst wo anders nicht richtig). Und da würde es eh Südsonne wegnehmen.
Die schräge Wand kann gerne noch weg, wenn es der Statik dienlich ist. Das würden wir noch mit der Architektin besprechen. Grundrisse mit Möbeln würde ich mal noch hochladen (bin mur grad nicht am PC). Bezüglich Maler/Bodenbeläge siehe weiter oben im Post.
Du hast Recht, ein großes Schlafzimmer wäre das Gästezimmer im Alter nicht. Mit dem Bad sind wir auch noch nicht ganz glücklich. Hast Du nen Alternativvorschlag? Grundsätzlich ist die Grundrissfindung nicht leicht. Ändert man an einem Raum etwas, hat es sofort Auswirkungen auf Nachbarräume, der wieder auf den nächsten Raum usw.
Wir hatten ursprünglich bei der Baufirma mit 130 qm angefragt bevor wir uns noch für ein Gästezimmer entschieden haben. Und das Angebot lag "runtergebrochen" ziemlich genau bei 1.450 €/qm.
aytex schrieb:
Ich glaube baumann ging es um grundlegende Sachen, heisst die generelle Aufteilung. Dass die Treppe nicht passt und eventuell Längen und Breiten angepasst werden müssen sollte klar sein. Dadurch muss aber die grundlegende Aufteilung nicht geändert werden. So habe ich das aufgefasst. Der Grundriss scheint mit MySweetHome oder einer anderen Freeware gemacht zu sein. So sind wir auch an die Sache gegangen.
Genau so ist es. Wir sind noch ganz am Anfang mit der Planung. Die Grundrisse sind mit dem Programm SweetHome3D entstanden und sind natürlich noch nicht auf jeden Zentimeter passend. Vielmehr sollte das erst mal als Grundlage für die allgemeine Raumaufteilung dienen. Und die Aufteilung der Räume, wenn man zusätzlich ein Gästezimmer haben möchte, ist gar nicht so einfach.
aytex schrieb:
Ich denke der Hauspreis ist realistisch, nur die Frage was ist drin: kfw70? Klinker oder Putzfassade? Rollläden? Manuell oder Elektrisch? Was für Fenster (z.B. bodentief ja oder nein, foliert ja/nein)? Solar für Warmwasser? Sanitär Villeroy & Boch oder No-Name? Holztreppe/Betontreppe? Sonst alles Standard? Ich sage mal für 1.450€/qm darf man dann schon ruhig etwas an Ausstattung erwarten
KfW70 ist nicht dabei, Putzfassade, manuelle Rollläden, Fenster noch nicht besprochen, Luftwärmepumpe, wobei wir Gas mit Solarthermie wollen (reduziert den Preis noch etwas), eingestemmte Holzwangentreppe, Marken für Sanitärobjekten noch nicht besprochen, Maler- und Bodenbelagsarbeiten incl. Material enthalten, Rest Standard, wobei "Standard" immer relativ ist. Ich denke an den 1.450 € lässt sich noch was machen bzw. zusätzliche Ausstattung dafür bekommen.
Musketier schrieb:
Die Treppe dürfte zu kurz sein. 15 Stufen x 26cm = 3,90m
Die Ausrichtung paßt überhaupt nicht. Auf der schönen Südseite sind Bad, Gäste-WC und Hauswirtschaftsraum.
Die schräge Wand geht auch nicht. 45° Wände sind schon zu vermeiden, aber so eine 70° Wand geht gar nicht.
Ob die eine Tragende Wand so ausreicht, wage ich auch zu bezweifeln.
Die Fenster und auch die Wohnraumgestaltung/Möblierung solltest du gleich mit in die Planung einfließen lassen.
Nur so siehst du, ob die Grundrisse sowohl innen, als auch die Ansichten von Außen passen.
In deiner Kostenaufstellung fehlt noch mindestens das Material für Belags und Malerarbeiten.
Die Treppe soll 1/4 gedreht sein. Ich dachte, da kommt man mit 3m Länge hin. Wir hatten das in nem Musterhaus mal an einer Beispieltreppe gemessen.
Mhm und mit der Ausrichtung der Räume hast Du schon recht, ich wollte die Räume im EG auch erst spiegeln (an Ost-West-Linie). Wir wollen allerdings im Süden an das Gebäude noch einen Doppelcarport ansetzen (geht sonst wo anders nicht richtig). Und da würde es eh Südsonne wegnehmen.
Die schräge Wand kann gerne noch weg, wenn es der Statik dienlich ist. Das würden wir noch mit der Architektin besprechen. Grundrisse mit Möbeln würde ich mal noch hochladen (bin mur grad nicht am PC). Bezüglich Maler/Bodenbeläge siehe weiter oben im Post.
backbone23 schrieb:
Gästezimmer wird für ein späteres Schlafzimmer zu zweit wohl zu klein sein.
Die schräge Wand im OG finde ich auch furchtbar und das Bad ist auch nicht optimal. Kommt man rein, läuft man direkt auf die Dusche zu, von der man nicht unbedingt weiß ob die da überhaupt hinpasst (Dachschräge?!) und sonst hat mal viel verschenkten Platz.
Du hast Recht, ein großes Schlafzimmer wäre das Gästezimmer im Alter nicht. Mit dem Bad sind wir auch noch nicht ganz glücklich. Hast Du nen Alternativvorschlag? Grundsätzlich ist die Grundrissfindung nicht leicht. Ändert man an einem Raum etwas, hat es sofort Auswirkungen auf Nachbarräume, der wieder auf den nächsten Raum usw.
aytex schrieb:
@Baumann: habt Ihr denn einen Festpreis pro qm mit freier Grundrissplanung oder wir kommen die 1450€/qm zustande??
Wir hatten ursprünglich bei der Baufirma mit 130 qm angefragt bevor wir uns noch für ein Gästezimmer entschieden haben. Und das Angebot lag "runtergebrochen" ziemlich genau bei 1.450 €/qm.
Ähnliche Themen