Steigung Hofeinfahrt / Höhenunterschied

4,80 Stern(e) 4 Votes
Zuletzt aktualisiert 18.11.2025
Sie befinden sich auf der Seite 3 der Diskussion zum Thema: Steigung Hofeinfahrt / Höhenunterschied
>> Zum 1. Beitrag <<

E

exto1791

Ja, also vorneweg das mit der zusätzlichen Stufe ist sicher das einfachste.

Hab mich glaube aber vorher schlecht ausgedrückt. Alternativ wäre die Garage höher setzen und im roten Bereich eine Mauer um den Höhenunterschied auszugleichen und ab dem grünen Bereich Gefälle zur Straße. Ein Gefälle kann ja ein fließender Übergang sein und muss in 2D gesprochen keine rechten Winkel haben.
Aber dadurch opferst natürlich Fläche im roten Bereich und wäre sicher auch eine teure Lösung.
Von daher schade dass der GU nicht mitgedacht hat, aber die Stufe am Haus ist sicher das kleinere Übel. Anhang anzeigen 65987
Verstehe ganz genau was du meinst - hatten wir auch überlegt, aber da nehmen wir tatsächlich lieber die zusätzliche stufe um so einen geringeren Höhenunterschied zu haben, der sich definitiv auch deutlich kostengünstiger realisieren lässt.

Ja.. ärgert uns auch.. keine Ahnung wieso die Höhe so geplant wurde. Heute Abend haben wir einen Termin auf der Baustelle um das ganze Dilemma zu besprechen - da werden wir mal fragen, wieso solch ein Mist überhaupt geplant wurde :(

Letztlich aber definitiv alles noch im Rahmen des möglichen und nicht weiter tragisch für uns.
 
E

exto1791

und das ganze mit erde einfach aufschütten?
Die Hofeinfahrt wurde komplett mit Schotter befüllt, da ist keine Erde drin.

Somit wird auch der Rest um alles relativ eben zu ziehen mit Schotter aufgefüllt. Den Streifen neben der Garage, bzw. die Steigung die abgefangen wird, kann man definitiv auch mit Erde befüllen, da haben wir noch ganz ganz viel im Garten übrig :D
 
11ant

11ant

22cm wären es von Straßenniveau bis Garagenhöhe. Die Garage sitzt aber aktuell nicht auf Bordstein/Straßenhöhe sondern auf der Unterkante der 2. Stufe.
Wenn ich die Garage auf Bordsteinhöhe setze, dann muss ich noch deutlich mehr Stufen einplanen.
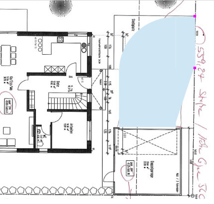
Warum auch immer die Garage nicht auf ihrer Planhöhe steht, mit Stufen sehe ich da garnichts. Aus meiner Sicht kann die Auffahrt (siehe meine Zeichnung) von den zwei pinken Punkten ausgehend, als beliebig schiefe / verdrehte Ebene auf die Toreinfahrt zulaufen.

Grundrissplan eines Wohnhauses mit Eingangsbereich und Treppenhaus
 
E

exto1791

Warum auch immer die Garage nicht auf ihrer Planhöhe steht, mit Stufen sehe ich da garnichts. Aus meiner Sicht kann die Auffahrt (siehe meine Zeichnung) von den zwei pinken Punkten ausgehend, als beliebig schiefe / verdrehte Ebene auf die Toreinfahrt zulaufen.
Selbstverständlich! Das war aber nie der Punkt... Der Punkt war die Steigung an der Garage mit knappen 40cm (was wir zumindest dachten :D)

Gestern hat sich nochmals herausgestellt, dass wir den Bezugspunkt von der rechten Hausecke genommen hatten anstatt den Punkt von der linken Ecke. Ist aber auch keinem Menschen aufgefallen im privaten Umfeld, sowie auch selbst dem GU nicht auf den ersten Blick.
Sind jetzt erleichtert!

Haben nun 18cm Steigung am Garageneck als höchsten Punkt (das ist definitiv möglich entsprechend abzufangen) und die "Einfahrt" fällt dann mit ca. 5% über die ca. 7 Meter entsprechend ab.

Ein ziemliches Wirrwarr - aber jetzt gott sei dank geklärt und dies ohne Einschränkungen :)

Danke euch auch für die Hilfe / Argumente / Ideen!!
 
S

Steffi33

Falls doch noch Bedarf besteht… Vielleicht könnte man ja eine weitere Stufe ausserhalb des Eingangspodestes setzen?
 
Zuletzt aktualisiert 18.11.2025
Im Forum Bauplanung gibt es 5070 Themen mit insgesamt 100807 Beiträgen


Ähnliche Themen zu Steigung Hofeinfahrt / Höhenunterschied
Nr.ErgebnisBeiträge
1 2 Vollgeschosse, Durchgang Garage, Hauswirtschaftsraum unter Treppe - Seite 325
2Steigung bei Hofeinfahrt? 16
3Gas,- Wasser, Strom,- Telefonleitungen überbauen mit Garage? 13
4Steigung Garageneinfahrt zu steil? 10
5Planung der Auffahrt für großes Hanggrundstück - 25% Steigung 43
6Abdichtung der Garage mit Betonboden? - Seite 421
7Abstandsfläche RLP bei einem §34BauGB Grenzbebauung - Seite 271
8Garage direkt an Einfamilienhaus. Fundament ausreichend? 20
9Hausfinanzierung - Haus, Garage und Bodenplatte ca. 290.000 EUR 11
10Technikraum in Garage einbauen? Ist dies möglich? 35
11Beheizung Garage. Was ist die beste / günstigste Lösung? 10
12Wo stellen wir Haus und Garage hin? 10
13Kostenschätzung Einfamilienhaus mit Garage 11
14Bungalow mit 140qm und Garage im Grundriss 13
15Erstes Angebot, 157m2 mit Keller, KFW 70, Garage 14
16Grundrissentwurf eines Passivhauses 170m² mit Garage - Seite 218
17Garage: Gestaltungsmöglichkeit des Daches, Erscheinungsbild 14
18Hausausrichtung / Hauseingang und Garage - Seite 214
19Begehbare Garage (Terrasse) 11
20Planung optimale Anordnung Haus, Garage und Einfahrt 13

Oben