ᐅ Stadtvilla Walmdach 140m². Bitte um Tipps!
Erstellt am: 12.06.19 12:59
Hallo Haus Bau Community,
nach langem nur mitlesen hier im Forum, möchte ich nun auch mein Bauvorhaben vorstellen.
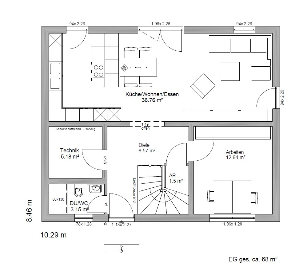
Meine Familie und ich planen eine Stadtvilla mit ca. 140m² Wohnfläche. Das Grundstück war schon in Besitz und musste noch geteilt werden. So dass wir eine Baufläche von 544m² zur Verfügung haben. Einen passenden Generalunternehmer haben wir auch schon gefunden. Hier unser erster gemeinsamer ausgearbeiteter Entwurf.
Als Abstellfläche und Lager soll hier noch eine zu planende Garage dienen, zusätzlich zu dem Dachboden. Ein Keller passt nicht in unser Budget aufgrund der Nähe zum See.
Wir würden uns sehr über evtl. Veränderungen oder Vorschläge freuen.
Vielen Dank vorab!
Bebauungsplan/Einschränkungen
Größe des Grundstücks 544m²
Hang nein
Anzahl Stellplatz 1
Geschossigkeit 2
Dachform Walmdach
Stilrichtung modern
Anforderungen der Bauherren
Keller, Geschosse nein, 2
Anzahl der Personen, Alter 4, 37,35,3,1
Raumbedarf im EG, OG 70 , 70
Büro: Home Office
offene Küche, Kochinsel offene Küche mit Kochinsel
Anzahl Essplätze 1
Kamin nein
Musik/Stereowand nein
Balkon, Dachterrasse nein
Garage, Carport Garage
Nutzgarten, Treibhaus nein
Hausentwurf
Von wem stammt die Planung:
-Planer eines Bauunternehmens ja
-Do-it-Yourself nein
Was gefällt nicht? Warum? - Der Essplatz erscheint zu klein, da auch die Idee mit der sitzbank an der Kochinsel.
- Ungünstiger Laufweg zur Terrasse raus. Daher auch die Option über den Wohnbereich in den Garten zu kommen.
Preisschätzung lt Architekt/Planer: 335.000 inkl. Baunebenkosten
favorisierte Heiztechnik: Wärmepumpe





nach langem nur mitlesen hier im Forum, möchte ich nun auch mein Bauvorhaben vorstellen.
Meine Familie und ich planen eine Stadtvilla mit ca. 140m² Wohnfläche. Das Grundstück war schon in Besitz und musste noch geteilt werden. So dass wir eine Baufläche von 544m² zur Verfügung haben. Einen passenden Generalunternehmer haben wir auch schon gefunden. Hier unser erster gemeinsamer ausgearbeiteter Entwurf.
Als Abstellfläche und Lager soll hier noch eine zu planende Garage dienen, zusätzlich zu dem Dachboden. Ein Keller passt nicht in unser Budget aufgrund der Nähe zum See.
Wir würden uns sehr über evtl. Veränderungen oder Vorschläge freuen.
Vielen Dank vorab!
Bebauungsplan/Einschränkungen
Größe des Grundstücks 544m²
Hang nein
Anzahl Stellplatz 1
Geschossigkeit 2
Dachform Walmdach
Stilrichtung modern
Anforderungen der Bauherren
Keller, Geschosse nein, 2
Anzahl der Personen, Alter 4, 37,35,3,1
Raumbedarf im EG, OG 70 , 70
Büro: Home Office
offene Küche, Kochinsel offene Küche mit Kochinsel
Anzahl Essplätze 1
Kamin nein
Musik/Stereowand nein
Balkon, Dachterrasse nein
Garage, Carport Garage
Nutzgarten, Treibhaus nein
Hausentwurf
Von wem stammt die Planung:
-Planer eines Bauunternehmens ja
-Do-it-Yourself nein
Was gefällt nicht? Warum? - Der Essplatz erscheint zu klein, da auch die Idee mit der sitzbank an der Kochinsel.
- Ungünstiger Laufweg zur Terrasse raus. Daher auch die Option über den Wohnbereich in den Garten zu kommen.
Preisschätzung lt Architekt/Planer: 335.000 inkl. Baunebenkosten
favorisierte Heiztechnik: Wärmepumpe
Zum EG
Die Haustechnik wird nicht funktionieren.
Schaltschrank, Hausanschlüsse, Wärmepumpe, WA, Trockner, das wird da nicht reinpassen.
Essbereich wirkt wirklich ziemlich klein. Mit 4 Essplätzen geht es noch danach wird es knapp
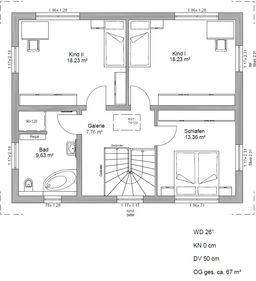
OG
Wie sind die Abmessungen vom Schlafzimmer?
Wollt ihr wirklich nur 1 Waschbecken?
Hier fehlt mir ein kleiner Abstellraum oder auch ein kleiner Hauswirtschaftsraum (würde den Miniraum unten entlasten)
Die Haustechnik wird nicht funktionieren.
Schaltschrank, Hausanschlüsse, Wärmepumpe, WA, Trockner, das wird da nicht reinpassen.
Essbereich wirkt wirklich ziemlich klein. Mit 4 Essplätzen geht es noch danach wird es knapp
OG
Wie sind die Abmessungen vom Schlafzimmer?
Wollt ihr wirklich nur 1 Waschbecken?
Hier fehlt mir ein kleiner Abstellraum oder auch ein kleiner Hauswirtschaftsraum (würde den Miniraum unten entlasten)
haydee schrieb:
Zum EG
Die Haustechnik wird nicht funktionieren.
Schaltschrank, Hausanschlüsse, Wärmepumpe, WA, Trockner, das wird da nicht reinpassen.
Essbereich wirkt wirklich ziemlich klein. Mit 4 Essplätzen geht es noch danach wird es knapp
Da wir eine Luft Luft Wärmepumpe planen, soll das alles so passen laut GU. Wir haben extra den Schaltschrank aus der Diele noch weggeplant in den Haustechnik Raum.
Ggf. würde ich die Waschmaschine noch in das OG planen um sich den Laufweg zu sparen.
Deshalb die Lösung mit der Sitzbank, um ggf. noch Gäste mit an den Tisch zu bekommen.
haydee schrieb:
OG
Wie sind die Abmessungen vom Schlafzimmer?
Wollt ihr wirklich nur 1 Waschbecken?
Hier fehlt mir ein kleiner Abstellraum oder auch ein kleiner Hauswirtschaftsraum (würde den Miniraum unten entlasten)Die Abmessungen sind ca. 3,6m x 3,4m macht ca. 12,2m²
Wird das Bad nicht zu klein mit 2 Waschbecken?
Ich sehe die Wäsche auch schon im OG in der Diele stehen...
Mal bitte Garderobe für 4 Personen mit Kleinkind und Babywagen einzeichnen. Außerdem komplette Technik inkl. Waschmaschine in den Hauswirtschaftsraum einzeichnen.
Insgesamt zu wenig Abstell- und Wirtschaftsfläche. Braucht es wirklich dieses Büro / Gästezimmer? Das wird sowieso zur Rumpelkammer bei der Platznot - jede Wette!
Insgesamt zu wenig Abstell- und Wirtschaftsfläche. Braucht es wirklich dieses Büro / Gästezimmer? Das wird sowieso zur Rumpelkammer bei der Platznot - jede Wette!
manu1984 schrieb:
Da wir eine Luft Luft Wärmepumpe planen, soll das alles so passen laut GU.Baut ihr Passivhaus? Kann ich mir bei dem Budget nicht ganz vorstellen.
Ähnliche Themen