ᐅ Rückmeldung zur Planung für 4-köpfige Familie gewünscht !
Erstellt am: 16.10.13 17:20
E
elvisthekingE
elvistheking16.10.13 17:20Hallo liebe Forumsteilnehmer,
bei uns wird es nun ernst mit der Planung, und wir müssen uns nun festlegen für das Baugesuch, Statik etc.
Zunächst haben wir nun einen tollen Planer gefunden, mit dem wir auch das Haus bauen wollen, sofern wir es uns Leisten können... Ich und meine Frau sind leider eine mittelschwere Katastrophe wenn es darum geht Entscheidungen zu treffen 🙄
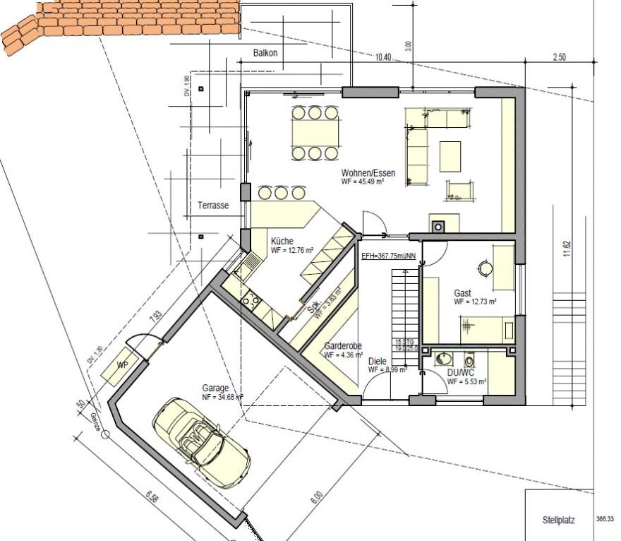
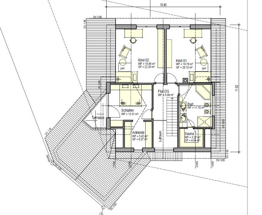
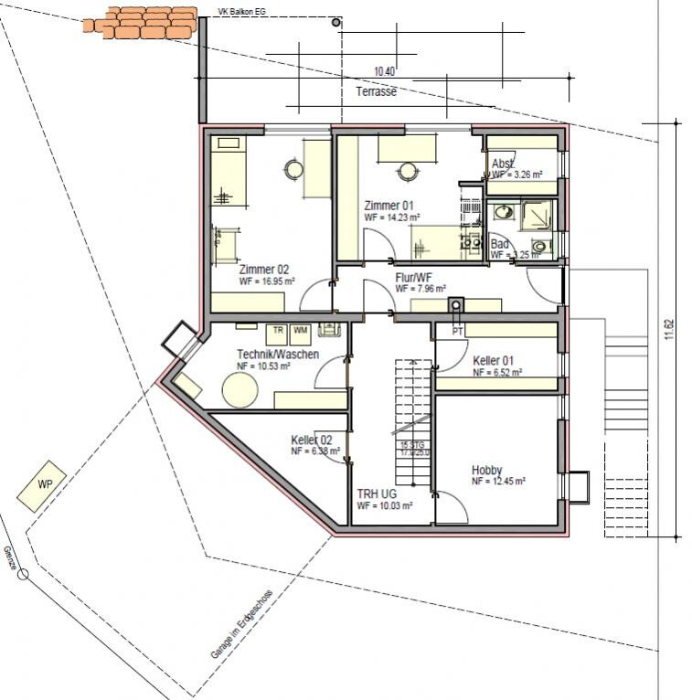
Wir wollen die Einliegerwohnung im UG zunächst vermieten, aber evtl. (so stellt man sich das wohl mal vor) perspektivisch auch in die Richtung Mehrgenerationenhaus denken und somit das Haus recht flexibel gestalten. Der bebauungsplan lässt keine Luft was den Kniestock betrifft.
Fraglich ist für uns die Küchengestaltung und ob wir die Speisenkammer nicht lieber in die Richtung verlagern, wo derzeit der Herd eingezeichnet ist und somit den Küchenraum breiter gestalten.
Gibt es Anregungen / Hinweise zu der Planung ?
Ich danke Euch für die Zeit die ihr uns schenkt !
LG



bei uns wird es nun ernst mit der Planung, und wir müssen uns nun festlegen für das Baugesuch, Statik etc.
Zunächst haben wir nun einen tollen Planer gefunden, mit dem wir auch das Haus bauen wollen, sofern wir es uns Leisten können... Ich und meine Frau sind leider eine mittelschwere Katastrophe wenn es darum geht Entscheidungen zu treffen 🙄
Wir wollen die Einliegerwohnung im UG zunächst vermieten, aber evtl. (so stellt man sich das wohl mal vor) perspektivisch auch in die Richtung Mehrgenerationenhaus denken und somit das Haus recht flexibel gestalten. Der bebauungsplan lässt keine Luft was den Kniestock betrifft.
Fraglich ist für uns die Küchengestaltung und ob wir die Speisenkammer nicht lieber in die Richtung verlagern, wo derzeit der Herd eingezeichnet ist und somit den Küchenraum breiter gestalten.
Gibt es Anregungen / Hinweise zu der Planung ?
Ich danke Euch für die Zeit die ihr uns schenkt !
LG
M
Musketier16.10.13 18:42Auf den ersten Blick gefällt mir der Grundriss. Ist mal was besonderes und meiner Meinung nach auch gut durchdacht..
Für die bessere Vorstellungskraft insbesondere bei den Terrassen wären die Ansichten nicht schlecht.
Zum Grundriss selbst.
Wie du richtig erkannt hast, dürfte die Speisekammer an dieser Stelle schlecht zu möblieren sein.
Die würde ich auch versuchen anders zu lösen.
Bei der Einliegerwohnung würde ich nochmal prüfen, ob die Küchenzeile in dem Zimmer 01 Sinn macht.
Von der Zimmergröße würde ich eher eine Wohnküche in Zimmer 02 machen und in Zimmer 01 einen Schlafraum.
Eventuell könnte man Zimmer 01 und den Flur sogar noch etwas verkleinern und dies Zimmer 02 zuschlagen.
Wasser bzw. Abwasser dürfte an der Wand zum Waschraum sowieso verfügbar sein.
Eventuell auch nochmal prüfen, ob die Tür zum Keller nicht zum Keller zu geöffnet werden kann, insbesondere, wenn es dann als Mehrgenerationenhaus dienen soll und die Tür öfters genutzt wird.
Ansonsten nix zu meckern. Würde ich sofort einziehen.
Für die bessere Vorstellungskraft insbesondere bei den Terrassen wären die Ansichten nicht schlecht.
Zum Grundriss selbst.
Wie du richtig erkannt hast, dürfte die Speisekammer an dieser Stelle schlecht zu möblieren sein.
Die würde ich auch versuchen anders zu lösen.
Bei der Einliegerwohnung würde ich nochmal prüfen, ob die Küchenzeile in dem Zimmer 01 Sinn macht.
Von der Zimmergröße würde ich eher eine Wohnküche in Zimmer 02 machen und in Zimmer 01 einen Schlafraum.
Eventuell könnte man Zimmer 01 und den Flur sogar noch etwas verkleinern und dies Zimmer 02 zuschlagen.
Wasser bzw. Abwasser dürfte an der Wand zum Waschraum sowieso verfügbar sein.
Eventuell auch nochmal prüfen, ob die Tür zum Keller nicht zum Keller zu geöffnet werden kann, insbesondere, wenn es dann als Mehrgenerationenhaus dienen soll und die Tür öfters genutzt wird.
Ansonsten nix zu meckern. Würde ich sofort einziehen.
E
elvistheking16.10.13 19:03Ich habe auch nix zu meckern 🙂
Wenn es ein Mehrgenerationenhaushalt werden sollte, würde ich bedenken, dass UG nicht altersgerecht bzw barrierefrei wäre... eventuell auch etwas zu klein.
Speis wäre auch überarbeitungswürdig, zumal es sehr eng werden kann. Eventuell eine kleinere Nummer und die Schränke in U-Form zur Tür einrichten. Hat man mE mehr von.
Wenn es ein Mehrgenerationenhaushalt werden sollte, würde ich bedenken, dass UG nicht altersgerecht bzw barrierefrei wäre... eventuell auch etwas zu klein.
Speis wäre auch überarbeitungswürdig, zumal es sehr eng werden kann. Eventuell eine kleinere Nummer und die Schränke in U-Form zur Tür einrichten. Hat man mE mehr von.
M
Musketier17.10.13 09:33ypg schrieb:
Ich habe auch nix zu meckern 🙂@ elvistheking
Da kannst du dir was drauf einbilden. ypg findet sonst immer was.;)
ypg schrieb:
Wenn es ein Mehrgenerationenhaushalt werden sollte, würde ich bedenken, dass UG nicht altersgerecht bzw barrierefrei wäre... eventuell auch etwas zu klein.Ich hab noch keine richtige Lösung wie, aber vielleicht könnte man den kleinen Keller so gestalten, dass er flexibel nutzbar ist. Entweder als Abstellraum für die Einliegerwohnung-Wohnung oder als Keller bei der Hauptwohnung. Nur aufpassen weil da der Schornsteinfeger vermutlich rein muß.
Was mir an der Außenansicht aufgefallen ist, sind die Riesen Fenster mit Schräge und Festverglassung oben und unten. Habe sowas Ähnliches in meiner Wohnung und musste jetzt tauschen. Da kannst den Geldbeutel mal riecht weit aufmachen. Wie putzt du eigentlich den oberen Teil mit der Schräge?
Ähnliche Themen