Hallo an alle,
in diesem Thread https://www.hausbau-forum.de/threads/bitte-Meinungen-zum-Altbau-Grundriss.30321/ hatte ich schon mal unser Projekt vorgestellt und um Meinungen gebeten. Wir sind immer noch dabei, uns den besten Grundriss fürs EG zu überlegen. Da sich ein bisschen was in der bisherigen Planung geändert hat und wir noch flexibler geworden sind, habe ich ein neues Thema aufgemacht. Damit es diesbezüglich keine Rückfragen gibt, hier der Fragebogen.
Bebauungsplan/Einschränkungen
Größe des Grundstücks 1141m2
Hang nein
Grundflächenzahl, Geschossflächenzahl, Baufenster, Baulinie und -grenze, Randbebauung egal, da Gebäude bereits steht
Anzahl Stellplatz links und rechts des Hauses gibt es Einzelgaragen, von der rechten Garage kann man hinten raus und dann durch die Seitentür in die Küche
Geschossigkeit Keller, Erdgeschoss, Dachgeschoss
Dachform Satteldach Ost-West
Stilrichtung mal schauen, was draus wird
Ausrichtung Eingang im Osten, Terrasse und Garten Richtung Westen
Maximale Höhen/Begrenzungen
weitere Vorgaben
[U]Anforderungen der Bauherren[/U]
Stilrichtung, Dachform, Gebäudetyp, Keller, Geschosse s.o.
Anzahl der Personen, Alter momentan 2 (29 und 37), hoffentlich bald 2 Kinder
Raumbedarf im EG Küche, Wohnzimmer, Essbereich, 2 Kinderzimmer, Duschbad (das 2. WC werden wir streichen), gerne Windfang, Platz für Garderobe
OG Da haben wir einen passenden Grundriss für uns mit folgenden Räumen: Schlafzimmer, Bad, Ankleidebereich, Hauswirtschaftsraum, Büro
Büro: Familiennutzung oder Homeoffice? Zum Arbeiten, aber kein Homeoffice
Schlafgäste pro Jahr unbekannt, die brauchen aber auf jeden Fall kein extra Zimmer
offene oder geschlossene Architektur gerne offen
konservativ oder moderne Bauweise vorgegeben
offene Küche, Kochinsel wenn möglich gerne
Anzahl Essplätze 6 mit Ausziehmöglichkeit
Kamin nein
Musik/Stereowand nein
Balkon, Dachterrasse gibt es im OG
Garage, Carport s.o. 2 Einzelgaragen
Nutzgarten, Treibhaus gerne
weitere Wünsche/Besonderheiten/Tagesablauf, gern auch Begründungen, warum dieses oder das nicht sein soll
[U]Hausentwurf[/U]
Von wem stammt die Planung:
-Planer eines Bauunternehmens
-Architekt
-Do-it-Yourself aufgebaut auf dem Bestandsgrundriss
Was gefällt besonders? Warum? s.u.
Was gefällt nicht? Warum? s.u.
Preisschätzung lt Architekt/Planer: kA
Persönliches Preislimit fürs Haus, inkl Ausstattung: kA
favorisierte Heiztechnik: Wärmepumpe, Kaminschacht entfällt
[U]Wenn Ihr verzichten müsst,[/U] auf welche Details/Ausbauten
-könnt Ihr verzichten: 2. WC im EG
-könnt Ihr nicht verzichten: gleich große Kinderzimmer, Platz für Garderobe
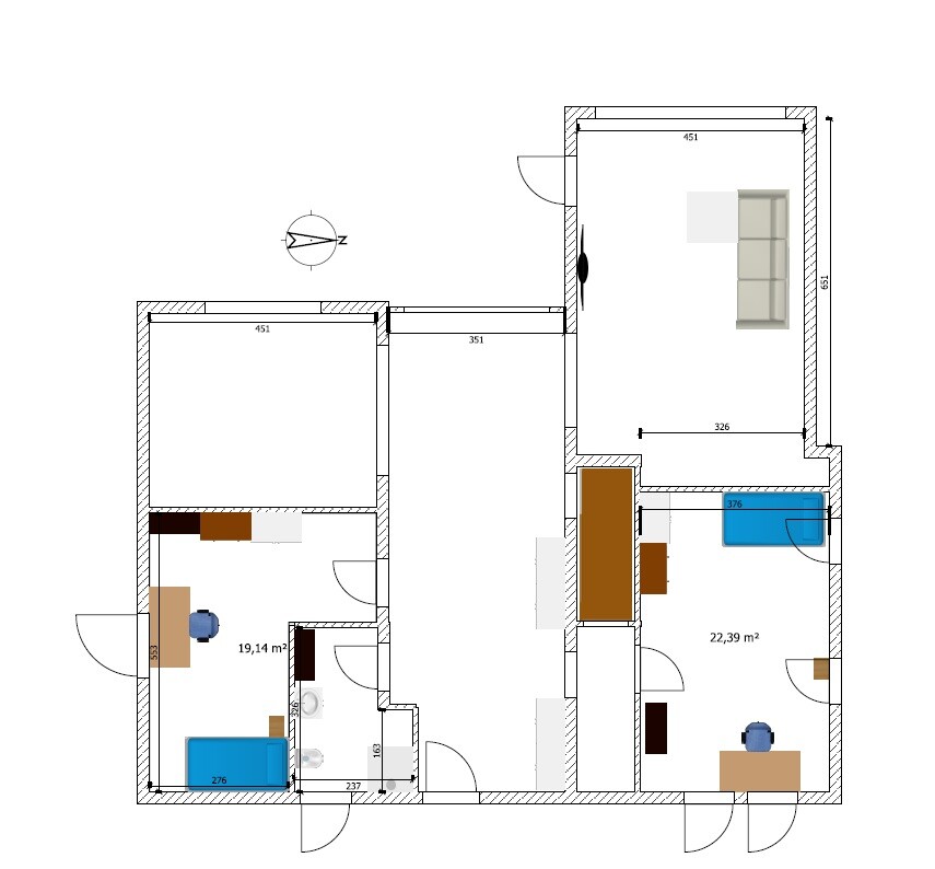
Wir haben uns verschiedene Möglichkeiten für den Grundriss überlegt, sind aber noch nicht 100% zufrieden.
Allgemein: Wir werden die Glasfront in der Diele vorziehen, um die Diele zu vergrößern, sodass sie bündig mit der Außenwand abschließt. Wie schon erwähnt, streichen wir das WC. Der Kaminschacht im Elternzimmer kommt weg. Im Ist-Grundriss habe ich tragende Wände rot markiert (soweit uns bisher bekannt). Der blau markierte Bereich ist nicht unterkellert, dort lassen sich dann wohl keine Wasseranschlüsse usw. hin versetzen. Allerdings muss es einen Anschluss/Abfluss in der Wand zwischen Küche und Essplatz geben, da dort momentan eine Waschmaschine steht. Das ist leider in keinem Plan vermerkt und ich konnte es noch nicht checken. Prinzipiell sind wir offen für Wanddurchbrüche oder neue Fensteröffnungen, sofern möglich und im finanziellen Rahmen.
Version 1 (ohne Bild): Raumaufteilung wie gehabt, nur Kinderzimmer und Elternzimmer durch Wand verschieben in der Größe anpassen. Diele als offizieller Essbereich, eventuell kleiner Tisch am Essplatz. Durchbruch durch Wand zwischen Küche und Essplatz.
Nachteil: Trotz WC-Wegfall kleiner Windfang, Küche schwer zu möblieren.
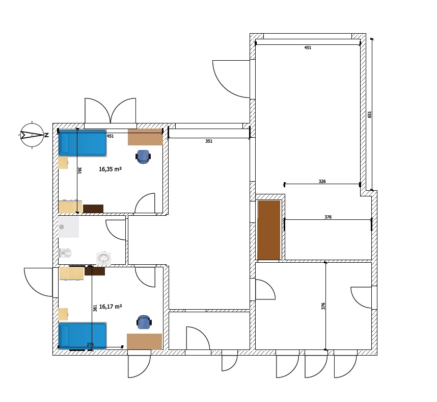
Version 2: Küche im Elternzimmer, 2 Kinderzimmer Richtung Osten
Vorteil: Mega-Küche mit Kücheninsel möglich, Essplatz direkt davor, direkter Zugang zur Terrasse
Nachteil: Kinderzimmer zur Straße raus (auch wenn sie kaum befahren ist), eins mit Fenster Richtung Norden (und Osten), trotzdem kein schöner Flur/Windfang möglich
Version 3: andere Position fürs Bad
Vorteil: gleiche Kinderzimmer
Nachteil: Küche wieder weg von Terrasse und schwer zu möblieren, kleiner Windfang
Ich hoffe, das war jetzt nicht zu viel Text und dass alle nötigen Infos drin stehen. Habt ihr noch Ideen?
Danke!



in diesem Thread https://www.hausbau-forum.de/threads/bitte-Meinungen-zum-Altbau-Grundriss.30321/ hatte ich schon mal unser Projekt vorgestellt und um Meinungen gebeten. Wir sind immer noch dabei, uns den besten Grundriss fürs EG zu überlegen. Da sich ein bisschen was in der bisherigen Planung geändert hat und wir noch flexibler geworden sind, habe ich ein neues Thema aufgemacht. Damit es diesbezüglich keine Rückfragen gibt, hier der Fragebogen.
Bebauungsplan/Einschränkungen
Größe des Grundstücks 1141m2
Hang nein
Grundflächenzahl, Geschossflächenzahl, Baufenster, Baulinie und -grenze, Randbebauung egal, da Gebäude bereits steht
Anzahl Stellplatz links und rechts des Hauses gibt es Einzelgaragen, von der rechten Garage kann man hinten raus und dann durch die Seitentür in die Küche
Geschossigkeit Keller, Erdgeschoss, Dachgeschoss
Dachform Satteldach Ost-West
Stilrichtung mal schauen, was draus wird
Ausrichtung Eingang im Osten, Terrasse und Garten Richtung Westen
Maximale Höhen/Begrenzungen
weitere Vorgaben
[U]Anforderungen der Bauherren[/U]
Stilrichtung, Dachform, Gebäudetyp, Keller, Geschosse s.o.
Anzahl der Personen, Alter momentan 2 (29 und 37), hoffentlich bald 2 Kinder
Raumbedarf im EG Küche, Wohnzimmer, Essbereich, 2 Kinderzimmer, Duschbad (das 2. WC werden wir streichen), gerne Windfang, Platz für Garderobe
OG Da haben wir einen passenden Grundriss für uns mit folgenden Räumen: Schlafzimmer, Bad, Ankleidebereich, Hauswirtschaftsraum, Büro
Büro: Familiennutzung oder Homeoffice? Zum Arbeiten, aber kein Homeoffice
Schlafgäste pro Jahr unbekannt, die brauchen aber auf jeden Fall kein extra Zimmer
offene oder geschlossene Architektur gerne offen
konservativ oder moderne Bauweise vorgegeben
offene Küche, Kochinsel wenn möglich gerne
Anzahl Essplätze 6 mit Ausziehmöglichkeit
Kamin nein
Musik/Stereowand nein
Balkon, Dachterrasse gibt es im OG
Garage, Carport s.o. 2 Einzelgaragen
Nutzgarten, Treibhaus gerne
weitere Wünsche/Besonderheiten/Tagesablauf, gern auch Begründungen, warum dieses oder das nicht sein soll
[U]Hausentwurf[/U]
Von wem stammt die Planung:
-Planer eines Bauunternehmens
-Architekt
-Do-it-Yourself aufgebaut auf dem Bestandsgrundriss
Was gefällt besonders? Warum? s.u.
Was gefällt nicht? Warum? s.u.
Preisschätzung lt Architekt/Planer: kA
Persönliches Preislimit fürs Haus, inkl Ausstattung: kA
favorisierte Heiztechnik: Wärmepumpe, Kaminschacht entfällt
[U]Wenn Ihr verzichten müsst,[/U] auf welche Details/Ausbauten
-könnt Ihr verzichten: 2. WC im EG
-könnt Ihr nicht verzichten: gleich große Kinderzimmer, Platz für Garderobe
Wir haben uns verschiedene Möglichkeiten für den Grundriss überlegt, sind aber noch nicht 100% zufrieden.
Allgemein: Wir werden die Glasfront in der Diele vorziehen, um die Diele zu vergrößern, sodass sie bündig mit der Außenwand abschließt. Wie schon erwähnt, streichen wir das WC. Der Kaminschacht im Elternzimmer kommt weg. Im Ist-Grundriss habe ich tragende Wände rot markiert (soweit uns bisher bekannt). Der blau markierte Bereich ist nicht unterkellert, dort lassen sich dann wohl keine Wasseranschlüsse usw. hin versetzen. Allerdings muss es einen Anschluss/Abfluss in der Wand zwischen Küche und Essplatz geben, da dort momentan eine Waschmaschine steht. Das ist leider in keinem Plan vermerkt und ich konnte es noch nicht checken. Prinzipiell sind wir offen für Wanddurchbrüche oder neue Fensteröffnungen, sofern möglich und im finanziellen Rahmen.
Version 1 (ohne Bild): Raumaufteilung wie gehabt, nur Kinderzimmer und Elternzimmer durch Wand verschieben in der Größe anpassen. Diele als offizieller Essbereich, eventuell kleiner Tisch am Essplatz. Durchbruch durch Wand zwischen Küche und Essplatz.
Nachteil: Trotz WC-Wegfall kleiner Windfang, Küche schwer zu möblieren.
Version 2: Küche im Elternzimmer, 2 Kinderzimmer Richtung Osten
Vorteil: Mega-Küche mit Kücheninsel möglich, Essplatz direkt davor, direkter Zugang zur Terrasse
Nachteil: Kinderzimmer zur Straße raus (auch wenn sie kaum befahren ist), eins mit Fenster Richtung Norden (und Osten), trotzdem kein schöner Flur/Windfang möglich
Version 3: andere Position fürs Bad
Vorteil: gleiche Kinderzimmer
Nachteil: Küche wieder weg von Terrasse und schwer zu möblieren, kleiner Windfang
Ich hoffe, das war jetzt nicht zu viel Text und dass alle nötigen Infos drin stehen. Habt ihr noch Ideen?
Danke!
Also tut mir ja auch leid. Viele Infos, aber die Zeichnungen kann ich einfach nicht deuten. Vielleicht hätte eine Handskizze hier mehr gebracht. Die Räume sind teils nicht benannt, Treppen sehen merkwürdig klein aus und es ist unklar wo die ankommen, die Außenwände sind verschoben bei einem Bestand ohne erkennbaren Grund, die gewünschten Räume tauchen gar nicht alle auf im Entwurf usw.
Da hat der geneigte Leser wenig Lust, sich rein zu fitzen.
Da hat der geneigte Leser wenig Lust, sich rein zu fitzen.
Hm was meinst du mit Außenwände verschoben?
Die Treppe hat die Größe wie eingezeichnet und damit man sie besser deuten kann, hab ich beschriftet, wo es hoch und wo runter geht.
Räume dachte ich sind erkennbar aus der Beschreibung und aus der Möblierung, bzw. sind wir ja noch offen bei der Planung.
Die Treppe hat die Größe wie eingezeichnet und damit man sie besser deuten kann, hab ich beschriftet, wo es hoch und wo runter geht.
Räume dachte ich sind erkennbar aus der Beschreibung und aus der Möblierung, bzw. sind wir ja noch offen bei der Planung.
Niloa schrieb:
Hm was meinst du mit Außenwände verschoben?Pläne übereinander legen - dann siehst Du doch selbst, dass in der "Mitte" der Abschluss oben unterschiedlich ist. Niloa schrieb:
Die Treppe hat die Größe wie eingezeichnet und damit man sie besser deuten kann, hab ich beschriftet, wo es hoch und wo runter geht.Ok, sieht halt einfach unglaublich winzig aus.Niloa schrieb:
Räume dachte ich sind erkennbar aus der Beschreibung und aus der Möblierung, bzw. sind wir ja noch offen bei der Planung.Tja, ich sag ja nur, was ich denke, warum hier niemand antwortet. Aber vielleicht haben alle nur keine Idee. Ich würde Dir empfehlen, die Pläne aus dem alten Thread zu nehmen und dort per Hand rein zu zeichnen, was Ihr Euch so vorstellt. Das dann fotografieren und wieder reinstellen.
Ähnliche Themen