Probleme bei der aufteilung Küche, Essen , Wohnen

4,50 Stern(e) 4 Votes
Zuletzt aktualisiert 25.11.2025
Sie befinden sich auf der Seite 3 der Diskussion zum Thema: Probleme bei der aufteilung Küche, Essen , Wohnen
>> Zum 1. Beitrag <<

D

DERSTEFAN

Küchen- Lösung ist auch schon gefunden .Habe aber nicht solche möglichkeiten in einem vorhandenem Bild reinzuzeichnen wie z.B. BeHaEIJa

Danke für eure Antworten :)
 
D

DNL

dazu noch ein merkwürdiges Treppenformat (das aber nebensächlich).
Wie meinst Du das?


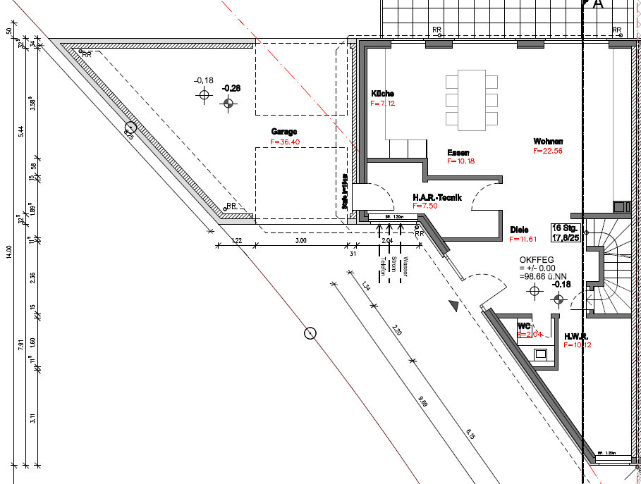
DERSTEFAN ich fände es gut, wenn Du den kompletten Grundriss zeigen würdest und nicht nur diesen kleinen Ausschnitt. Außerdem wäre die Himmelsrichtungen interessant. Letzteres war, was ypg mit der Frage nach den Fenstern wissen wollte :)
 
L

Legurit

Hallo Stefan, ich habe das Bild einfach ins Powerpoint kopiert und dann Kästen eingefügt (1m = 1,13 cm). Also wenn die Außenwände fest sind und auch die Position der Treppe, schau, dass du eine Lösung findest, die alles integriert... also nicht die Küche isoliert betrachten. Achte auf Durchgangsbreiten in der Küche, auf eine Wohnzimmerbreite, achte auf rangierfläche hinter Tischen.
 
D

DERSTEFAN

Hallo Leute -- sorry das ich jetzt erst antworte
Ja , ich weis das das ein sehr komisches Haus ist , aber das Grundstück gibt nur das als maiximalste lösung her.
es fehlen noch einige sachen in der zeichnung ( z.b.Toilette ohne Fenster)
auf dem bild ist unten osten und oben westen - die sonne wandert also schön um unser haus rum -- rechts baut meine schwägerin und links bleibt alles frei - die rot gestrichelte line ist die ist die max überbaubare fläche ( Garage ist kein wohnraum - deshalb außerhalb)
 
Zuletzt aktualisiert 25.11.2025
Im Forum Grundrissplanung / Grundstücksplanung gibt es 2536 Themen mit insgesamt 88016 Beiträgen


Ähnliche Themen zu Probleme bei der aufteilung Küche, Essen , Wohnen
Nr.ErgebnisBeiträge
1Geschlossene oder offene Küche ? 11
2Grundriss, Ideen zur räumlichen Trennung innerhalb der Küche 23
3Varianten für eine Ecklösung in der Küche 18
4Wohnen/Essen/Küche: Wie wohnt ihr oder werdet ihr wohnen? 52
5Planung Wohnraum & Küche eines Doppelhaushälfte in Nürnberg 13
6Grundriss Halboffene Küche mit großem Essbereich - Detailfragen 12
7Beleuchtung in Diele und Küche: Deckeneinbau-Strahler benötigt? 19
8Feedback zur Ikea-Küche - Seite 4167
9Next 125 Küche Erfahrungen / Preiseinschätzung 39
10Heizkreise/Thermostate für Wohnen/Essen/Küche bei Fußbodenheizung/Wärmepumpe 35
11Küche über ein Jahr vor Fertigstellung kaufen? - Seite 254
12Frage zur Entwässerung / Verrohrung Küche 16
13Grundriss Einfamilienhaus - Problemfall Küche 20
14Steinwand aus Stein/Steinplatten? Wohnzimmer / Küche 69
15Esstisch in einer kleinen Küche 49
16Wasseranschluss außen aus der Küche - möglich? 39
17Maße für Küche festlegen 15
18Kleine Küche - Hilfe bei der Anordnung benötigt - Seite 532
19Jährlicher Wertverlust Küche durchschnittlich? - Seite 222
20Türanschlag zum Wohn/-Essbereich und Beleuchtung Küche 13

Oben