N
Naturliebhaber16.04.21 21:23Bebauungsplan/Einschränkungen
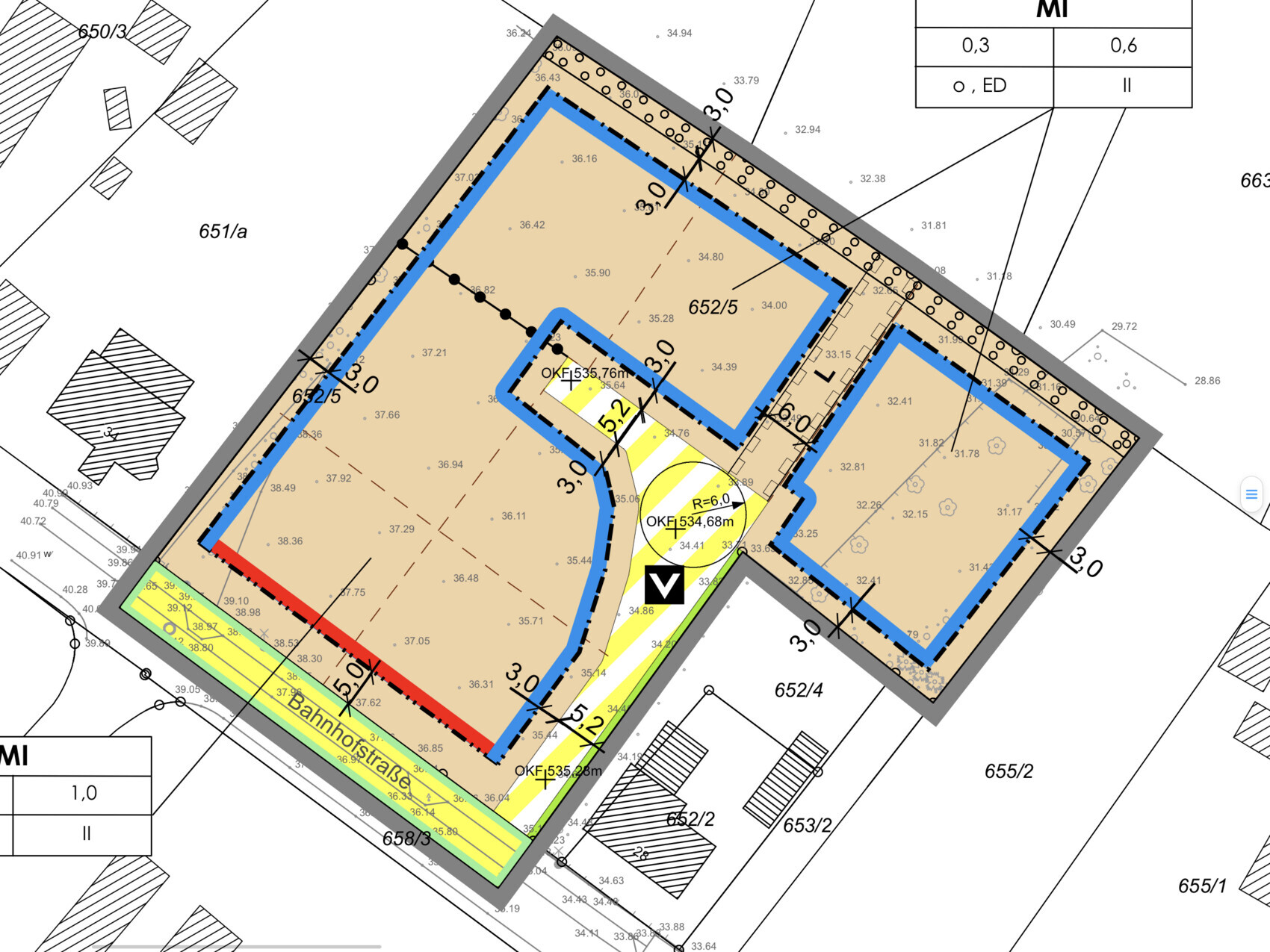
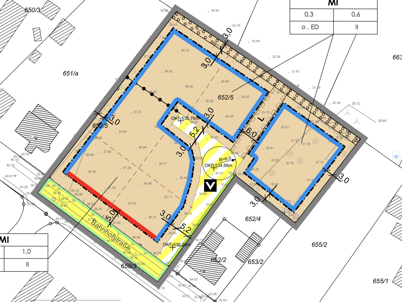
Größe des Grundstücks: ca. 1000qm
Hang: leicht
Grundflächenzahl: 0,6
Geschossflächenzahl: 1,0
Baufenster, Baulinie und -grenze: Baulinie Straße (Südwest) 5m, Baugrenze 3m
Randbebauung
Anzahl Stellplatz: 2
Geschossigkeit: 1,5
Dachform: Satteldach
Stilrichtung: modern
Ausrichtung: das ist die Frage 😉
Maximale Höhen/Begrenzungen
weitere Vorgaben
Anforderungen der Bauherren
da es hier nicht um den Grundriss gehen soll, nur ein paar allgemeine Infos:
ca 150qm, Grundfläche ca. 10x11, Erker im Esszimmer, Panoramafenster im OG in Richtung Nord-Ost, Großraumgarage (ca. 5x6m) + Carport
Guten Abend zusammen,
wir sind uns bei der Positionierung unseres Hauses total unsicher. Das Grundstück ist leider sehr ungünstig in Richtung Nord-Ost ausgerichtet. Allerdings sind wir auch keine großen Sonnenanbeter.
Uns gehören die Grundstücke 7 und 10, das Haus soll auf 7 stehen, da wir nicht den Großteil des Gartens in Richtung Straße haben wollen.
Ich habe unsere derzeit favorisierte Idee mit angehängt. Gut gefällt uns dabei, dass ein Stückchen Süd-West-Garten herausspringt. Außerdem gefällt uns, dass durch die Garage der Abstand zur Straße noch einmal größer wird. Allerdings sind wir unsicher, ob man auf diese Weise die Baulinie einfach umgehen kann, insbesondere auch mit der Garagen-Carport-Kombination (siehe Plan). Ungünstig ist natürlich die Garage im Süden. Außerdem ungünstig, die großen Fenster des Wohnbereiches zeigen nach oben zum Nachbar, der der Meinung war sein Grundstück ordentlich aufschütten zu müssen. Da aber zumindest sein Haus schon steht, ist keine weitere Bebauung in dieser Größenordnung zu erwarten. Ungünstig ist natürlich, dass wir höhenmäßig unter ihm bauen müssen.
Wichtig ist uns der Erker im Essbereich. Dort soll ein Sitzfenster mit Blick Richtung Nord-Ost entstehen, da dort ein wunderbarer Weitblick ist, der aller Voraussicht nach nicht verbaut wird. Deshalb würde auch keine Garage an dieser Seite Sinn machen, Erker und Garage würde sich beißen.
Bei der Ausrichtung, die ihr seht, wären ca. 10m von Haus bis Grundstücksgrenze zum Nachbarn nach oben Abstand.
Bebauungsplan Und Parzellierung mit Maßen sind angehängt. Daraus sind auch die Höhenangaben ablesbar. ein Foto aus Süd-Ost-Richtung zeigt die Nachbarbebauung inkl. des toll aufgeschütteten Grundstückes.
Was haltet ihr von der aktuellen Ausrichtung? Wie könnte man ggf. optimieren?
schon einmal danke für all eure Rückmeldungen und einen schönen Abend 🙂




Größe des Grundstücks: ca. 1000qm
Hang: leicht
Grundflächenzahl: 0,6
Geschossflächenzahl: 1,0
Baufenster, Baulinie und -grenze: Baulinie Straße (Südwest) 5m, Baugrenze 3m
Randbebauung
Anzahl Stellplatz: 2
Geschossigkeit: 1,5
Dachform: Satteldach
Stilrichtung: modern
Ausrichtung: das ist die Frage 😉
Maximale Höhen/Begrenzungen
weitere Vorgaben
Anforderungen der Bauherren
da es hier nicht um den Grundriss gehen soll, nur ein paar allgemeine Infos:
ca 150qm, Grundfläche ca. 10x11, Erker im Esszimmer, Panoramafenster im OG in Richtung Nord-Ost, Großraumgarage (ca. 5x6m) + Carport
Guten Abend zusammen,
wir sind uns bei der Positionierung unseres Hauses total unsicher. Das Grundstück ist leider sehr ungünstig in Richtung Nord-Ost ausgerichtet. Allerdings sind wir auch keine großen Sonnenanbeter.
Uns gehören die Grundstücke 7 und 10, das Haus soll auf 7 stehen, da wir nicht den Großteil des Gartens in Richtung Straße haben wollen.
Ich habe unsere derzeit favorisierte Idee mit angehängt. Gut gefällt uns dabei, dass ein Stückchen Süd-West-Garten herausspringt. Außerdem gefällt uns, dass durch die Garage der Abstand zur Straße noch einmal größer wird. Allerdings sind wir unsicher, ob man auf diese Weise die Baulinie einfach umgehen kann, insbesondere auch mit der Garagen-Carport-Kombination (siehe Plan). Ungünstig ist natürlich die Garage im Süden. Außerdem ungünstig, die großen Fenster des Wohnbereiches zeigen nach oben zum Nachbar, der der Meinung war sein Grundstück ordentlich aufschütten zu müssen. Da aber zumindest sein Haus schon steht, ist keine weitere Bebauung in dieser Größenordnung zu erwarten. Ungünstig ist natürlich, dass wir höhenmäßig unter ihm bauen müssen.
Wichtig ist uns der Erker im Essbereich. Dort soll ein Sitzfenster mit Blick Richtung Nord-Ost entstehen, da dort ein wunderbarer Weitblick ist, der aller Voraussicht nach nicht verbaut wird. Deshalb würde auch keine Garage an dieser Seite Sinn machen, Erker und Garage würde sich beißen.
Bei der Ausrichtung, die ihr seht, wären ca. 10m von Haus bis Grundstücksgrenze zum Nachbarn nach oben Abstand.
Bebauungsplan Und Parzellierung mit Maßen sind angehängt. Daraus sind auch die Höhenangaben ablesbar. ein Foto aus Süd-Ost-Richtung zeigt die Nachbarbebauung inkl. des toll aufgeschütteten Grundstückes.
Was haltet ihr von der aktuellen Ausrichtung? Wie könnte man ggf. optimieren?
schon einmal danke für all eure Rückmeldungen und einen schönen Abend 🙂
Naturliebhaber schrieb:
Uns gehören die Grundstücke 7 und 10, das Haus soll auf 7 stehen, da wir nicht den Großteil des Gartens in Richtung Straße haben wollen.Das ist schon Mist, wenn man eine Baulinie vorgesetzt bekommt und die Gartenseite eigentlich eher sonnig sein soll.Dann aber habe ich gelesen, dass ihr gar nicht so sonnige Gemüter seid?
Ich als Sonnenanbeter würde nicht die 7, sondern die 10 bebauen: Zufahrt einer Sackgasse, wie toll ist das denn ? Da kann man wenigstens seine Kinder mal raus lassen 😉
Garten sehe ich strassenseits nur wenige Meter: Terrasse befindet sich ja auf der Mitte... insofern ein ordentlicher Gartenpuffer Richtung Straße, den man mit Bäumen bepflanzen kann, die auch etwas vom Lärm und Sicht wegpuffern.
Wenn Ihr unbedingt die Baulinie nutzen wollt/müsst: da fällt mir zur Zeit kaum etwas sinnvolles ein, wenn ich weiß, dass es auch anders gehen würde :p
N
Naturliebhaber16.04.21 21:53Die Gartenseite muss gar nicht unbedingt sonnig sein. Aber würden wir das Haus quasi 90 Grad nach rechts drehen, dann wären sämtliche Fensterflächen Richtung Nord-Ost.
den Großteil des Gartens im Süden brauchen/wollen wir nicht, diese kleine Ecke würde uns komplett reichen
den Großteil des Gartens im Süden brauchen/wollen wir nicht, diese kleine Ecke würde uns komplett reichen
N
Naturliebhaber16.04.21 22:08Der Weitblick ist uns schon relativ wichtig. Den würden wir uns damit ja komplett selbst verbauen
Naturliebhaber schrieb:
Aber würden wir das Haus quasi 90 Grad nach rechts drehen,Würde ich gar nicht machen 😉Naturliebhaber schrieb:
dann wären sämtliche Fensterflächen Richtung Nord-Ost.Wird das jetzt ein Thread, wo das Haus schon inklusive Fenstermaße ausgeführt ist und nun gedreht und gewendet wird auf einem Stück Grundstück, was für die Hausplanung gar nicht geeignet ist?Ich dachte, es geht um ein fiktives Haus und der Grundplanung...
Wenn aber alles schon fix am Haus ist, dann spende den Usern hier die Fensterpositionen, und dann können sie es drehen.., für mich ist solche Diskussion nix, sorry 🙂
Ähnliche Themen