Hallo zusammen,
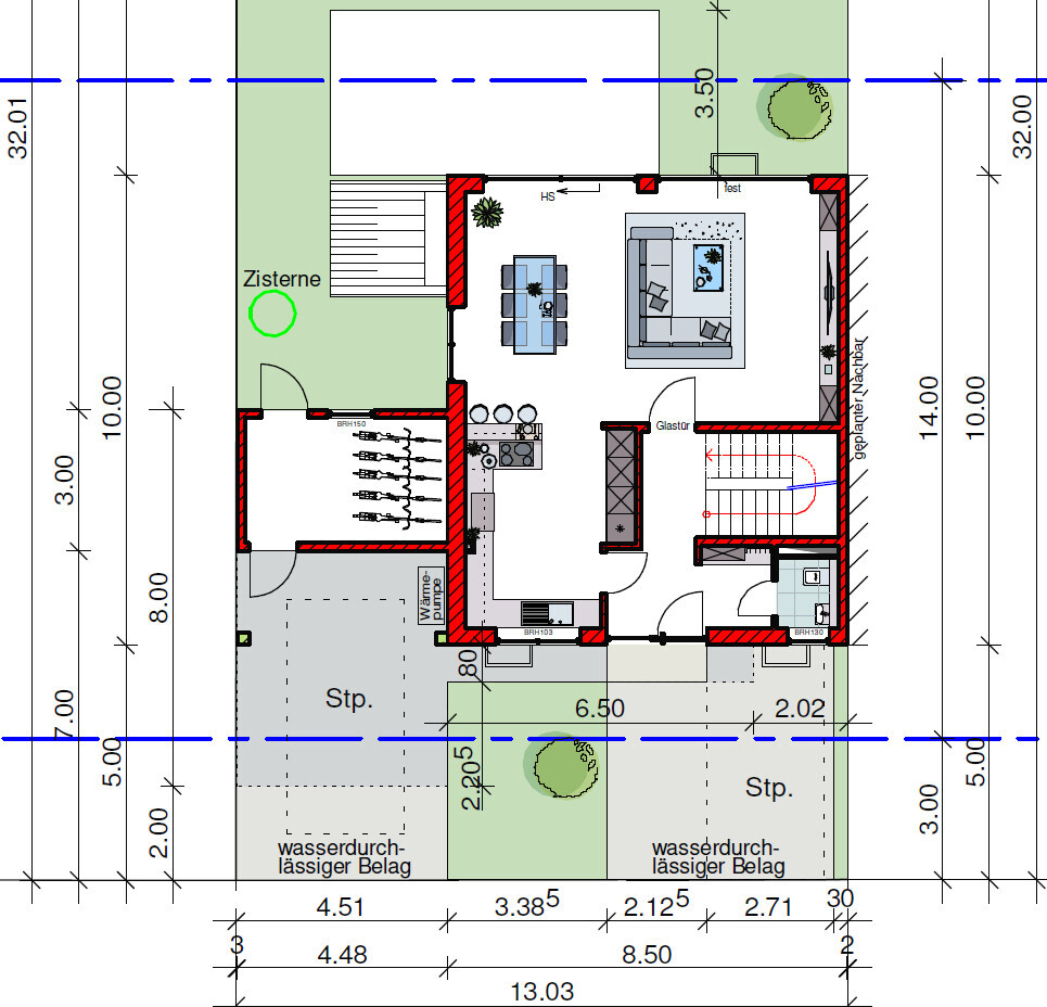
wir planen gerade unsere Doppelhaushälfte und beschäftigen uns mit der Positionierung der Außeneinheit der Luftwärmepumpe. Die bisherige Idee war es die Luftwärmepumpe in den Carport zu stellen (siehe Bild, linker dunkelgrauer Bereich, links neben dem Haus). Ich denke die Luftwärmepumpe wird ca. 1 Breite des Carports wegnehmen, beim Parken wird es eng. Zudem wird der Gebläse des Ventilators behindert wenn das Auto direkt davor steht. Die Luftwärmepumpe wird wahrscheinlich nicht optimal arbeiten können.
Eine Positionierung vor dem Haus fällt ebenfalls raus, da wir ansonsten der Weg von Eingangstür zum Carport nicht offen sein wird. Zudem möchte ich das Ding nicht unbedingt jedes Mal sehen wenn ich vor dem Haus stehe. Die Idee ist nun die Luftwärmepumpe auf dem Carportdach zu platzieren, siehe Bild.
Fragen:
noch ein paar zusätzliche Eckdaten zur Luftwärmepumpe:
Danke im Voraus.


wir planen gerade unsere Doppelhaushälfte und beschäftigen uns mit der Positionierung der Außeneinheit der Luftwärmepumpe. Die bisherige Idee war es die Luftwärmepumpe in den Carport zu stellen (siehe Bild, linker dunkelgrauer Bereich, links neben dem Haus). Ich denke die Luftwärmepumpe wird ca. 1 Breite des Carports wegnehmen, beim Parken wird es eng. Zudem wird der Gebläse des Ventilators behindert wenn das Auto direkt davor steht. Die Luftwärmepumpe wird wahrscheinlich nicht optimal arbeiten können.
Eine Positionierung vor dem Haus fällt ebenfalls raus, da wir ansonsten der Weg von Eingangstür zum Carport nicht offen sein wird. Zudem möchte ich das Ding nicht unbedingt jedes Mal sehen wenn ich vor dem Haus stehe. Die Idee ist nun die Luftwärmepumpe auf dem Carportdach zu platzieren, siehe Bild.
Fragen:
- links neben der Luftwärmepumpe befindet sich in 4m Entfernung das Fenster des Kinderzimmers. Über der Luftwärmepumpe das Schlafzimmerfenster. Wird diese bei offenem Fenster zu hören sein wenn die Luftwärmepumpe bei Volllast arbeitet? Ich denke bei normalem Betrieb sollte nicht zu hören sein.
- Gegenüber der Luftwärmepumpe befindet sich eine seitliche Wand einer Doppelhaushälfte, Entfernung zur Luftwärmepumpe ca.7-8m. Das Gebläse der Luftwärmepumpe wird auf die seitliche Wand ausgerichtet sein. Auf der Luftwärmepumpe-Seite befindet sich Nachbarhaus im EG das Küchenfenster, im OG das Badezimmerfenster. Die Luftwärmepumpe sollte er auch bei offenem Fenster akustisch nicht wahrnehmen können, liege ich da richtig?
- Andere Vorschläge zur Positionierung?
noch ein paar zusätzliche Eckdaten zur Luftwärmepumpe:
- Schalldruckpegel Heizen (in 1 m Abstand): 49 dB (A)
- Schalldruckpegel Kühlen (in 1 m Abstand): 50 dB (A)
- Schalldruckpegel Flüsterbetrieb 2/3 (gemessen in 3m Abstand): 47,5/34,5 dbA
- Schallleistungspegel Heizen: 62 dB (A)
- Schallleistungspegel Kühlen: 62 dB (A)
- Schallleistungspegel im Flüsterbetrieb 2/3: 59/52 dB (A)
Danke im Voraus.
Schalldruckpegel sind Katalogwerte bei Neugeräten und optimaler Aufstellung,
nicht auf einem schwingenden Dach, nicht an einer Außenwand angeschraubt, nicht nach 10 Jahren in Betrieb.
Nicht umsonst bekommen die Geräte ein eigenes Fundament und sind möglichst von Gebäuden entkoppelt, mit maximalem Abstand zu Schlafzimmerfenstern
nicht auf einem schwingenden Dach, nicht an einer Außenwand angeschraubt, nicht nach 10 Jahren in Betrieb.
Nicht umsonst bekommen die Geräte ein eigenes Fundament und sind möglichst von Gebäuden entkoppelt, mit maximalem Abstand zu Schlafzimmerfenstern
Nida35a schrieb:
Schalldruckpegel sind Katalogwerte bei Neugeräten und optimaler Aufstellung,
nicht auf einem schwingenden Dach, nicht an einer Außenwand angeschraubt, nicht nach 10 Jahren in Betrieb.
Nicht umsonst bekommen die Geräte ein eigenes Fundament und sind möglichst von Gebäuden entkoppelt, mit maximalem Abstand zu SchlafzimmerfensternDer Carport hat ein betoniertes Dach. Ich nehme stark an, dass die Luftwärmepumpe nicht an die Außenwand angeschraubt sondern auf einem Fundament platziert wird. Müsste ich aber noch genau abklären. Die Luftwärmepumpe bläst von der Hauswand Richtung Nachbar weg. Bei der DAIKIN beträgt der Schalldruckpegel nach 3m Abstand (frontal zur Luftwärmepumpe) 47,5 dbA. Die Fenster sind jeweils seitlich bzw. über der Luftwärmepumpe. Ich gehe daher von noch niedrigeren Werten aus.
Hört man das Gebläse tatsächlich in den Räumen wenn die Fenster so wie im Bild positioniert sind?
Die andere Möglichkeit wäre es in den Vorgarten zu stellen, siehe Bild. Hier müsste ich aber eine Abdeckung anbringen damit es nicht ganz so heftig ins Auge fällt. Würde man in diesem Fall die Luftwärmepumpe bei offenem Fenster in der Küche hören?
Also
Lieber hörst du sie in der Küche als in den Schlafräumen …. Am
Anfang wird sie dir Klaro auffallen wenn sie im Eingang steht , später fällt es dir aber nicht mehr auf , ist nur so ein Anfangsding …. Ich finde die Dinger akustisch störend ( hab selber eine) … aber am
Meisten arbeitet sie ja im Winter u das hast du das Fenster zu … also mach sie an die Küche da stört sie dich am wenigsten
Lieber hörst du sie in der Küche als in den Schlafräumen …. Am
Anfang wird sie dir Klaro auffallen wenn sie im Eingang steht , später fällt es dir aber nicht mehr auf , ist nur so ein Anfangsding …. Ich finde die Dinger akustisch störend ( hab selber eine) … aber am
Meisten arbeitet sie ja im Winter u das hast du das Fenster zu … also mach sie an die Küche da stört sie dich am wenigsten
M
motorradsilke02.11.22 06:10wesson76 schrieb:
Die andere Möglichkeit wäre es in den Vorgarten zu stellen, siehe Bild. Hier müsste ich aber eine Abdeckung anbringen damit es nicht ganz so heftig ins Auge fällt. Würde man in diesem Fall die Luftwärmepumpe bei offenem Fenster in der Küche hören?Ja, das denke ich, bei offenem Fenster wirst du sie in der Küche hören. Aber nur sehr leise, wenn du dich da nicht drauf konzentrierst blendest du das aus. Was ich dir auf jeden Fall empfehle: Stell sie irgendwo hin, wo du nicht langläufst. Viel schlimmer als die Optik und das Geräusch ist nämlich der Luftzug, den das Ding verursacht. Unsere ist blöderweise genau auf unsere Einfahrt gerichtet, weil Jeder nur vom Geräusch sprach und den Luftzug Niemand erwähnt hat. Das stört uns richtig, weil wir das immer abbekommen, wenn wir das Auto in der Einfahrt abstellen.
Ähnliche Themen