ᐅ Planung Lichtschalter für (Durchgangs-)Küche zwischen Ess- und Wohnbereich
Erstellt am: 18.11.25 14:44
K
kasper_repsakK
kasper_repsak18.11.25 14:44Liebe Community,
Ich bin ein bisschen verzweifelt bzw. unsicher:
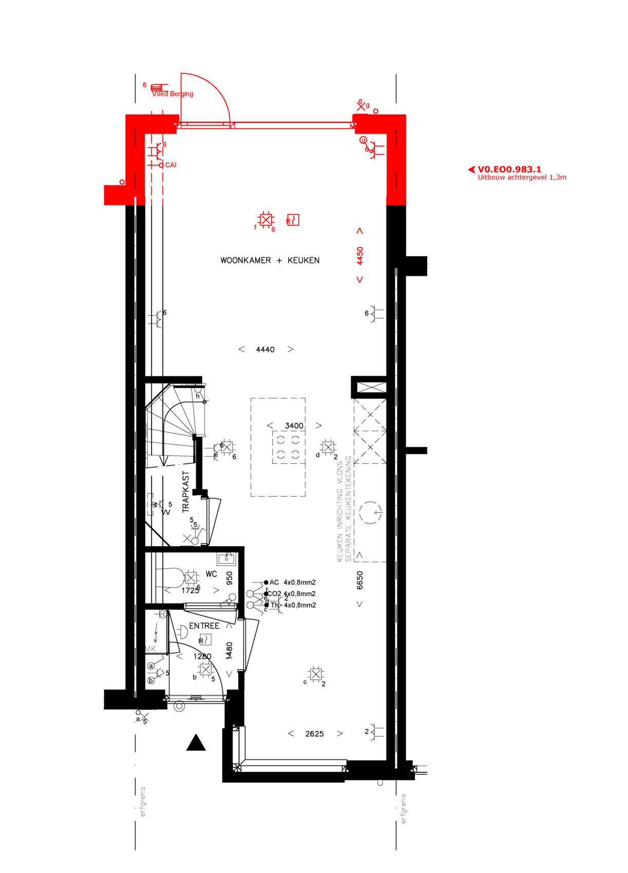
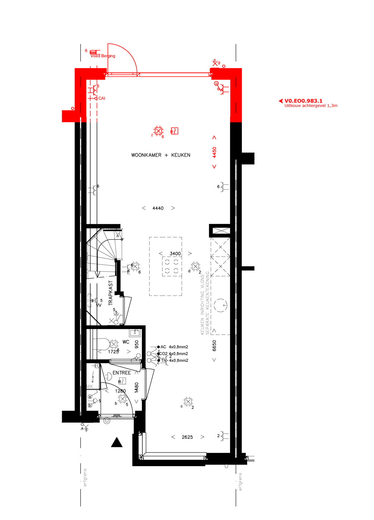
Wir haben ein Neubau-Haus (in den Niederlanden) gekauft, bei dem einige Sachen, wie das kleine Vorzimmer und die "Durchgangsküche", sicher nicht optimal und ein Kompromiss sind. Ich habe den Standard-Elektroplan angehängt sowie ein paar Sachen, die wir ändern möchten. Wenn man die Stiege runtergeht, gibt es nur einen Lichtschalter zum Ausschalten Licht 1. Stock (h), aber keinen Schalter für das Einschalten Licht EG. Alle Lichtschalter für das EG (c) (d) (e) und (f) sind unten beim Eingangsbereich positioniert, also ein paar Meter weiter weg von der Stiege (man tappt also ein paar Meter im Dunkeln).
Ist es sinnvoll, die - zusätzlichen (d) (e) bzw. verschobenen (f) - Lichtschalter so wie hier zu positionieren?

Gedanke: man steht quasi in der Küche, wenn man die Stiege runterkommt, also kann man dieses "sichtbare" Licht (d) und (e) anmachen, oder wenn man ins Wohnzimmer will, ist das Licht dafür (f) gleich um die Ecke, so als wäre das Wohnzimmer ein anderer bzw. getrennter Raum.
Ich bin mir unsicher, ob das praktikabel ist, insbesondere weil Lichtschalter (f) um die Ecke liegt und weil ich mir nicht sicher bin, ob das Küchenlicht jenes Licht sein sollte, dass man hier einschalten möchte (statt etwa das Wohnzimmerlicht (f) und/oder das Esstischlicht (c) hier - gleich bei (h) - zu positionieren).
Ich hatte mittlerweile auch noch fünf andere (verworfene) Ideen, wäre aber über Euren Input sehr dankbar!
Danke im Voraus,
Kasper

Ich bin ein bisschen verzweifelt bzw. unsicher:
Wir haben ein Neubau-Haus (in den Niederlanden) gekauft, bei dem einige Sachen, wie das kleine Vorzimmer und die "Durchgangsküche", sicher nicht optimal und ein Kompromiss sind. Ich habe den Standard-Elektroplan angehängt sowie ein paar Sachen, die wir ändern möchten. Wenn man die Stiege runtergeht, gibt es nur einen Lichtschalter zum Ausschalten Licht 1. Stock (h), aber keinen Schalter für das Einschalten Licht EG. Alle Lichtschalter für das EG (c) (d) (e) und (f) sind unten beim Eingangsbereich positioniert, also ein paar Meter weiter weg von der Stiege (man tappt also ein paar Meter im Dunkeln).
Ist es sinnvoll, die - zusätzlichen (d) (e) bzw. verschobenen (f) - Lichtschalter so wie hier zu positionieren?
Gedanke: man steht quasi in der Küche, wenn man die Stiege runterkommt, also kann man dieses "sichtbare" Licht (d) und (e) anmachen, oder wenn man ins Wohnzimmer will, ist das Licht dafür (f) gleich um die Ecke, so als wäre das Wohnzimmer ein anderer bzw. getrennter Raum.
Ich bin mir unsicher, ob das praktikabel ist, insbesondere weil Lichtschalter (f) um die Ecke liegt und weil ich mir nicht sicher bin, ob das Küchenlicht jenes Licht sein sollte, dass man hier einschalten möchte (statt etwa das Wohnzimmerlicht (f) und/oder das Esstischlicht (c) hier - gleich bei (h) - zu positionieren).
Ich hatte mittlerweile auch noch fünf andere (verworfene) Ideen, wäre aber über Euren Input sehr dankbar!
Danke im Voraus,
Kasper
KIlingt ja nach einer sehr sinnigen Installation....
Sinnvoll ist das, was euch die beste Nutzung einbringt. Um noch eine Idee mit einzubringen: Wäre eventuell ein Bewegungsmelder was für euch, der den unteren Treppenbereich überwacht und euch dort ein Licht schaltet? Das könnte vom Aufwand her das geringste sein und euch das schwarze Loch nehmen.
Sinnvoll ist das, was euch die beste Nutzung einbringt. Um noch eine Idee mit einzubringen: Wäre eventuell ein Bewegungsmelder was für euch, der den unteren Treppenbereich überwacht und euch dort ein Licht schaltet? Das könnte vom Aufwand her das geringste sein und euch das schwarze Loch nehmen.
K
kasper_repsak18.11.25 15:27Danke für die rasche Rückmeldung und das Feedback!
Ist beim Bauträger als Option leider nicht vorgesehen und damit wohl nicht (mit vertretbarem Kostenaufwand, falls überhaupt) machbar. Nur Schalter verschieben und/oder extra Schalter ...
Wir haben die hier dargestellte Planung schon dem Bauträger mitgeteilt, der diesbezüglich aber nicht sehr hilfreich war ("wir machen, was ihr wollt"), sodass ich doch in letzter Sekunde Zweifel bekommen habe, ob wir nicht etwas wichtiges übersehen bzw. ob es nicht eine klar bessere Lösung gibt.
Danke nochmals und lG,
Kasper
Ganneff schrieb:
Um noch eine Idee mit einzubringen: Wäre eventuell ein Bewegungsmelder was für euch, der den unteren Treppenbereich überwacht und euch dort ein Licht schaltet? Das könnte vom Aufwand her das geringste sein und euch das schwarze Loch nehmen.
Ist beim Bauträger als Option leider nicht vorgesehen und damit wohl nicht (mit vertretbarem Kostenaufwand, falls überhaupt) machbar. Nur Schalter verschieben und/oder extra Schalter ...
Wir haben die hier dargestellte Planung schon dem Bauträger mitgeteilt, der diesbezüglich aber nicht sehr hilfreich war ("wir machen, was ihr wollt"), sodass ich doch in letzter Sekunde Zweifel bekommen habe, ob wir nicht etwas wichtiges übersehen bzw. ob es nicht eine klar bessere Lösung gibt.
Danke nochmals und lG,
Kasper
Oh, moment, Frage: Ist das schon gebaut, oder noch nicht? Deinen ersten Text hab ich so gelesen als wäre es schon gebaut. Neu zwar, aber quasi fertig, und Ihr machts nun noch ein paar Änderungen.
Wenn das noch gebaut wird, dann ist Aufwand weit weniger Thema (ob die Kabel nun nach links oder rechts gehen macht nicht soviel). Dann würd ich zwar generell auf voll Smart setzen und weniger mit Schaltern und viel mehr mit Präsenz- und Bewegungsmeldern arbeiten - aber so wie Du gerade den Bauträger beschreibst, dürfte der da weniger Freund von sein.
Dann wäre tatsächlich mindestens oben ein Schalter um unten auszuschalten (oder eine Wechselschaltung für ein Licht das rein die Treppe ist), sowie am unteren Treppenende dann Schalter für oben, ggf. Treppenlicht und mindestens für den Küchenbereich drin. Letzterer dann im Wechsel mit dem am Eingangsbereich, man will von beiden Ecken aus schalten.
Und wenn das tatsächlich noch im Bau ist - sieh zu dass Du mindestens einen weiteren Lampenauslass im Wohnzimmer bekommst (der auch getrennt schaltbar ist), nicht nur einen zentral. Das ist hoffnungslos out, so wenig. Eventuell auch noch Auslässe an den Wänden - oder zumindest in deren Nähe in der Decke vorgesehen. Heute baut man doch eher selten nur noch "eine Lampe mittig" und hat eher mehr Leuchten an der Wand, an verschiedenen Stellen im Raum, eventuell Lichtvouten an den Wänden. Auch in der Küche möchtest Du mehr als eine Lampe "oben mittig" (hier kann man meist gut mit der Küchenplanung und Lampen in/an Schränken helfen).
Auch die Anzahl der Steckdosen ist, so wie es im Plan derzeit ist, bescheiden wenig. Überleg mal was heute allein schon rund um den Fernseher als Geräte steht.
Wenn das noch gebaut wird, dann ist Aufwand weit weniger Thema (ob die Kabel nun nach links oder rechts gehen macht nicht soviel). Dann würd ich zwar generell auf voll Smart setzen und weniger mit Schaltern und viel mehr mit Präsenz- und Bewegungsmeldern arbeiten - aber so wie Du gerade den Bauträger beschreibst, dürfte der da weniger Freund von sein.
Dann wäre tatsächlich mindestens oben ein Schalter um unten auszuschalten (oder eine Wechselschaltung für ein Licht das rein die Treppe ist), sowie am unteren Treppenende dann Schalter für oben, ggf. Treppenlicht und mindestens für den Küchenbereich drin. Letzterer dann im Wechsel mit dem am Eingangsbereich, man will von beiden Ecken aus schalten.
Und wenn das tatsächlich noch im Bau ist - sieh zu dass Du mindestens einen weiteren Lampenauslass im Wohnzimmer bekommst (der auch getrennt schaltbar ist), nicht nur einen zentral. Das ist hoffnungslos out, so wenig. Eventuell auch noch Auslässe an den Wänden - oder zumindest in deren Nähe in der Decke vorgesehen. Heute baut man doch eher selten nur noch "eine Lampe mittig" und hat eher mehr Leuchten an der Wand, an verschiedenen Stellen im Raum, eventuell Lichtvouten an den Wänden. Auch in der Küche möchtest Du mehr als eine Lampe "oben mittig" (hier kann man meist gut mit der Küchenplanung und Lampen in/an Schränken helfen).
Auch die Anzahl der Steckdosen ist, so wie es im Plan derzeit ist, bescheiden wenig. Überleg mal was heute allein schon rund um den Fernseher als Geräte steht.
K
kasper_repsak18.11.25 17:14Hallo!
Noch nicht gebaut, aber: jeder Sonderwunsch ist teuer - EUR 380 für einen extra Lichtauslass mit Schalter, EUR 190 für Wechselschalter, EUR 310 für eine extra Doppelsteckdose - und wir wissen ehrlich gesagt nicht, ob wir dort "ewig" wohnen werden. Daher der Gedanke, es minimal zu lassen, obwohl ich sehr gut verstehe, dass mehr Steckdosen und mehr (Wand-)Lichter sinnvoll und schön wären.
- Schalter (h) ist Wechselschalter für Licht 1. Stock/Treppe und kann im EG bei Treppe und 1. Stock geschaltet werden.
- Schalter (d) und (e) für Küche wären beides Wechselschalter bei der Treppe und beim Eingangsbereich.
- Schalter (f) für Wohnzimmer wäre Wechselschalter auch beim Ausgang Garten (dort zum Auto und Fahrrad).
- Schalter (c) für Esstisch wäre nur beim Essbereich.
Stehlampen mit eigenem Schalter und Steckdosenleisten wären natürlich nötig.
LG Kasper
Ganneff schrieb:
Oh, moment, Frage: Ist das schon gebaut, oder noch nicht?
Noch nicht gebaut, aber: jeder Sonderwunsch ist teuer - EUR 380 für einen extra Lichtauslass mit Schalter, EUR 190 für Wechselschalter, EUR 310 für eine extra Doppelsteckdose - und wir wissen ehrlich gesagt nicht, ob wir dort "ewig" wohnen werden. Daher der Gedanke, es minimal zu lassen, obwohl ich sehr gut verstehe, dass mehr Steckdosen und mehr (Wand-)Lichter sinnvoll und schön wären.
- Schalter (h) ist Wechselschalter für Licht 1. Stock/Treppe und kann im EG bei Treppe und 1. Stock geschaltet werden.
- Schalter (d) und (e) für Küche wären beides Wechselschalter bei der Treppe und beim Eingangsbereich.
- Schalter (f) für Wohnzimmer wäre Wechselschalter auch beim Ausgang Garten (dort zum Auto und Fahrrad).
- Schalter (c) für Esstisch wäre nur beim Essbereich.
Stehlampen mit eigenem Schalter und Steckdosenleisten wären natürlich nötig.
LG Kasper
Nette Preise, ja. Je nachdem auch mit Kabel und Aufwand, ja, aber trotzdem ganz ordentlich.
Nagut. Für eine Minimallösung hört sich deine Beschreibung ausreichend an. Hab auf jeden Fall eine Schaltposition an der Treppe unten wie geplant, das nicht zu haben ist falsch. Dann zu deiner initialen Frage ob f) um die Ecke rum sinnvoll ist oder nicht - tja. Die kannst nur Du beantworten. Zum einen will man so einen Schalter schon innen haben (erwartet man ja auch wenn man im Raum ist), zum andern - wenn Du von oben kommst und direkt ins Wohnzimmer willst, kann das nerven, erst vorne an der Treppe zu schalten, einen Schritt zu gehen, nochmal schalten. Mach f ggf. von beiden Seiten aus schaltbar, also einen extra Schalter fürs Wohnzimmer mit an die Treppe.
Aber mal im Plan rüber geschaut - in der Küchenzeile auf Herdseite rüber Richtung Wohnzimmer. Wie oft wird euch das passieren? Ist es praktisch, dann immer erst ganz rüber zu müssen?
Hier könnte sich Präsenz/Bewegungsmelder gut machen. Nicht über euren Bauträger, aber das hier hört sich stark danach an, als will man hier nachträglich etwas Smart einbauen. Mit Shelly oder Homematic oder einem der anderen Systeme. Wenn das vom Bauträger zu teuer ist, ist das eine Alternative die zwar nicht ganz so schön ist wie "gleich richtig gemacht" - dafür aber leicht nachinstallierbar bei vergleichsweise geringen Kosten und Aufwand. Und da gibt es auch jede Menge Taster/Schalter/... die via Funk arbeiten und wo man fehlende Schaltstellen gut nachrüsten kann.
Nagut. Für eine Minimallösung hört sich deine Beschreibung ausreichend an. Hab auf jeden Fall eine Schaltposition an der Treppe unten wie geplant, das nicht zu haben ist falsch. Dann zu deiner initialen Frage ob f) um die Ecke rum sinnvoll ist oder nicht - tja. Die kannst nur Du beantworten. Zum einen will man so einen Schalter schon innen haben (erwartet man ja auch wenn man im Raum ist), zum andern - wenn Du von oben kommst und direkt ins Wohnzimmer willst, kann das nerven, erst vorne an der Treppe zu schalten, einen Schritt zu gehen, nochmal schalten. Mach f ggf. von beiden Seiten aus schaltbar, also einen extra Schalter fürs Wohnzimmer mit an die Treppe.
Aber mal im Plan rüber geschaut - in der Küchenzeile auf Herdseite rüber Richtung Wohnzimmer. Wie oft wird euch das passieren? Ist es praktisch, dann immer erst ganz rüber zu müssen?
Hier könnte sich Präsenz/Bewegungsmelder gut machen. Nicht über euren Bauträger, aber das hier hört sich stark danach an, als will man hier nachträglich etwas Smart einbauen. Mit Shelly oder Homematic oder einem der anderen Systeme. Wenn das vom Bauträger zu teuer ist, ist das eine Alternative die zwar nicht ganz so schön ist wie "gleich richtig gemacht" - dafür aber leicht nachinstallierbar bei vergleichsweise geringen Kosten und Aufwand. Und da gibt es auch jede Menge Taster/Schalter/... die via Funk arbeiten und wo man fehlende Schaltstellen gut nachrüsten kann.
Ähnliche Themen