ᐅ Planung/Grundriss Einfamilienhaus (ca. 140 qm, Keller, EG, DG)
Erstellt am: 11.08.16 10:49
S
Schorsch58411.08.16 10:49Hallo zusammen,
wir (meine Frau 28, unser Sohn 9 Monate und ich 32) haben uns letztes Jahr im Herbst ein Grundstück gekauft und sind seit dem am grübeln und zeichnen und schauen wie wir unser Haus planen und gestalten können.
Je mehr man schaut, desto mehr sieht man und desto unschlüssiger wird man sich teilweise.
Vom Grundprinzip her sind wir mit der Aufteilung und Einteilung soweit zufrieden, nur im DG zwickt es noch etwas. Wir würden uns auch über Meinungen von erfahrenen Häuslebauern und Hausbesitzern freuen ob unsere Vorstellungen und auf dem Plan gezeichnete Grundrisse in der Praxis auch wirklich bewohnbar sind.
Anbei die Grunddaten:
Bebauungsplan/Einschränkungen
Größe des Grundstücks: 497 qm (siehe auch Lageplan)
Hang: nein
Geschossigkeit: 2
Dachform: alles erlaubt
Stilrichtung: alles erlaubt bis auf Bungalow
Anforderungen der Bauherren
Stilrichtung, Dachform, Gebäudetyp => Einfamilienhaus mit Erker, Satteldach, 25 – 28 grad (rel. Flach)
Keller, Geschosse => Keller, EG + DG (Kniestock 1,80 – 2,00)
Anzahl der Personen, Alter => aktuell 3 (Er 32, Sie 28, Sohn 9 Monate); 2 Kind ist gewünscht
Raumbedarf im EG, OG:
[I]EG => Wohnen, Essen, Küche, WC/DU, Abstellraum/Speis
DG => 2 x Kinderzimmer, Bad, Elternschlafzimmer mit Ankleide
Büro => Familiennutzung
offene oder geschlossene Architektur => im Wohn-/Essbereich offen
konservativ oder moderne Bauweise => modern aber gemütlich
offene Küche, Kochinsel => offen, Küchenform noch nicht festgelegt, je nach dem welche Form am besten passt
Anzahl Essplätze => mind. 4 aber 6 – 8 sollten schon Platz haben
Kamin => nein
Musik/Stereowand => nein
Balkon, Dachterrasse => nein
Garage, Carport => Doppelgarage mit direkten Zugang zum Haus
Nutzgarten, Treibhaus => normaler Garten, nichts besonderes geplant
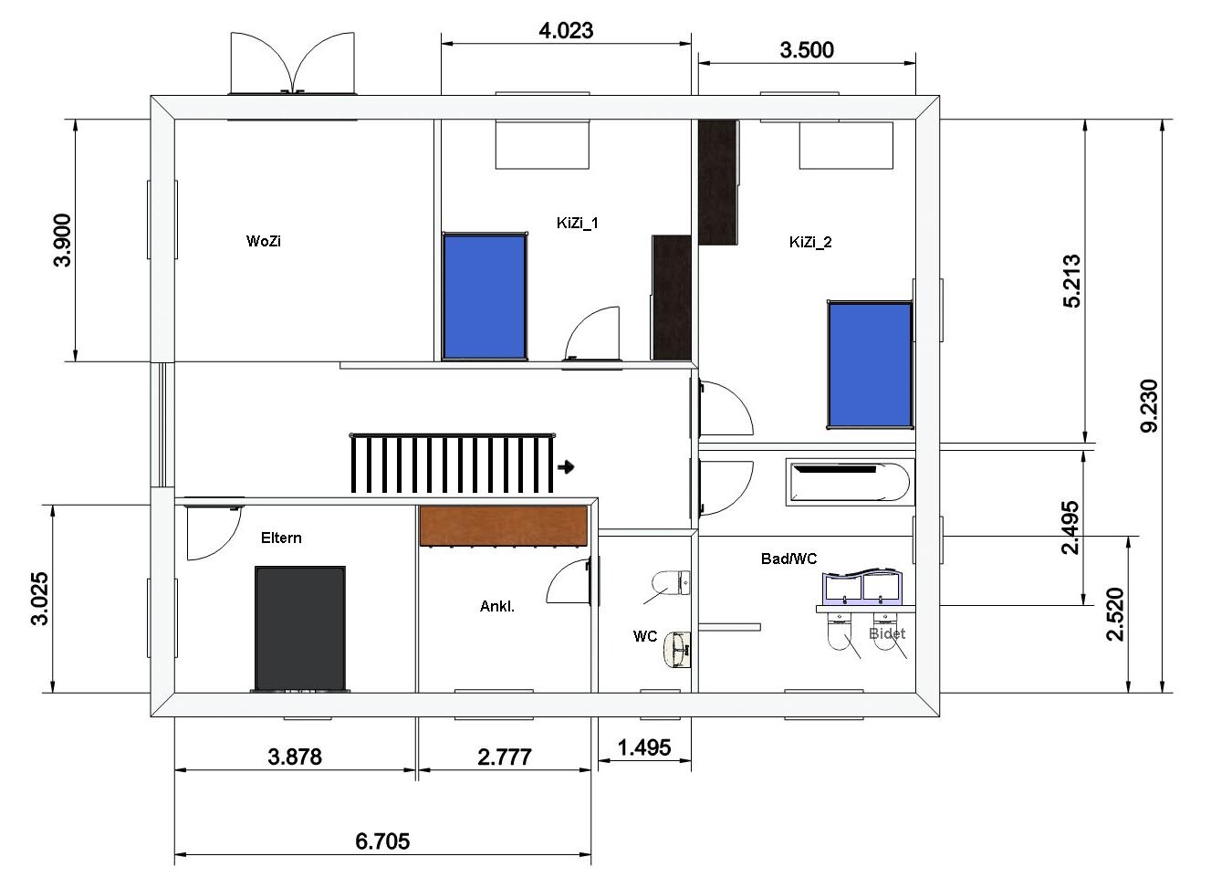
weitere Wünsche/Besonderheiten => uns gefällt bei der Treppe die ½ gewendelte Podesttreppe ganz gut, braucht leider auch relativ viel Platz; wir haben eine relativ große Couch (3,50 m x 2,0 m; Im Grundriss EG hab ich diese mal händisch eingezeichnet, da die vom BU eingezeichnete Couch in keinster Weise den relationen entsprechen würde).
Hausentwurf
Von wem stammt die Planung:
=> Planer eines Bauunternehmens nach unseren Vorgaben (Handzeichnung)
Was gefällt besonders?
=> EG würde uns so von der Aufteilung und von der Offenheit und Helligkeit eigentlich schon ganz gut gefallen (evlt. Küche etwas zu klein; wenig Arbeitsfläche)
Was gefällt nicht?
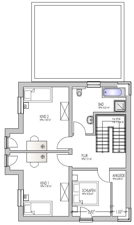
=> DG! Kinderzimmer etwas zu groß, sollten so ca. 15 qm haben, Elternschlfzimmer und Ankleide zu klein; die Aufteilung im Bad ist nicht wirklich schön; durch die Lage der Treppe ist eine Raumaufteilung im DG irgendwie nicht ganz so einfach.
Preisschätzung lt Architekt/Planer: ca. 330.000 EUR (Schlüsselfertig exklusiv Boden und Malern)
Persönliches Preislimit fürs Haus, inkl Ausstattung: 350.000 EUR
favorisierte Heiztechnik: Gasbrennwerttherme oder Luft-Wasser-Wärmepumpe
Wenn Ihr verzichten müsst, auf welche Details/Ausbauten
könnt Ihr verzichten => eigentlich auf nichts, ist ja nichts besonderes drin; evtl. eine andere Treppenform
könnt Ihr nicht verzichten => direkter Zugang zur Garage; offener Wohn-/Essbereich
[/I]
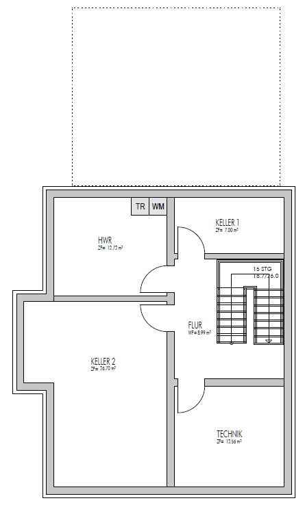
Leider hat uns der BU in den Plänen keine Maße spendiert sondern nur die qm Angaben, aber ich hoffe ich könnt euch darunter was vorstellen.
Vielen Dank schon mal für euer Feedback.
Gruß
Schorsch




wir (meine Frau 28, unser Sohn 9 Monate und ich 32) haben uns letztes Jahr im Herbst ein Grundstück gekauft und sind seit dem am grübeln und zeichnen und schauen wie wir unser Haus planen und gestalten können.
Je mehr man schaut, desto mehr sieht man und desto unschlüssiger wird man sich teilweise.
Vom Grundprinzip her sind wir mit der Aufteilung und Einteilung soweit zufrieden, nur im DG zwickt es noch etwas. Wir würden uns auch über Meinungen von erfahrenen Häuslebauern und Hausbesitzern freuen ob unsere Vorstellungen und auf dem Plan gezeichnete Grundrisse in der Praxis auch wirklich bewohnbar sind.
Anbei die Grunddaten:
Bebauungsplan/Einschränkungen
Größe des Grundstücks: 497 qm (siehe auch Lageplan)
Hang: nein
Geschossigkeit: 2
Dachform: alles erlaubt
Stilrichtung: alles erlaubt bis auf Bungalow
Anforderungen der Bauherren
Stilrichtung, Dachform, Gebäudetyp => Einfamilienhaus mit Erker, Satteldach, 25 – 28 grad (rel. Flach)
Keller, Geschosse => Keller, EG + DG (Kniestock 1,80 – 2,00)
Anzahl der Personen, Alter => aktuell 3 (Er 32, Sie 28, Sohn 9 Monate); 2 Kind ist gewünscht
Raumbedarf im EG, OG:
[I]EG => Wohnen, Essen, Küche, WC/DU, Abstellraum/Speis
DG => 2 x Kinderzimmer, Bad, Elternschlafzimmer mit Ankleide
Büro => Familiennutzung
offene oder geschlossene Architektur => im Wohn-/Essbereich offen
konservativ oder moderne Bauweise => modern aber gemütlich
offene Küche, Kochinsel => offen, Küchenform noch nicht festgelegt, je nach dem welche Form am besten passt
Anzahl Essplätze => mind. 4 aber 6 – 8 sollten schon Platz haben
Kamin => nein
Musik/Stereowand => nein
Balkon, Dachterrasse => nein
Garage, Carport => Doppelgarage mit direkten Zugang zum Haus
Nutzgarten, Treibhaus => normaler Garten, nichts besonderes geplant
weitere Wünsche/Besonderheiten => uns gefällt bei der Treppe die ½ gewendelte Podesttreppe ganz gut, braucht leider auch relativ viel Platz; wir haben eine relativ große Couch (3,50 m x 2,0 m; Im Grundriss EG hab ich diese mal händisch eingezeichnet, da die vom BU eingezeichnete Couch in keinster Weise den relationen entsprechen würde).
Hausentwurf
Von wem stammt die Planung:
=> Planer eines Bauunternehmens nach unseren Vorgaben (Handzeichnung)
Was gefällt besonders?
=> EG würde uns so von der Aufteilung und von der Offenheit und Helligkeit eigentlich schon ganz gut gefallen (evlt. Küche etwas zu klein; wenig Arbeitsfläche)
Was gefällt nicht?
=> DG! Kinderzimmer etwas zu groß, sollten so ca. 15 qm haben, Elternschlfzimmer und Ankleide zu klein; die Aufteilung im Bad ist nicht wirklich schön; durch die Lage der Treppe ist eine Raumaufteilung im DG irgendwie nicht ganz so einfach.
Preisschätzung lt Architekt/Planer: ca. 330.000 EUR (Schlüsselfertig exklusiv Boden und Malern)
Persönliches Preislimit fürs Haus, inkl Ausstattung: 350.000 EUR
favorisierte Heiztechnik: Gasbrennwerttherme oder Luft-Wasser-Wärmepumpe
Wenn Ihr verzichten müsst, auf welche Details/Ausbauten
könnt Ihr verzichten => eigentlich auf nichts, ist ja nichts besonderes drin; evtl. eine andere Treppenform
könnt Ihr nicht verzichten => direkter Zugang zur Garage; offener Wohn-/Essbereich
[/I]
Leider hat uns der BU in den Plänen keine Maße spendiert sondern nur die qm Angaben, aber ich hoffe ich könnt euch darunter was vorstellen.
Vielen Dank schon mal für euer Feedback.
Gruß
Schorsch
J
Jochen10411.08.16 11:10Hallo Tobias,
wenn die Grundrisse bemaßt wären und du ein paar Ansichten hättest und das Haus auf dem Grundstück eingezeichnet hättest, wäre das hilfreich. Wie ist die Ausrichtung des Daches?
Aufgefallen ist mir schon mal folgendes:
wenn die Grundrisse bemaßt wären und du ein paar Ansichten hättest und das Haus auf dem Grundstück eingezeichnet hättest, wäre das hilfreich. Wie ist die Ausrichtung des Daches?
Aufgefallen ist mir schon mal folgendes:
- EG hat viel Flufläche
- Abstellraum ist zu schmal um darin ein Regal aufzustellen
- Wandstummel im Wohnzimmer bringt keinen Vorteil
- Was bringt der Erker (außer Kosten)?
- Erker in den Kinderzimmern vermutlich kaum nutzbar. Viel Licht wird darüber auch nicht in die Räume kommen.
- Weder in eurem Schlafzimmer noch in der Ankleide wirst du vernünftige (60iger) Schränke stellen können. Mit dem Eckfenster schon gar nicht. Lass die Wand zur Ankleide lieber weg.
- Möblierung im Bad ist gelinde gesagt eine Katastrophe.
J
j.bautsch11.08.16 11:24und über die Küche sollte man auch noch mal vernünftig nach denken, so wie sie eingezeichnet wurde würde ich sie nicht haben wollen das ist auch keine wirkliche Kochinsel, das ist eher so ein Anhängsel der schlecht zu nutzen ist und wo die Zuschauer Fettspritzer abbekommen. Außerdem wie soll der Platz hinter den halbinselplätzen genutzt werden? braucht man dort 2 riesige Türen direkt über eck?
Hallo Tobias!
Warum genau liegt die Treppe so, wie sie es tut?
Hat der BU nur eure Vorgaben abgemalt oder auch selber etwas beigesteuert?
Für mich passt das Haus von der Grundidee her nicht. Ihr sagt, dass euch die Kinderzimmer zu groß sind, das lässt sich aber nur durch eine komplett andere Raumaufteilung ändern. Die Ankleide ist zu klein (warum braucht ihr die Überhaupt, wenn man trotzdem nur durch das Schlafzimmer an die Schränke kommt?), im EG gibt es in Relation zur Garderobenfläche (kaum möglich) und Abstellraum (auch kaum zu möblieren) zu viel Flur, aber nur wenig ausreichende Stellflächen für die Möbel in den Wohnräumen.
Ihr solltet dringend auch die restlichen Möbel mal in realistischen Größen einzeichnen!
Insgesamt dürfte es ein sehr kleines (oder zumindest schmales) Haus sein, da sind Maße umso wichtiger!
Warum genau liegt die Treppe so, wie sie es tut?
Hat der BU nur eure Vorgaben abgemalt oder auch selber etwas beigesteuert?
Für mich passt das Haus von der Grundidee her nicht. Ihr sagt, dass euch die Kinderzimmer zu groß sind, das lässt sich aber nur durch eine komplett andere Raumaufteilung ändern. Die Ankleide ist zu klein (warum braucht ihr die Überhaupt, wenn man trotzdem nur durch das Schlafzimmer an die Schränke kommt?), im EG gibt es in Relation zur Garderobenfläche (kaum möglich) und Abstellraum (auch kaum zu möblieren) zu viel Flur, aber nur wenig ausreichende Stellflächen für die Möbel in den Wohnräumen.
Ihr solltet dringend auch die restlichen Möbel mal in realistischen Größen einzeichnen!
Insgesamt dürfte es ein sehr kleines (oder zumindest schmales) Haus sein, da sind Maße umso wichtiger!
R
RobsonMKK11.08.16 11:49Jochen104 schrieb:
Wandstummel im Wohnzimmer bringt keinen VorteilIrgendwo muss ja die innen laufende Schiebetür hin.
Wenn Durchgang von der Garage gewünscht, sollte dort doch auch die Küche und der Abstellraum sein, sonst gewinnst du doch keinen großen Vorteil dadurch.
Schon mal überlegt Küche und Wohnen zu tauschen und auch Du-WC und Abstellraum zu tauschen?
Ähnliche Themen