ᐅ Planung eines Kapitänsgiebelhauses auf Eckgrundstück
Erstellt am: 21.02.24 22:46
Hallo,
wir konnten uns ein Grundstück reservieren (vielen Dank für Eure Hilfe!) und möchten nun ein Kapitänsgiebelhaus planen.
Mit der äußeren Erscheinung des Hauses, der Platzierung auf dem Grundstück und dem Erdgeschoss sind wir ziemlich zufrieden, nur das Obergeschoss bereitet uns noch Sorgen.
Vielleicht habt ihr ja noch Ideen und Verbesserungsvorschläge. Wir würden uns freuen!
Hier die Eckdaten:
Bebauungsplan/Einschränkungen
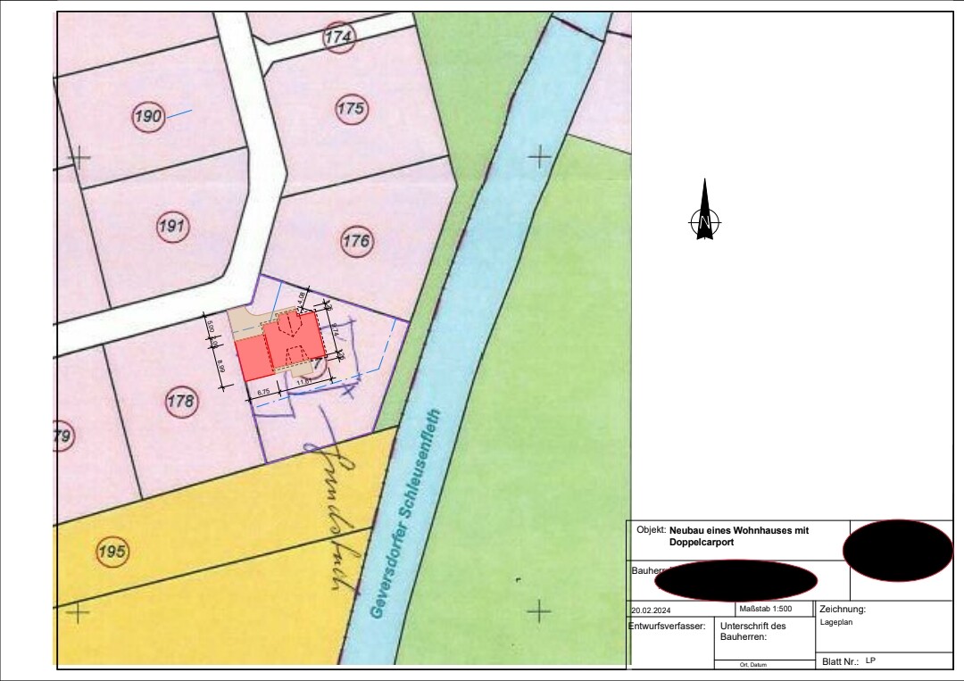
Größe des Grundstücks: 1.062 m²
Hang: nicht vorhanden
Grundflächenzahl: 0,3
Geschossflächenzahl: 1
Baufenster, Baulinie und -grenze: 3m
Randbebauung: ja
Anzahl Stellplatz: mindestens 2
Geschossigkeit: 1,5
Dachform: Mindestneigung von 30 Grad
Stilrichtung: /
Ausrichtung: Nord-Süd
Maximale Höhen/Begrenzungen: max. Firsthöhe: 9m
weitere Vorgaben: parallele Ausrichtung zu einer Grundstücksgrenze
Anforderungen der Bauherren
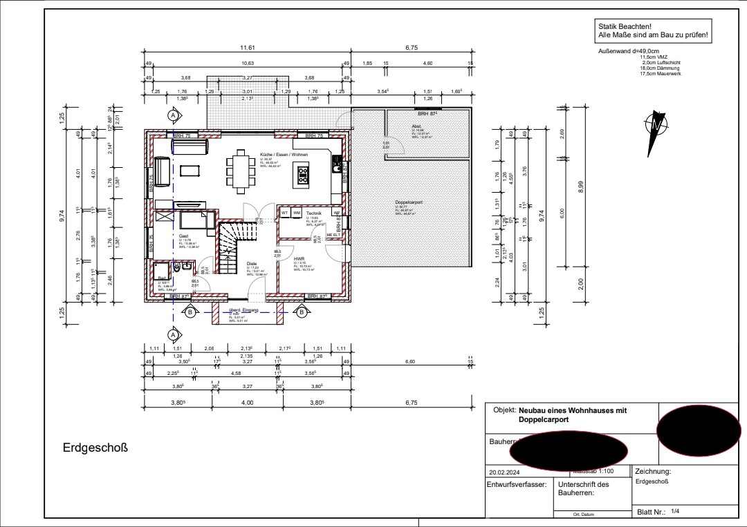
Stilrichtung, Dachform, Gebäudetyp: Kapitänsgiebelhaus
Keller, Geschosse: kein Keller
Anzahl der Personen, Alter: zwei Erwachsene, zwei Kinder (3 und 5 Jahre); evtl. ein weiteres Kind geplant
Raumbedarf im EG, OG: insgesamt etwa 170 m²
Büro: Familiennutzung oder Homeoffice?: Homeoffice (3-4 Mal in der Woche)
Schlafgäste pro Jahr: keine
offene oder geschlossene Architektur:
konservativ oder moderne Bauweise
offene Küche, Kochinsel: offene Küche, angrenzende Kochinsel
Anzahl Essplätze: 8 Essplätze mit der Möglichkeit, mehrmals im Jahr auf 16 Plätze zu erweitern
Kamin: kein Kamin
Musik/Stereowand: /
Balkon, Dachterrasse: /
Garage, Carport: Doppelcarport
Nutzgarten, Treibhaus: /
weitere Wünsche/Besonderheiten/Tagesablauf, gern auch Begründungen, warum dieses oder das nicht sein soll:
- Büro im EG benötigt
- großzügiger Hauswirtschaftsraum mit separatem Technikraum und Zugang von außen, da wir oft mit schmutzigen Klamotten nach Hause kommen und den Dreck nicht im Eingangsbereich haben möchten
- überdachter Eingang
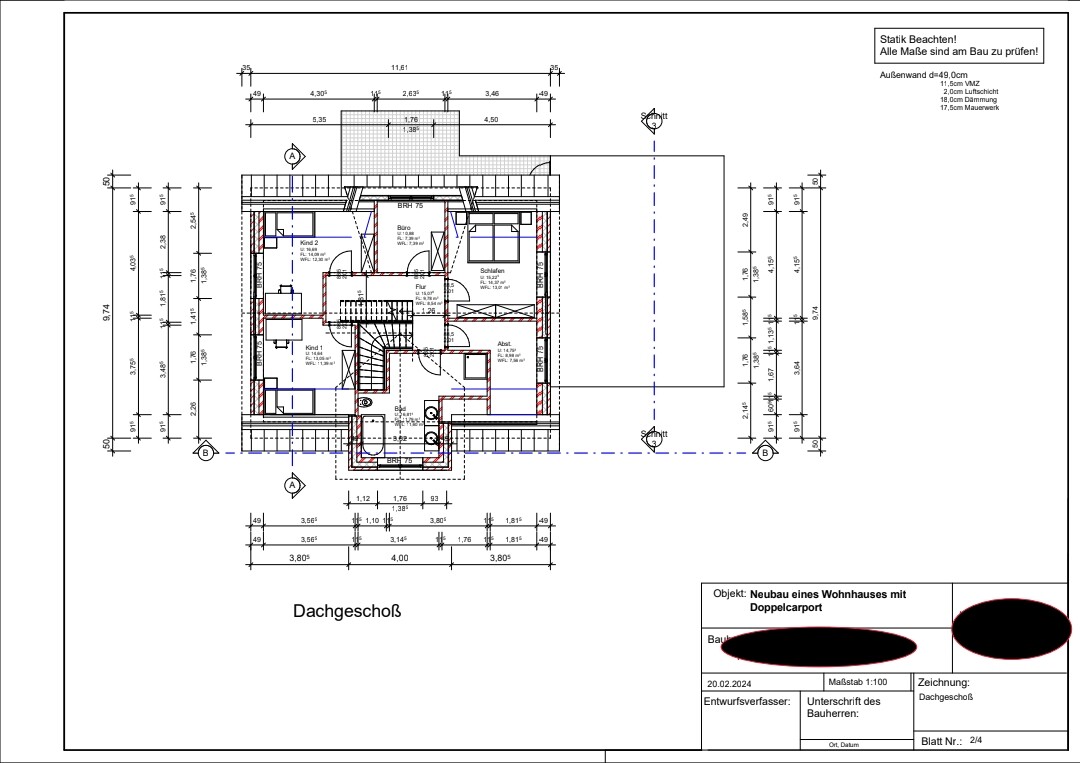
- feste Treppe zum Dachboden, um ggf. ein zusätzliches Spielzimmer für die Kinder einzurichten
- drei Kinderzimmer (wovon ein Zimmer als weiteres Büro dienen soll, falls wir kein drittes Kind bekommen)
- kein separates Ankleidezimmer
Hausentwurf
Von wem stammt die Planung: Architekt
Was gefällt besonders? Warum?: großzügiger Eingangsbereich und Hauswirtschaftsraum, äußere Erscheinung
Was gefällt nicht? Warum?: Gaube nicht mittig; drittes Kinderzimmer viel zu klein, Abstellraum im OG nicht nötig
Preisschätzung laut Architekt/Planer:
Persönliches Preislimit fürs Haus, inkl. Ausstattung:
favorisierte Heiztechnik: Wärmepumpe
Wenn Ihr verzichten müsst, auf welche Details/Ausbauten
-könnt Ihr verzichten: Gaube
-könnt Ihr nicht verzichten: Dusche im EG, Hauswirtschaftsraum, Schlafräume, Badewanne, Walk-in-Duschen




wir konnten uns ein Grundstück reservieren (vielen Dank für Eure Hilfe!) und möchten nun ein Kapitänsgiebelhaus planen.
Mit der äußeren Erscheinung des Hauses, der Platzierung auf dem Grundstück und dem Erdgeschoss sind wir ziemlich zufrieden, nur das Obergeschoss bereitet uns noch Sorgen.
Vielleicht habt ihr ja noch Ideen und Verbesserungsvorschläge. Wir würden uns freuen!
Hier die Eckdaten:
Bebauungsplan/Einschränkungen
Größe des Grundstücks: 1.062 m²
Hang: nicht vorhanden
Grundflächenzahl: 0,3
Geschossflächenzahl: 1
Baufenster, Baulinie und -grenze: 3m
Randbebauung: ja
Anzahl Stellplatz: mindestens 2
Geschossigkeit: 1,5
Dachform: Mindestneigung von 30 Grad
Stilrichtung: /
Ausrichtung: Nord-Süd
Maximale Höhen/Begrenzungen: max. Firsthöhe: 9m
weitere Vorgaben: parallele Ausrichtung zu einer Grundstücksgrenze
Anforderungen der Bauherren
Stilrichtung, Dachform, Gebäudetyp: Kapitänsgiebelhaus
Keller, Geschosse: kein Keller
Anzahl der Personen, Alter: zwei Erwachsene, zwei Kinder (3 und 5 Jahre); evtl. ein weiteres Kind geplant
Raumbedarf im EG, OG: insgesamt etwa 170 m²
Büro: Familiennutzung oder Homeoffice?: Homeoffice (3-4 Mal in der Woche)
Schlafgäste pro Jahr: keine
offene oder geschlossene Architektur:
konservativ oder moderne Bauweise
offene Küche, Kochinsel: offene Küche, angrenzende Kochinsel
Anzahl Essplätze: 8 Essplätze mit der Möglichkeit, mehrmals im Jahr auf 16 Plätze zu erweitern
Kamin: kein Kamin
Musik/Stereowand: /
Balkon, Dachterrasse: /
Garage, Carport: Doppelcarport
Nutzgarten, Treibhaus: /
weitere Wünsche/Besonderheiten/Tagesablauf, gern auch Begründungen, warum dieses oder das nicht sein soll:
- Büro im EG benötigt
- großzügiger Hauswirtschaftsraum mit separatem Technikraum und Zugang von außen, da wir oft mit schmutzigen Klamotten nach Hause kommen und den Dreck nicht im Eingangsbereich haben möchten
- überdachter Eingang
- feste Treppe zum Dachboden, um ggf. ein zusätzliches Spielzimmer für die Kinder einzurichten
- drei Kinderzimmer (wovon ein Zimmer als weiteres Büro dienen soll, falls wir kein drittes Kind bekommen)
- kein separates Ankleidezimmer
Hausentwurf
Von wem stammt die Planung: Architekt
Was gefällt besonders? Warum?: großzügiger Eingangsbereich und Hauswirtschaftsraum, äußere Erscheinung
Was gefällt nicht? Warum?: Gaube nicht mittig; drittes Kinderzimmer viel zu klein, Abstellraum im OG nicht nötig
Preisschätzung laut Architekt/Planer:
Persönliches Preislimit fürs Haus, inkl. Ausstattung:
favorisierte Heiztechnik: Wärmepumpe
Wenn Ihr verzichten müsst, auf welche Details/Ausbauten
-könnt Ihr verzichten: Gaube
-könnt Ihr nicht verzichten: Dusche im EG, Hauswirtschaftsraum, Schlafräume, Badewanne, Walk-in-Duschen
Moin,
mich würden folgende Dinge stören:
EG:
- Keine Garderobe - Wo zieht Ihr Euch an, wo kommen Jacken hin? Immer in den Hauswirtschaftsraum, auch mit Gästen?
- Die Tür vom Abstellraum draußen am Carport würde ich gegenüber der Tür zum Garten legen. Sonst muss man jedes Mal um die Ecke, wenn man vom Garten kommt und da was rausholen will.
- Die Tür zum Gäste-WC öffnet in den Verkehrsraum vor dem Büro. Da kann man ab und an eine Tür abbekommen. Ich sehe keine Notwendigkeit, die Tür in den Flur öffnen zu lassen.
OG:
- Unnötig kleines drittes Kinderzimmer, das kommt vom unpraktischen Grundriss, der vermutlich der festen DG Treppe geschuldet ist.
- Abstellraum ist kaum nutzbar, da auch hier viel Verkehrsfläche benötigt wird und er schmal geschnitten ist
- Das Badezimmer gleicht einem Ballsaal, passt nicht zur Größe des dritten Kinderzimmer
- Ein innenliegender fensterloser Flur ist keine schöne Sache. Du hast kein Tageslicht und bist immer auf Beleuchtung angewiesen
Ich würde im OG das Bad verkleinern, den Abstellraum vergrößern und zum dritten Kinderzimmer umfunktionieren (ggf. beim dritten Kind dann mit Schlafzimmer tauschen) und den Miniraum entfernen. Dadurch erhaltet Ihr dann Licht im Flur, ein nutzbares Zimmer und könnt die Treppe ins OG beibehalten.
Zusätzlich könnt ihr planoben im Flur OG noch eine Lese- / Spielecke mit Gartensicht einrichten.
Viele Grüße

mich würden folgende Dinge stören:
EG:
- Keine Garderobe - Wo zieht Ihr Euch an, wo kommen Jacken hin? Immer in den Hauswirtschaftsraum, auch mit Gästen?
- Die Tür vom Abstellraum draußen am Carport würde ich gegenüber der Tür zum Garten legen. Sonst muss man jedes Mal um die Ecke, wenn man vom Garten kommt und da was rausholen will.
- Die Tür zum Gäste-WC öffnet in den Verkehrsraum vor dem Büro. Da kann man ab und an eine Tür abbekommen. Ich sehe keine Notwendigkeit, die Tür in den Flur öffnen zu lassen.
OG:
- Unnötig kleines drittes Kinderzimmer, das kommt vom unpraktischen Grundriss, der vermutlich der festen DG Treppe geschuldet ist.
- Abstellraum ist kaum nutzbar, da auch hier viel Verkehrsfläche benötigt wird und er schmal geschnitten ist
- Das Badezimmer gleicht einem Ballsaal, passt nicht zur Größe des dritten Kinderzimmer
- Ein innenliegender fensterloser Flur ist keine schöne Sache. Du hast kein Tageslicht und bist immer auf Beleuchtung angewiesen
Ich würde im OG das Bad verkleinern, den Abstellraum vergrößern und zum dritten Kinderzimmer umfunktionieren (ggf. beim dritten Kind dann mit Schlafzimmer tauschen) und den Miniraum entfernen. Dadurch erhaltet Ihr dann Licht im Flur, ein nutzbares Zimmer und könnt die Treppe ins OG beibehalten.
Zusätzlich könnt ihr planoben im Flur OG noch eine Lese- / Spielecke mit Gartensicht einrichten.
Viele Grüße
LisaO schrieb:
Was gefällt besonders? Warum?: großzügiger Eingangsbereich und Hauswirtschaftsraum, äußere ErscheinungSorry, aber zwei Seiten sehen total verschoben und nicht passend aus. Also so richtig falsch und augenkrebsbringend.Wenn man symmetrischen dritten- oder Kapitänsgiebel plant, sollte man sich frei machen, von individuellen Grundrissen und Wandverschiebungen zu träumen. Ist nicht. Da denke man am besten im Raster und macht das beste daraus. Das ist der Kompromiss!
Grundsätzlich gilt aber und auch hier machbar: Nebenräume und Garagen in den Norden, Süden und Westen für die Aufenthaltsräume freihalten. Schlafzimmer gilt hier eher als ein Nebenraum, Kinderzimmer als ständige Aufenthaltsräume.
Somit ist für mich der Entwurf nicht diskutabel.
H
hanghaus202322.02.24 12:10Ich verlinke mal zum Ursprungsbeitrag:
https://www.hausbau-forum.de/threads/reservierung-eines-grundstuecks.46210/
https://www.hausbau-forum.de/threads/reservierung-eines-grundstuecks.46210/
H
hanghaus202322.02.24 12:29Ist denn der altmodische Stiel vorgeschrieben?
Im anderen Beitrag wird im Bebauungsplan auf die Textversion verwiesen. Hast Du die auch?
Ich habe nicht so die Ahnung von Grundrissen, aber die Brüstungshöhe vom Küchenfenster solltest noch mal überdenken. Oder baut Ihr für Rollstuhlfahrer?
Im OG den Erker um das Bad unterzubringen?? Daneben ein riesiger Abstellraum? Da kann doch das Bad hin.
Die Ausrichtung vom Haus kann man so machen, wenn sicher ist, das im Süden kein Haus folgt.
Im anderen Beitrag wird im Bebauungsplan auf die Textversion verwiesen. Hast Du die auch?
Ich habe nicht so die Ahnung von Grundrissen, aber die Brüstungshöhe vom Küchenfenster solltest noch mal überdenken. Oder baut Ihr für Rollstuhlfahrer?
Im OG den Erker um das Bad unterzubringen?? Daneben ein riesiger Abstellraum? Da kann doch das Bad hin.
Die Ausrichtung vom Haus kann man so machen, wenn sicher ist, das im Süden kein Haus folgt.
Gerade freute ich mich schon darüber, daß der Planer kein Oktameterignorant ist, da las ich das:
Kapitänshaus heißt immer Anderthalbgeschösser (und damit ungleiche Achslastverteilung mit Schwerpunkt im EG). Wenn das Raumprogramm für das DG eher ein OG erfordern würde, wird entsprechend etwas ins EG zu verlagern sein (hier: der "Abstellraum" zum Beispiel), wenn denn die Kapitänshausgestalt kriegsentscheidend ist.
Lest im übrigen auch meinen Beitrag "Leichtbauwände in Massivhäusern?". Zumindest als Standard würde ich im DG nicht mauern.
https://www.instagram.com/11antgmxde/
https://www.linkedin.com/company/bauen-jetzt/
LisaO schrieb:Das ist - wie ich schon wiederholtestens (und in "Das Obergeschoss hat Vorrang") ausführte, unwesentlich weniger sicher als das "Amen" in der Kirche eine Folge davon, mit dem EG zu beginnen (und/oder ...)
Mit der äußeren Erscheinung des Hauses, der Platzierung auf dem Grundstück und dem Erdgeschoss sind wir ziemlich zufrieden, nur das Obergeschoss bereitet uns noch Sorgen.
LisaO schrieb:... der Wahl des "falschen" Baukörperkonzeptes.
und möchten nun ein Kapitänsgiebelhaus planen.
Kapitänshaus heißt immer Anderthalbgeschösser (und damit ungleiche Achslastverteilung mit Schwerpunkt im EG). Wenn das Raumprogramm für das DG eher ein OG erfordern würde, wird entsprechend etwas ins EG zu verlagern sein (hier: der "Abstellraum" zum Beispiel), wenn denn die Kapitänshausgestalt kriegsentscheidend ist.
LisaO schrieb:Daß Sümmetrieh kein Wert an sich ist, und häufig eine Hypothek für einen Hausentwurf, erwähnte ich gewiß schon.
Was gefällt nicht? Warum?: Gaube nicht mittig; [...]
LisaO schrieb:Wenn ein überflüssiger Raum einen mangelnden Raum nicht ausgleicht, stimmt etwas vor dem Komma nicht.
drittes Kinderzimmer viel zu klein, Abstellraum im OG nicht nötig
ypg schrieb:Spontan wollte ich mich erst über die Wortwahl mokieren, aber nach der Inaugenscheinnahme des Corpus delicti vielleicht doch lieber einen Dichterpreis dafür verleihen.
Sorry, aber zwei Seiten sehen total verschoben und nicht passend aus. Also so richtig falsch und augenkrebsbringend.
SoL schrieb:Dieser Boxenstopp wird in 3D und VR regelmäßig übersprungen.
Keine Garderobe - Wo zieht Ihr Euch an, wo kommen Jacken hin?
SoL schrieb:Insgesamt wirkt der Entwurf auf mich nicht frisch gekocht, sondern von einem Kataloghaus umgebastelt (ähnlich wie man einen "Hund" aus einem einzigen länglichen Luftballon knotet).
das kommt vom unpraktischen Grundriss, der vermutlich der festen DG Treppe geschuldet ist.
Lest im übrigen auch meinen Beitrag "Leichtbauwände in Massivhäusern?". Zumindest als Standard würde ich im DG nicht mauern.
https://www.instagram.com/11antgmxde/
https://www.linkedin.com/company/bauen-jetzt/
Ähnliche Themen