Planung eines Einfamilienhaus (KG + EG +OG) auf 480m² Grundstück

4,90 Stern(e) 8 Votes
Zuletzt aktualisiert 06.10.2025
Sie befinden sich auf der Seite 11 der Diskussion zum Thema: Planung eines Einfamilienhaus (KG + EG +OG) auf 480m² Grundstück
>> Zum 1. Beitrag <<

H

haydee

Bei den Musterhäusern achte auf die Möbel. Oft steht im Schlafzimmer ein schmales Bett, das wird schon noch breiter mit dem Alter, oder die Küche reicht für Mikrowelle, Spülmaschine und Kaffeemaschine.
Lauft alle Treppen, geht in jedes Haus und sprecht über die Ausstattung. Boah die Fliesen sind toll. Nee da ziehe ich aus, geht gar nicht. Wenn euch was gefällt nehmt es mit zur Architektin.
Legt immer Muss sein, wäre nett, geht gar nicht fest. Wäre nett und alles was nicht auf den Listen steht ist euer Streichpotential.

Nimm keinen Vorentwurf mit zur Architektin
 
W

Würfel*

Ich habe am Wochenende mal Homebyme ausprobiert (mit leichten Booster-Nebenwirkungen war das gerade das richtige Wochenende-Programm :p) Danke für den Tipp @ypg , macht echt Spaß und ist super simpel!

Ich möchte dir das Ergebnis meiner Spielerei nicht vorenthalten, da ich mit deinem Raumprogramm gespielt habe. Ergebnis ist ein Haus 9,40 m breit und 11,30 m lang, mit Ausrichtung nach Süden. An diesem Beispiel siehst du, dass man deine Wünsche auch in einem kompakteren Haus unterbringen kann. Und natürlich ist die gerade Showtreppe auch mit drin ;) Wie man da ein Dach drauf packt, habe ich noch nicht rausgefunden. Deshalb sieht es aktuell aus wie ein Flachdachhaus. Sieht eh besser aus als eine Stadtvilla ;)


Grundriss eines Hauses mit Terrasse, Allraum (Küche, Essbereich), Treppe, Garage, Stellplatz, Weg.

Grundriss eines modernen Erdgeschosses: offene Küche, Essbereich, Wohnzimmer, Treppe, Bad, Garten.


2D-Grundriss eines Hauses mit Bad, Sauna, Ankleide, Schlafen, Diele, Büro 1, Büro 2 und Balkon

3D-Grundriss eines Hauses mit Küche, Bad, Treppe und Schlafzimmer

Modernes weißes zweistöckiges Haus mit Glasfronten; Terrasse mit Esstisch auf Holzdeck, Figur davor.

Moderne zweigeschossige Hausfront mit Garage links; Person steht am Eingang.

Moderner Wohnraum mit Kamin, weißen Sofas, grauen Couchtisch, offene Treppe und Pflanze

Moderne offene Wohnung: blaue Küchenzeile links, Treppe in Zentrum, Wohnzimmer rechts.
 
E

Elias_dee

Ich habe am Wochenende ...
Wow, das sieht ja super aus! Ein riesen Dankeschön an dich :) Sehr nett! Ich schaue es mir heute Abend noch detaillierter an, aber denke, das kann man sehr gut nutzen! Übrigens, diese blöde Showtreppe ist meiner Frau aktuell noch wichtig, aber ich bin schon dabei, ihr das auszureden - wir sind mittlerweile schon dabei, dass auch eine Podesttreppe evtl. ok wäre :p

Danke noch mal!

PS: Gute Idee, für den Keller eine eigene Treppe zu planen!
 
S

soneva2012

Eine Showtreppe muss nicht gerade sein. Unsere Nachbarn haben eine viertel gewendelte Eiche Treppe im Faltwerk. Sie ist komplett offen, ohne Gelände und schaut super aus - da ihr keine Kinder plant, könnte so was auch eine Option sein.
 
E

Elias_dee

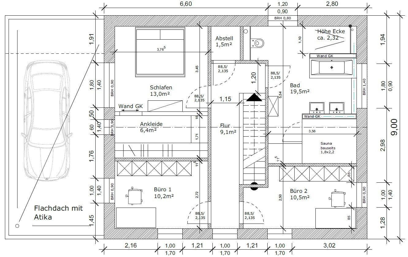
So, guten Abend an alle Mitleser*innen ;) Wir haben mit der Architektin mittlerweile mehrere Runden gedreht und Grundrisse überarbeitet und verworfen. Jetzt ist es ziemlich final und wir gehen damit in die Anfrage. Kleine Details werden natürlich noch hier und da überarbeitet.

Anbei die Grundrisse für KG, EG und OG. Was denkt die Community hier?

Grundriss eines Hauses mit Garage, Küche, Esszimmer, Wohnen, Bad, Diele, Abstellraum und Terrasse


Grundriss eines Hauses: Kellerräume, Gästezimmer, Fitness, Technik/Wäscheraum, Treppenaufgang.


Grundriss eines Hauses mit Garage links, Schlaf-, Ankleide-, Flur-, Bad-, Sauna- und Bürobereichen.
 
Zuletzt aktualisiert 06.10.2025
Im Forum Bauplanung gibt es 5061 Themen mit insgesamt 100646 Beiträgen


Ähnliche Themen zu Planung eines Einfamilienhaus (KG + EG +OG) auf 480m² Grundstück
Nr.ErgebnisBeiträge
1Stadtvilla mit gerader Treppe, offene moderne Bauweise, 140m² 18
2Treppe - Sind die Treppenmaße 2.00x2.00m in Ordnung? - Seite 968
3auf welchen dieser Grundrisse können wir weiter aufbauen? - Seite 38287
4Welcher der Zwei Grundrisse ist besser? 20
5Treppe im Flur, Grundriss steht eigentlich schon :o( - Seite 320
6Frage zu Grundriss, insbesondere Treppe 13
7Treppe Grundriss Planung, Auftritt und Unterzug - Seite 321
8Welche Treppe habt ihr genommen - Seite 277
9Gerade Treppe - warum? 14
10Baumangel - Treppe nicht in Ordnung - Seite 212
11Einfamilienhaus ca. 150 qm Grundriss - Treppe wie planen? - Seite 665
12Treppe - Welches Material, welche Optik? - Seite 214
13Farbgestaltung der Treppe im Wohnraum, Materialwahl - Seite 350
14Fliesenlegen in Neubau OG - keine Treppe vorhanden - Seite 222
15Gerade Treppe für Einfamilienhaus: Maße in Ordnung? 18
16Treppe um 10cm versetzt, Optionen? - Seite 339
17Jemand Ideen für Umgestaltung Treppe 20
18LED-Treppenbeleuchtung Abstände bei geschwungener Treppe 21
19Technikraum so klein wie möglich - Unter der Treppe? - Seite 210
20Treppe im Wohnzimmer als Hype - Pro & Contra? - Seite 526

Oben