ᐅ Pfeifengrundstück, Vorentwurf Einfamilienhaus 170 m²
Erstellt am: 18.10.14 09:26
Legurit18.10.14 09:26
Hallo zusammen,
wir wollen im nächsten Jahr mit dem Bau eines Einfamilienhauses anfangen und sind gerade in der Ideenfindung für einen Grundriss. Was haltet ihr von der jetzigen Idee?
Wir planen für drei Kinder und ohne Keller. Da der Boden sehr feucht ist, wurde uns von einem Keller abgeraten (finden wir auch ganz okay eigentlich). Weiterhin dürfen wir nur eingeschossig bauen.
Wir fanden es recht schwer dem Pfeifengrundstück gerecht zu werden: also Eingang am Ende des Stils, evtl. eine gewisse L-Form. Weiterhin würden wir gern "recht" schmal bauen, um den Garten zu vergrößern. Wir waren bei vielen Musterhausparks und Anbietern hatten da aber wenig gefunden, was wirklich gepasst hat. Wir sind natürlich für alle Ideen und Anregungen offen
Danke fürs Feedback. Viele Grüße.
wir wollen im nächsten Jahr mit dem Bau eines Einfamilienhauses anfangen und sind gerade in der Ideenfindung für einen Grundriss. Was haltet ihr von der jetzigen Idee?
Wir planen für drei Kinder und ohne Keller. Da der Boden sehr feucht ist, wurde uns von einem Keller abgeraten (finden wir auch ganz okay eigentlich). Weiterhin dürfen wir nur eingeschossig bauen.
Wir fanden es recht schwer dem Pfeifengrundstück gerecht zu werden: also Eingang am Ende des Stils, evtl. eine gewisse L-Form. Weiterhin würden wir gern "recht" schmal bauen, um den Garten zu vergrößern. Wir waren bei vielen Musterhausparks und Anbietern hatten da aber wenig gefunden, was wirklich gepasst hat. Wir sind natürlich für alle Ideen und Anregungen offen
Danke fürs Feedback. Viele Grüße.
Manu197618.10.14 10:18
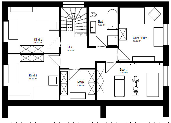
Ich finde den Essbereich recht eng. Und mir persönlich würde ein kleines Arbeitszimmer fehlen, wo man den Computer und die ganzen Dokumentenordner stehen hat. Sonst ist es ganz ok.
Legurit18.10.14 10:25
Danke fürs Feedback.
Der Essbereich hat 3,7m. Würde bedeuten, dass je Tischseite 1,4 m für Stuhl und Durchgang wären - ist das zu schmal? Oder meinst du eher in der Wirkung?
Einen festen PC haben wir derzeit nicht, nur Laptops und die stehen im Wohnzimmer.
Der Essbereich hat 3,7m. Würde bedeuten, dass je Tischseite 1,4 m für Stuhl und Durchgang wären - ist das zu schmal? Oder meinst du eher in der Wirkung?
Einen festen PC haben wir derzeit nicht, nur Laptops und die stehen im Wohnzimmer.
Manu197618.10.14 10:33
Ah, ok. 3,70 sind normalerweise ausreichend. Hätte auf weniger getippt. Vielleicht wirkt es auch nur so, weil links noch die Theke mit den Stühlen ist.
Ich habe auch nur Lapi, aber ich brauch nen Platz, wo ich die Rechnungen und die ganze Post sammeln und abheften kann. Da bin ich schon froh, wenn ich das ganze Zeug nicht im Wohnzimmer oder Schlafzimmer unterbringen muss. Ich glaub, wir haben Minimum 10 Ordner mit Unterlagen. Davon mindestens 3 vom Haus.
Ich habe auch nur Lapi, aber ich brauch nen Platz, wo ich die Rechnungen und die ganze Post sammeln und abheften kann. Da bin ich schon froh, wenn ich das ganze Zeug nicht im Wohnzimmer oder Schlafzimmer unterbringen muss. Ich glaub, wir haben Minimum 10 Ordner mit Unterlagen. Davon mindestens 3 vom Haus.
ypg18.10.14 11:31
Oberflächlich sieht es ganz gut aus.
Dennoch sticht mir ins Auge: der lange Gang vom Eingang zum Essbereich, der Umweg durch die Küche zum Hauswirtschaftsraum, die Lage der Treppe.
Kannst Du mal definieren, wozu Du drei separate Abstell- bzw HW-Räume brauchst? Wo soll die Technik rein?
Ich würde grundsätzlich die Eingangsdiele zum Hauswirtschaftsraum öffnen, dort auch ggü den Zugang zur Küche planen.
Offene Treppen zum Essbereich finde ich persönlich jetzt nicht störend (im Gegensatz zu vielen anderen), dennoch: bei 3 Kindern, die irgendwann älter werden und Besuch mitbringen, sollte man überlegen, die Treppe mit der Einheit Abstell/Hauswirtschaftsraum zu tauschen. Oben würde es auch funktionieren.
Den Elterntrakt finde ich gelungen.
Es ist halt so, dass im Entwurf gute Ansätze vorhanden sind, dennoch stösst man immer wieder als Laie auf kleine/grosse unbefriedigende Details, die einen Entwurf scheitern lassen. Du hast Dich jetzt auf Deine Bauform eingeschossen und jonglierst mit den Räumen, und das kann dazu führen, dass nie ein optimaler Grundriss herauskommt.
Wenn man sich den Werdegang dieses Entwurfs anschaut, so kann ich sagen, dass Du viel dazu gelernt hast. Dennoch wird es mit der Bauform so sein, dass die Nebenräume sehr präsent sind.
-> lange, schmale Gebäudeform, Eingang an der kurzen Seite...
Ich habe auch nicht das Problem mit dem Architekten verstanden: warum ist es so schwierig, einen Architekt zu finden. Es muss doch ein Architekt zu finden sein, der Dir einen guten Entwurf zaubern kann?!
Dennoch sticht mir ins Auge: der lange Gang vom Eingang zum Essbereich, der Umweg durch die Küche zum Hauswirtschaftsraum, die Lage der Treppe.
Kannst Du mal definieren, wozu Du drei separate Abstell- bzw HW-Räume brauchst? Wo soll die Technik rein?
Ich würde grundsätzlich die Eingangsdiele zum Hauswirtschaftsraum öffnen, dort auch ggü den Zugang zur Küche planen.
Offene Treppen zum Essbereich finde ich persönlich jetzt nicht störend (im Gegensatz zu vielen anderen), dennoch: bei 3 Kindern, die irgendwann älter werden und Besuch mitbringen, sollte man überlegen, die Treppe mit der Einheit Abstell/Hauswirtschaftsraum zu tauschen. Oben würde es auch funktionieren.
Den Elterntrakt finde ich gelungen.
Es ist halt so, dass im Entwurf gute Ansätze vorhanden sind, dennoch stösst man immer wieder als Laie auf kleine/grosse unbefriedigende Details, die einen Entwurf scheitern lassen. Du hast Dich jetzt auf Deine Bauform eingeschossen und jonglierst mit den Räumen, und das kann dazu führen, dass nie ein optimaler Grundriss herauskommt.
Wenn man sich den Werdegang dieses Entwurfs anschaut, so kann ich sagen, dass Du viel dazu gelernt hast. Dennoch wird es mit der Bauform so sein, dass die Nebenräume sehr präsent sind.
-> lange, schmale Gebäudeform, Eingang an der kurzen Seite...
Ich habe auch nicht das Problem mit dem Architekten verstanden: warum ist es so schwierig, einen Architekt zu finden. Es muss doch ein Architekt zu finden sein, der Dir einen guten Entwurf zaubern kann?!
ypg18.10.14 11:40
Ich würde event. das Haus 3 Meter weiter in den Süden stellen (sofern erlaubt), Zugang zum Haus im Norden, mittiger, sodass mit kurzem Flur (und event. anderer Gebäudeanordnung) gearbeitet werden kann .
Dann hast Du auch vor dem Haus im Norden Platz für Carport/Garage, und nicht zu verachten Fensterfläche im Westen, die Wohnräumen zugeordnet werden können.
Ein Garten gewinnt mE durch Raumaufteilungen, als nur eine grosse Fläche auf einer Seite.
Dann hast Du auch vor dem Haus im Norden Platz für Carport/Garage, und nicht zu verachten Fensterfläche im Westen, die Wohnräumen zugeordnet werden können.
Ein Garten gewinnt mE durch Raumaufteilungen, als nur eine grosse Fläche auf einer Seite.
Ähnliche Themen