E
Eddiwoody03.09.25 08:14Hallo zusammen,
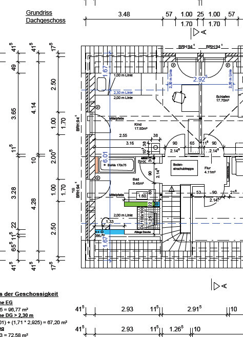
wir bauen mit einem GU und versuchen uns an der Badezimmeraufteilung. Im Bild unten befindet sich eine Dachschräge mit 45°, links das Fenster mit 1,05m ist auch fest. Die Tür könnte innerhalb des Flures, sowie die Trockenwand zum Kinderzimmer verschoben werden. Der Schornstein wird nicht gebaut werden und wurde fälschlicherweise eingezeichnet.
Unser Wunsch war eigentlich eine Dusche ohne Glas (da es uns mittlerweile als kaum möglich erscheint, werden wir langsam für die Alternative offen) und ein Waschbecken mit mind. 100 cm.
Auf dem Bild seht ihr unseren zweiten Versuch, wie er vom Planer an uns übergeben wurde. Nun sagt allerdings unser GU, dass wir mit der Dusche (an der 2 m Linie, die 2,3m Linie ist falsch) zu weit unter der Schräge sind und es zu eng wäre. Deswegen würde uns interessieren, ob ihr das auch so seht bzw. wie weit wir rutschen müssten (wahrscheinlich wird es zu eng mit dem Waschbecken und der Tür, sodass wir zur Not ein bisschen in das Kinderzimmer rücken würden). Da wir das eigentlich vermeiden möchten, wären wir auch für alternative Ideen offen.
Vielen Dank im Voraus.

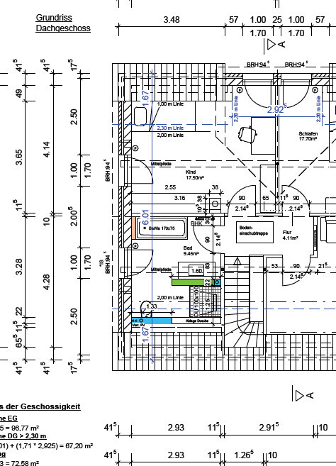
wir bauen mit einem GU und versuchen uns an der Badezimmeraufteilung. Im Bild unten befindet sich eine Dachschräge mit 45°, links das Fenster mit 1,05m ist auch fest. Die Tür könnte innerhalb des Flures, sowie die Trockenwand zum Kinderzimmer verschoben werden. Der Schornstein wird nicht gebaut werden und wurde fälschlicherweise eingezeichnet.
Unser Wunsch war eigentlich eine Dusche ohne Glas (da es uns mittlerweile als kaum möglich erscheint, werden wir langsam für die Alternative offen) und ein Waschbecken mit mind. 100 cm.
Auf dem Bild seht ihr unseren zweiten Versuch, wie er vom Planer an uns übergeben wurde. Nun sagt allerdings unser GU, dass wir mit der Dusche (an der 2 m Linie, die 2,3m Linie ist falsch) zu weit unter der Schräge sind und es zu eng wäre. Deswegen würde uns interessieren, ob ihr das auch so seht bzw. wie weit wir rutschen müssten (wahrscheinlich wird es zu eng mit dem Waschbecken und der Tür, sodass wir zur Not ein bisschen in das Kinderzimmer rücken würden). Da wir das eigentlich vermeiden möchten, wären wir auch für alternative Ideen offen.
Vielen Dank im Voraus.
Eddiwoody schrieb:
Nun sagt allerdings unser GU, dass wir mit der Dusche (an der 2 m Linie, die 2,3m Linie ist falsch) zu weit unter der Schräge sind und es zu eng wäre.Ja, da hat er recht. Die Dusche wird ja hoch wie möglich gesetzt, dass man als ausgewachsener Mensch auch unter der Dusche stehen kann.Eddiwoody schrieb:
zu eng mit dem WaschbeckenDas ist das erste, was ich erst einmal ändern würde: Waschtisch vom Eingang weg! Das hat Prio. Dann gehört am besten die Wanne unter die Schräge, damit die Fläche gut genutzt wird. Leider werdet ihr wohl tatsächlich die Mittelwand zum Nachteil des Kinderzimmer etwas versetzen müssen. Allerdings sollte man im Kopf haben, dass diese 17,5 Qm wohl nicht die reelle Wohnfläche abbildet, sondern der Raum real kleiner ist.
H
hanghaus202304.09.25 14:42Gibt es einen Schnitt? Wenn die 2,3 m Lini näher an der Wand ist als die 2 m Linie werde ich stutzig.
P
Papierturm04.09.25 16:55So als Idee, weswegen ich da recht viel ändern würde:
Man kommt ins Bad herein. Läuft quasi direkt vor die Wanne. Dann muss man sich so schräg zwischen Bad und Waschbecken herbewegen, um zum Rest des Badezimmers zu kommen. Finde ich total unpraktisch.
Ich gehe jetzt mal anders herum dran:
Wie @ypg würde ich die Badewanne unter die Dachschräge packen. Da ist sie am besten aufgehoben.
Jetzt kommt für mich das Problem, dass ich das Bad (einschl. Türplatzierung) etwas ungünstig geschnitten finde. Ich kriege da keine Idee im Kopf zusammen, die mich wirklich vom Hocker reißt.
Da ich mehrere Aspekte ohne tolle Lösung im Kopf jongliere:
1. Laufwege (möglichst ohne Stolpergefahren, möglichst eingängig).
2. Blick, wenn man ins Badezimmer herein kommt.
3. Sinnvolle Anordnung der vier Badelemente (Badewanne, Dusche, WC, Waschbecken).
Gehe ich jetzt von Punkt 3 aus:
- Badewanne unter Dachschräge ist gut.
- Waschbecken sollte sich (meiner Meinung nach) im Laufweg zu oder in der Nähe der Toilette befinden. Ebenfalls sollte da Tageslicht vefügbar sein.
- Dusche sieht (meiner Meinung nach) echt schick aus, wenn da drei, mindestens aber zwei, Wände gefliest sind (also kein "Glaskasten"). Ist zudem oft kein Highlight, wenn man direkt drauf schauf.
- Toilette ist total wichtig, will aber irgendwie auch kaum jemand im Sichtfeld haben.
So. Jetzt kann ich nicht zeichnen. Würde ich versuchen die Punkte da oben irgendwie in Einklang zu bringen, dann könnte das so aussehen:
- Badewanne unten rechts.
- Wenn der Platz reicht (kann sein, dass der Raum zu schmal ist) die Toilette unten links, also etwa da, wo sie jetzt auch ist. Evtl. je nach Größe Badewanne noch etwas mehr nach links.
- Waschbecken in groß und schön nach oben rechts.
- Dusche um 90° drehen und mit Öffnung nach unten (oder mit 2 Öffnungen, könnte auch gut aussehen) hochschieben, sodass (das ist leider ungünstig) eine Art "Schlauch" hinter der Eingangstür entsteht.
Dann könnte man schön einen Handtuchheizer zwischen Badewanne und Dusche platzieren. Vielleicht darunter sogar eine Art Sitzgelegenheit. Die Nassbereiche sind so zusammen. Von Toilette und Waschbecken gibt es einen direkten Weg ohne Stolpergefahr (man könnte wahrscheinlich das Waschbecken auch an die nun dem Fenster zugewandte Wand der Dusche packen, aber das wäre so eine typische Stolpergefahr, wenn jemand nachts auf Toilette möchte). Beim Betreten des Raumes sieht man direkt das Waschbecken und das Fenster.
So wirklich gut gefällt mir die Idee auch nicht. Daher das bitte nicht als Idee nehmen a la "so sollte mans machen", sondern als Stubsi um die eigenen Gedanken zur Neuanordnung ins Rollen zu bringen.
Man kommt ins Bad herein. Läuft quasi direkt vor die Wanne. Dann muss man sich so schräg zwischen Bad und Waschbecken herbewegen, um zum Rest des Badezimmers zu kommen. Finde ich total unpraktisch.
Ich gehe jetzt mal anders herum dran:
Wie @ypg würde ich die Badewanne unter die Dachschräge packen. Da ist sie am besten aufgehoben.
Jetzt kommt für mich das Problem, dass ich das Bad (einschl. Türplatzierung) etwas ungünstig geschnitten finde. Ich kriege da keine Idee im Kopf zusammen, die mich wirklich vom Hocker reißt.
Da ich mehrere Aspekte ohne tolle Lösung im Kopf jongliere:
1. Laufwege (möglichst ohne Stolpergefahren, möglichst eingängig).
2. Blick, wenn man ins Badezimmer herein kommt.
3. Sinnvolle Anordnung der vier Badelemente (Badewanne, Dusche, WC, Waschbecken).
Gehe ich jetzt von Punkt 3 aus:
- Badewanne unter Dachschräge ist gut.
- Waschbecken sollte sich (meiner Meinung nach) im Laufweg zu oder in der Nähe der Toilette befinden. Ebenfalls sollte da Tageslicht vefügbar sein.
- Dusche sieht (meiner Meinung nach) echt schick aus, wenn da drei, mindestens aber zwei, Wände gefliest sind (also kein "Glaskasten"). Ist zudem oft kein Highlight, wenn man direkt drauf schauf.
- Toilette ist total wichtig, will aber irgendwie auch kaum jemand im Sichtfeld haben.
So. Jetzt kann ich nicht zeichnen. Würde ich versuchen die Punkte da oben irgendwie in Einklang zu bringen, dann könnte das so aussehen:
- Badewanne unten rechts.
- Wenn der Platz reicht (kann sein, dass der Raum zu schmal ist) die Toilette unten links, also etwa da, wo sie jetzt auch ist. Evtl. je nach Größe Badewanne noch etwas mehr nach links.
- Waschbecken in groß und schön nach oben rechts.
- Dusche um 90° drehen und mit Öffnung nach unten (oder mit 2 Öffnungen, könnte auch gut aussehen) hochschieben, sodass (das ist leider ungünstig) eine Art "Schlauch" hinter der Eingangstür entsteht.
Dann könnte man schön einen Handtuchheizer zwischen Badewanne und Dusche platzieren. Vielleicht darunter sogar eine Art Sitzgelegenheit. Die Nassbereiche sind so zusammen. Von Toilette und Waschbecken gibt es einen direkten Weg ohne Stolpergefahr (man könnte wahrscheinlich das Waschbecken auch an die nun dem Fenster zugewandte Wand der Dusche packen, aber das wäre so eine typische Stolpergefahr, wenn jemand nachts auf Toilette möchte). Beim Betreten des Raumes sieht man direkt das Waschbecken und das Fenster.
So wirklich gut gefällt mir die Idee auch nicht. Daher das bitte nicht als Idee nehmen a la "so sollte mans machen", sondern als Stubsi um die eigenen Gedanken zur Neuanordnung ins Rollen zu bringen.
Papierturm schrieb:
So. Jetzt kann ich nicht zeichnen.Könnte ich machen.Wenn @Eddiwoody noch ein Lebenszeichen gibt.. ?!
E
Eddiwoody05.09.25 08:52Vielen Dank für eure Antworten, insbesondere an die ausführlichen Gedanken von @Papierturm.
Aktuell haben wir die Dusche in die linke Ecke geschoben und gehen ca. 40 cm in den Nachbarraum, weil das sonst mit dem Fenster nicht passen würde, und hängen daran das Waschbecken unterhalb des Fensters. Die Wanne kommt dann rechts an die Wand (oder Eckwanne) und die Toilette gegenüber vom Waschbecken unter die Schräge. Die Dusche ist dann zwar sehr offen beim Reingehen, aber immerhin bekommen wir alle Möbelstücke unter 😳

hanghaus2023 schrieb:Wie oben geschrieben ist die 2,3 m Linie falsch eingezeichnet
Gibt es einen Schnitt? Wenn die 2,3 m Lini näher an der Wand ist als die 2 m Linie werde ich stutzig.
Papierturm schrieb:Ja, das stimmt. Allerdings passt da leider noch nicht einmal das Klo vernünftig neben und wir haben dann Probleme alles unterzubringen.
Ich gehe jetzt mal anders herum dran:
Wie @ypg würde ich die Badewanne unter die Dachschräge packen. Da ist sie am besten aufgehoben.
Papierturm schrieb:reicht leider nicht
- Wenn der Platz reicht (kann sein, dass der Raum zu schmal ist) die Toilette unten links, also etwa da, wo sie jetzt auch ist. Evtl. je nach Größe Badewanne noch etwas mehr nach links.
Papierturm schrieb:die Idee hatten wir bisher tatsächlich noch gar nicht, allerdings bin ich mir nicht sicher, ob ich das richtig verstanden habe, weil du einmal schreibst, das Waschbecken wäre dem Fenster zugewandt und danach sagst du, man sieht es beim Reinkommen. Aktuell haben wir nur 30 cm hinter der Tür, sodass wir fast 1,5 m vom Nachbarraum wegnehmen müssten, weil du ja meintest, die Öffnung der Dusche würde nach unten zeigen, habe ich das nun zumindest so interpretiert. Außer die Dusche wäre am Fenster, wo dann aber zum Einen das Fenster immer nass würde und das Waschbecken wieder zur Tür zeigen würde. Ansonsten stimmen deine Gedanken sehr mit unserem allerersten Versuch überein, gerade was Wanne und Klo betrifft. Vielen Dank.
- Dusche um 90° drehen und mit Öffnung nach unten
Aktuell haben wir die Dusche in die linke Ecke geschoben und gehen ca. 40 cm in den Nachbarraum, weil das sonst mit dem Fenster nicht passen würde, und hängen daran das Waschbecken unterhalb des Fensters. Die Wanne kommt dann rechts an die Wand (oder Eckwanne) und die Toilette gegenüber vom Waschbecken unter die Schräge. Die Dusche ist dann zwar sehr offen beim Reingehen, aber immerhin bekommen wir alle Möbelstücke unter 😳
Ähnliche Themen