ᐅ Neubau Einfamilienhaus - Stadtvilla Grundriss und Außenansicht
Erstellt am: 03.05.20 11:58
P
Project_2020P
Project_202003.05.20 11:58Hallo Foren-Gemeinde,
wir sind aktuell in der Planungsphase für unser Haus. Wir haben uns sehr viel angelesen und Ideen gesammelt um die Planung für uns so optimal zu machen wie möglich Auch Hier im Forum konnten wir uns die ein oder andere Idee mitnehmen, also Danke an die fleißigen Leser und Schreiber und das gute Informationen geteilt werden
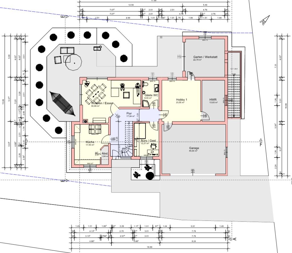
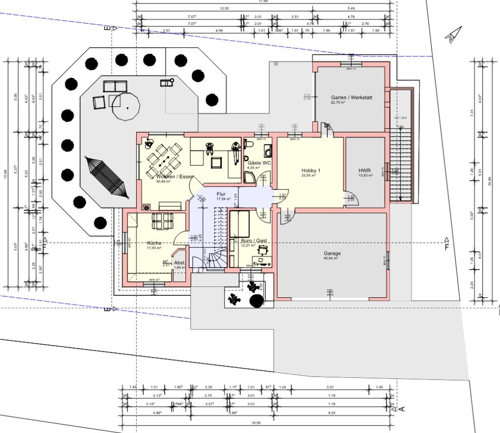
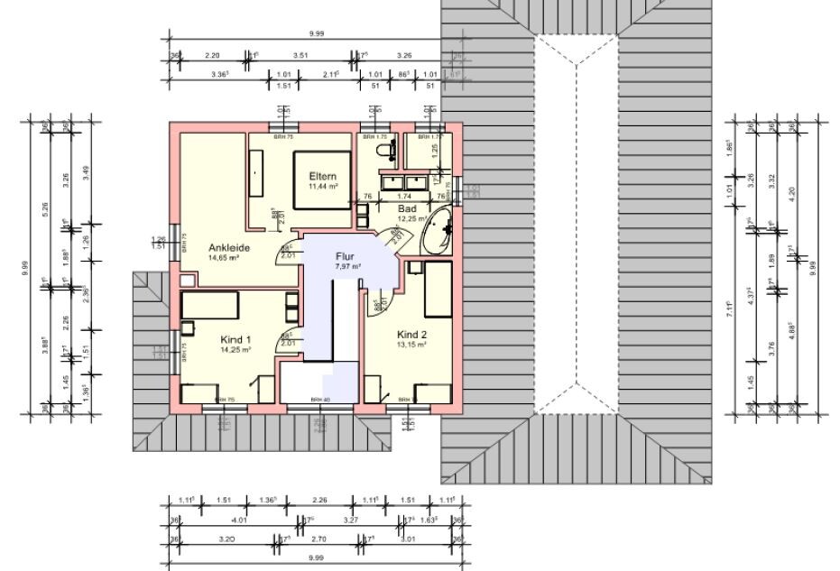
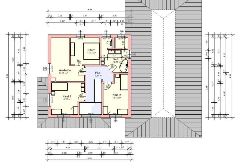
Ich habe anbei mal die Grundrisspläne angehangen. (Ich hoffe man kann alles Lesen). Wir setzen uns jetzt schon circa 9 Monate mit der Planung auseinander und irgendwann ist man sehr eingefahren und übersieht gewisse Dinge bzw. Sie fallen einem nicht mehr auf
Daher sind wir um jede Meinung/konstruktive Kritik/Tipps sehr dankbar.
Los geht's:
Bebauungsplan/Einschränkungen
Größe des Grundstücks: 1300m²
Hang: Nein.
Grundflächenzahl:
Geschossflächenzahl:
Baufenster, Baulinie und -grenze:
Randbebauung: Nein.
Anzahl Stellplatz: Doppelgarage und 2 Außenstellplätze.
Geschossigkeit: 2 Vollgeschosse.
Dachform: Walmdach.
Stilrichtung: Stadtvilla.
Ausrichtung: Front liegt im Süd-Osten. Terrasse im Westen/Südwesten.
Maximale Höhen/Begrenzungen
weitere Vorgaben
Anforderungen der Bauherren
Stilrichtung, Dachform, Gebäudetyp: Stadtvilla, Walmdach, Massivhaus.
Keller, Geschosse: Teilunterkellert, 2 volle Geschosse.
Anzahl der Personen, Alter: Erstmal 2 (Mitte 20). In Zukunft vermutlich 4 (Alter ab 0 aufsteigend )
Raumbedarf im EG: Küche/Esszimmer, Wohn- und Esszimmer, Badezimmer, Büro/Gästezimmer, Hauswirtschaftsraum, Hobbyraum, Werkstatt. Raumbedarf im OG: Badezimmer, zwei Kinderzimmer, Schlaf- und Ankleidezimmer.
Büro: Familiennutzung oder Homeoffice? Homeoffice.
Schlafgäste pro Jahr: Gelegentlich, meistens 2 Personen.
offene oder geschlossene Architektur; Geschlossene Architektur.
konservativ oder moderne Bauweise: Beides.
offene Küche, Kochinsel: Nicht offen. Keine Kochinsel.
Anzahl Essplätze: 4.
Kamin: Ja, Wohnzimmer.
Musik/Stereowand: Nicht geplant.
Balkon, Dachterrasse: Nein.
Garage, Carport: Doppelgarage.
Nutzgarten, Treibhaus: Nach Baufertigstellung, ja.
weitere Wünsche/Besonderheiten/Tagesablauf, gern auch Begründungen, warum dieses oder das nicht sein soll
Hausentwurf
Von wem stammt die Planung:
-Do-it-Yourself: Von uns selbst in Zusammenarbeit mit einem Architekt.
Was gefällt besonders? Warum? Der Erker, der das Gesamtbild auflockert. Die Terrasse neben und hinter dem Haus um geschützt draußen sitzen zu können. Die Hobby-/Werkstatträume zur persönlichen Entfaltung.
Was gefällt nicht? Warum? Auf den ersten Blick nichts, daher die Frage was ihr davon haltet
Preisschätzung lt Architekt/Planer: 400k€
Persönliches Preislimit fürs Haus, inkl Ausstattung:
favorisierte Heiztechnik: Erdwärme per Tiefenbohrung oder Flächen/Grabenkollektor.
Wenn Ihr verzichten müsst, auf welche Details/Ausbauten
-könnt Ihr verzichten: zu viel Smart-Home.
-könnt Ihr nicht verzichten: Fußbodenheizung. Die Terrassen. Die Hobbyräume.
Warum ist der Entwurf so geworden, wie er jetzt ist? ZB
Anschauen verschiedener Musterhäuser, Häuser von Freunden und Überlegung was uns beiden an unseren Elternhäusern gefallen und vor allem gestört hat.
Was ist die wichtigste/grundlegende Frage zum Grundriss in 130 Zeichen zusammengefasst?
Einfach eine objektive Meinung zu unserem Projekt zu bekommen. Wir fragen uns ob wir mit der subjektiven, rosaroten Brille etwas übersehen






wir sind aktuell in der Planungsphase für unser Haus. Wir haben uns sehr viel angelesen und Ideen gesammelt um die Planung für uns so optimal zu machen wie möglich Auch Hier im Forum konnten wir uns die ein oder andere Idee mitnehmen, also Danke an die fleißigen Leser und Schreiber und das gute Informationen geteilt werden
Ich habe anbei mal die Grundrisspläne angehangen. (Ich hoffe man kann alles Lesen). Wir setzen uns jetzt schon circa 9 Monate mit der Planung auseinander und irgendwann ist man sehr eingefahren und übersieht gewisse Dinge bzw. Sie fallen einem nicht mehr auf
Daher sind wir um jede Meinung/konstruktive Kritik/Tipps sehr dankbar.
Los geht's:
Bebauungsplan/Einschränkungen
Größe des Grundstücks: 1300m²
Hang: Nein.
Grundflächenzahl:
Geschossflächenzahl:
Baufenster, Baulinie und -grenze:
Randbebauung: Nein.
Anzahl Stellplatz: Doppelgarage und 2 Außenstellplätze.
Geschossigkeit: 2 Vollgeschosse.
Dachform: Walmdach.
Stilrichtung: Stadtvilla.
Ausrichtung: Front liegt im Süd-Osten. Terrasse im Westen/Südwesten.
Maximale Höhen/Begrenzungen
weitere Vorgaben
Anforderungen der Bauherren
Stilrichtung, Dachform, Gebäudetyp: Stadtvilla, Walmdach, Massivhaus.
Keller, Geschosse: Teilunterkellert, 2 volle Geschosse.
Anzahl der Personen, Alter: Erstmal 2 (Mitte 20). In Zukunft vermutlich 4 (Alter ab 0 aufsteigend )
Raumbedarf im EG: Küche/Esszimmer, Wohn- und Esszimmer, Badezimmer, Büro/Gästezimmer, Hauswirtschaftsraum, Hobbyraum, Werkstatt. Raumbedarf im OG: Badezimmer, zwei Kinderzimmer, Schlaf- und Ankleidezimmer.
Büro: Familiennutzung oder Homeoffice? Homeoffice.
Schlafgäste pro Jahr: Gelegentlich, meistens 2 Personen.
offene oder geschlossene Architektur; Geschlossene Architektur.
konservativ oder moderne Bauweise: Beides.
offene Küche, Kochinsel: Nicht offen. Keine Kochinsel.
Anzahl Essplätze: 4.
Kamin: Ja, Wohnzimmer.
Musik/Stereowand: Nicht geplant.
Balkon, Dachterrasse: Nein.
Garage, Carport: Doppelgarage.
Nutzgarten, Treibhaus: Nach Baufertigstellung, ja.
weitere Wünsche/Besonderheiten/Tagesablauf, gern auch Begründungen, warum dieses oder das nicht sein soll
Hausentwurf
Von wem stammt die Planung:
-Do-it-Yourself: Von uns selbst in Zusammenarbeit mit einem Architekt.
Was gefällt besonders? Warum? Der Erker, der das Gesamtbild auflockert. Die Terrasse neben und hinter dem Haus um geschützt draußen sitzen zu können. Die Hobby-/Werkstatträume zur persönlichen Entfaltung.
Was gefällt nicht? Warum? Auf den ersten Blick nichts, daher die Frage was ihr davon haltet
Preisschätzung lt Architekt/Planer: 400k€
Persönliches Preislimit fürs Haus, inkl Ausstattung:
favorisierte Heiztechnik: Erdwärme per Tiefenbohrung oder Flächen/Grabenkollektor.
Wenn Ihr verzichten müsst, auf welche Details/Ausbauten
-könnt Ihr verzichten: zu viel Smart-Home.
-könnt Ihr nicht verzichten: Fußbodenheizung. Die Terrassen. Die Hobbyräume.
Warum ist der Entwurf so geworden, wie er jetzt ist? ZB
Anschauen verschiedener Musterhäuser, Häuser von Freunden und Überlegung was uns beiden an unseren Elternhäusern gefallen und vor allem gestört hat.
Was ist die wichtigste/grundlegende Frage zum Grundriss in 130 Zeichen zusammengefasst?
Einfach eine objektive Meinung zu unserem Projekt zu bekommen. Wir fragen uns ob wir mit der subjektiven, rosaroten Brille etwas übersehen
D
Drasleona03.05.20 12:29- Abstand Couch zu Fernseher finde ich sehr klein
- keine Garderobe geplant?
- Halleluja was ist mit der Ankleide und dem Schlafzimmer passiert? ops: ich finde die Ankleide viel zu groß und das Schlafzimmer zu klein geraten.
P.S.: was ist das im Gäste-WC? Ist das gegenüber der Toilette das Waschbecken oder das nebendran? Und was ist das jeweils andere?
- keine Garderobe geplant?
- Halleluja was ist mit der Ankleide und dem Schlafzimmer passiert? ops: ich finde die Ankleide viel zu groß und das Schlafzimmer zu klein geraten.
P.S.: was ist das im Gäste-WC? Ist das gegenüber der Toilette das Waschbecken oder das nebendran? Und was ist das jeweils andere?
Ist die Ankleide gewollt so groß? Imho völlig verschenkter Platz. Könnte glatt als ein drittes Kinderzimmer durchgehen. Schlafzimmer dagegen eine Kammer.
Zu kleines Wohnzimmer. Couch etc. funktioniert nicht.
45° Wände/Türen sind in jedem Haus ein Graus.
Ansichten sind ok, auch wenn im Wensten es so aussieht als ob möglichst unterschiedlichste Fenstervarianten verbaut werden sollen.
Zu kleines Wohnzimmer. Couch etc. funktioniert nicht.
45° Wände/Türen sind in jedem Haus ein Graus.
Ansichten sind ok, auch wenn im Wensten es so aussieht als ob möglichst unterschiedlichste Fenstervarianten verbaut werden sollen.
Ja, rosarote Brille absetzen und die Einwände der User davor mal genauer betrachten! Mir ist genau das gleiche sofort aufgefallen, auch wenn die Außenansichten erst mal ganz gut daher kommen.
Große Küche mit vielen Laufgängen, die aber ohne direkten Zugang zum Esszimmer, wo der Tisch dann anscheinend quer gestellt werden muss. Sehr kleines Wohnzimmer, wirklich sehr klein.
Ankleide ganz seltsam groß, Schlafzimmer schon grenzwertig klein.
Kinderzimmer 2 hat eine schlechte Breite.
Ist das im Esszimmer in der Ecke ein Ofen? Da seh ich einen Kamin.
Treppe könnte man auch besser platzieren. Aufgang direkt am Eingang muss nicht sein bei so vielen Qm.
Also nö, ihr verschenkt ganz viele Qm an irgendwas, was nun keinen Nutzen bringt beim täglichen Leben.
Großes Haus, da könnte man mehr draus machen!
Und bei den Kosten hab ich auch Zweifel.
Große Küche mit vielen Laufgängen, die aber ohne direkten Zugang zum Esszimmer, wo der Tisch dann anscheinend quer gestellt werden muss. Sehr kleines Wohnzimmer, wirklich sehr klein.
Ankleide ganz seltsam groß, Schlafzimmer schon grenzwertig klein.
Kinderzimmer 2 hat eine schlechte Breite.
Ist das im Esszimmer in der Ecke ein Ofen? Da seh ich einen Kamin.
Treppe könnte man auch besser platzieren. Aufgang direkt am Eingang muss nicht sein bei so vielen Qm.
Also nö, ihr verschenkt ganz viele Qm an irgendwas, was nun keinen Nutzen bringt beim täglichen Leben.
Großes Haus, da könnte man mehr draus machen!
Und bei den Kosten hab ich auch Zweifel.
Was mit nicht gefällt:
- Küchen hat keine direkte Verbindung zur Terrasse. Aktuell muss du durchs halbe Haus.
- Der Abstellraum in der Küche ist nicht nutzbar. Da bringen dir ein paar Hochschränke mehr.
- Warum zwei Esstische? Ein kleiner in der Küche und ein großer Tisch?
- Couchecke zu klein
- Schlafzimmer und Ankleide geht gar nicht.
- Was soll in den kleine Mini-Keller?
Aus meiner Sicht reichen die 400k€ bei weitem nicht.
- Küchen hat keine direkte Verbindung zur Terrasse. Aktuell muss du durchs halbe Haus.
- Der Abstellraum in der Küche ist nicht nutzbar. Da bringen dir ein paar Hochschränke mehr.
- Warum zwei Esstische? Ein kleiner in der Küche und ein großer Tisch?
- Couchecke zu klein
- Schlafzimmer und Ankleide geht gar nicht.
- Was soll in den kleine Mini-Keller?
Aus meiner Sicht reichen die 400k€ bei weitem nicht.
Ähnliche Themen