Neubau Einfamilienhaus Grundriss 150 m2

4,10 Stern(e) 10 Votes
Zuletzt aktualisiert 23.12.2025
Sie befinden sich auf der Seite 4 der Diskussion zum Thema: Neubau Einfamilienhaus Grundriss 150 m2
>> Zum 1. Beitrag <<

11ant

11ant

Dann haben wir hier wohl keine weiteren Antworten verdient
Also meine Zurückhaltung geht eher darauf zurück, daß ich die moderne Kunst mit Maßen und sonst nichts drangeschrieben nicht ausreichend "verstehe", als daß ich sie qualifiziert kommentieren könnte. Dass man aus den Gemälden schlau wird, halte ich für eine Bringschuld der Fragesteller.
 
Y

ypg

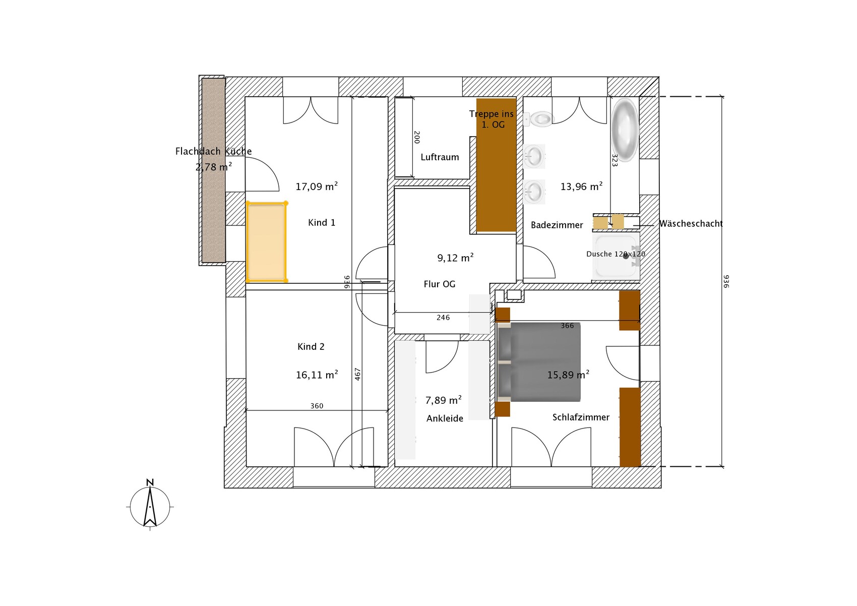
Das OG ist jetzt besser. Durch die schrägen Wände sah das jetzt ja alles sehr altbacken aus.
Dennoch: mir würde das EG nicht gefallen. Aber ich persönlich mag auch diese verwinkelten Wände nicht.
Deshalb bin ich jetzt auch eher zurückhaltend, denn ich kann mit diesem Haus nichts anfangen.
Es ist einfach nur groß, dabei ohne Pepp. Das Büro mit unter 10qm steht kaum im Verhältnis. Für mich ist der Allraum ungemütlich.
Zur Küche: wenn Sitzbank, dann doch durchgehend. Dann gibt es aber keine Terrassentür. Die Insel ist mit 2 Metern zu weit von dem Rest entfernt.

Warum hat jedes Fenster ein anderes Mass?

So einen Grundriss für eine Stadtvilla gibt es ja schon sehr durcherprobt. Warum nicht darauf zurückgreifen, sondern das Rad neu erfinden?
Ihr habt ja kein Problemgrundstück, wo eine Lösung gefunden werden muss.
 
kaho674

kaho674

Ich find das ganz ok, die Kinderzimmer sind jetzt halt nicht im Süden, dafür das Schlafzimmer. Wenn Euch das so lieber ist, was solls. Die Schräge im EG ist auch nicht meins - alles halt so bissl stino-altbacken.
Der Sinn des Erkers im EG ist mir völlig schleierhaft. Der soll wohl vor allem Geld verballern, damit das Budget ausgeschöpft wird. Aber schädlich ist er auch nicht.

Was ich auf jeden Fall nicht machen würde ist die Treppenwand im EG. Ihr habt einen separaten Flur. Die Kellertreppe offen zu lassen, schafft sofort mehr Großzügigkeit. Oder hat das irgendwelche energetischen Gründe?
 
A

AJanJan

Guten Morgen und an Dankeschön an euere Feedbacks.
So einen Grundriss für eine Stadtvilla gibt es ja schon sehr durcherprobt. Warum nicht darauf zurückgreifen, sondern das Rad neu erfinden?
Ihr habt ja kein Problemgrundstück, wo eine Lösung gefunden werden muss.
Wir haben uns viele Hausprospekte, Musterparks und Internetseiten angesehen. Dort haben wir uns das eine oder andere gemerkt, allerdings war kein Entwurf dabei, der uns gefallen hat.
Daher haben wir angefangen selber zu planen, bzw einen Architekten eingeschaltet. Von dem sind wir aktuell etwas enttäuscht. Wir planen mehr selber, was auch zu merken ist...
Der Wohn-/Esszimmer/Küchenbereich ist unser Haupt aufenthaltsbereich und daher der größte Raum. Wir möchten eine lange "Tafel" aufstellen können.
Es ist einfach nur groß, dabei ohne Pepp.
Das der Pepp hier felt, finden wir auch. Allerdings ist uns noch nichts besseres eingefallen.
Daher auch der Erker in der Küche. Ich möchte dies als 'Besonderes' integrieren, auch wenn es ein Geldfresser ist, wie kaho angemerkt hat und uns auch bewusst ist. Der Kamin soll den Raum auch noch aufwerte und natürlich die Aussicht in den Garten. Aber das Gewisse etwas fehlt hier leider noch.
Nicht dein Ernst und dann machst du das, auch ein ganz schön langer Weg?
Daher hatten wir überlegt, eine zweite Tür ins Bad einzubauen. Hat hier jemand Erfahrungen was den Lärm betrifft. Gibt es hier Schallschutztüren die Sinn machen?
Den Abstand in der Küche sollte schmaler werden? was ist denn hier ein Richtmaß? Möchten das bodentiefe Fenster für Einkäufe etc. nutzen.

Die Wand an der Treppe haben wir eingeplant aus energetischen Gründen, wie Kaho richtig vermutet hat. Zudem kann hier eine offene Besuchergaderobe angebracht werden.

Viele Grüße
 
Zuletzt aktualisiert 23.12.2025
Im Forum Grundrissplanung / Grundstücksplanung gibt es 2554 Themen mit insgesamt 88557 Beiträgen


Ähnliche Themen zu Neubau Einfamilienhaus Grundriss 150 m2
Nr.ErgebnisBeiträge
1Riesiges Problem mit dem Kondenswasser am Fenster 34
2Dusche direkt am Fenster - kompatibel oder inkompatibel? - Seite 222
3Geschlossene oder offene Küche ? 11
4Hilfe bei der Anordnung der Fenster benötigt! 32
5Probleme bei der aufteilung Küche, Essen , Wohnen 16
6 Küchenplanung mit tiefen Fenster 43
7Grundrissfrage, Treppe, Fenster, Ausrichtung 12
8Feedback zur Ikea-Küche - Seite 15167
9Sichere Fenster/Haustüre für Randlage - Seite 534
10Finaler Grundriss-Entwurf - bis auf die Fenster - Seite 535
11Fenster / Türen / Garderobe 13
12Terrassentür / Schiebetür / bodentiefe Fenster 13
13Grundriss Einfamilienhaus - Problemfall Küche 20
14Aufmusterung Elektro, Q2, Badfliesen, Drempel, bodentiefe Fenster 23
15Kleine Küche - Hilfe bei der Anordnung benötigt - Seite 532
16Mehrkosten falsch geplante Belüftungsanlage + Bodentiefe Fenster? 50
17IKEA Metod Küche - Ideen / Anregungen zum Plan? - Seite 529
18Planungsbeginn neue Küche - Seite 222
19Unsere neue erste Ikea Küche - Planung und Vorbereitung - Seite 269
20Küchenplanung: U-Form-Küche und Schubladen kollidieren - Seite 320

Oben