ᐅ Neubau Einfamilienhaus Grundriss 150 m2
Erstellt am: 15.09.19 19:26
AJanJan15.09.19 19:26
Hallöchen, in die Runde. Bis heute waren wir nur stille Mitlesen und sind nun auf eure Meinung und Feedback zu unserem Grundriss gespannt.
Im Frühjahr haben wir ein schönes Grundstück in Sackgassen-Lage erworben. Es handelt sich um ein Bestands-Wohngebiet ohne Bebauungsplan. Das Grundstück und auch die Pläne sind nach Süden ausgerichtet.
Hier die Eckdaten:
Bebauungsplan/Einschränkungen: gibt es keine
Größe des Grundstücks: 751 m2
Hang: seitlich entlang des Grundstücks, das Haus wird ebenerdig gebaut
Grundflächenzahl: keine Angaben
Geschossflächenzahl: keine Angaben
Baufenster, Baulinie und –grenze: keine Angaben
Randbebauung: Ja
Anzahl Stellplatz: keine Angaben
Geschossigkeit: keine Angaben, die Nachbarn haben 1,5 bis 3 Geschosse
Dachform: keine Angaben
Stilrichtung: keine Angaben
Ausrichtung: keine Angaben
Maximale Höhen/Begrenzungen: sehr unterschiedlich bei den Nachbarn
weitere Vorgaben
Anforderungen der Bauherren
Stilrichtung, Dachform, Gebäudetyp: Stadtvilla mit einem Walmdach
Keller, Geschosse: Keller, EG, OG
Anzahl der Personen, Alter: aktuell 2 Personen 28, 31
Raumbedarf im EG, OG: EG ca. 80 m2, OG 65m2 oder mehr?
Büro: Später eventuell Homeoffice
Schlafgäste pro Jahr: 2?
offene oder geschlossene Architektur: offen
konservativ oder moderne Bauweise: modern
offene Küche, Kochinsel: Kochinsel mit sitzbank (noch nicht eingezeichnet)
Anzahl Essplätze: 6-8
Kamin: Ja
Musik/Stereowand: Ja
Balkon, Dachterrasse: -
Garage, Carport: 1 Carport
Nutzgarten, Treibhaus: Nutzgarten
weitere Wünsche/Besonderheiten/Tagesablauf, gern auch Begründungen, warum dieses oder das nicht sein soll
Hausentwurf
Von wem stammt die Planung: Architekt
Preisschätzung lt Architekt/Planer: 500.000 ohne Grundstück
favorisierte Heiztechnik: Erdwärme, noch nicht endgültig
Wenn Ihr verzichten müsst, auf welche Details/Ausbauten
-könnt Ihr verzichten: auf den Balkon im OG, eventuell die Zimmer bis zur Außenkante hinausziehen, da sind wir uns noch nicht sicher, großes Bad im OG
-könnt Ihr nicht verzichten: Keller, Arbeiten im EG, Kamin
Warum ist der Entwurf so geworden, wie er jetzt ist? ZB
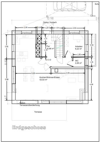
Entsprechende/Welche Wünsche wurden vom Architekten umgesetzt? Das Arbeitszimmer, Keller mit Außentreppe, Großes Wohn- und Esszimmer nach Süden, Gäste-Wc mit Fenster
Was ist die wichtigste/grundlegende Frage zum Grundriss in 130 Zeichen zusammengefasst?
Ist ein direkter Zugang vom Flur in die Küche sinnvoll, oder reicht eine Tür zum Wohn-, Esszimmer und Küche.
Soll im Esszimmer die Wand eingerückt werden, um die Räume besser zu definieren? Die Überdachung wär für eine überdachte Terrasse zu klein, Anbau kommt so oder so. Wir sind uns auch noch nicht einig, ob die Räume im OG bis zur Außenkante hinausgezogen werden sollen oder nicht. Flachdach bietet eine Kältebrücke/ ist Wartungsintensiv?! Der zusätzliche Wohnraum über dem Wohn- Esszimmer wird noch benötigt. Falls das Haus später in zwei Parteien getrennt werden soll wäre der zusätzliche Wohnraum schön, aber ob wir das machen wollen wissen wir nicht.




Im Frühjahr haben wir ein schönes Grundstück in Sackgassen-Lage erworben. Es handelt sich um ein Bestands-Wohngebiet ohne Bebauungsplan. Das Grundstück und auch die Pläne sind nach Süden ausgerichtet.
Hier die Eckdaten:
Bebauungsplan/Einschränkungen: gibt es keine
Größe des Grundstücks: 751 m2
Hang: seitlich entlang des Grundstücks, das Haus wird ebenerdig gebaut
Grundflächenzahl: keine Angaben
Geschossflächenzahl: keine Angaben
Baufenster, Baulinie und –grenze: keine Angaben
Randbebauung: Ja
Anzahl Stellplatz: keine Angaben
Geschossigkeit: keine Angaben, die Nachbarn haben 1,5 bis 3 Geschosse
Dachform: keine Angaben
Stilrichtung: keine Angaben
Ausrichtung: keine Angaben
Maximale Höhen/Begrenzungen: sehr unterschiedlich bei den Nachbarn
weitere Vorgaben
Anforderungen der Bauherren
Stilrichtung, Dachform, Gebäudetyp: Stadtvilla mit einem Walmdach
Keller, Geschosse: Keller, EG, OG
Anzahl der Personen, Alter: aktuell 2 Personen 28, 31
Raumbedarf im EG, OG: EG ca. 80 m2, OG 65m2 oder mehr?
Büro: Später eventuell Homeoffice
Schlafgäste pro Jahr: 2?
offene oder geschlossene Architektur: offen
konservativ oder moderne Bauweise: modern
offene Küche, Kochinsel: Kochinsel mit sitzbank (noch nicht eingezeichnet)
Anzahl Essplätze: 6-8
Kamin: Ja
Musik/Stereowand: Ja
Balkon, Dachterrasse: -
Garage, Carport: 1 Carport
Nutzgarten, Treibhaus: Nutzgarten
weitere Wünsche/Besonderheiten/Tagesablauf, gern auch Begründungen, warum dieses oder das nicht sein soll
Hausentwurf
Von wem stammt die Planung: Architekt
Preisschätzung lt Architekt/Planer: 500.000 ohne Grundstück
favorisierte Heiztechnik: Erdwärme, noch nicht endgültig
Wenn Ihr verzichten müsst, auf welche Details/Ausbauten
-könnt Ihr verzichten: auf den Balkon im OG, eventuell die Zimmer bis zur Außenkante hinausziehen, da sind wir uns noch nicht sicher, großes Bad im OG
-könnt Ihr nicht verzichten: Keller, Arbeiten im EG, Kamin
Warum ist der Entwurf so geworden, wie er jetzt ist? ZB
Entsprechende/Welche Wünsche wurden vom Architekten umgesetzt? Das Arbeitszimmer, Keller mit Außentreppe, Großes Wohn- und Esszimmer nach Süden, Gäste-Wc mit Fenster
Was ist die wichtigste/grundlegende Frage zum Grundriss in 130 Zeichen zusammengefasst?
Ist ein direkter Zugang vom Flur in die Küche sinnvoll, oder reicht eine Tür zum Wohn-, Esszimmer und Küche.
Soll im Esszimmer die Wand eingerückt werden, um die Räume besser zu definieren? Die Überdachung wär für eine überdachte Terrasse zu klein, Anbau kommt so oder so. Wir sind uns auch noch nicht einig, ob die Räume im OG bis zur Außenkante hinausgezogen werden sollen oder nicht. Flachdach bietet eine Kältebrücke/ ist Wartungsintensiv?! Der zusätzliche Wohnraum über dem Wohn- Esszimmer wird noch benötigt. Falls das Haus später in zwei Parteien getrennt werden soll wäre der zusätzliche Wohnraum schön, aber ob wir das machen wollen wissen wir nicht.
11ant15.09.19 21:59
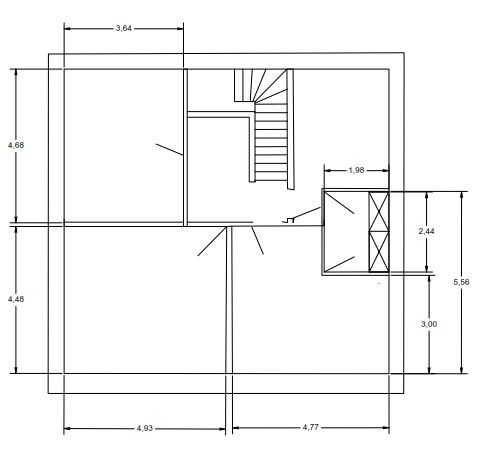
Zu dem EG mit dem Nicht-Eck-Wohnzimmerzugang sehe ich kein OG (?)
ypg15.09.19 22:25
Wie ist denn die Ausrichtung? Oder habe ich etwas überlesen?
Grundsätzlich würde ich oben erst mal das Bad hinter die Treppe verlegen, beide Kinderzimmer nebeneinander und dem Schlafzimmer fällt dann wohl ein besser möblierbares Zimmer ab, denn die 20qm sind mM nach etwas verbesserungswürdig.
Die Küche beim Entwurf mit regulären Wandecken ist nicht kochtauglich, da die Hochschränke außerhalb des Wirkungskreises angeordnet sind.
Grundsätzlich würde ich oben erst mal das Bad hinter die Treppe verlegen, beide Kinderzimmer nebeneinander und dem Schlafzimmer fällt dann wohl ein besser möblierbares Zimmer ab, denn die 20qm sind mM nach etwas verbesserungswürdig.
Die Küche beim Entwurf mit regulären Wandecken ist nicht kochtauglich, da die Hochschränke außerhalb des Wirkungskreises angeordnet sind.
AJanJan15.09.19 22:55
Im OG haben wir nur eine Variante, dort ist die Überlegung anstatt die Terrasse die Zimmer bis zur Gebäudekante hinaus zu ziehen. Dann hätten wir noch mehr Wohnfläche die wir aktuell nicht unbedingt benötigen?
Oben ist auf allen Zeichnungen Norden und unten Süden.
Das mit den Eck-hochschränken ist uns noch nicht aufgefallen, dann müsste das Fenster nach vorne weichen?! Wobei es schön ist die Straße einzusehen(eingeladene Gäste rechtzeitig zu sehen)
Habt ihr Erfahrungen mit einem Kamin an der Außenfassade, hat man dort einen merklich höheren Wärmeverlust als an einer Innenwand?
Danke für die ersten Tipps
Oben ist auf allen Zeichnungen Norden und unten Süden.
Das mit den Eck-hochschränken ist uns noch nicht aufgefallen, dann müsste das Fenster nach vorne weichen?! Wobei es schön ist die Straße einzusehen(eingeladene Gäste rechtzeitig zu sehen)
Habt ihr Erfahrungen mit einem Kamin an der Außenfassade, hat man dort einen merklich höheren Wärmeverlust als an einer Innenwand?
Danke für die ersten Tipps
ypg15.09.19 23:31
AJanJan schrieb:
Das mit den Eck-Hochschränken ist uns noch nicht aufgefallen, dann müsste das Fenster nach vorne weichen?!Nö, warum? Einfach Garderobe und Hochschränke tauschen oder den Entwurf „komplizierter“ planen.AJanJan schrieb:
Habt ihr Erfahrungen mit einem Kamin an der Außenfassade, hat man dort einen merklich höheren Wärmeverlust als an einer Innenwand?Wärmeverlust? Wovon redest Du? Der Schornstein wird a) innen gebaut, b) nein, es gibt keine nennenswerte Wärmeverluste in Energieeinsparverordnung-Häusern, c) was sagt das Walmdach zu einem Schlot am tiefsten Punkt/Traufe?
kaho67416.09.19 07:44
Finde beide EGs ok, wobei die Hochschrankproblematik der Küche in der 2-Türen-Variante noch gelöste werden müsste. Fenster im Osten des WZ fehlt.
Das OG find ich nicht ideal. Westfenster im Bad fehlt, Ostfenster bei Kind 2 fehlt (Die Fenstersparer-Architekten sind mir suspekt ).
Wenn man keine Not hat (und die sehe ich hier nicht), plant man das Bad in den Osten, Kinderzimmer im Süden und Schlafzimmer im Norden.
Ihr habt 20m² Schlafzimmer in der prallen Südsonne und könnt nur 2m Schrank stellen! Wir haben 6m Schrank und kommen zu zweit gerade so hin. Sind ja nicht nur Klamotten, sondern auch Bettwäsche, Koffer, Hüte und dergleichen unterzubringen.
Wäre es meins, würden die Zimmer die Plätze wechseln und vermutlich eine Ankleide hinzukommen.
Balkon ist so eine Frage. Ich finde einen kleinen Balkon am Schlafzimmer ganz nett zum Betten aufschütteln. Für die Kinder ist der aber Quatsch. Wir hatten als Kids auch einen, wir waren nie darauf - lieber im Garten. Bei der jetzigen Planung könnte man den Balkon für's Kind mit Kinderzimmer auffüllen und nur den Elternbalkon zur Hälfte lassen. Kinderzimmer dann noch gleichmäßig verteilen. Dazu wären dann aber mal die Ansichten nötig, ob das noch aussieht und natürlich die Frage, ob es den überhaupt braucht.
Das OG find ich nicht ideal. Westfenster im Bad fehlt, Ostfenster bei Kind 2 fehlt (Die Fenstersparer-Architekten sind mir suspekt ).
Wenn man keine Not hat (und die sehe ich hier nicht), plant man das Bad in den Osten, Kinderzimmer im Süden und Schlafzimmer im Norden.
Ihr habt 20m² Schlafzimmer in der prallen Südsonne und könnt nur 2m Schrank stellen! Wir haben 6m Schrank und kommen zu zweit gerade so hin. Sind ja nicht nur Klamotten, sondern auch Bettwäsche, Koffer, Hüte und dergleichen unterzubringen.
Wäre es meins, würden die Zimmer die Plätze wechseln und vermutlich eine Ankleide hinzukommen.
Balkon ist so eine Frage. Ich finde einen kleinen Balkon am Schlafzimmer ganz nett zum Betten aufschütteln. Für die Kinder ist der aber Quatsch. Wir hatten als Kids auch einen, wir waren nie darauf - lieber im Garten. Bei der jetzigen Planung könnte man den Balkon für's Kind mit Kinderzimmer auffüllen und nur den Elternbalkon zur Hälfte lassen. Kinderzimmer dann noch gleichmäßig verteilen. Dazu wären dann aber mal die Ansichten nötig, ob das noch aussieht und natürlich die Frage, ob es den überhaupt braucht.
Ähnliche Themen