Neubau einer ca. 8x11 Doppelhaushälfte, Einschätzung Grundriss und Fenster

4,90 Stern(e) 7 Votes
Zuletzt aktualisiert 19.11.2025
Sie befinden sich auf der Seite 4 der Diskussion zum Thema: Neubau einer ca. 8x11 Doppelhaushälfte, Einschätzung Grundriss und Fenster
>> Zum 1. Beitrag <<

E

espressionist

Noch ein Nachtrag:
Wir hofften so den WZ-Bereich in die Küche etwas voneinander zu trennen.
Deshalb kein komplett offener Grundriss.
 
kaho674

kaho674

Ich würde Euch gern raten, sich sowas mal live anzusehen. Mit und ohne Wand.

Fahrrad in den Keller? Die stehen bei uns im Schuppen oder Garage. Auch wenn die 5000 Eus das Stück kosten sollten, nach dem 3. mal Fahrrad diese Minitreppe um die Kurve gewuchtet, ist's vorbei mit den frommen Vorsätzen.

Teanie-Kinder und Küchenabtrennung? - unwichtiger Schickschnack im Vergleich zum lebenslangen Klaustrophobie-Wohnraum.

Nunja, jeder wie er will. Wegreißen geht ja immer noch.
 
11ant

11ant

Die Doppelhaushälfte ist mit 8 m 1,5-2 m breiter als die üblichen Doppelhaushälfte
Es ist wohl breiter als ein Handtuch- oder gar Kegelbahn-Reihenhaus. Dennoch bleibt es vom Charakter her ein Reihenendhaus, mit der typischen Konzeption:
Die Treppe spielt bei Doppelhaushälfte sowieso eine zentrale Rolle, da man auf kleiner Fläche nun mal ständig hoch und runter muss.
Der Grundtyp Reihenhaus ist eben eine Hochkantwohnung, mit der Konsequenz der Treppenlauferei bei einem Großteil der Raumwechsel.

Wir hofften so den WZ-Bereich in die Küche etwas voneinander zu trennen.
Deshalb kein komplett offener Grundriss.
Dazu halte ich das Ausklinken des Treppenbereiches allerdings für ungeeignet. Eher dächte ich da an einen Belagwechsel (in beiden Visualisierungen ist jeweils derselbe Boden für beide Bereiche dargestellt - nach meinem Empfinden ist das eine Küche mit Fernsehecke).
 
Y

ypg

Ich würde Euch gern raten, sich sowas mal live anzusehen. Mit und ohne Wand.

Fahrrad in den Keller? Die stehen bei uns im Schuppen oder Garage. Auch wenn die 5000 Eus das Stück kosten sollten, nach dem 3. mal Fahrrad diese Minitreppe um die Kurve gewuchtet, ist's vorbei mit den frommen Vorsätzen.

Teanie-Kinder und Küchenabtrennung? - unwichtiger Schickschnack im Vergleich zum lebenslangen Klaustrophobie-Wohnraum.

Nunja, jeder wie er will. Wegreißen geht ja immer noch.
Du bist heute so wunderbar emphatisch [emoji4] Find ich gut, Deine Denkanstöße!
 
Zuletzt bearbeitet:
Y

ypg

Es ist wohl breiter als ein Handtuch- oder gar Kegelbahn-Reihenhaus. Dennoch bleibt es vom Charakter her ein Reihenendhaus, mit der typischen Konzeption:

Der Grundtyp Reihenhaus ist eben eine Hochkantwohnung, mit der Konsequenz der Treppenlauferei bei einem Großteil der Raumwechsel.

).

Wir reden hier von einem 8 x 11 Grundriss. Das haben manchmal noch nicht mal „normale“ Häuser...

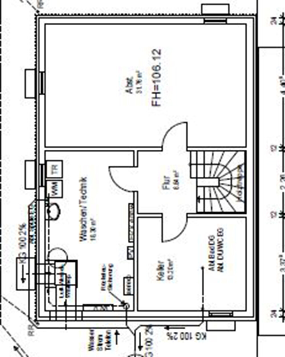
Problem ist oft ein zu kleines Grundstück, sodass man nicht mal schnell den Eingang woanders setzen kann... However... sehe kein einziges Bildchen aus dem Eingangsthread, insofern kann ich hier noch nicht mal mitsprechen [emoji85]
 
Zuletzt aktualisiert 19.11.2025
Im Forum Bauplanung gibt es 5070 Themen mit insgesamt 100807 Beiträgen


Ähnliche Themen zu Neubau einer ca. 8x11 Doppelhaushälfte, Einschätzung Grundriss und Fenster
Nr.ErgebnisBeiträge
1Haus mit Stromheizung kaufen? Oder Neubau Reihenhaus? 30
2Geschlossene oder offene Küche ? 11
3Grundriss, Ideen zur räumlichen Trennung innerhalb der Küche 23
4Varianten für eine Ecklösung in der Küche 18
5Wohnen/Essen/Küche: Wie wohnt ihr oder werdet ihr wohnen? 52
6Planung Wohnraum & Küche eines Doppelhaushälfte in Nürnberg 13
7Probleme bei der aufteilung Küche, Essen , Wohnen 16
8Grundriss Halboffene Küche mit großem Essbereich - Detailfragen 12
9Beleuchtung in Diele und Küche: Deckeneinbau-Strahler benötigt? - Seite 219
10Feedback zur Ikea-Küche - Seite 8167
11Next 125 Küche Erfahrungen / Preiseinschätzung - Seite 339
12Heizkreise/Thermostate für Wohnen/Essen/Küche bei Fußbodenheizung/Wärmepumpe 35
13Küche über ein Jahr vor Fertigstellung kaufen? - Seite 254
14Frage zur Entwässerung / Verrohrung Küche 16
15Grundriss Einfamilienhaus - Problemfall Küche 20
16Steinwand aus Stein/Steinplatten? Wohnzimmer / Küche 69
17Esstisch in einer kleinen Küche 49
18Wasseranschluss außen aus der Küche - möglich? 39
19Maße für Küche festlegen 15
20Kleine Küche - Hilfe bei der Anordnung benötigt - Seite 532

Oben