ᐅ Neubau / Badplanung / 16qm / Alternativen?
Erstellt am: 03.10.18 12:04
Hallo zusammen,
wir möchten gerne nächstes Jahr eine Doppelhaushälfte bauen.
Aktuell überlegen wir uns, wie wir das Bad grundlegend aufbauen können.
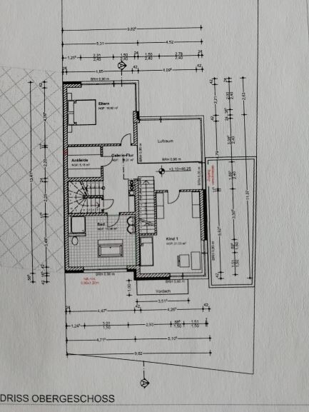
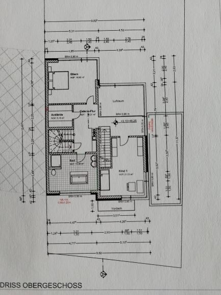
In den Bildern seht ihr unsere ersten auf Millimeterpapier erstellten Skizzen.
Das Bad hat ca. 16qm Fläche.
Bei der jeweils oberhalb des WCs eingezeichneten Wand dachten wir an eine Höhe von 0,9m (analog zur Brüstungshöhe des Fensters).
Über Feedback bzw. Alternativvorschläge dazu würde ich mich sehr freuen.
Vielen Dank.
Viele Grüße,
Christian




wir möchten gerne nächstes Jahr eine Doppelhaushälfte bauen.
Aktuell überlegen wir uns, wie wir das Bad grundlegend aufbauen können.
In den Bildern seht ihr unsere ersten auf Millimeterpapier erstellten Skizzen.
Das Bad hat ca. 16qm Fläche.
Bei der jeweils oberhalb des WCs eingezeichneten Wand dachten wir an eine Höhe von 0,9m (analog zur Brüstungshöhe des Fensters).
Über Feedback bzw. Alternativvorschläge dazu würde ich mich sehr freuen.
Vielen Dank.
Viele Grüße,
Christian
Ich würde erst mal die Schablonen korrigieren.
Das Ständerwerk für Toilette und waschtisch ist ca. 15cm tief.
Ein Waschtisch ist ungefähr 50cm x 60cm, die Toilette ca. 70cm lang.
Eine Wanne würde ich nie unter 1,80 nehmen, dazu kommen Ablagepodeste, ggf dahinter oder daneben - zum Abstellen von Nippes oder Waschzeugs.
Das Ständerwerk für Toilette und waschtisch ist ca. 15cm tief.
Ein Waschtisch ist ungefähr 50cm x 60cm, die Toilette ca. 70cm lang.
Eine Wanne würde ich nie unter 1,80 nehmen, dazu kommen Ablagepodeste, ggf dahinter oder daneben - zum Abstellen von Nippes oder Waschzeugs.
Euch ist klar, dass bei einem Fenster von über 3m breite im Bad deutliche "Einblicke" gewährt werden?
Ich finde viel Licht im Bad auch sehr schön, aber wenn auf der Seite nicht gerade "nur Wald" und "nicht einsehbar" ist, würde ich das zuerst etwas überdenken. Ich finde, es ist etwas anderes von außen in der Küche (wenn es dunkler wird ist ja auch ab und zu mal Licht an, obwohl die Rollladen noch nicht unten sind) oder im Bad beobachtet werden kann.
Mit mehr Wand hast du auch etwas bessere Möglichkeiten, wie die Objekte anzuordnen sind.
Soll die Dusche nur mit Glas oder mit einer undurchsichtigen Mauer abgetrennt werden?
Ich finde viel Licht im Bad auch sehr schön, aber wenn auf der Seite nicht gerade "nur Wald" und "nicht einsehbar" ist, würde ich das zuerst etwas überdenken. Ich finde, es ist etwas anderes von außen in der Küche (wenn es dunkler wird ist ja auch ab und zu mal Licht an, obwohl die Rollladen noch nicht unten sind) oder im Bad beobachtet werden kann.
Mit mehr Wand hast du auch etwas bessere Möglichkeiten, wie die Objekte anzuordnen sind.
Soll die Dusche nur mit Glas oder mit einer undurchsichtigen Mauer abgetrennt werden?
Hallo,
vielen Dank schon mal für Euer Feedback.
Zunächst habe ich mal die Größen der Objekte korrigiert.
Die Fensterbreite orientiert sich an der Fensterbreite des im EG darunter befindlichen Fensters, für eine möglichst einheitliche Fassadengestaltung. Das Bad befindet sich im ersten OG. Das Fenster hat derzeit eine geplante Brüstungshöhe von 90cm. Vor dem Haus ist noch 5,5m unser Grundstück inkl. Einfriedung. Danach kommt ein Fussweg. Gegenüber befindet sich kein Haus mit Obergeschoss. Ich hoffe, dass sich dadurch die Einblicke in Grenzen halten. Zur Abschattung möchten wir gerne Raffstores benutzen.
Bei der Dusche dachten wir zunächst zum Großteil an Glaswände. So ganz sicher bin ich mir aber nicht, ob zumindest zum Teil undurchsichtige Wände besser wären.
Viele Grüße,
Christian



vielen Dank schon mal für Euer Feedback.
Zunächst habe ich mal die Größen der Objekte korrigiert.
Die Fensterbreite orientiert sich an der Fensterbreite des im EG darunter befindlichen Fensters, für eine möglichst einheitliche Fassadengestaltung. Das Bad befindet sich im ersten OG. Das Fenster hat derzeit eine geplante Brüstungshöhe von 90cm. Vor dem Haus ist noch 5,5m unser Grundstück inkl. Einfriedung. Danach kommt ein Fussweg. Gegenüber befindet sich kein Haus mit Obergeschoss. Ich hoffe, dass sich dadurch die Einblicke in Grenzen halten. Zur Abschattung möchten wir gerne Raffstores benutzen.
Bei der Dusche dachten wir zunächst zum Großteil an Glaswände. So ganz sicher bin ich mir aber nicht, ob zumindest zum Teil undurchsichtige Wände besser wären.
Viele Grüße,
Christian
koestech schrieb:
Die Fensterbreite orientiert sich an der Fensterbreite des im EG darunter befindlichen Fensters, für eine möglichst einheitliche FassadengestaltungEin anderes Fensterformat muss nicht blöd aussehen, kann sogar Spannung reinbringen. Vertikale Linien setzt man eh. Zur Not unterteilen. Aber erst mal muss der Nutzen und Funktionalität priorisiert werden - erst dann kommt die Optik der Fassade. Ich seh da gar kein Problem, eher mit diesem ügrossem Fenster - ist ja auch unbehaglich, wenn man im Bad steht.
Da ist natürlich was dran. Wie würde denn Deine ideale Fensterplatzierung für den Raum aussehen, wenn man mal von den anderen Fenstern absieht? Nach links muss allerdings mindestens ein Abstand von 1,25m zum Nachbarn eingehalten werden.
Vielleicht 2x 1m Fenster oder eine höhere Brüstungshöhe, oder was ganz anderes?
Vielen Dank.
Vielleicht 2x 1m Fenster oder eine höhere Brüstungshöhe, oder was ganz anderes?
Vielen Dank.
Ähnliche Themen